4.9
Рейтинг на основании 120 отзывов
Дмитров
Опорный проезд 28Б
(индустриальный парк Ниагара)
Бренд "Дмитров-Дело" c 2008 года на рынке строительства в Дмитрове
Звоните 9:00 до 18:00 8 (915) 055-33-61
Бренд "Дмитров-Дело" c 2008 года на рынке строительства в Дмитрове

CUBA 70м² – Модульный дом под ключ

Стоимость проекта от:
31 500 ₽
Стоимость строительства от:
3 903 900 ₽
Артикул ART-10224
Дата 25.12.2025
Архитектурный стиль Минимализм
Количество надземных этажей 1
Круглогодичное проживание Да
Площадь дома 70 м2
Санузлы 2
Спальни 3

Описание

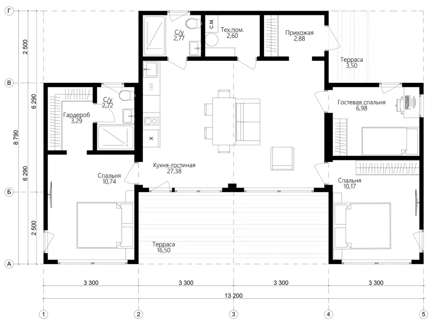
CUBA 70 м² – компактный модульный дом, сочетающий в себе минимализм и функциональность. Его единственный надземный этаж организован так, чтобы пространство максимально раскрыто: яркие естественные материалы, большие стеклянные поверхности и открытая планировка создают ощущение простора, даже при площади в 70 м². Чёрный, мягкий деревянный каркас, защищённый от влаги и износа, придаёт дому тепло и уют, а двускатная крыша обеспечивает хорошую вентиляцию и естественную теплоизоляцию, гарантируя комфорт круглый год. Внутри CUBA 70 м² – это уютный, но продуманный оазис: светлый холл, открытая кухня-столовая, просторная гостинная и две уютные спальни, каждая из которых оформлена в строгих, лаконичных тонах, подчёркивающих минималистический стиль. Лаконичные линии, отсутствие лишних конструкций и балконов позволяют сосредоточиться на деталях: высококачественные отделочные материалы, продуманные световые решения, энергоэффективные окна и подогрев пола в ванной. Модульный подход означает, что дом легко собрать и установить в любой уголок страны, а быстрая сборка и простота обслуживания делают его идеальным выбором для тех, кто ценит качество и экономию времени.

Характеристики дома

Архитектурный стиль
Минимализм
Автоматизированное регулирование параметров теплоносителя
Да
Балконы/лоджии
Отсутствуют
Чердачное помещение
Нет
Датчики протечки воды
Да
Эксплуатируемая или зеленая кровля
Нет
Электроснабжение
2 варианта
Газоснабжение
Не предусмотрено
Изоляция воздушного шума
Да
Камин
Нет
Класс энергоэффективности
-
Класс энергосбережения
-
Количество надземных этажей
1
Круглогодичное проживание
Да
Материал кровли
Металлические рулонные или листовые материалы
Материал перекрытий
Деревянные
Материал внешних стен
Деревянные каркасные
Материал внутренних перегородок
Деревянные
Модульное строительство с конструкциями заводского изготовления
Нет
Объем надземной части
100 м3
Основной материал фасадов
Дерево
Отопление
2 варианта
Площадь дома
70 м2
Площадь застройки
85 м2
Подвальное помещение
Нет
Показатель компактности здания
-
Приборы учета тепловой энергии
Да
Пристроенный гараж/крытая автостоянка
Нет
Противопожарная система
Нет
Санузлы
2
Совмещенная кухня-гостиная
Да
Спальни
3
Терраса
Нет
Тип фундамента
Свайный
Тип кровли
Двускатная
Толщина внешних стен
145 мм
Толщина внутренних перегородок
145 мм
Улучшенные шумовые характеристики
Да
Вентиляция
Рекуперация
Веранда
Нет
Водоотведение
2 варианта
Водоснабжение
2 варианта
Высота дома
3.54 м
Высота потолков
2.7 м

Планировка

Фасад дома

Александр

Закажите выезд инженера

Александр

Выездной инженер
Закажите выезд инженера для точной диагностики и профессиональной консультации по инженерным системам. Специалист приедет в удобное время, проведёт осмотр, рассчитает стоимость работ и подберёт оптимальные решения для вашего дома.


    Похожие проекты

    Ипотека и
    рассрочка
    Z-7
    Стоимость от:
    6 464 920
    Проект от: 38 700
    Этажей 1
    Санузлы 1
    Спальни 3
    Смотреть
    Ипотека и
    рассрочка
    Лидер 7
    Стоимость от:
    9 251 220
    Проект от: 58 950
    Этажей 1
    Санузлы 2
    Спальни 3
    Смотреть
    Ипотека и
    рассрочка
    Индивидуальный жилой дом площадью 85 м2
    Стоимость от:
    6 768 300
    Проект от: 38 250
    Этажей 1
    Санузлы 1
    Спальни 3
    Смотреть
    Ипотека и
    рассрочка
    Одноэтажный каменный дом КД-22
    Стоимость от:
    6 840 020
    Проект от: 40 950
    Этажей 1
    Санузлы 2
    Спальни 3
    Смотреть
    Ипотека и
    рассрочка
    Двухэтажный каркасный дом «Тренто»
    Стоимость от:
    10 294 200
    Проект от: 77 400
    Этажей 2
    Санузлы 2
    Спальни 4
    Смотреть
    Ипотека и
    рассрочка
    Одноэтажный дом от компании UNIT серии Премиум 124 TK
    Стоимость от:
    10 353 640
    Проект от: 63 900
    Этажей 1
    Санузлы 2
    Спальни 3
    Смотреть

    Как узнать стоимость дома

    back
    Оставляете заявку
    Вы заполняете форму на сайте или звоните нам. Менеджер Лайвкрафт связывается с вами для уточнения деталей: тип дома, площадь, материалы, участок строительства.
    back
    Консультация и подбор решения
    Наш специалист помогает выбрать оптимальный тип дома и конструкцию с учётом бюджета, сроков и целей — будь то дом для постоянного проживания или дача.
    back
    Расчёт предварительной стоимости
    Инженер делает первичный расчёт стоимости строительства по вашим параметрам: фундамент, коробка, кровля, отделка. Вы получаете смету с разбивкой по этапам.
    back
    Корректировка и утверждение сметы
    При необходимости вносим изменения — например, замену материалов или сокращение этапов. После согласования формируется окончательная фиксированная смета.
    back
    Заключение договора и старт работ
    После утверждения сметы заключаем официальный договор с гарантией. Вы получаете прозрачный график и точную стоимость — без скрытых расходов.

    Заказать конусльтацию по:CUBA 70м² – Модульный дом под ключ

    Фото 1 CUBA 70м² – Модульный дом под ключ


      Наши
      контакты

      Дмитров
      Опорный проезд 28Б
      (индустриальный парк Ниагара)
      9:00 до 18:00

      Корзина