4.9
Рейтинг на основании 120 отзывов
Дмитров
Опорный проезд 28Б
(индустриальный парк Ниагара)
Бренд "Дмитров-Дело" c 2008 года на рынке строительства в Дмитрове
Звоните 9:00 до 18:00 8 (915) 055-33-61
Бренд "Дмитров-Дело" c 2008 года на рынке строительства в Дмитрове

D104

Стоимость проекта от:
49 950 ₽
БЕСПЛАТНО! ПРИ ЗАКАЗЕ СТРОИТЕЛЬСТВА
Стоимость строительства от:
8 340 420 ₽
Артикул ART-20366
Дата 26.12.2025
Архитектурный стиль Европейский
Количество надземных этажей 1
Круглогодичное проживание Да
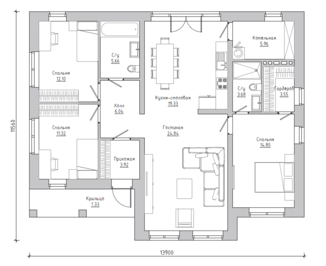
Площадь дома 111 м2
Санузлы 2
Спальни 3

Описание

**Дом D104 – уют и элегантность в каждом уголке** Этот прекрасный одноэтажный шедевр выполнен в строгом европейском стиле, придающем дому нотки классической гармонии и современного комфорта. Отзывчивые к сезонным перепадам климатические решения позволяют наслаждаться уютом дома круглогодично: просторные внутренние комнаты, хорошо изолированные стены из керамического блока и комбинированная кровля сохраняют тепло в холодное время года и обеспечивают прохладу в жару. Внутреннее пространство дома гармонично спроектировано так, чтобы максимизировать ощущение простора и света. Вместо балконов и веранд внимание уделено чердачному помещению – это дополнительное уютное пространство, которое можно превратить в домашний офис, игровую комнату или небольшой гостевой уголок. В интерьере гармонично сочетаются светлые оттенки, натуральные материалы и тщательно подобранные детали отделки, создавая атмосферу элегантного современного жилища, где каждый может почувствовать себя дома.

Характеристики дома

Архитектурный стиль
Автоматизированное регулирование параметров теплоносителя
Нет
Балконы/лоджии
Отсутствуют
Чердачное помещение
Да
Датчики протечки воды
Нет
Эксплуатируемая или зеленая кровля
Нет
Электроснабжение
Центральное
Газоснабжение
Центральное
Изоляция воздушного шума
Нет
Камин
Нет
Класс энергоэффективности
-
Класс энергосбережения
-
Количество надземных этажей
1
Круглогодичное проживание
Да
Материал кровли
Металлочерепица
Материал перекрытий
Сборные железобетонные
Материал внешних стен
Материал внутренних перегородок
Кирпичные
Модульное строительство с конструкциями заводского изготовления
Нет
Объем надземной части
-
Основной материал фасадов
Облицовочный кирпич
Отопление
Индивидуальное
Площадь дома
111 м2
Площадь застройки
143 м2
Подвальное помещение
Нет
Показатель компактности здания
-
Приборы учета тепловой энергии
Нет
Пристроенный гараж/крытая автостоянка
Нет
Противопожарная система
Нет
Санузлы
2
Совмещенная кухня-гостиная
Да
Спальни
3
Терраса
Нет
Тип фундамента
Свайно-ростверковый
Тип кровли
Толщина внешних стен
490 мм
Толщина внутренних перегородок
120 мм
Улучшенные шумовые характеристики
Нет
Вентиляция
Естественная
Веранда
Нет
Водоотведение
Локальные очистные сооружения
Водоснабжение
Индивидуальное
Высота дома
5.3 м
Высота потолков
2.9 м

Планировка

Фасад дома

Александр

Закажите выезд инженера

Александр

Выездной инженер
Закажите выезд инженера для точной диагностики и профессиональной консультации по инженерным системам. Специалист приедет в удобное время, проведёт осмотр, рассчитает стоимость работ и подберёт оптимальные решения для вашего дома.


    Похожие проекты

    Ипотека и
    рассрочка
    Одноэтажный дом С-130
    Стоимость от:
    8 686 260
    Проект от: 55 350
    Этажей 1
    Санузлы 2
    Спальни 3
    Смотреть
    Ипотека и
    рассрочка
    БВ-209
    Стоимость от:
    5 159 330
    Проект от: 40 050
    Этажей 1
    Санузлы 1
    Спальни 3
    Смотреть
    Ипотека и
    рассрочка
    Скандинавский светлый
    Стоимость от:
    3 067 350
    Проект от: 24 750
    Этажей 1
    Санузлы 2
    Спальни 1
    Смотреть
    Ипотека и
    рассрочка
    Одноэтажный дом FIXPLANS — 0656
    Стоимость от:
    8 474 400
    Проект от: 54 000
    Этажей 1
    Санузлы 4
    Спальни 3
    Смотреть
    Ипотека и
    рассрочка
    Ананас 72
    Стоимость от:
    5 735 840
    Проект от: 32 400
    Этажей 1
    Санузлы 1
    Спальни 3
    Смотреть
    Ипотека и
    рассрочка
    Загородный дом АС-275
    Стоимость от:
    10 755 360
    Проект от: 69 300
    Этажей 2
    Санузлы 2
    Спальни 3
    Смотреть

    Как узнать стоимость дома

    back
    Оставляете заявку
    Вы заполняете форму на сайте или звоните нам. Менеджер Лайвкрафт связывается с вами для уточнения деталей: тип дома, площадь, материалы, участок строительства.
    back
    Консультация и подбор решения
    Наш специалист помогает выбрать оптимальный тип дома и конструкцию с учётом бюджета, сроков и целей — будь то дом для постоянного проживания или дача.
    back
    Расчёт предварительной стоимости
    Инженер делает первичный расчёт стоимости строительства по вашим параметрам: фундамент, коробка, кровля, отделка. Вы получаете смету с разбивкой по этапам.
    back
    Корректировка и утверждение сметы
    При необходимости вносим изменения — например, замену материалов или сокращение этапов. После согласования формируется окончательная фиксированная смета.
    back
    Заключение договора и старт работ
    После утверждения сметы заключаем официальный договор с гарантией. Вы получаете прозрачный график и точную стоимость — без скрытых расходов.

    Заказать конусльтацию по:D104

    Фото 1 D104


      Наши
      контакты

      Дмитров
      Опорный проезд 28Б
      (индустриальный парк Ниагара)
      9:00 до 18:00

      Корзина