4.9
Рейтинг на основании 120 отзывов
Дмитров
Опорный проезд 28Б
(индустриальный парк Ниагара)
Бренд "Дмитров-Дело" c 2008 года на рынке строительства в Дмитрове
Звоните 9:00 до 18:00 8 (915) 055-33-61
Бренд "Дмитров-Дело" c 2008 года на рынке строительства в Дмитрове

D125-2

Стоимость проекта от:
54 900 ₽
БЕСПЛАТНО! ПРИ ЗАКАЗЕ СТРОИТЕЛЬСТВА
Стоимость строительства от:
7 949 280 ₽
Артикул ART-2580
Дата 26.12.2025
Архитектурный стиль Фахверк
Количество надземных этажей 2
Круглогодичное проживание Да
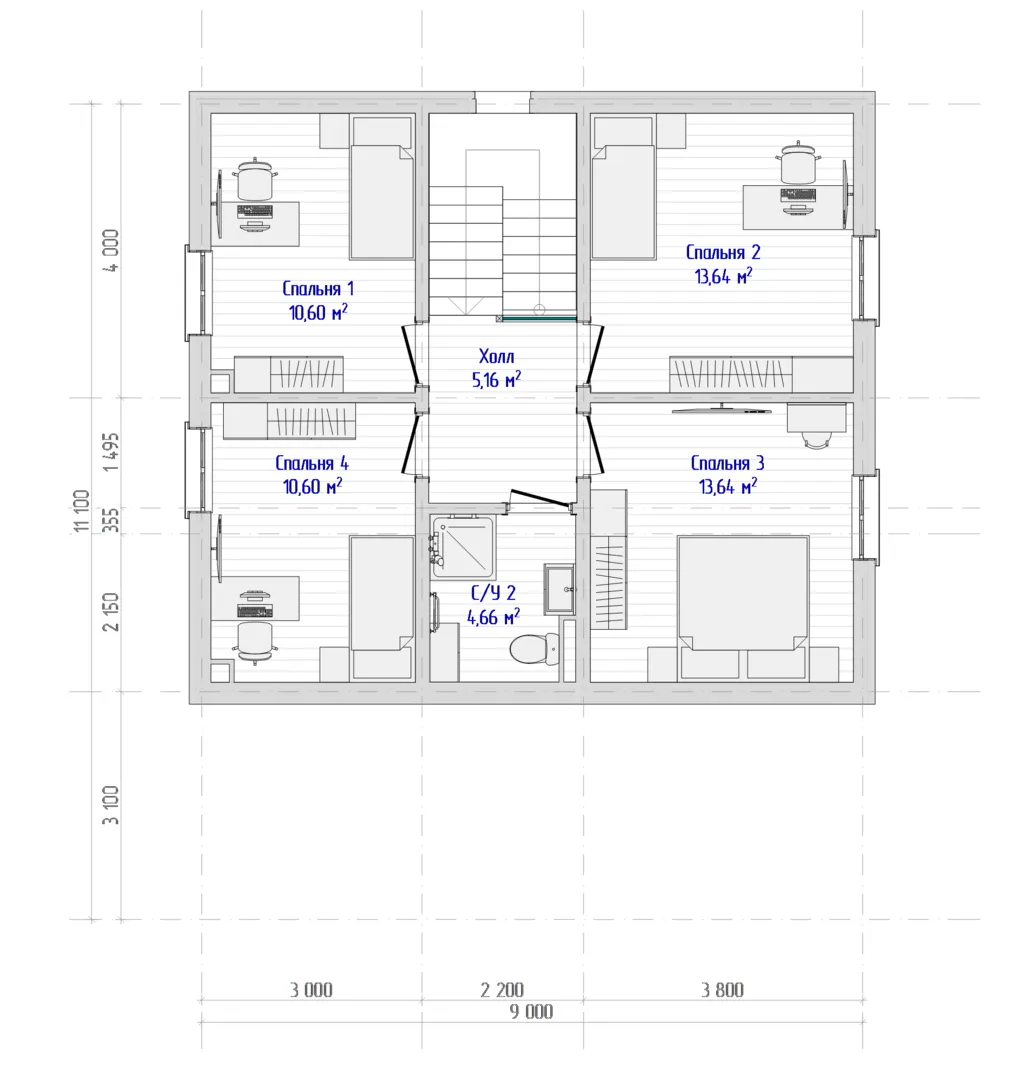
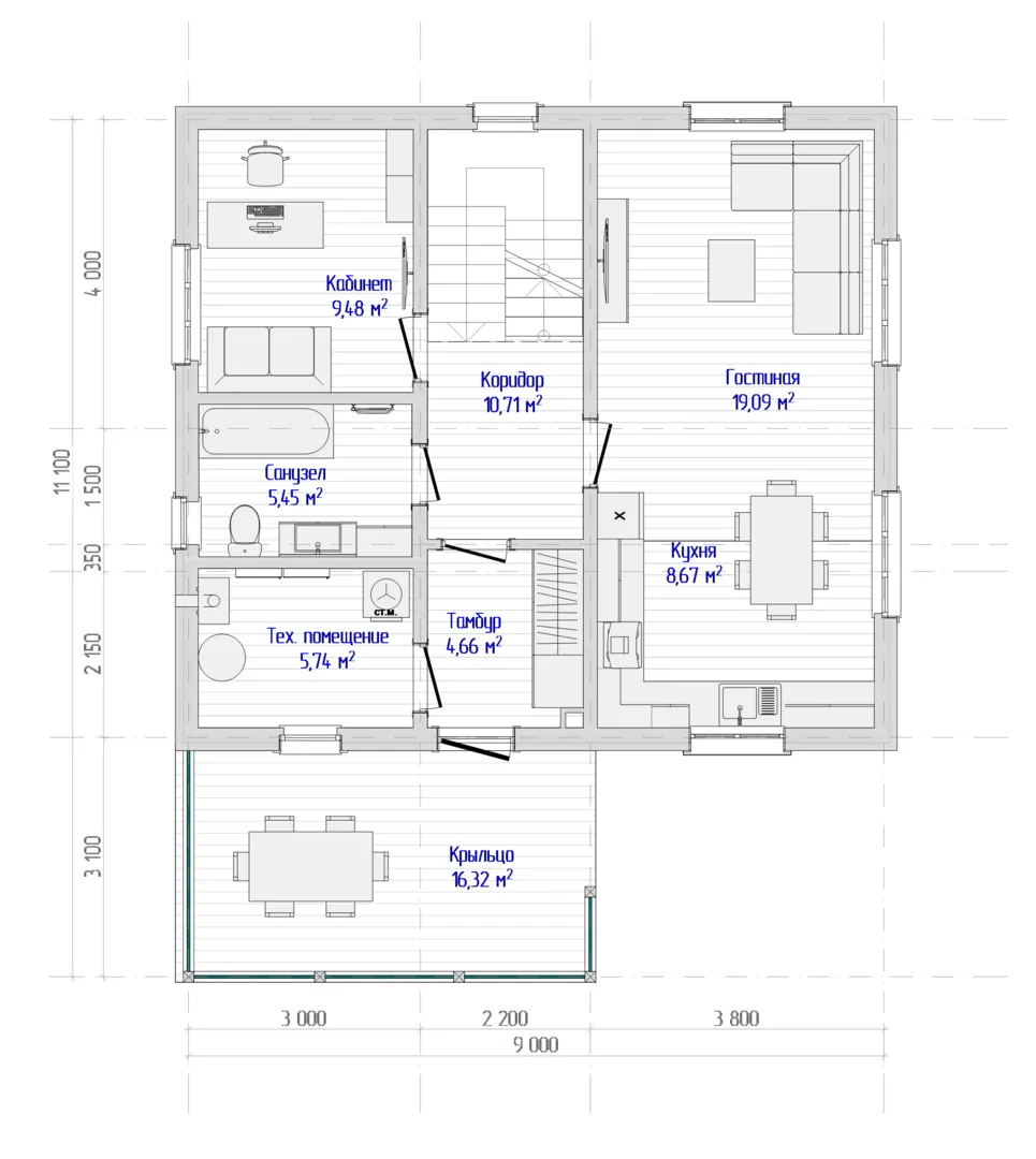
Площадь дома 122 м2
Санузлы 2
Спальни 4

Описание

Дом D125‑2 — это очаровательный очаг двухэтажного фахверка, где каждая деталь пронизана теплотой и уютом. Зимние морозы и летние лучи солнца не создают для него границ: круглогодичное проживание обеспечивают утепленные деревянные каркасы и двойные окна, а кровля с классическим двускатным уклоном надежно защищает от непогоды. Идеально для тех, кто ценит традиционную архитектуру с современной практичностью, но не готов жертвовать пространством. Внутреннее пространство открыто и светло. Звукоизоляция и теплоизоляция сохраняют атмосферу уюта даже в прохладнейшие месяцы, а деревянные брусья и лаконичные фаски создают атмосферу «дома в деревне», но с удобствами современного комфорта. Здесь каждый уголок пропитан духом домашнего уюта, а просторные коридоры и уютные кабинеты позволяют легко распределять пространство под собственные нужды. Важным акцентом становится просторная терраса, где можно наслаждаться свежим воздухом, устраивать семейные пикники или отдыхать с книгой после долгой работы. В отсутствии гаража и крытой стоянки пространство дома полностью сосредоточено на создании домашнего тепла, а свободные внешние стены дарят свободу от лишних ограничений. Дом D125‑2 — это место, где традиции встречаются с комфортом, создавая неповторимый уют для вашей семьи.

Характеристики дома

Архитектурный стиль
Автоматизированное регулирование параметров теплоносителя
Нет
Балконы/лоджии
Отсутствуют
Чердачное помещение
Нет
Датчики протечки воды
Нет
Эксплуатируемая или зеленая кровля
Нет
Электроснабжение
Индивидуальное
Газоснабжение
Индивидуальное
Изоляция воздушного шума
Нет
Камин
Нет
Класс энергоэффективности
-
Класс энергосбережения
-
Количество надземных этажей
2
Круглогодичное проживание
Да
Материал кровли
Битумная черепица
Материал перекрытий
Деревянные
Материал внешних стен
Материал внутренних перегородок
Деревянные
Модульное строительство с конструкциями заводского изготовления
Нет
Объем надземной части
-
Основной материал фасадов
Дерево
Отопление
Индивидуальное
Площадь дома
122 м2
Площадь застройки
102 м2
Подвальное помещение
Нет
Показатель компактности здания
-
Приборы учета тепловой энергии
Нет
Пристроенный гараж/крытая автостоянка
Нет
Противопожарная система
Нет
Санузлы
2
Совмещенная кухня-гостиная
Да
Спальни
4
Терраса
Да
Тип фундамента
Свайно-ростверковый
Тип кровли
Толщина внешних стен
250 мм
Толщина внутренних перегородок
150 мм
Улучшенные шумовые характеристики
Нет
Вентиляция
Принудительная
Веранда
Нет
Водоотведение
Локальные очистные сооружения
Водоснабжение
Индивидуальное
Высота дома
-
Высота потолков
2.7 м

Планировка

Фасад дома

Александр

Закажите выезд инженера

Александр

Выездной инженер
Закажите выезд инженера для точной диагностики и профессиональной консультации по инженерным системам. Специалист приедет в удобное время, проведёт осмотр, рассчитает стоимость работ и подберёт оптимальные решения для вашего дома.


    Похожие проекты

    Ипотека и
    рассрочка
    Лагуна К115-1 (Каркасный дом)
    Стоимость от:
    6 666 550
    Проект от: 51 750
    Этажей 1
    Санузлы 1
    Спальни 2
    Смотреть
    Ипотека и
    рассрочка
    «Васильева»
    Стоимость от:
    3 699 520
    Проект от: 28 800
    Этажей 1
    Санузлы 1
    Спальни 2
    Смотреть
    Ипотека и
    рассрочка
    Мираж
    Стоимость от:
    8 620 920
    Проект от: 56 700
    Этажей 1
    Санузлы 2
    Спальни 2
    Смотреть
    Ипотека и
    рассрочка
    Двухэтажный загородный дом «Цюрих»
    Стоимость от:
    10 773 000
    Проект от: 81 000
    Этажей 2
    Санузлы 2
    Спальни 4
    Смотреть
    Ипотека и
    рассрочка
    ФД 128
    Стоимость от:
    9 261 120
    Проект от: 57 600
    Этажей 2
    Санузлы 2
    Спальни 3
    Смотреть
    Ипотека и
    рассрочка
    Одноэтажный дом с террасой РН-131
    Стоимость от:
    9 615 760
    Проект от: 57 600
    Этажей 1
    Санузлы 2
    Спальни 4
    Смотреть

    Как узнать стоимость дома

    back
    Оставляете заявку
    Вы заполняете форму на сайте или звоните нам. Менеджер Лайвкрафт связывается с вами для уточнения деталей: тип дома, площадь, материалы, участок строительства.
    back
    Консультация и подбор решения
    Наш специалист помогает выбрать оптимальный тип дома и конструкцию с учётом бюджета, сроков и целей — будь то дом для постоянного проживания или дача.
    back
    Расчёт предварительной стоимости
    Инженер делает первичный расчёт стоимости строительства по вашим параметрам: фундамент, коробка, кровля, отделка. Вы получаете смету с разбивкой по этапам.
    back
    Корректировка и утверждение сметы
    При необходимости вносим изменения — например, замену материалов или сокращение этапов. После согласования формируется окончательная фиксированная смета.
    back
    Заключение договора и старт работ
    После утверждения сметы заключаем официальный договор с гарантией. Вы получаете прозрачный график и точную стоимость — без скрытых расходов.

    Заказать конусльтацию по:D125-2

    Фото 1 D125-2


      Наши
      контакты

      Дмитров
      Опорный проезд 28Б
      (индустриальный парк Ниагара)
      9:00 до 18:00

      Корзина