4.9
Рейтинг на основании 120 отзывов
Дмитров
Опорный проезд 28Б
(индустриальный парк Ниагара)
Бренд "Дмитров-Дело" c 2008 года на рынке строительства в Дмитрове
Звоните 9:00 до 18:00 8 (915) 055-33-61
Бренд "Дмитров-Дело" c 2008 года на рынке строительства в Дмитрове

D137-2

Стоимость проекта от:
71 100 ₽
БЕСПЛАТНО! ПРИ ЗАКАЗЕ СТРОИТЕЛЬСТВА
Стоимость строительства от:
10 290 720 ₽
Артикул ART-2581
Дата 26.12.2025
Архитектурный стиль Хайтек
Количество надземных этажей 2
Круглогодичное проживание Да
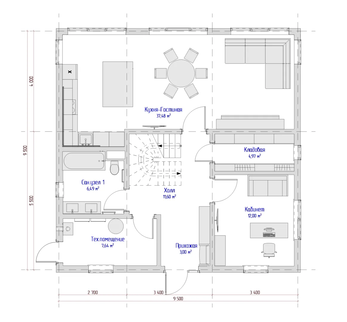
Площадь дома 158 м2
Санузлы 3
Спальни 3

Описание

Прекрасно сочетая современную техно‑архитектуру с тепло‑домашним ощущением, дом D137‑2 воплощает идеи гибкости и устойчивости. Двухэтажный корпус, состоящий из деревянных каркасных стен, обретает легкую, почти воздушную структуру, сохраняя при этом прочность и теплоизоляцию. Плоская крыша придаёт зданию минималистический вид, подчёркивая линии хайтек‑дизайна, а яркие окна открывают простор и освещенность, создавая ощущение простора даже в компактных планировках. Функциональность и комфорт в таком стиле достигается благодаря продуманной внутренней планировке: открытая гостиная с панорамными стеклянными дверями, где свет льётся прямо в объятия, а кухня–центр жизни органично переходит в столовую. Зимний сезон здесь не будет проблемой – тепло сохраняется благодаря энергоэффективному возмущению стен, а в летнюю пору мягкая влажность, которую дарит деревянный материал, делает пребывание приятным и освежающим. Дом D137‑2 – идеальный вариант для тех, кто ценит современность, но не готов жертвовать уютом и естественным шармом.

Характеристики дома

Архитектурный стиль
Автоматизированное регулирование параметров теплоносителя
Нет
Балконы/лоджии
Отсутствуют
Чердачное помещение
Нет
Датчики протечки воды
Нет
Эксплуатируемая или зеленая кровля
Нет
Электроснабжение
Индивидуальное
Газоснабжение
Индивидуальное
Изоляция воздушного шума
Нет
Камин
Нет
Класс энергоэффективности
-
Класс энергосбережения
-
Количество надземных этажей
2
Круглогодичное проживание
Да
Материал кровли
Битумная черепица
Материал перекрытий
Деревянные
Материал внешних стен
Материал внутренних перегородок
Деревянные
Модульное строительство с конструкциями заводского изготовления
Нет
Объем надземной части
-
Основной материал фасадов
Дерево
Отопление
Индивидуальное
Площадь дома
158 м2
Площадь застройки
93 м2
Подвальное помещение
Нет
Показатель компактности здания
-
Приборы учета тепловой энергии
Нет
Пристроенный гараж/крытая автостоянка
Нет
Противопожарная система
Нет
Санузлы
3
Совмещенная кухня-гостиная
Да
Спальни
3
Терраса
Нет
Тип фундамента
Свайно-ростверковый
Тип кровли
Толщина внешних стен
250 мм
Толщина внутренних перегородок
150 мм
Улучшенные шумовые характеристики
Нет
Вентиляция
Принудительная
Веранда
Нет
Водоотведение
Локальные очистные сооружения
Водоснабжение
Индивидуальное
Высота дома
-
Высота потолков
2.7 м

Планировка

Фасад дома

Александр

Закажите выезд инженера

Александр

Выездной инженер
Закажите выезд инженера для точной диагностики и профессиональной консультации по инженерным системам. Специалист приедет в удобное время, проведёт осмотр, рассчитает стоимость работ и подберёт оптимальные решения для вашего дома.


    Похожие проекты

    Ипотека и
    рассрочка
    Одноэтажный дом СМ-15
    Стоимость от:
    13 598 420
    Проект от: 76 950
    Этажей 1
    Санузлы 2
    Спальни 3
    Смотреть
    Ипотека и
    рассрочка
    Загородный дом «Рубин-100»
    Стоимость от:
    6 840 020
    Проект от: 40 950
    Этажей 1
    Санузлы 1
    Спальни 3
    Смотреть
    Ипотека и
    рассрочка
    ПРОЕКТ А021
    Стоимость от:
    6 308 880
    Проект от: 39 150
    Этажей 2
    Санузлы 2
    Спальни 3
    Смотреть
    Ипотека и
    рассрочка
    Genesis 70
    Стоимость от:
    5 084 640
    Проект от: 32 400
    Этажей 1
    Санузлы 1
    Спальни 2
    Смотреть
    Ипотека и
    рассрочка
    Шпа-115
    Стоимость от:
    7 868 300
    Проект от: 51 750
    Этажей 1
    Санузлы 2
    Спальни 3
    Смотреть
    Ипотека и
    рассрочка
    Дом в стиле хай-тек Олимп
    Стоимость от:
    8 145 900
    Проект от: 56 700
    Этажей 2
    Санузлы 2
    Спальни 3
    Смотреть

    Как узнать стоимость дома

    back
    Оставляете заявку
    Вы заполняете форму на сайте или звоните нам. Менеджер Лайвкрафт связывается с вами для уточнения деталей: тип дома, площадь, материалы, участок строительства.
    back
    Консультация и подбор решения
    Наш специалист помогает выбрать оптимальный тип дома и конструкцию с учётом бюджета, сроков и целей — будь то дом для постоянного проживания или дача.
    back
    Расчёт предварительной стоимости
    Инженер делает первичный расчёт стоимости строительства по вашим параметрам: фундамент, коробка, кровля, отделка. Вы получаете смету с разбивкой по этапам.
    back
    Корректировка и утверждение сметы
    При необходимости вносим изменения — например, замену материалов или сокращение этапов. После согласования формируется окончательная фиксированная смета.
    back
    Заключение договора и старт работ
    После утверждения сметы заключаем официальный договор с гарантией. Вы получаете прозрачный график и точную стоимость — без скрытых расходов.

    Заказать конусльтацию по:D137-2

    Фото 1 D137-2


      Наши
      контакты

      Дмитров
      Опорный проезд 28Б
      (индустриальный парк Ниагара)
      9:00 до 18:00

      Корзина