4.9
Рейтинг на основании 120 отзывов
Дмитров
Опорный проезд 28Б
(индустриальный парк Ниагара)
Бренд "Дмитров-Дело" c 2008 года на рынке строительства в Дмитрове
Звоните 9:00 до 18:00 8 (915) 055-33-61
Бренд "Дмитров-Дело" c 2008 года на рынке строительства в Дмитрове

D184-2

Стоимость проекта от:
115 650 ₽
БЕСПЛАТНО! ПРИ ЗАКАЗЕ СТРОИТЕЛЬСТВА
Стоимость строительства от:
16 738 080 ₽
Артикул ART-3176
Дата 26.12.2025
Архитектурный стиль Классический
Количество надземных этажей 2
Круглогодичное проживание Да
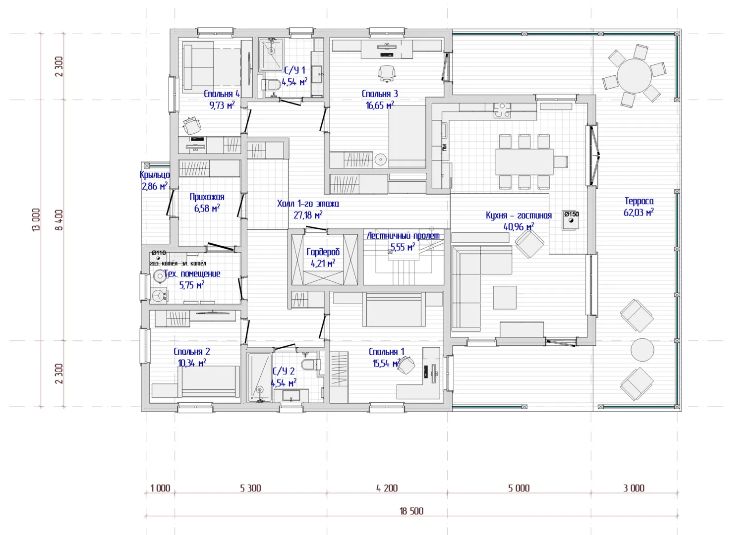
Площадь дома 257 м2
Санузлы 3
Спальни 6

Описание

Прекрасный семейный дом в классическом стиле, выполненный в теплом деревянном каркасе, станет вашей крепостью и уютным гнездом в любое время года. Двухэтажная площадь легко растягивается, создавая свободные зоны для работы, отдыха и игр. Просторные, светлые комнаты с высокими потолками приветствуют гостей, а большие окна пропускают мягкое солнце и открывают виды на окружающую природу. Всё это объединено в гармоничной композиции, где каждая деталь подчёркивает элегантность классики и уважение к традициям строительства. Уникальная комбинация крыши и качественные материалы внешних стен гарантируют надежную защиту от непогоды, а при этом придают зданию неповторимый внешний вид. Совершенно отсутствуют лишние объёмы вроде прицепного гаража или чердачного помещения, поэтому пространство остаётся максимально свободным и удобным для проживания. Но есть одно яркое дополнение – просторная терраса, которая делает ваш дом идеальным местом для вечеров с друзьями, семейных барбекю и восходов солнца над горизонтом. В этом доме ощущается забота о деталях: от аккуратного отделения до удобной планировки. Каждый уголок создаёте в своём собственном стиле, добавляя личный штрих к классическому облику. С его помощью вы сможете наслаждаться непринуждённым и спокойным бытом, где каждая комната и каждый светлый момент – часть вашей уникальной истории. Это именно то, чего ищут современные семьи, ценящие уют, практичность и элегантность.

Характеристики дома

Архитектурный стиль
Автоматизированное регулирование параметров теплоносителя
Нет
Балконы/лоджии
Отсутствуют
Чердачное помещение
Нет
Датчики протечки воды
Нет
Эксплуатируемая или зеленая кровля
Нет
Электроснабжение
Индивидуальное
Газоснабжение
Индивидуальное
Изоляция воздушного шума
Нет
Камин
Нет
Класс энергоэффективности
-
Класс энергосбережения
-
Количество надземных этажей
2
Круглогодичное проживание
Да
Материал кровли
Битумная черепица
Материал перекрытий
Деревянные
Материал внешних стен
Материал внутренних перегородок
Деревянные
Модульное строительство с конструкциями заводского изготовления
Нет
Объем надземной части
-
Основной материал фасадов
Дерево
Отопление
Индивидуальное
Площадь дома
257 м2
Площадь застройки
244 м2
Подвальное помещение
Нет
Показатель компактности здания
-
Приборы учета тепловой энергии
Нет
Пристроенный гараж/крытая автостоянка
Нет
Противопожарная система
Нет
Санузлы
3
Совмещенная кухня-гостиная
Да
Спальни
6
Терраса
Да
Тип фундамента
Свайно-ростверковый
Тип кровли
Толщина внешних стен
250 мм
Толщина внутренних перегородок
150 мм
Улучшенные шумовые характеристики
Нет
Вентиляция
Принудительная
Веранда
Нет
Водоотведение
Локальные очистные сооружения
Водоснабжение
Индивидуальное
Высота дома
-
Высота потолков
2.7 м

Планировка

Фасад дома

Александр

Закажите выезд инженера

Александр

Выездной инженер
Закажите выезд инженера для точной диагностики и профессиональной консультации по инженерным системам. Специалист приедет в удобное время, проведёт осмотр, рассчитает стоимость работ и подберёт оптимальные решения для вашего дома.


    Похожие проекты

    Ипотека и
    рассрочка
    K 2-125
    Стоимость от:
    8 972 160
    Проект от: 55 800
    Этажей 2
    Санузлы 2
    Спальни 4
    Смотреть
    Ипотека и
    рассрочка
    Дом из CLT «Инза»
    Стоимость от:
    606 720
    Проект от: 57 600
    Этажей 2
    Санузлы 2
    Спальни 2
    Смотреть
    Ипотека и
    рассрочка
    Дом «Аксель 128» в скандинавском стиле
    Стоимость от:
    6 703 200
    Проект от: 50 400
    Этажей 2
    Санузлы 2
    Спальни 1
    Смотреть
    Ипотека и
    рассрочка
    Катунь
    Стоимость от:
    9 129 560
    Проект от: 53 100
    Этажей 1
    Санузлы 2
    Спальни 3
    Смотреть
    Ипотека и
    рассрочка
    Одноэтажный дом в скандинавском стиле «Минтака»
    Стоимость от:
    7 457 780
    Проект от: 49 050
    Этажей 1
    Санузлы 1
    Спальни 3
    Смотреть
    Ипотека и
    рассрочка
    Загородный дом «Шале-82»
    Стоимость от:
    5 577 000
    Проект от: 45 000
    Этажей 1
    Санузлы 1
    Спальни 2
    Смотреть

    Как узнать стоимость дома

    back
    Оставляете заявку
    Вы заполняете форму на сайте или звоните нам. Менеджер Лайвкрафт связывается с вами для уточнения деталей: тип дома, площадь, материалы, участок строительства.
    back
    Консультация и подбор решения
    Наш специалист помогает выбрать оптимальный тип дома и конструкцию с учётом бюджета, сроков и целей — будь то дом для постоянного проживания или дача.
    back
    Расчёт предварительной стоимости
    Инженер делает первичный расчёт стоимости строительства по вашим параметрам: фундамент, коробка, кровля, отделка. Вы получаете смету с разбивкой по этапам.
    back
    Корректировка и утверждение сметы
    При необходимости вносим изменения — например, замену материалов или сокращение этапов. После согласования формируется окончательная фиксированная смета.
    back
    Заключение договора и старт работ
    После утверждения сметы заключаем официальный договор с гарантией. Вы получаете прозрачный график и точную стоимость — без скрытых расходов.

    Заказать конусльтацию по:D184-2

    Фото 1 D184-2


      Наши
      контакты

      Дмитров
      Опорный проезд 28Б
      (индустриальный парк Ниагара)
      9:00 до 18:00

      Корзина