4.9
Рейтинг на основании 120 отзывов
Дмитров
Опорный проезд 28Б
(индустриальный парк Ниагара)
Бренд "Дмитров-Дело" c 2008 года на рынке строительства в Дмитрове
Звоните 9:00 до 18:00 8 (915) 055-33-61
Бренд "Дмитров-Дело" c 2008 года на рынке строительства в Дмитрове

D191-2

Стоимость проекта от:
66 150 ₽
Стоимость строительства от:
9 583 680 ₽
Артикул ART-10513
Дата 25.12.2025
Архитектурный стиль Классический
Количество надземных этажей 2
Круглогодичное проживание Да
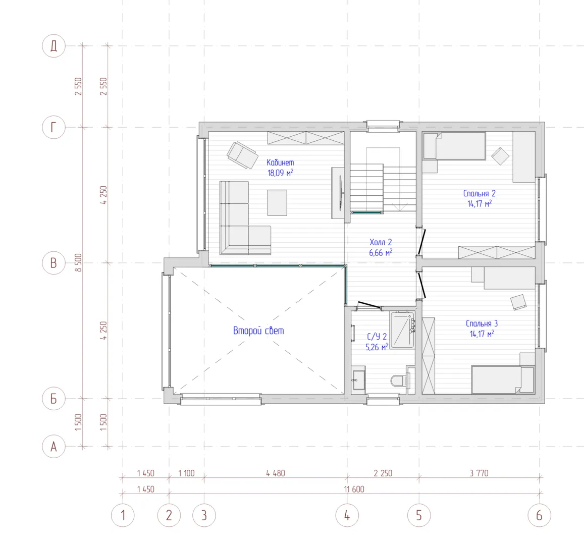
Площадь дома 147 м2
Санузлы 2
Спальни 3

Описание

**Дом D191‑2** – это настоящий уголок спокойствия и комфорта, где современный уют встречается с классической элегантностью. Вышедший из классического стиля, он сочетает в себе строгие линии и гармоничные пропорции, создавая атмосферу уюта и благополучия. Два надземных этажа, полностью рассчитанные на круглогодичную проживанию, обеспечивают достаточно пространства каждому члену семьи, при этом оставаясь легкими и воздушными. Внешняя часть дома выполнена в деревянном каркасном стиле с комбинированной кровлей, которая придаёт зданию живой, почти «животобуксированный» вид, а при этом обладает прочностью и долговечностью. Отсутствие балконов и веранд не мешает наслаждаться свежим воздухом — именно на просторной террасе можно устраивать вечерние пикники, читать книгу под звёздами или просто делиться моментами с любимыми. Этот дом – идеальное место для тех, кто ценит классический дизайн и уютный семейный образ жизни, не желая лишних конструкций и лишних хлопот. Отдельно стоит отметить высококачественное отделку и внимание к деталям, которые делают каждый уголок дома уютным и функциональным. Если вы ищете комфорт, стиль и возможность создавать радостные воспоминания, D191‑2 станет вашими надежными союзниками.

Характеристики дома

Архитектурный стиль
Классический
Автоматизированное регулирование параметров теплоносителя
Нет
Балконы/лоджии
Отсутствуют
Чердачное помещение
Нет
Датчики протечки воды
Нет
Эксплуатируемая или зеленая кровля
Нет
Электроснабжение
Индивидуальное
Газоснабжение
Индивидуальное
Изоляция воздушного шума
Нет
Камин
Нет
Класс энергоэффективности
-
Класс энергосбережения
-
Количество надземных этажей
2
Круглогодичное проживание
Да
Материал кровли
Битумная черепица
Материал перекрытий
Деревянные
Материал внешних стен
Деревянные каркасные
Материал внутренних перегородок
Деревянные
Модульное строительство с конструкциями заводского изготовления
Нет
Объем надземной части
-
Основной материал фасадов
Дерево
Отопление
Индивидуальное
Площадь дома
147 м2
Площадь застройки
166 м2
Подвальное помещение
Нет
Показатель компактности здания
-
Приборы учета тепловой энергии
Нет
Пристроенный гараж/крытая автостоянка
Нет
Противопожарная система
Нет
Санузлы
2
Совмещенная кухня-гостиная
Да
Спальни
3
Терраса
Да
Тип фундамента
Свайно-ростверковый
Тип кровли
Комбинированная
Толщина внешних стен
250 мм
Толщина внутренних перегородок
150 мм
Улучшенные шумовые характеристики
Нет
Вентиляция
Принудительная
Веранда
Нет
Водоотведение
Локальные очистные сооружения
Водоснабжение
Индивидуальное
Высота дома
-
Высота потолков
2.7 м

Планировка

Фасад дома

Александр

Закажите выезд инженера

Александр

Выездной инженер
Закажите выезд инженера для точной диагностики и профессиональной консультации по инженерным системам. Специалист приедет в удобное время, проведёт осмотр, рассчитает стоимость работ и подберёт оптимальные решения для вашего дома.


    Похожие проекты

    Ипотека и
    рассрочка
    Одноэтажный дом Аврора
    Стоимость от:
    10 133 420
    Проект от: 58 950
    Этажей 1
    Санузлы 3
    Спальни 3
    Смотреть
    Ипотека и
    рассрочка
    Одноэтажный дом Fixplans-9629
    Стоимость от:
    6 450 620
    Проект от: 36 450
    Этажей 1
    Санузлы 2
    Спальни 3
    Смотреть
    Ипотека и
    рассрочка
    Январь
    Стоимость от:
    4 802 160
    Проект от: 30 600
    Этажей 1
    Санузлы 1
    Спальни 2
    Смотреть
    Ипотека и
    рассрочка
    Загородный дом ГОЙЯ
    Стоимость от:
    171 820
    Проект от: 31 950
    Этажей 1
    Санузлы 1
    Спальни 2
    Смотреть
    Ипотека и
    рассрочка
    ЛИГА_Св-1-Г
    Стоимость от:
    7 389 360
    Проект от: 48 600
    Этажей 1
    Санузлы 1
    Спальни 2
    Смотреть
    Ипотека и
    рассрочка
    Каркасный дом Сидней 148
    Стоимость от:
    8 618 400
    Проект от: 64 800
    Этажей 2
    Санузлы 2
    Спальни 7
    Смотреть

    Как узнать стоимость дома

    back
    Оставляете заявку
    Вы заполняете форму на сайте или звоните нам. Менеджер Лайвкрафт связывается с вами для уточнения деталей: тип дома, площадь, материалы, участок строительства.
    back
    Консультация и подбор решения
    Наш специалист помогает выбрать оптимальный тип дома и конструкцию с учётом бюджета, сроков и целей — будь то дом для постоянного проживания или дача.
    back
    Расчёт предварительной стоимости
    Инженер делает первичный расчёт стоимости строительства по вашим параметрам: фундамент, коробка, кровля, отделка. Вы получаете смету с разбивкой по этапам.
    back
    Корректировка и утверждение сметы
    При необходимости вносим изменения — например, замену материалов или сокращение этапов. После согласования формируется окончательная фиксированная смета.
    back
    Заключение договора и старт работ
    После утверждения сметы заключаем официальный договор с гарантией. Вы получаете прозрачный график и точную стоимость — без скрытых расходов.

    Заказать конусльтацию по:D191-2

    Фото 1 D191-2


      Наши
      контакты

      Дмитров
      Опорный проезд 28Б
      (индустриальный парк Ниагара)
      9:00 до 18:00

      Корзина