4.9
Рейтинг на основании 120 отзывов
Дмитров
Опорный проезд 28Б
(индустриальный парк Ниагара)
Бренд "Дмитров-Дело" c 2008 года на рынке строительства в Дмитрове
Звоните 9:00 до 18:00 8 (915) 055-33-61
Бренд "Дмитров-Дело" c 2008 года на рынке строительства в Дмитрове

Д2-199

Стоимость проекта от:
87 300 ₽
БЕСПЛАТНО! ПРИ ЗАКАЗЕ СТРОИТЕЛЬСТВА
Стоимость строительства от:
12 827 280 ₽
Артикул ART-12265
Дата 25.12.2025
Архитектурный стиль Европейский
Количество надземных этажей 2
Круглогодичное проживание Да
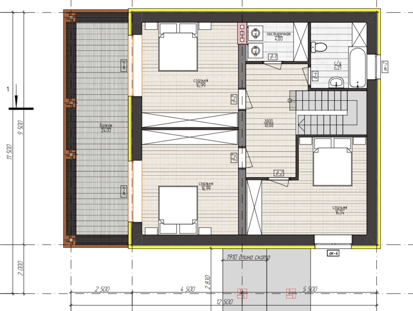
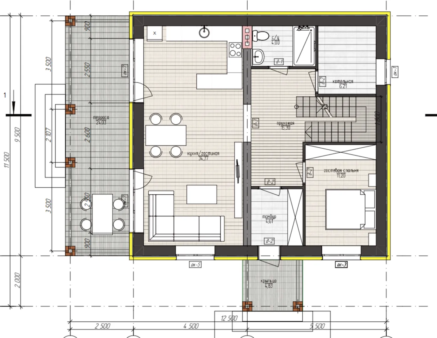
Площадь дома 194 м2
Санузлы 2
Спальни 4

Описание

Потому что настоящий уют начинается с архитектурного стиля, а наш дом **D2‑199** воплощает в себе европейскую элегантность и простоту изысканного бытия. Двухуровневый облик, мягко скользящий по двускатной крыше, создаёт ощущение легкости и воздушности даже в летние, жаркие дни. Внутреннее пространство разделено на уютный гостиной, где природный свет льётся сквозь большие окна, и функциональные зоны, где каждая секция дома говорит о продуманной детализации. Вода, запахи, цвета, текстуры – все они подчиняются единому, гармоничному дизайну, придающему помещению неповторимый шарм. Одной из главных особенностей дома является широкий балкон и просторная терраса, где можно наслаждаться свежим воздухом в любое время года. Их стратегично размещённые уголки обеспечивают панорамные виды на окружение и добавляют ощущение открытости. Несмотря на отсутствия пристроенного гаража, дом удобно располагается над улицей, где легко организовать временную парковку, а при необходимости можно воспользоваться общим крытым стоянковым пространством. Надежные газобетонные блоки, облицованные материалами высокого качества, гарантируют теплоизоляцию и устойчивость к климатическим колебаниям, сохраняя комфорт любого времени года. Если вы ищете место, где традиционный европейский шарм сочетается с практичностью и современными материалами, **D2‑199** — ваш выбор. Это дом, в котором каждая деталь, от габарита до отделки, создана для вашего удобства и уюта. Запланируйте просмотр уже сегодня и ощутите, как уют и красота открываются вам в каждом уголке этого уникального жилья.

Характеристики дома

Архитектурный стиль
Автоматизированное регулирование параметров теплоносителя
Да
Балконы/лоджии
1
Чердачное помещение
Нет
Датчики протечки воды
Да
Эксплуатируемая или зеленая кровля
Нет
Электроснабжение
2 варианта
Газоснабжение
2 варианта
Изоляция воздушного шума
Да
Камин
Нет
Класс энергоэффективности
-
Класс энергосбережения
-
Количество надземных этажей
2
Круглогодичное проживание
Да
Материал кровли
Металлочерепица
Материал перекрытий
Сборные железобетонные многопустотные плиты
Материал внешних стен
Материал внутренних перегородок
Блочные
Модульное строительство с конструкциями заводского изготовления
Нет
Объем надземной части
900 м3
Основной материал фасадов
Облицовочный кирпич
Отопление
2 варианта
Площадь дома
194 м2
Площадь застройки
130 м2
Подвальное помещение
Нет
Показатель компактности здания
-
Приборы учета тепловой энергии
Да
Пристроенный гараж/крытая автостоянка
Нет
Противопожарная система
Да
Санузлы
2
Совмещенная кухня-гостиная
Да
Спальни
4
Терраса
Да
Тип фундамента
Столбчатый
Тип кровли
Толщина внешних стен
400 мм
Толщина внутренних перегородок
200 мм
Улучшенные шумовые характеристики
Да
Вентиляция
3 варианта
Веранда
Нет
Водоотведение
2 варианта
Водоснабжение
2 варианта
Высота дома
7.4 м
Высота потолков
3 м

Планировка

Фасад дома

Александр

Закажите выезд инженера

Александр

Выездной инженер
Закажите выезд инженера для точной диагностики и профессиональной консультации по инженерным системам. Специалист приедет в удобное время, проведёт осмотр, рассчитает стоимость работ и подберёт оптимальные решения для вашего дома.


    Похожие проекты

    Ипотека и
    рассрочка
    Загородный дом АС-247
    Стоимость от:
    13 688 640
    Проект от: 88 200
    Этажей 2
    Санузлы 2
    Спальни 4
    Смотреть
    Ипотека и
    рассрочка
    Оккервиль
    Стоимость от:
    4 289 780
    Проект от: 33 300
    Этажей 1
    Санузлы 1
    Спальни 2
    Смотреть
    Ипотека и
    рассрочка
    120м2
    Стоимость от:
    8 751 600
    Проект от: 54 000
    Этажей 1
    Санузлы 1
    Спальни 3
    Смотреть
    Ипотека и
    рассрочка
    Загородный дом «Москва»
    Стоимость от:
    5 681 060
    Проект от: 44 100
    Этажей 1
    Санузлы 2
    Спальни 3
    Смотреть
    Ипотека и
    рассрочка
    КОТТЕДЖ «Александрит»
    Стоимость от:
    10 215 920
    Проект от: 61 200
    Этажей 1
    Санузлы 1
    Спальни 3
    Смотреть
    Ипотека и
    рассрочка
    SV-90M
    Стоимость от:
    8 865 560
    Проект от: 53 100
    Этажей 1
    Санузлы 2
    Спальни 3
    Смотреть

    Как узнать стоимость дома

    back
    Оставляете заявку
    Вы заполняете форму на сайте или звоните нам. Менеджер Лайвкрафт связывается с вами для уточнения деталей: тип дома, площадь, материалы, участок строительства.
    back
    Консультация и подбор решения
    Наш специалист помогает выбрать оптимальный тип дома и конструкцию с учётом бюджета, сроков и целей — будь то дом для постоянного проживания или дача.
    back
    Расчёт предварительной стоимости
    Инженер делает первичный расчёт стоимости строительства по вашим параметрам: фундамент, коробка, кровля, отделка. Вы получаете смету с разбивкой по этапам.
    back
    Корректировка и утверждение сметы
    При необходимости вносим изменения — например, замену материалов или сокращение этапов. После согласования формируется окончательная фиксированная смета.
    back
    Заключение договора и старт работ
    После утверждения сметы заключаем официальный договор с гарантией. Вы получаете прозрачный график и точную стоимость — без скрытых расходов.

    Заказать конусльтацию по:Д2-199

    Фото 1 Д2-199


      Наши
      контакты

      Дмитров
      Опорный проезд 28Б
      (индустриальный парк Ниагара)
      9:00 до 18:00

      Корзина