4.9
Рейтинг на основании 120 отзывов
Дмитров
Опорный проезд 28Б
(индустриальный парк Ниагара)
Бренд "Дмитров-Дело" c 2008 года на рынке строительства в Дмитрове
Звоните 9:00 до 18:00 8 (915) 055-33-61
Бренд "Дмитров-Дело" c 2008 года на рынке строительства в Дмитрове

ДАВИНЧИ

Стоимость проекта от:
58 500 ₽
БЕСПЛАТНО! ПРИ ЗАКАЗЕ СТРОИТЕЛЬСТВА
Стоимость строительства от:
8 404 500 ₽
Артикул ART-18065
Дата 26.12.2025
Архитектурный стиль Европейский
Количество надземных этажей 2
Круглогодичное проживание Да
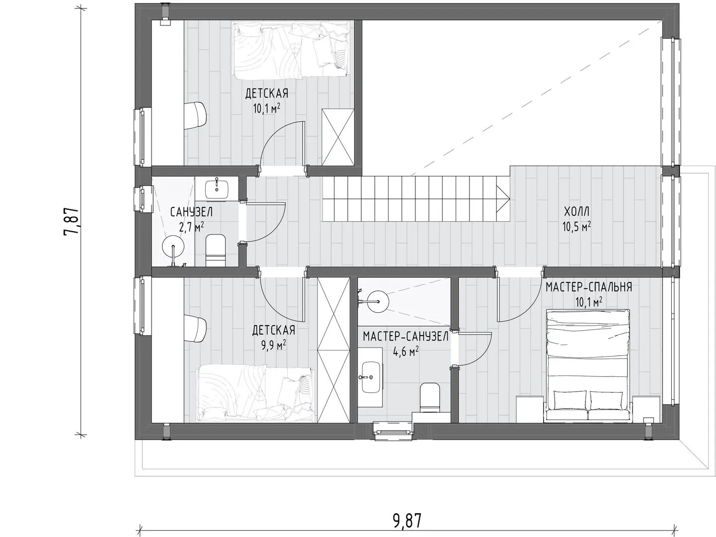
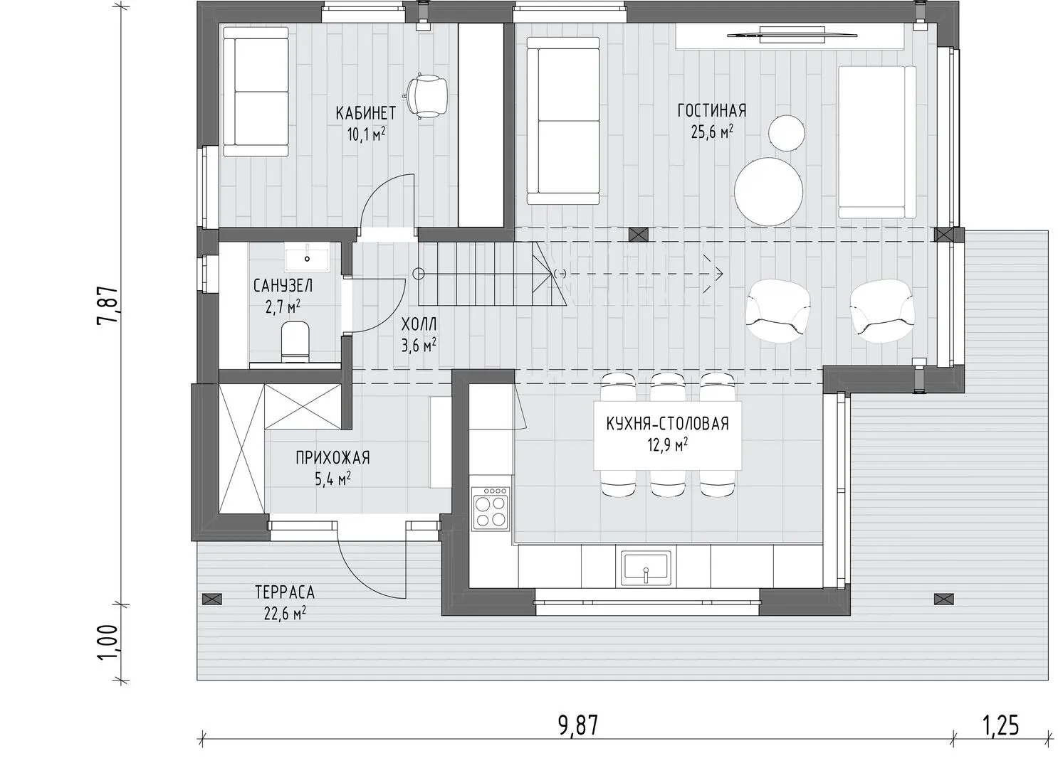
Площадь дома 130 м2
Санузлы 3
Спальни 4

Описание

Заглянув внутрь ДАВИНЧИ, вы сразу почувствуете, будто входите в уютный уголок европейского шика. Дом выполнен в строгом, но при этом живом европейском стиле: элегантные глиняные чередования кирпича и дерева создают мягкую, почти сказочную атмосферу, а двускатный покров подчёркивает изысканность фасада. Благодаря панельно‑каркасной технологии здания остаётся лёгким, но при этом невероятно тепло‑ и энергосберегающим, что делает это место отличным выбором для круглогодичного проживания. Здесь каждая деталь продумана под комфорт и стиль жизни: две надземные палаты, просторные комнаты, оснащённые современными системами вентиляции и отопления, а уютный уголок в чердачном пространстве позволяет превратить его в личный кабинет, игровую зону или творческий студийный уголок. Отсутствие балконов, лоджий и веранд даёт ощущение целостности и уединённости, а наличие собственной террасы добавляет свежего воздуха и возможности провести вечер за чашечкой кофе, наслаждаясь панорамой окрестностей. В интерьере царит сочетание классики и современности: светлые тона стен и пола, элегантные деревянные балки, которые подчёркивают традиционный вид, а мягкий свет от встроенных лент создаёт атмосферу тепла и уюта. Благодаря грамотной планировке, каждая комната оптимально используется без лишних пересечений, что делает этот дом идеальным для семьи, которая ценит безопасность, комфорт и атмосферу истинной европейской жизни.

Характеристики дома

Архитектурный стиль
Автоматизированное регулирование параметров теплоносителя
Нет
Балконы/лоджии
Отсутствуют
Чердачное помещение
Да
Датчики протечки воды
Нет
Эксплуатируемая или зеленая кровля
Нет
Электроснабжение
Не предусмотрено
Газоснабжение
Не предусмотрено
Изоляция воздушного шума
Да
Камин
Нет
Класс энергоэффективности
-
Класс энергосбережения
-
Количество надземных этажей
2
Круглогодичное проживание
Да
Материал кровли
Битумная черепица
Материал перекрытий
Иной вид материалов перекрытий
Материал внешних стен
Материал внутренних перегородок
Гипсокартонные
Модульное строительство с конструкциями заводского изготовления
Да
Объем надземной части
393 м3
Основной материал фасадов
Дерево
Отопление
Не предусмотрено
Площадь дома
130 м2
Площадь застройки
131 м2
Подвальное помещение
Нет
Показатель компактности здания
-
Приборы учета тепловой энергии
Нет
Пристроенный гараж/крытая автостоянка
Нет
Противопожарная система
Нет
Санузлы
3
Совмещенная кухня-гостиная
Да
Спальни
4
Терраса
Да
Тип фундамента
Свайно-винтовой
Тип кровли
Толщина внешних стен
306 мм
Толщина внутренних перегородок
192 мм
Улучшенные шумовые характеристики
Нет
Вентиляция
Естественная
Веранда
Нет
Водоотведение
Не предусмотрено
Водоснабжение
Не предусмотрено
Высота дома
7.76 м
Высота потолков
4 м

Планировка

Фасад дома

Александр

Закажите выезд инженера

Александр

Выездной инженер
Закажите выезд инженера для точной диагностики и профессиональной консультации по инженерным системам. Специалист приедет в удобное время, проведёт осмотр, рассчитает стоимость работ и подберёт оптимальные решения для вашего дома.


    Похожие проекты

    Ипотека и
    рассрочка
    Фаворит 6х9 П6
    Стоимость от:
    5 745 600
    Проект от: 43 200
    Этажей 2
    Санузлы 2
    Спальни 4
    Смотреть
    Ипотека и
    рассрочка
    Загородный дом Барн 80 кв.м
    Стоимость от:
    3 872 935
    Проект от: 30 150
    Этажей 1
    Санузлы 1
    Спальни 2
    Смотреть
    Ипотека и
    рассрочка
    Лесной — 183
    Стоимость от:
    12 241 460
    Проект от: 73 350
    Этажей 1
    Санузлы 2
    Спальни 3
    Смотреть
    Ипотека и
    рассрочка
    Проект двухэтажного дома РЛ-150
    Стоимость от:
    12 439 680
    Проект от: 77 400
    Этажей 2
    Санузлы 3
    Спальни 4
    Смотреть
    Ипотека и
    рассрочка
    Оптима 86-2
    Стоимость от:
    5 884 120
    Проект от: 38 700
    Этажей 1
    Санузлы 2
    Спальни 3
    Смотреть
    Ипотека и
    рассрочка
    Кирпичный дом 135 м² (В Услон)
    Стоимость от:
    10 140 900
    Проект от: 60 750
    Этажей 1
    Санузлы 1
    Спальни 3
    Смотреть

    Как узнать стоимость дома

    back
    Оставляете заявку
    Вы заполняете форму на сайте или звоните нам. Менеджер Лайвкрафт связывается с вами для уточнения деталей: тип дома, площадь, материалы, участок строительства.
    back
    Консультация и подбор решения
    Наш специалист помогает выбрать оптимальный тип дома и конструкцию с учётом бюджета, сроков и целей — будь то дом для постоянного проживания или дача.
    back
    Расчёт предварительной стоимости
    Инженер делает первичный расчёт стоимости строительства по вашим параметрам: фундамент, коробка, кровля, отделка. Вы получаете смету с разбивкой по этапам.
    back
    Корректировка и утверждение сметы
    При необходимости вносим изменения — например, замену материалов или сокращение этапов. После согласования формируется окончательная фиксированная смета.
    back
    Заключение договора и старт работ
    После утверждения сметы заключаем официальный договор с гарантией. Вы получаете прозрачный график и точную стоимость — без скрытых расходов.

    Заказать конусльтацию по:ДАВИНЧИ

    Фото 1 ДАВИНЧИ


      Наши
      контакты

      Дмитров
      Опорный проезд 28Б
      (индустриальный парк Ниагара)
      9:00 до 18:00

      Корзина