4.9
Рейтинг на основании 120 отзывов
Дмитров
Опорный проезд 28Б
(индустриальный парк Ниагара)
Бренд "Дмитров-Дело" c 2008 года на рынке строительства в Дмитрове
Звоните 9:00 до 18:00 8 (915) 055-33-61
Бренд "Дмитров-Дело" c 2008 года на рынке строительства в Дмитрове

ДЕЛЬТА

Стоимость проекта от:
50 850 ₽
БЕСПЛАТНО! ПРИ ЗАКАЗЕ СТРОИТЕЛЬСТВА
Стоимость строительства от:
8 490 460 ₽
Артикул ART-16573
Дата 26.12.2025
Архитектурный стиль Скандинавский
Количество надземных этажей 1
Круглогодичное проживание Да
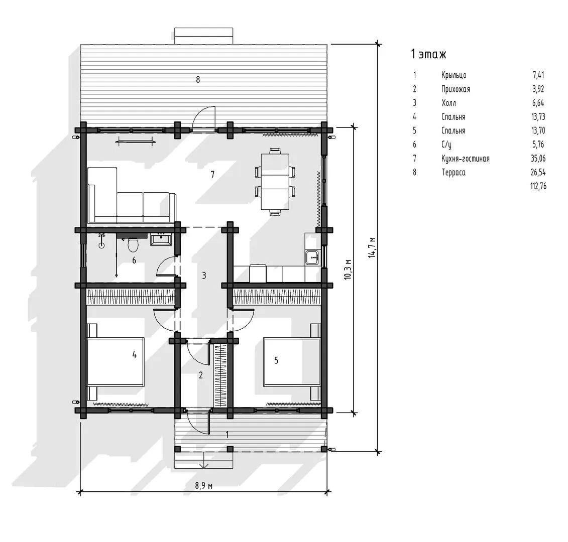
Площадь дома 113 м2
Санузлы 1
Спальни 2

Описание

Квартирный дом «ДЕЛЬТА» — это уютный одноэтажный дом, идеально подходящий для круглогодичного проживания. Его скандинавский интерьер создаёт ощущение простоты и светлости: светлые стены, естественные материалы и лаконичные линии подчёркивают воздушность пространства. Внутри каждый уголок продуман до мелочей: большие окна впускают мягкий дневной свет, а деревянные панели внешних стен из клеёного бруса сохраняют тепло и дарят тёплый ощущение природы даже в холодные дни. Отсутствие балконов и веранд, а также неприсоединённый к дому гараж, позволяют сосредоточиться на уюте и гармонии внутри. Вместо этого на территории предусмотрена просторная терраса, где можно наслаждаться видами на соседние дворы, устраивать барбекю или просто отдохнуть после долгого дня. Гладкая двускатная крыша не только добавляет внешнему облику элегантности, но и обеспечивает хорошую гидроизоляцию и вентиляцию, сохраняя внутреннюю часть в оптимальной температуре. Дом «ДЕЛЬТА» — это воплощение современной жизни в гармонии с природой: лёгкие, но прочные материалы, чистый скандинавский дизайн, и удобная планировка позволяют наслаждаться комфортом и спокойствием каждый день. Здесь вы найдёте идеальное сочетание функциональности, эстетики и уюта, которое превратит ваш дом в настоящий оазис уюта и вдохновения.

Характеристики дома

Архитектурный стиль
Автоматизированное регулирование параметров теплоносителя
Нет
Балконы/лоджии
Отсутствуют
Чердачное помещение
Нет
Датчики протечки воды
Нет
Эксплуатируемая или зеленая кровля
Нет
Электроснабжение
Индивидуальное
Газоснабжение
Индивидуальное
Изоляция воздушного шума
Нет
Камин
Нет
Класс энергоэффективности
-
Класс энергосбережения
-
Количество надземных этажей
1
Круглогодичное проживание
Да
Материал кровли
Металлочерепица
Материал перекрытий
Монолитные железобетонные
Материал внешних стен
Материал внутренних перегородок
Деревянные
Модульное строительство с конструкциями заводского изготовления
Нет
Объем надземной части
330 м3
Основной материал фасадов
Дерево
Отопление
Индивидуальное
Площадь дома
113 м2
Площадь застройки
126 м2
Подвальное помещение
Нет
Показатель компактности здания
-
Приборы учета тепловой энергии
Нет
Пристроенный гараж/крытая автостоянка
Нет
Противопожарная система
Нет
Санузлы
1
Совмещенная кухня-гостиная
Да
Спальни
2
Терраса
Да
Тип фундамента
Свайно-ростверковый
Тип кровли
Толщина внешних стен
200 мм
Толщина внутренних перегородок
200 мм
Улучшенные шумовые характеристики
Нет
Вентиляция
Естественная
Веранда
Нет
Водоотведение
Локальные очистные сооружения
Водоснабжение
Индивидуальное
Высота дома
5.2 м
Высота потолков
2.9 м

Планировка

Фасад дома

Александр

Закажите выезд инженера

Александр

Выездной инженер
Закажите выезд инженера для точной диагностики и профессиональной консультации по инженерным системам. Специалист приедет в удобное время, проведёт осмотр, рассчитает стоимость работ и подберёт оптимальные решения для вашего дома.


    Похожие проекты

    Ипотека и
    рассрочка
    Новый
    Стоимость от:
    8 048 480
    Проект от: 46 800
    Этажей 1
    Санузлы 1
    Спальни 3
    Смотреть
    Ипотека и
    рассрочка
    Вэллс-80
    Стоимость от:
    5 084 640
    Проект от: 32 400
    Этажей 1
    Санузлы 1
    Спальни 3
    Смотреть
    Ипотека и
    рассрочка
    Проект загородного дома NHD-149
    Стоимость от:
    10 498 800
    Проект от: 65 250
    Этажей 2
    Санузлы 2
    Спальни 4
    Смотреть
    Ипотека и
    рассрочка
    Загородный дом Д-173
    Стоимость от:
    8 695 500
    Проект от: 67 500
    Этажей 1
    Санузлы 2
    Спальни 3
    Смотреть
    Ипотека и
    рассрочка
    Одноэтажный жилой дом СВ-67
    Стоимость от:
    4 584 140
    Проект от: 30 150
    Этажей 1
    Санузлы 1
    Спальни 2
    Смотреть
    Ипотека и
    рассрочка
    Загородный дом АС-274
    Стоимость от:
    9 990 860
    Проект от: 59 850
    Этажей 1
    Санузлы 2
    Спальни 2
    Смотреть

    Как узнать стоимость дома

    back
    Оставляете заявку
    Вы заполняете форму на сайте или звоните нам. Менеджер Лайвкрафт связывается с вами для уточнения деталей: тип дома, площадь, материалы, участок строительства.
    back
    Консультация и подбор решения
    Наш специалист помогает выбрать оптимальный тип дома и конструкцию с учётом бюджета, сроков и целей — будь то дом для постоянного проживания или дача.
    back
    Расчёт предварительной стоимости
    Инженер делает первичный расчёт стоимости строительства по вашим параметрам: фундамент, коробка, кровля, отделка. Вы получаете смету с разбивкой по этапам.
    back
    Корректировка и утверждение сметы
    При необходимости вносим изменения — например, замену материалов или сокращение этапов. После согласования формируется окончательная фиксированная смета.
    back
    Заключение договора и старт работ
    После утверждения сметы заключаем официальный договор с гарантией. Вы получаете прозрачный график и точную стоимость — без скрытых расходов.

    Заказать конусльтацию по:ДЕЛЬТА

    Фото 1 ДЕЛЬТА


      Наши
      контакты

      Дмитров
      Опорный проезд 28Б
      (индустриальный парк Ниагара)
      9:00 до 18:00

      Корзина