4.9
Рейтинг на основании 120 отзывов
Дмитров
Опорный проезд 28Б
(индустриальный парк Ниагара)
Бренд "Дмитров-Дело" c 2008 года на рынке строительства в Дмитрове
Звоните 9:00 до 18:00 8 (915) 055-33-61
Бренд "Дмитров-Дело" c 2008 года на рынке строительства в Дмитрове

Деревянный дом Тим 84,2м2

Стоимость проекта от:
37 800 ₽
БЕСПЛАТНО! ПРИ ЗАКАЗЕ СТРОИТЕЛЬСТВА
Стоимость строительства от:
4 869 480 ₽
Артикул ART-13812
Дата 25.12.2025
Архитектурный стиль Скандинавский
Количество надземных этажей 1
Круглогодичное проживание Да
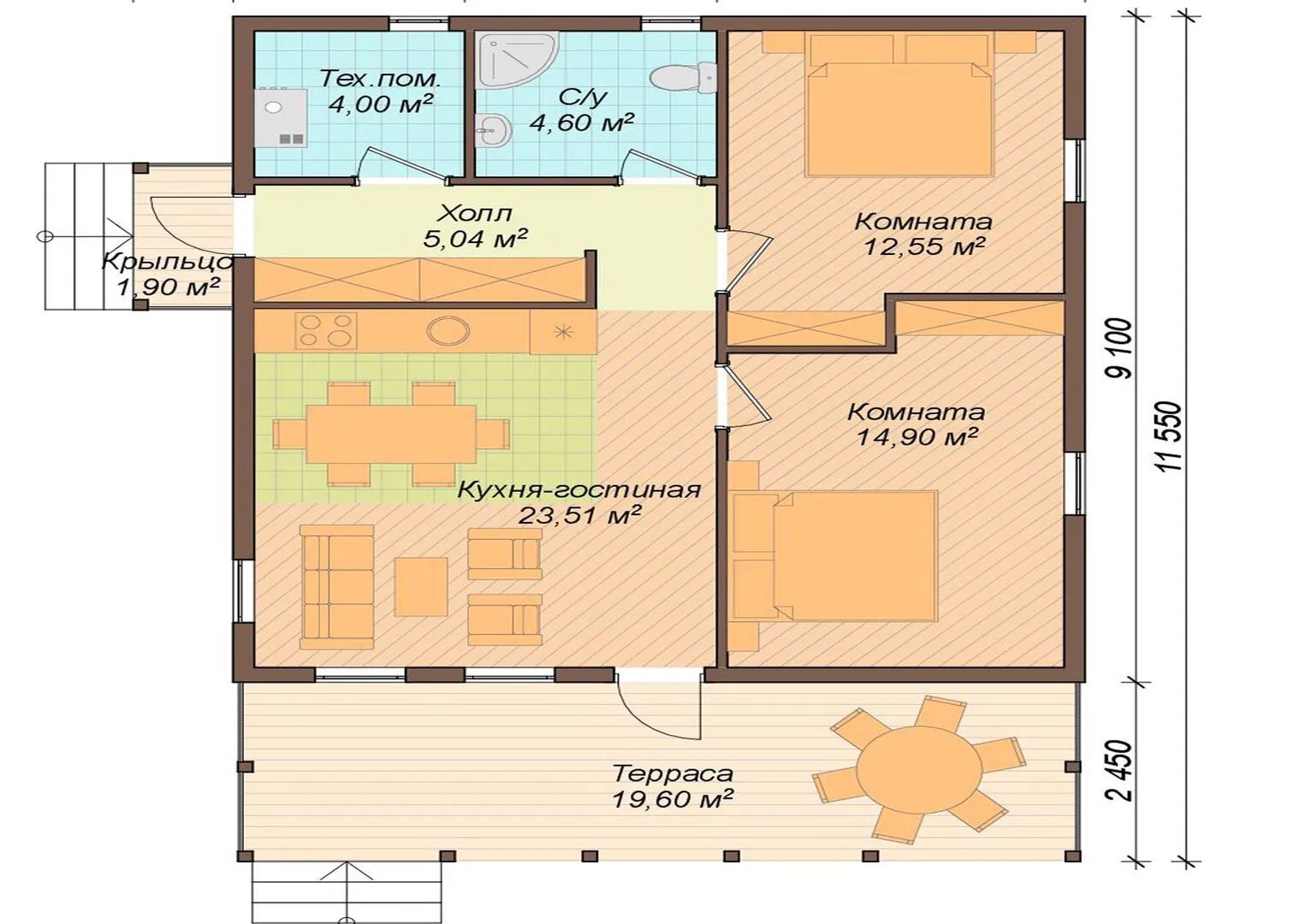
Площадь дома 84 м2
Санузлы 1
Спальни 2

Описание

**Уютный деревянный уголок в сердце природы** Этот неповторимый дом площадью 84,2 м² сочетает в себе простоту скандинавского дизайна и практичность, присущую современному быту. Он построен из высококачественного деревянного каркаса – материал, который сохраняет тепло зимой, отбрасывает летнюю жару и дарит естественное ощущение благополучия. Входные двери открывают просторную гостиную, где стеклянные стены впустит в помещение мягкий свет, а просторная открытая кухня приглашает к совместным кулинарным приключениям. Каждая из комнат пропитана натуральной атмосферой, а наличие крытой террасы позволяет вам наслаждаться свежим воздухом даже в дождливую погоду. **Комфорт круглый год – в стиле «сказка»** Круглогодичное проживание в этом доме стало возможным благодаря продуманной теплоизоляции и традиционной двускатной крыше, которая в зимние месяцы удерживает тепло внутри, а в летние – отводит его наружу. В доме отсутствуют балконы и лоджии, поэтому вы можете полностью сконцентрироваться на уютной атмосфере внутри. Внутреннее пространство – это свободный план, где каждое помещение легко превращается в гостиную, спальню, кабинет или детскую. Терракта с открытым видом на природу – это идеальное место для утреннего кофе и спокойных обедов на свежем воздухе. **Идеальное сочетание простоты и функциональности** Более того, отсутствие прицепных гаражей и чердачных помещений создают возможность для развития личного креативного пространства – от сада и садового уголка до небольшого хозяйственного участка. Прямо за домом открывается тишина, необходимая для полноценного отдыха и восстановления, а при этом вы всегда остаётесь в пределах досягаемости местных удобств. Этот дом – настоящий оазис для тех, кто ценит качество жизни, близость к природе и при этом хочет жить в гармонии со временем.

Характеристики дома

Архитектурный стиль
Автоматизированное регулирование параметров теплоносителя
Нет
Балконы/лоджии
Отсутствуют
Чердачное помещение
Нет
Датчики протечки воды
Нет
Эксплуатируемая или зеленая кровля
Нет
Электроснабжение
Индивидуальное
Газоснабжение
Не предусмотрено
Изоляция воздушного шума
Нет
Камин
Нет
Класс энергоэффективности
-
Класс энергосбережения
-
Количество надземных этажей
1
Круглогодичное проживание
Да
Материал кровли
Металлочерепица
Материал перекрытий
Деревянные
Материал внешних стен
Материал внутренних перегородок
Деревянные
Модульное строительство с конструкциями заводского изготовления
Нет
Объем надземной части
-
Основной материал фасадов
Сайдинг
Отопление
Не предусмотрено
Площадь дома
84 м2
Площадь застройки
93 м2
Подвальное помещение
Нет
Показатель компактности здания
-
Приборы учета тепловой энергии
Нет
Пристроенный гараж/крытая автостоянка
Нет
Противопожарная система
Нет
Санузлы
1
Совмещенная кухня-гостиная
Да
Спальни
2
Терраса
Да
Тип фундамента
Свайный
Тип кровли
Толщина внешних стен
200 мм
Толщина внутренних перегородок
100 мм
Улучшенные шумовые характеристики
Нет
Вентиляция
Естественная
Веранда
Нет
Водоотведение
Локальные очистные сооружения
Водоснабжение
Индивидуальное
Высота дома
5.3 м
Высота потолков
2.5 м

Планировка

Фасад дома

Александр

Закажите выезд инженера

Александр

Выездной инженер
Закажите выезд инженера для точной диагностики и профессиональной консультации по инженерным системам. Специалист приедет в удобное время, проведёт осмотр, рассчитает стоимость работ и подберёт оптимальные решения для вашего дома.


    Похожие проекты

    Ипотека и
    рассрочка
    Загородный дом с гаражом и просторной террасой CD11
    Стоимость от:
    9 520 500
    Проект от: 67 500
    Этажей 1
    Санузлы 1
    Спальни 2
    Смотреть
    Ипотека и
    рассрочка
    ONE_120
    Стоимость от:
    10 741 060
    Проект от: 64 350
    Этажей 1
    Санузлы 2
    Спальни 3
    Смотреть
    Ипотека и
    рассрочка
    Софья
    Стоимость от:
    9 071 480
    Проект от: 51 300
    Этажей 1
    Санузлы 1
    Спальни 3
    Смотреть
    Ипотека и
    рассрочка
    Жемчужный 90
    Стоимость от:
    6 915 040
    Проект от: 41 400
    Этажей 1
    Санузлы 2
    Спальни 3
    Смотреть
    Ипотека и
    рассрочка
    D174-1
    Стоимость от:
    11 457 600
    Проект от: 76 500
    Этажей 1
    Санузлы 2
    Спальни 3
    Смотреть
    Ипотека и
    рассрочка
    Дом тип №1 125 м.кв.
    Стоимость от:
    8 970 060
    Проект от: 55 350
    Этажей 1
    Санузлы 2
    Спальни 3
    Смотреть

    Как узнать стоимость дома

    back
    Оставляете заявку
    Вы заполняете форму на сайте или звоните нам. Менеджер Лайвкрафт связывается с вами для уточнения деталей: тип дома, площадь, материалы, участок строительства.
    back
    Консультация и подбор решения
    Наш специалист помогает выбрать оптимальный тип дома и конструкцию с учётом бюджета, сроков и целей — будь то дом для постоянного проживания или дача.
    back
    Расчёт предварительной стоимости
    Инженер делает первичный расчёт стоимости строительства по вашим параметрам: фундамент, коробка, кровля, отделка. Вы получаете смету с разбивкой по этапам.
    back
    Корректировка и утверждение сметы
    При необходимости вносим изменения — например, замену материалов или сокращение этапов. После согласования формируется окончательная фиксированная смета.
    back
    Заключение договора и старт работ
    После утверждения сметы заключаем официальный договор с гарантией. Вы получаете прозрачный график и точную стоимость — без скрытых расходов.

    Заказать конусльтацию по:Деревянный дом Тим 84,2м2

    Фото 1 Деревянный дом Тим 84,2м2


      Наши
      контакты

      Дмитров
      Опорный проезд 28Б
      (индустриальный парк Ниагара)
      9:00 до 18:00

      Корзина