4.9
Рейтинг на основании 120 отзывов
Дмитров
Опорный проезд 28Б
(индустриальный парк Ниагара)
Бренд "Дмитров-Дело" c 2008 года на рынке строительства в Дмитрове
Звоните 9:00 до 18:00 8 (915) 055-33-61
Бренд "Дмитров-Дело" c 2008 года на рынке строительства в Дмитрове

Диво 7 со свесами

Стоимость проекта от:
84 600 ₽
Стоимость строительства от:
14 116 960 ₽
Артикул ART-10172
Дата 25.12.2025
Архитектурный стиль Минимализм
Количество надземных этажей 1
Круглогодичное проживание Да
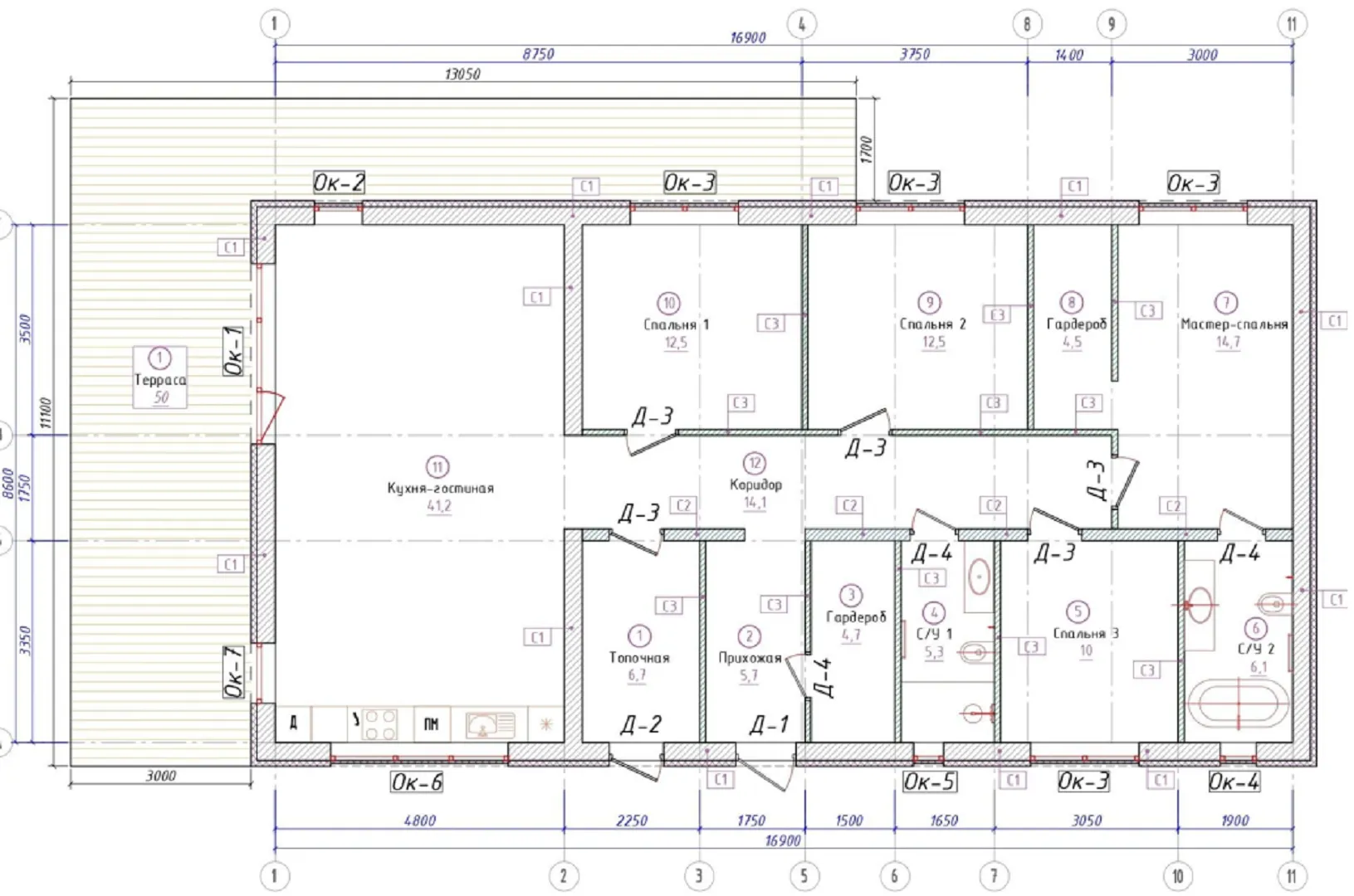
Площадь дома 188 м2
Санузлы 2
Спальни 4

Описание

Приветствуем вас в «Диве 7» – доме, где элегантность минимализма встречается с комфортом круглогодичного проживания. Здесь каждая деталь продумана до мелочей: от светлых газобетонных стен, создающих ощущение воздушного пространства, до аккуратной двускатной крыши, подчеркивающей современный стиль. Один надземный этаж позволяет вам наслаждаться лёгкой, но при этом вместительной планировкой, при которой каждый square метр работает на вас. Сбалансированный баланс между открытым пространством и уединённым оазисом – в этом и кроется особая привлекательность «Дива 7». Большая терраса открывается вдаль, приглашая к вечерним беседам и наблюдениям за звездным небом, а отсутствие балконов и веранд позволяет сконцентрироваться на гармоничном оформлении внутреннего убранства. Вне дома вы найдёте ухоженный ландшафт, а при необходимости – приватную автостоянку в окрестностях. «Диво 7» – это не просто квартира, а стиль жизни: уютный интервал, где каждый элемент от архитектурной простоты до продуманной проходимости создают атмосферу спокойствия и современного комфорта. Погрузитесь в мир, где минимальный экстерьер сочетается с максимальным удобством внутренней среды, и сделайте этот дом вашей новой оазисной точкой.

Характеристики дома

Архитектурный стиль
Минимализм
Автоматизированное регулирование параметров теплоносителя
Нет
Балконы/лоджии
Отсутствуют
Чердачное помещение
Нет
Датчики протечки воды
Нет
Эксплуатируемая или зеленая кровля
Нет
Электроснабжение
Центральное
Газоснабжение
Не предусмотрено
Изоляция воздушного шума
Нет
Камин
Нет
Класс энергоэффективности
-
Класс энергосбережения
-
Количество надземных этажей
1
Круглогодичное проживание
Да
Материал кровли
Металлочерепица
Материал перекрытий
Деревянные
Материал внешних стен
Газобетонные блоки
Материал внутренних перегородок
Блочные
Модульное строительство с конструкциями заводского изготовления
Нет
Объем надземной части
525 м3
Основной материал фасадов
Штукатурка
Отопление
Индивидуальное
Площадь дома
188 м2
Площадь застройки
188 м2
Подвальное помещение
Нет
Показатель компактности здания
-
Приборы учета тепловой энергии
Нет
Пристроенный гараж/крытая автостоянка
Нет
Противопожарная система
Нет
Санузлы
2
Совмещенная кухня-гостиная
Да
Спальни
4
Терраса
Да
Тип фундамента
Свайно-ростверковый
Тип кровли
Двускатная
Толщина внешних стен
300 мм
Толщина внутренних перегородок
100 мм
Улучшенные шумовые характеристики
Нет
Вентиляция
Принудительная
Веранда
Нет
Водоотведение
Локальные очистные сооружения
Водоснабжение
Индивидуальное
Высота дома
5 м
Высота потолков
2.7 м

Планировка

Фасад дома

Александр

Закажите выезд инженера

Александр

Выездной инженер
Закажите выезд инженера для точной диагностики и профессиональной консультации по инженерным системам. Специалист приедет в удобное время, проведёт осмотр, рассчитает стоимость работ и подберёт оптимальные решения для вашего дома.


    Похожие проекты

    Ипотека и
    рассрочка
    Дом «Йорк 145» в стиле барнхаус
    Стоимость от:
    8 694 600
    Проект от: 65 250
    Этажей 2
    Санузлы 2
    Спальни 3
    Смотреть
    Ипотека и
    рассрочка
    Загородный дом CRAFTDOM80
    Стоимость от:
    5 172 000
    Проект от: 36 000
    Этажей 2
    Санузлы 1
    Спальни 3
    Смотреть
    Ипотека и
    рассрочка
    Одноэтажный дом F-13751
    Стоимость от:
    8 605 960
    Проект от: 53 100
    Этажей 1
    Санузлы 2
    Спальни 3
    Смотреть
    Ипотека и
    рассрочка
    НД-ТП1-60
    Стоимость от:
    4 095 960
    Проект от: 26 100
    Этажей 1
    Санузлы 1
    Спальни 2
    Смотреть
    Ипотека и
    рассрочка
    Одноэтажный жилой дом
    Стоимость от:
    8 565 480
    Проект от: 51 300
    Этажей 1
    Санузлы 1
    Спальни 1
    Смотреть
    Ипотека и
    рассрочка
    Одноэтажный жилой дом Зевс Микро 79 кв.м.
    Стоимость от:
    5 939 780
    Проект от: 35 550
    Этажей 1
    Санузлы 1
    Спальни 3
    Смотреть

    Как узнать стоимость дома

    back
    Оставляете заявку
    Вы заполняете форму на сайте или звоните нам. Менеджер Лайвкрафт связывается с вами для уточнения деталей: тип дома, площадь, материалы, участок строительства.
    back
    Консультация и подбор решения
    Наш специалист помогает выбрать оптимальный тип дома и конструкцию с учётом бюджета, сроков и целей — будь то дом для постоянного проживания или дача.
    back
    Расчёт предварительной стоимости
    Инженер делает первичный расчёт стоимости строительства по вашим параметрам: фундамент, коробка, кровля, отделка. Вы получаете смету с разбивкой по этапам.
    back
    Корректировка и утверждение сметы
    При необходимости вносим изменения — например, замену материалов или сокращение этапов. После согласования формируется окончательная фиксированная смета.
    back
    Заключение договора и старт работ
    После утверждения сметы заключаем официальный договор с гарантией. Вы получаете прозрачный график и точную стоимость — без скрытых расходов.

    Заказать конусльтацию по:Диво 7 со свесами

    Фото 1 Диво 7 со свесами


      Наши
      контакты

      Дмитров
      Опорный проезд 28Б
      (индустриальный парк Ниагара)
      9:00 до 18:00

      Корзина