4.9
Рейтинг на основании 120 отзывов
Дмитров
Опорный проезд 28Б
(индустриальный парк Ниагара)
Бренд "Дмитров-Дело" c 2008 года на рынке строительства в Дмитрове
Звоните 9:00 до 18:00 8 (915) 055-33-61
Бренд "Дмитров-Дело" c 2008 года на рынке строительства в Дмитрове

ДК-308

Стоимость проекта от:
23 850 ₽
Стоимость строительства от:
3 110 460 ₽
Артикул ART-10097
Дата 25.12.2025
Архитектурный стиль Барнхаус
Количество надземных этажей 2
Круглогодичное проживание Да
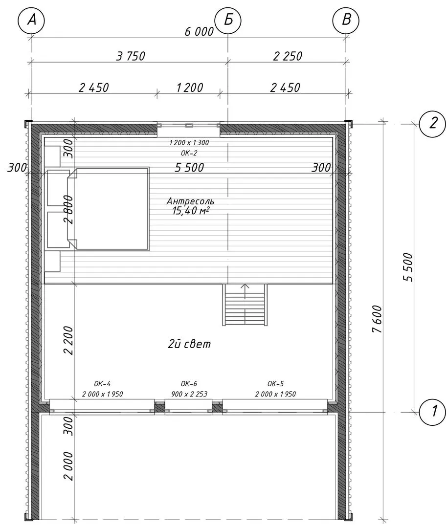
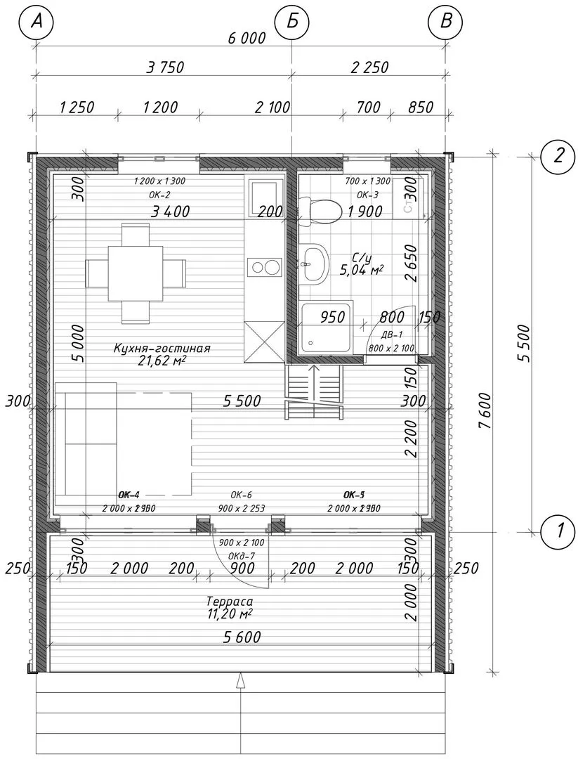
Площадь дома 53 м2
Санузлы 1
Спальни 1

Описание

Представляем вашему вниманию дом ДК‑308, воплощение уюта и простоты в стиле Barnhouse. Строительство на древесном каркасе придаёт этому дому не только надёжность, но и естественную теплоизоляцию, сохраняя тепло в холодные зимы и прохладу в летние дня. Круглогодичная обустроенность позволяет проживать здесь всё время года, наслаждаясь комфортом без лишних забот. Эта двухэтажная резиденция сочетает традиционную простоту с современными удобствами. Просторные комнаты, открытые планировки и большие окна создают атмосферу свободы и света, а два уровня дают возможность разделить активную и спокойную зоны. Холодный двускатный кровельный элемент придаёт дому характерный силуэт, а деревянные фасады добавляют нотку уюта, характерную для загородных домов. Терраса передает идеальный баланс городской жизни и природы: здесь можно заварить кофе, устроить барбекю или просто наблюдать за рассветом. Отсутствие балконов и веранд не помешает вам почувствовать связь с окружающей природой – всё, что нужно, это широкий открытый дворик и спокойная атмосфера Barnhouse. Насладитесь атмосферой уюта, простоты и беззаботного отдыха – дом ДК‑308 ждёт именно вас.

Характеристики дома

Архитектурный стиль
Барнхаус
Автоматизированное регулирование параметров теплоносителя
Нет
Балконы/лоджии
Отсутствуют
Чердачное помещение
Нет
Датчики протечки воды
Нет
Эксплуатируемая или зеленая кровля
Нет
Электроснабжение
Индивидуальное
Газоснабжение
Не предусмотрено
Изоляция воздушного шума
Нет
Камин
Нет
Класс энергоэффективности
-
Класс энергосбережения
-
Количество надземных этажей
2
Круглогодичное проживание
Да
Материал кровли
Металлические листовые гофрированные профили
Материал перекрытий
Деревянные
Материал внешних стен
Деревянные каркасные
Материал внутренних перегородок
Деревянные
Модульное строительство с конструкциями заводского изготовления
Нет
Объем надземной части
-
Основной материал фасадов
Дерево
Отопление
Индивидуальное
Площадь дома
53 м2
Площадь застройки
46 м2
Подвальное помещение
Нет
Показатель компактности здания
-
Приборы учета тепловой энергии
Нет
Пристроенный гараж/крытая автостоянка
Нет
Противопожарная система
Нет
Санузлы
1
Совмещенная кухня-гостиная
Да
Спальни
1
Терраса
Да
Тип фундамента
Свайно-винтовой
Тип кровли
Двускатная
Толщина внешних стен
300 мм
Толщина внутренних перегородок
200 мм
Улучшенные шумовые характеристики
Нет
Вентиляция
Естественная
Веранда
Нет
Водоотведение
Локальные очистные сооружения
Водоснабжение
Индивидуальное
Высота дома
5.9 м
Высота потолков
2.3 м

Планировка

Фасад дома

Александр

Закажите выезд инженера

Александр

Выездной инженер
Закажите выезд инженера для точной диагностики и профессиональной консультации по инженерным системам. Специалист приедет в удобное время, проведёт осмотр, рассчитает стоимость работ и подберёт оптимальные решения для вашего дома.


    Похожие проекты

    Ипотека и
    рассрочка
    «Индивидуальный жилой дом 24-08-08»
    Стоимость от:
    6 203 890
    Проект от: 44 100
    Этажей 1
    Санузлы 1
    Спальни 2
    Смотреть
    Ипотека и
    рассрочка
    105
    Стоимость от:
    8 640 500
    Проект от: 51 750
    Этажей 1
    Санузлы 2
    Спальни 3
    Смотреть
    Ипотека и
    рассрочка
    ИТЭМ 2/2024
    Стоимость от:
    9 406 980
    Проект от: 58 050
    Этажей 1
    Санузлы 1
    Спальни 3
    Смотреть
    Ипотека и
    рассрочка
    Загородный дом АС-275
    Стоимость от:
    10 755 360
    Проект от: 69 300
    Этажей 2
    Санузлы 2
    Спальни 3
    Смотреть
    Ипотека и
    рассрочка
    Загородный дом АС-243
    Стоимость от:
    12 429 120
    Проект от: 79 200
    Этажей 1
    Санузлы 2
    Спальни 3
    Смотреть
    Ипотека и
    рассрочка
    Семейный 3
    Стоимость от:
    8 277 280
    Проект от: 46 800
    Этажей 1
    Санузлы 1
    Спальни 3
    Смотреть

    Как узнать стоимость дома

    back
    Оставляете заявку
    Вы заполняете форму на сайте или звоните нам. Менеджер Лайвкрафт связывается с вами для уточнения деталей: тип дома, площадь, материалы, участок строительства.
    back
    Консультация и подбор решения
    Наш специалист помогает выбрать оптимальный тип дома и конструкцию с учётом бюджета, сроков и целей — будь то дом для постоянного проживания или дача.
    back
    Расчёт предварительной стоимости
    Инженер делает первичный расчёт стоимости строительства по вашим параметрам: фундамент, коробка, кровля, отделка. Вы получаете смету с разбивкой по этапам.
    back
    Корректировка и утверждение сметы
    При необходимости вносим изменения — например, замену материалов или сокращение этапов. После согласования формируется окончательная фиксированная смета.
    back
    Заключение договора и старт работ
    После утверждения сметы заключаем официальный договор с гарантией. Вы получаете прозрачный график и точную стоимость — без скрытых расходов.

    Заказать конусльтацию по:ДК-308

    Фото 1 ДК-308


      Наши
      контакты

      Дмитров
      Опорный проезд 28Б
      (индустриальный парк Ниагара)
      9:00 до 18:00

      Корзина