4.9
Рейтинг на основании 120 отзывов
Дмитров
Опорный проезд 28Б
(индустриальный парк Ниагара)
Бренд "Дмитров-Дело" c 2008 года на рынке строительства в Дмитрове
Звоните 9:00 до 18:00 8 (915) 055-33-61
Бренд "Дмитров-Дело" c 2008 года на рынке строительства в Дмитрове

ДКМ — 44 «Весна», эконом

Стоимость проекта от:
38 250 ₽
БЕСПЛАТНО! ПРИ ЗАКАЗЕ СТРОИТЕЛЬСТВА
Стоимость строительства от:
4 995 000 ₽
Артикул ART-14587
Дата 25.12.2025
Архитектурный стиль Скандинавский
Количество надземных этажей 2
Круглогодичное проживание Да
Площадь дома 85 м2
Санузлы 1
Спальни 4

Описание

Добро пожаловать в ДКМ‑44 «Весна» – уютный уголок в стиле скандинавской простоты, где каждая деталь продумана до совершенства. В этом экономическом доме 2 надземных этажа объединяются в гармоничную композицию, создавая ощущение простора и тепла. Гибридный деревянный каркас и ровные, двойные крыши придают зданию современный, но при этом традиционный вид, подчёркивая связь с природой. Круглогодичное проживание здесь становится не просто возможностью, а настоящим комфортом: тепло сохраняется внутри, а свежесть ветра проникает только в нужные зоны, благодаря качественной теплоизоляции. Откройте для себя просторную комнату в главном вестибюле, где вам будет предложено расслабиться после трудового дня. Утренние пробуждения в мягком, естественном свете превратятся в ритуал. На первом этаже вы найдёте гостиную, где из окон открывается живописный вид на живописные ландшафты и тихие тропинками проходящие улицы. Кухня, выполненная как настоящий шедевр, оснащена всеми необходимыми удобствами, чтобы вы могли готовить свои любимые блюда без хлопот. Вечерними часами можно наслаждаться ароматом свежего кофе, смотря на мягкий огонь в камине, и оставлять дневные заботы за спиной. Среди особенностей нашего дома особое внимание уделяется террасе, где вы сможете проводить время на свежем воздухе, в окружении природы. Теплый, ровный скандинавский стиль делает каждый элемент дома функциональным и эстетичным. Здесь царит ощущение уюта и уединения, но при этом связь с природой остается живой и яркой. Если вы ищете идеальное сочетание практичности и эстетики, ДКМ‑44 «Весна» подарит вам всё, что нужно, чтобы создать свой собственный идеальный дом. Позвоните сейчас – и позвольте себе начать новый, яркий этап вашей жизни.

Характеристики дома

Архитектурный стиль
Автоматизированное регулирование параметров теплоносителя
Нет
Балконы/лоджии
Отсутствуют
Чердачное помещение
Нет
Датчики протечки воды
Нет
Эксплуатируемая или зеленая кровля
Нет
Электроснабжение
Индивидуальное
Газоснабжение
Не предусмотрено
Изоляция воздушного шума
Нет
Камин
Нет
Класс энергоэффективности
-
Класс энергосбережения
-
Количество надземных этажей
2
Круглогодичное проживание
Да
Материал кровли
Металлические рулонные или листовые материалы
Материал перекрытий
Деревянные
Материал внешних стен
Материал внутренних перегородок
Деревянные
Модульное строительство с конструкциями заводского изготовления
Нет
Объем надземной части
378 м3
Основной материал фасадов
Дерево
Отопление
Индивидуальное
Площадь дома
85 м2
Площадь застройки
68 м2
Подвальное помещение
Нет
Показатель компактности здания
-
Приборы учета тепловой энергии
Нет
Пристроенный гараж/крытая автостоянка
Нет
Противопожарная система
Нет
Санузлы
1
Совмещенная кухня-гостиная
Да
Спальни
4
Терраса
Да
Тип фундамента
Свайный
Тип кровли
Толщина внешних стен
220 мм
Толщина внутренних перегородок
166 мм
Улучшенные шумовые характеристики
Нет
Вентиляция
Естественная
Веранда
Нет
Водоотведение
Локальные очистные сооружения
Водоснабжение
Индивидуальное
Высота дома
5.9 м
Высота потолков
2.5 м

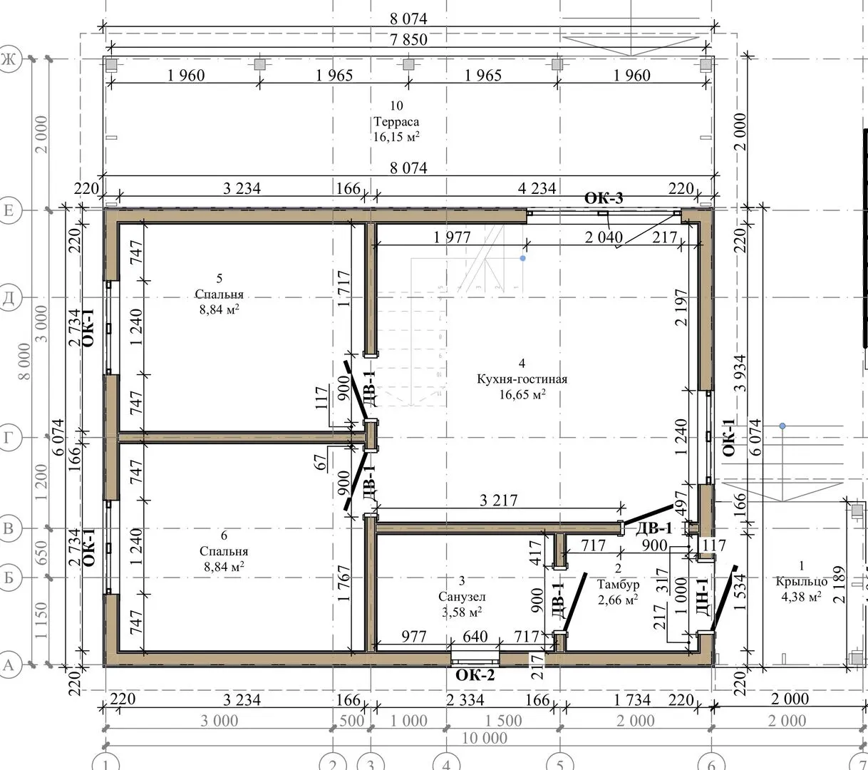
Планировка

Фасад дома

Александр

Закажите выезд инженера

Александр

Выездной инженер
Закажите выезд инженера для точной диагностики и профессиональной консультации по инженерным системам. Специалист приедет в удобное время, проведёт осмотр, рассчитает стоимость работ и подберёт оптимальные решения для вашего дома.


    Похожие проекты

    Ипотека и
    рассрочка
    Одноэтажный дом Fixplans — 1052
    Стоимость от:
    6 991 380
    Проект от: 44 550
    Этажей 1
    Санузлы 2
    Спальни 3
    Смотреть
    Ипотека и
    рассрочка
    Дом с Умом 80
    Стоимость от:
    5 336 760
    Проект от: 35 100
    Этажей 1
    Санузлы 1
    Спальни 2
    Смотреть
    Ипотека и
    рассрочка
    Русский дом
    Стоимость от:
    13 094 400
    Проект от: 92 250
    Этажей 2
    Санузлы 3
    Спальни 4
    Смотреть
    Ипотека и
    рассрочка
    Одноэтажный дом F-7766
    Стоимость от:
    7 894 040
    Проект от: 45 900
    Этажей 1
    Санузлы 1
    Спальни 2
    Смотреть
    Ипотека и
    рассрочка
    Одноэтажный загородный дом
    Стоимость от:
    246 840
    Проект от: 45 900
    Этажей 1
    Санузлы 1
    Спальни 2
    Смотреть
    Ипотека и
    рассрочка
    Каркасный дом в стиле барнхаус 8х13
    Стоимость от:
    5 130 840
    Проект от: 41 400
    Этажей 1
    Санузлы 1
    Спальни 3
    Смотреть

    Как узнать стоимость дома

    back
    Оставляете заявку
    Вы заполняете форму на сайте или звоните нам. Менеджер Лайвкрафт связывается с вами для уточнения деталей: тип дома, площадь, материалы, участок строительства.
    back
    Консультация и подбор решения
    Наш специалист помогает выбрать оптимальный тип дома и конструкцию с учётом бюджета, сроков и целей — будь то дом для постоянного проживания или дача.
    back
    Расчёт предварительной стоимости
    Инженер делает первичный расчёт стоимости строительства по вашим параметрам: фундамент, коробка, кровля, отделка. Вы получаете смету с разбивкой по этапам.
    back
    Корректировка и утверждение сметы
    При необходимости вносим изменения — например, замену материалов или сокращение этапов. После согласования формируется окончательная фиксированная смета.
    back
    Заключение договора и старт работ
    После утверждения сметы заключаем официальный договор с гарантией. Вы получаете прозрачный график и точную стоимость — без скрытых расходов.

    Заказать конусльтацию по:ДКМ — 44 «Весна», эконом

    Фото 1 ДКМ — 44 «Весна», эконом


      Наши
      контакты

      Дмитров
      Опорный проезд 28Б
      (индустриальный парк Ниагара)
      9:00 до 18:00

      Корзина