4.9
Рейтинг на основании 120 отзывов
Дмитров
Опорный проезд 28Б
(индустриальный парк Ниагара)
Бренд "Дмитров-Дело" c 2008 года на рынке строительства в Дмитрове
Звоните 9:00 до 18:00 8 (915) 055-33-61
Бренд "Дмитров-Дело" c 2008 года на рынке строительства в Дмитрове

Добродом -130

Стоимость проекта от:
82 800 ₽
Стоимость строительства от:
11 525 760 ₽
Артикул ART-10523
Дата 25.12.2025
Архитектурный стиль Шале
Количество надземных этажей 2
Круглогодичное проживание Да
Площадь дома 184 м2
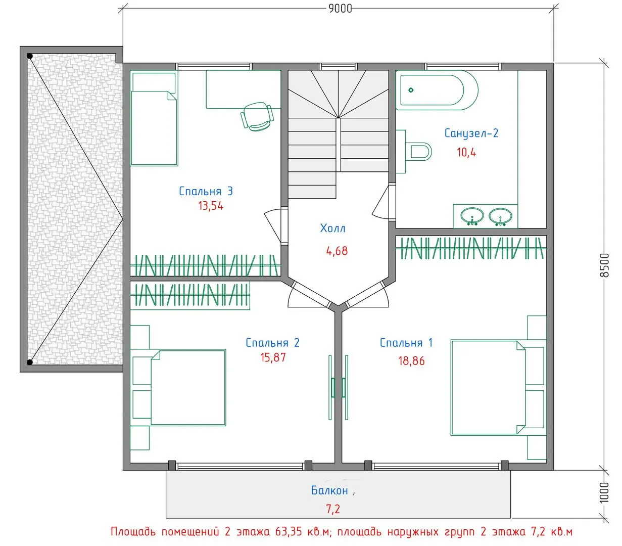
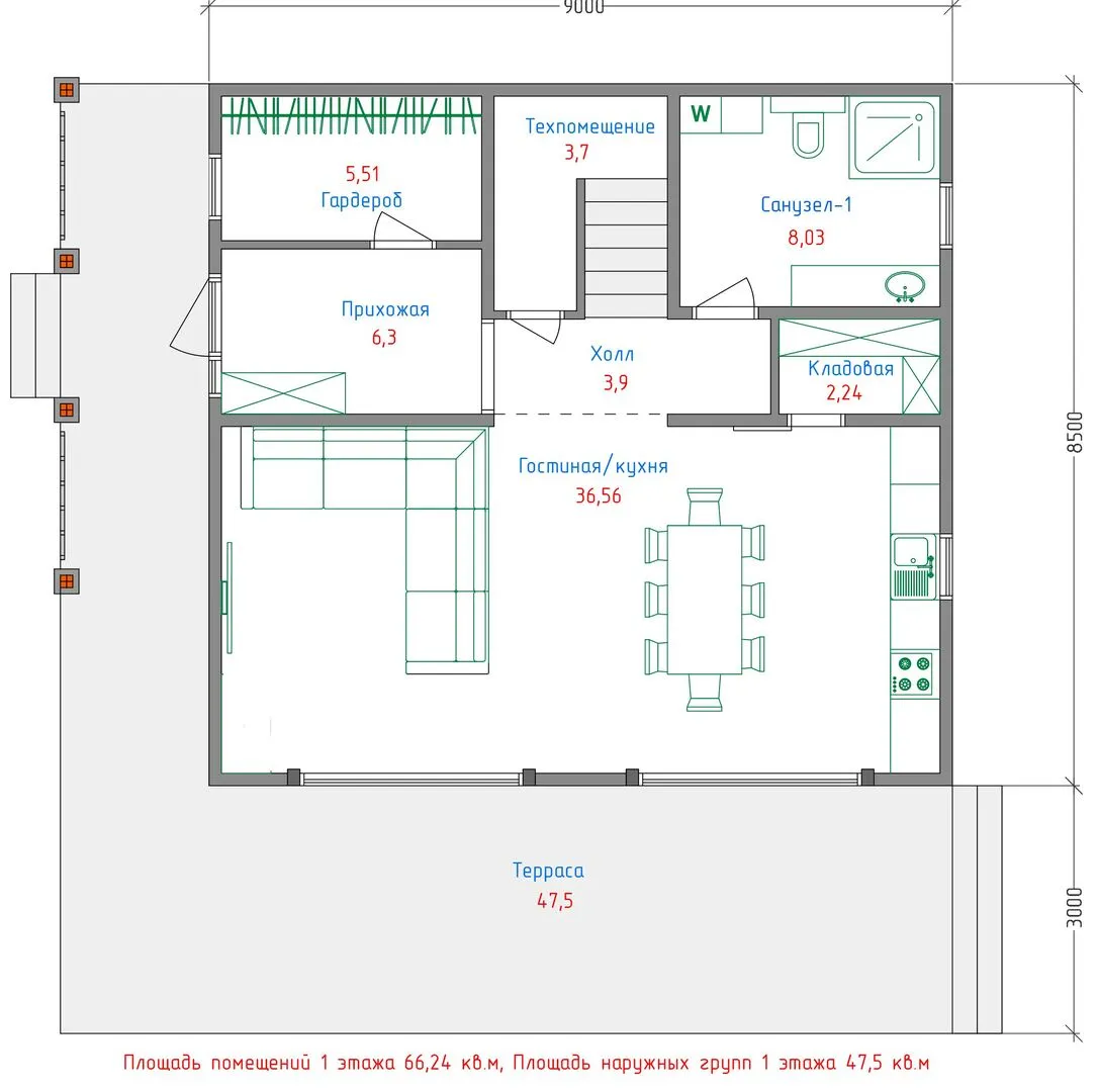
Санузлы 2
Спальни 3

Описание

Добродом № 130 – это уютный шале, где каждый уголок пропитан теплом и вдохновением природы. Дом раскрывает два надземных этажа, оформленных в традиционном шале‑стиле с элегантной двускатной кровлей, придавая ему величественность и одновременно гармонию с лесной округой. Круглогодичное проживание здесь становится реальностью благодаря продуманной теплоизоляции и древесному каркасу, сочетающему природный материалность с современным комфортом. На первом этаже открывается светлая гостиная с открытой камином, которая плавно переходит во внутренний двор и просторную террасу, где можно наслаждаться восходами и закатами без лишних помех. Вторая этая, уединенный «бытовой» блок, хранит в себе спальни с большим окном на лес, а также балкон/лоджия, где каждый день начинается с ароматного кофе и свежего лесного воздуха. Отсутствие гаража и прибрежных сооружений делает пространство более свободным, а отсутствие чердака позволяет сохранять чистую, воздушную атмосферу. Этот дом – идеальная сцена для тех, кто ищет гармоничные сочетания традиций и современности, где каждый материал и форма разрабатываются с любовью к деталям. Добродом № 130 приглашает вас стать частью живой истории, в которой тепло и уют встречаются с роскошью современного жизненного комфорта.

Характеристики дома

Архитектурный стиль
Шале
Автоматизированное регулирование параметров теплоносителя
Нет
Балконы/лоджии
1
Чердачное помещение
Нет
Датчики протечки воды
Нет
Эксплуатируемая или зеленая кровля
Нет
Электроснабжение
Центральное
Газоснабжение
Не предусмотрено
Изоляция воздушного шума
Да
Камин
Нет
Класс энергоэффективности
B
Класс энергосбережения
A
Количество надземных этажей
2
Круглогодичное проживание
Да
Материал кровли
Битумная черепица
Материал перекрытий
Деревянные
Материал внешних стен
Деревянные каркасные
Материал внутренних перегородок
Деревянные
Модульное строительство с конструкциями заводского изготовления
Нет
Объем надземной части
511 м3
Основной материал фасадов
Сайдинг
Отопление
Индивидуальное
Площадь дома
184 м2
Площадь застройки
76 м2
Подвальное помещение
Нет
Показатель компактности здания
0.92
Приборы учета тепловой энергии
Нет
Пристроенный гараж/крытая автостоянка
Нет
Противопожарная система
Нет
Санузлы
2
Совмещенная кухня-гостиная
Да
Спальни
3
Терраса
Да
Тип фундамента
Плитный
Тип кровли
Двускатная
Толщина внешних стен
150 мм
Толщина внутренних перегородок
150 мм
Улучшенные шумовые характеристики
Да
Вентиляция
Естественная
Веранда
Нет
Водоотведение
Локальные очистные сооружения
Водоснабжение
Центральное
Высота дома
7.25 м
Высота потолков
3 м

Планировка

Фасад дома

Александр

Закажите выезд инженера

Александр

Выездной инженер
Закажите выезд инженера для точной диагностики и профессиональной консультации по инженерным системам. Специалист приедет в удобное время, проведёт осмотр, рассчитает стоимость работ и подберёт оптимальные решения для вашего дома.


    Похожие проекты

    Ипотека и
    рассрочка
    Хельсинки
    Стоимость от:
    4 941 640
    Проект от: 27 900
    Этажей 1
    Санузлы 1
    Спальни 2
    Смотреть
    Ипотека и
    рассрочка
    Дом с широким остеклением и деревянными элементами отделки S3-122-1
    Стоимость от:
    12 197 520
    Проект от: 73 350
    Этажей 2
    Санузлы 3
    Спальни 3
    Смотреть
    Ипотека и
    рассрочка
    Дом №11
    Стоимость от:
    7 899 120
    Проект от: 50 850
    Этажей 2
    Санузлы 2
    Спальни 5
    Смотреть
    Ипотека и
    рассрочка
    Проект дома КС-28
    Стоимость от:
    12 708 000
    Проект от: 76 500
    Этажей 2
    Санузлы 2
    Спальни 4
    Смотреть
    Ипотека и
    рассрочка
    Модульный дом NovoDacha 3.3
    Стоимость от:
    4 859 855
    Проект от: 40 950
    Этажей 1
    Санузлы 1
    Спальни 2
    Смотреть
    Ипотека и
    рассрочка
    Варяг
    Стоимость от:
    7 016 280
    Проект от: 52 650
    Этажей 2
    Санузлы 2
    Спальни 3
    Смотреть

    Как узнать стоимость дома

    back
    Оставляете заявку
    Вы заполняете форму на сайте или звоните нам. Менеджер Лайвкрафт связывается с вами для уточнения деталей: тип дома, площадь, материалы, участок строительства.
    back
    Консультация и подбор решения
    Наш специалист помогает выбрать оптимальный тип дома и конструкцию с учётом бюджета, сроков и целей — будь то дом для постоянного проживания или дача.
    back
    Расчёт предварительной стоимости
    Инженер делает первичный расчёт стоимости строительства по вашим параметрам: фундамент, коробка, кровля, отделка. Вы получаете смету с разбивкой по этапам.
    back
    Корректировка и утверждение сметы
    При необходимости вносим изменения — например, замену материалов или сокращение этапов. После согласования формируется окончательная фиксированная смета.
    back
    Заключение договора и старт работ
    После утверждения сметы заключаем официальный договор с гарантией. Вы получаете прозрачный график и точную стоимость — без скрытых расходов.

    Заказать конусльтацию по:Добродом -130

    Фото 1 Добродом -130


      Наши
      контакты

      Дмитров
      Опорный проезд 28Б
      (индустриальный парк Ниагара)
      9:00 до 18:00

      Корзина