4.9
Рейтинг на основании 120 отзывов
Дмитров
Опорный проезд 28Б
(индустриальный парк Ниагара)
Бренд "Дмитров-Дело" c 2008 года на рынке строительства в Дмитрове
Звоните 9:00 до 18:00 8 (915) 055-33-61
Бренд "Дмитров-Дело" c 2008 года на рынке строительства в Дмитрове

Дом 140 кв.м.

Стоимость проекта от:
63 000 ₽
БЕСПЛАТНО! ПРИ ЗАКАЗЕ СТРОИТЕЛЬСТВА
Стоимость строительства от:
10 516 000 ₽
Артикул ART-19075
Дата 26.12.2025
Архитектурный стиль Классический
Количество надземных этажей 1
Круглогодичное проживание Да
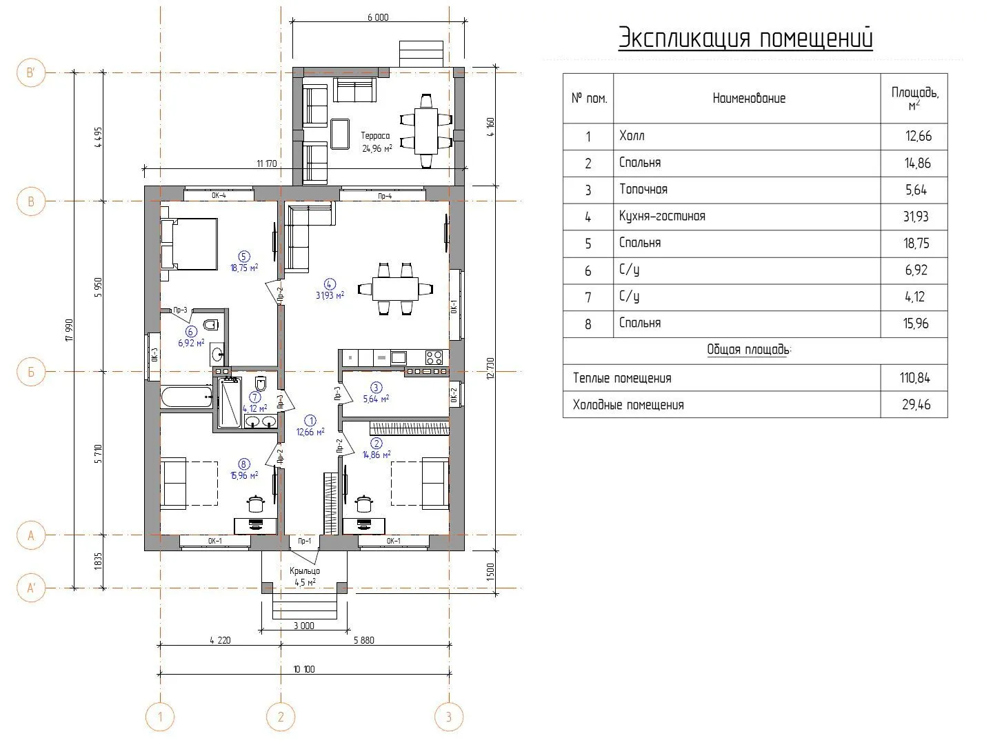
Площадь дома 140 м2
Санузлы 2
Спальни 3

Описание

Приглашаем Вас познакомиться с уютным одноэтажным домом площадью 140 м², выполненным в классическом стиле. Он создан с мыслью о круглогодичном проживании: просторная планировка, светлые и гармоничные интерьеры, а также высококачественные материалы — керамический блок внешних стен и проченная четырёхскатная (вальмовая) крыша, обеспечивающие изоляцию и долговечность. Величественная симметрия фасада, аккуратные окна и ровная линия крыши создают образ надёжного и одновременно стильного дома. Внутри Вас ожидает просторный и функциональный интерьер: от открытого кухни до уютной зоны отдыха, где каждый гость чувствует себя как дома. Вместе с большими окнами и прямой световой планировкой, дом предлагает мягкую и тёплую атмосферу. Придерживая классическую стилистику, мы сделали ставку на простоту и функциональность: изящные детали, строгие линии и натуральные материалы создают ощущение элегантности и уюта, подходя как для семейного проживания, так и для современных активных стилей жизни. И, конечно, не менее важно — открытая терраса, где можно расслабиться после долгого дня, устроить семейный барбекю или просто наслаждаться свежим воздухом. Это дополнительное пространство, которое превращает обычный дом в настоящий оазис комфорта. Если Вы ищете место, где будет ощущаться классика и уют, где каждая деталь продумана, этот дом станет идеальным выбором для Вас и Вашей семьи. Ваша мечта о комфортном и при этом элегантном доме уже здесь!

Характеристики дома

Архитектурный стиль
Автоматизированное регулирование параметров теплоносителя
Нет
Балконы/лоджии
Отсутствуют
Чердачное помещение
Нет
Датчики протечки воды
Нет
Эксплуатируемая или зеленая кровля
Нет
Электроснабжение
Центральное
Газоснабжение
Центральное
Изоляция воздушного шума
Нет
Камин
Нет
Класс энергоэффективности
-
Класс энергосбережения
-
Количество надземных этажей
1
Круглогодичное проживание
Да
Материал кровли
Металлочерепица
Материал перекрытий
Деревянные
Материал внешних стен
Материал внутренних перегородок
Пенобетонные
Модульное строительство с конструкциями заводского изготовления
Нет
Объем надземной части
592 м3
Основной материал фасадов
Облицовочный кирпич
Отопление
Индивидуальное
Площадь дома
140 м2
Площадь застройки
271 м2
Подвальное помещение
Нет
Показатель компактности здания
-
Приборы учета тепловой энергии
Нет
Пристроенный гараж/крытая автостоянка
Нет
Противопожарная система
Нет
Санузлы
2
Совмещенная кухня-гостиная
Да
Спальни
3
Терраса
Да
Тип фундамента
Свайно-ростверковый
Толщина внешних стен
500 мм
Толщина внутренних перегородок
250 мм
Улучшенные шумовые характеристики
Нет
Вентиляция
Естественная
Веранда
Нет
Водоотведение
Локальные очистные сооружения
Водоснабжение
Центральное
Высота дома
5.92 м
Высота потолков
2.95 м

Планировка

Фасад дома

Александр

Закажите выезд инженера

Александр

Выездной инженер
Закажите выезд инженера для точной диагностики и профессиональной консультации по инженерным системам. Специалист приедет в удобное время, проведёт осмотр, рассчитает стоимость работ и подберёт оптимальные решения для вашего дома.


    Похожие проекты

    Ипотека и
    рассрочка
    Загородный дом «Мурманск»
    Стоимость от:
    9 174 120
    Проект от: 68 850
    Этажей 2
    Санузлы 2
    Спальни 3
    Смотреть
    Ипотека и
    рассрочка
    Одноэтажный дом с панорамными окнами КП-218
    Стоимость от:
    6 727 820
    Проект от: 47 700
    Этажей 1
    Санузлы 1
    Спальни 4
    Смотреть
    Ипотека и
    рассрочка
    Дом «Сканди» — 62, 89
    Стоимость от:
    3 798 740
    Проект от: 27 900
    Этажей 1
    Санузлы 1
    Спальни 2
    Смотреть
    Ипотека и
    рассрочка
    Каркасный зимний дом БН-1 «комплектация Зима+»
    Стоимость от:
    4 350 060
    Проект от: 35 100
    Этажей 1
    Санузлы 1
    Спальни 2
    Смотреть
    Ипотека и
    рассрочка
    Дом с мансардным этажом «Босбер 2.0»
    Стоимость от:
    8 457 840
    Проект от: 54 450
    Этажей 2
    Санузлы 2
    Спальни 5
    Смотреть
    Ипотека и
    рассрочка
    Деревянный дом Барнхаус 74
    Стоимость от:
    4 126 980
    Проект от: 33 300
    Этажей 1
    Санузлы 1
    Спальни 2
    Смотреть

    Как узнать стоимость дома

    back
    Оставляете заявку
    Вы заполняете форму на сайте или звоните нам. Менеджер Лайвкрафт связывается с вами для уточнения деталей: тип дома, площадь, материалы, участок строительства.
    back
    Консультация и подбор решения
    Наш специалист помогает выбрать оптимальный тип дома и конструкцию с учётом бюджета, сроков и целей — будь то дом для постоянного проживания или дача.
    back
    Расчёт предварительной стоимости
    Инженер делает первичный расчёт стоимости строительства по вашим параметрам: фундамент, коробка, кровля, отделка. Вы получаете смету с разбивкой по этапам.
    back
    Корректировка и утверждение сметы
    При необходимости вносим изменения — например, замену материалов или сокращение этапов. После согласования формируется окончательная фиксированная смета.
    back
    Заключение договора и старт работ
    После утверждения сметы заключаем официальный договор с гарантией. Вы получаете прозрачный график и точную стоимость — без скрытых расходов.

    Заказать конусльтацию по:Дом 140 кв.м.

    Фото 1 Дом 140 кв.м.


      Наши
      контакты

      Дмитров
      Опорный проезд 28Б
      (индустриальный парк Ниагара)
      9:00 до 18:00

      Корзина