4.9
Рейтинг на основании 120 отзывов
Дмитров
Опорный проезд 28Б
(индустриальный парк Ниагара)
Бренд "Дмитров-Дело" c 2008 года на рынке строительства в Дмитрове
Звоните 9:00 до 18:00 8 (915) 055-33-61
Бренд "Дмитров-Дело" c 2008 года на рынке строительства в Дмитрове

Дом 20

Стоимость проекта от:
38 250 ₽
БЕСПЛАТНО! ПРИ ЗАКАЗЕ СТРОИТЕЛЬСТВА
Стоимость строительства от:
6 202 900 ₽
Артикул ART-18937
Дата 26.12.2025
Архитектурный стиль Классический
Количество надземных этажей 1
Круглогодичное проживание Да
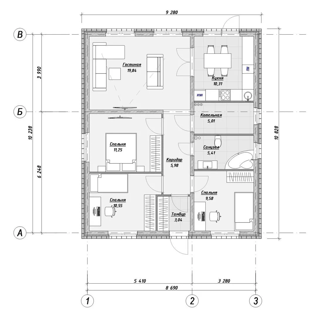
Площадь дома 85 м2
Санузлы 1
Спальни 3

Описание

**Дом 20** – это чистый классический шедевр, созданный с мыслью о комфорте и длительности. На одном надземном этаже располагается светлое, просторное пространство, где каждая деталь будто приглашает вас расслабиться. Стены, возведённые из керамзитобетонных блоков, гарантируют тепло в зимний период и прохладу летом, а крепкая конструкция обеспечивает спокойствие и безопасность в любой погоде. Четырехскатная (вальмовая) крыша добавляет дому элегантности и защищает от непогоды, создавая ощущение надежного укрытия для вашей семьи. Построенный для круглогодичного проживания, **Дом 20** воплощает в себе уравновешенность и практичность. Классический фасад без балконов, лоджий и веранд подчёркивает строгую линию и изысканность архитектурного стиля, при этом освобождая пространство для уютных открытых комнат, где мягкое освещение и гармоничные цвета создают атмосферу тепла и гармонии. Вместе с отсутствием пристроенного гаража и крытой автостоянки, вы можете легко развивать собственный огород, небольшой патио или даже мини-парковку, наслаждаясь свободой и открытостью вашего участка. Этот дом – идеальная база для тех, кто ищет спокойствие, качество и классический стиль без лишних украшений. Его простая конструкция и продуманный план позволяют быстро адаптировать внутреннее пространство под любые потребности: от домашнего офиса, через детскую комнату, до зоны отдыха и хобби. Выбирая **Дом 20**, вы выбираете уют, надежность и элегантность, которые остаются актуальными в любой эпохе.

Характеристики дома

Архитектурный стиль
Автоматизированное регулирование параметров теплоносителя
Нет
Балконы/лоджии
Отсутствуют
Чердачное помещение
Нет
Датчики протечки воды
Нет
Эксплуатируемая или зеленая кровля
Нет
Электроснабжение
Центральное
Газоснабжение
Не предусмотрено
Изоляция воздушного шума
Нет
Камин
Нет
Класс энергоэффективности
-
Класс энергосбережения
-
Количество надземных этажей
1
Круглогодичное проживание
Да
Материал кровли
Битумная черепица
Материал перекрытий
Деревянные
Материал внешних стен
Материал внутренних перегородок
Блочные
Модульное строительство с конструкциями заводского изготовления
Нет
Объем надземной части
508 м3
Основной материал фасадов
Облицовочный кирпич
Отопление
Индивидуальное
Площадь дома
85 м2
Площадь застройки
102 м2
Подвальное помещение
Нет
Показатель компактности здания
-
Приборы учета тепловой энергии
Нет
Пристроенный гараж/крытая автостоянка
Нет
Противопожарная система
Нет
Санузлы
1
Совмещенная кухня-гостиная
Нет
Спальни
3
Терраса
Нет
Тип фундамента
Свайно-ростверковый
Толщина внешних стен
500 мм
Толщина внутренних перегородок
100 мм
Улучшенные шумовые характеристики
Нет
Вентиляция
Естественная
Веранда
Нет
Водоотведение
Локальные очистные сооружения
Водоснабжение
Индивидуальное
Высота дома
5 м
Высота потолков
3 м

Планировка

Фасад дома

Александр

Закажите выезд инженера

Александр

Выездной инженер
Закажите выезд инженера для точной диагностики и профессиональной консультации по инженерным системам. Специалист приедет в удобное время, проведёт осмотр, рассчитает стоимость работ и подберёт оптимальные решения для вашего дома.


    Похожие проекты

    Ипотека и
    рассрочка
    Классик
    Стоимость от:
    9 533 700
    Проект от: 60 750
    Этажей 1
    Санузлы 2
    Спальни 3
    Смотреть
    Ипотека и
    рассрочка
    Дом для семьи Family-199 (2024г)
    Стоимость от:
    10 741 940
    Проект от: 70 650
    Этажей 1
    Санузлы 2
    Спальни 4
    Смотреть
    Ипотека и
    рассрочка
    Комфорт — 150
    Стоимость от:
    8 811 000
    Проект от: 67 500
    Этажей 2
    Санузлы 2
    Спальни 4
    Смотреть
    Ипотека и
    рассрочка
    Дом с мансардным этажом «Юрма 3.0»
    Стоимость от:
    6 564 960
    Проект от: 42 300
    Этажей 2
    Санузлы 2
    Спальни 4
    Смотреть
    Ипотека и
    рассрочка
    К 1-70-2
    Стоимость от:
    5 264 600
    Проект от: 31 500
    Этажей 1
    Санузлы 1
    Спальни 3
    Смотреть
    Ипотека и
    рассрочка
    Батрадион 142
    Стоимость от:
    10 028 040
    Проект от: 63 900
    Этажей 1
    Санузлы 1
    Спальни 3
    Смотреть

    Как узнать стоимость дома

    back
    Оставляете заявку
    Вы заполняете форму на сайте или звоните нам. Менеджер Лайвкрафт связывается с вами для уточнения деталей: тип дома, площадь, материалы, участок строительства.
    back
    Консультация и подбор решения
    Наш специалист помогает выбрать оптимальный тип дома и конструкцию с учётом бюджета, сроков и целей — будь то дом для постоянного проживания или дача.
    back
    Расчёт предварительной стоимости
    Инженер делает первичный расчёт стоимости строительства по вашим параметрам: фундамент, коробка, кровля, отделка. Вы получаете смету с разбивкой по этапам.
    back
    Корректировка и утверждение сметы
    При необходимости вносим изменения — например, замену материалов или сокращение этапов. После согласования формируется окончательная фиксированная смета.
    back
    Заключение договора и старт работ
    После утверждения сметы заключаем официальный договор с гарантией. Вы получаете прозрачный график и точную стоимость — без скрытых расходов.

    Заказать конусльтацию по:Дом 20

    Фото 1 Дом 20


      Наши
      контакты

      Дмитров
      Опорный проезд 28Б
      (индустриальный парк Ниагара)
      9:00 до 18:00

      Корзина