4.9
Рейтинг на основании 120 отзывов
Дмитров
Опорный проезд 28Б
(индустриальный парк Ниагара)
Бренд "Дмитров-Дело" c 2008 года на рынке строительства в Дмитрове
Звоните 9:00 до 18:00 8 (915) 055-33-61
Бренд "Дмитров-Дело" c 2008 года на рынке строительства в Дмитрове

Дом 82 м2, 1 этаж (4C-82)

Стоимость проекта от:
36 900 ₽
БЕСПЛАТНО! ПРИ ЗАКАЗЕ СТРОИТЕЛЬСТВА
Стоимость строительства от:
6 530 040 ₽
Артикул ART-13039
Дата 25.12.2025
Архитектурный стиль Европейский
Количество надземных этажей 1
Круглогодичное проживание Да
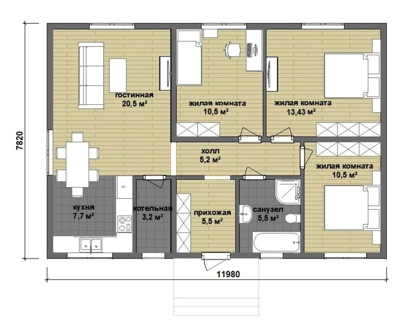
Площадь дома 82 м2
Санузлы 1
Спальни 3

Описание

Великолепный одноэтажный дом площадью 82 м² воплощает в себе истинную европейскую элегантность. Его облик придает строгий, но в то же время уютный фасад из керамзитобетонных блоков, покрытый традиционным чередованием светлых и тёмных оттенков. Кровля, выполненная в четырёхскатном стиле с вальмовой деталировкой, не только защищает, но и придаёт зданию характерный очаровательный силуэт. Дом спроектирован как жилое пространство круглый год, обеспечивая мягкую теплоизоляцию и комфорт даже в самые холодные зимы. Внутри вас ждёт просторная, светлая планировка, где каждая комната пропитана теплом и благополучием. Главный зал – это место, где живёт душа дома: здесь большие окна впускают к себе солнечный луч, создавая атмосферу тепла и приглашая к отдых. Кухня-столовая с современными бытовыми приборами и открытой кухонной зоной позволяет готовить и наслаждаться едой одновременно. Окружённые камином уютные спальни гарантируют спокойный сон, а барная зона с просторным столом дарит возможность встречать гостей в приятной, камерной обстановке. Для владельцев, ценящих практичность, в доме предусмотрено чердачное помещение, которое можно использовать как склад, гардеробную или даже создать уютный уголок для творчестве. Отсутствие балконов и веранд, но наличие просторных открытых пространств внутри, создаёт ощущение единства с природой и позволяет наслаждаться свежим воздухом даже в закрытом пространстве. Эта квартира – идеальное сочетание европейского стиля, функциональности и практичного подхода к жизни, предлагая всем, кто ищет дом, где можно почувствовать себя дома уже с первой минуты.

Характеристики дома

Архитектурный стиль
Автоматизированное регулирование параметров теплоносителя
Нет
Балконы/лоджии
Отсутствуют
Чердачное помещение
Да
Датчики протечки воды
Нет
Эксплуатируемая или зеленая кровля
Нет
Электроснабжение
Не предусмотрено
Газоснабжение
Не предусмотрено
Изоляция воздушного шума
Нет
Камин
Нет
Класс энергоэффективности
-
Класс энергосбережения
-
Количество надземных этажей
1
Круглогодичное проживание
Да
Материал кровли
Металлочерепица
Материал перекрытий
Деревянные
Материал внешних стен
Материал внутренних перегородок
Блочные
Модульное строительство с конструкциями заводского изготовления
Нет
Объем надземной части
262 м3
Основной материал фасадов
Штукатурка
Отопление
Индивидуальное
Площадь дома
82 м2
Площадь застройки
94 м2
Подвальное помещение
Нет
Показатель компактности здания
-
Приборы учета тепловой энергии
Нет
Пристроенный гараж/крытая автостоянка
Нет
Противопожарная система
Нет
Санузлы
1
Совмещенная кухня-гостиная
Да
Спальни
3
Терраса
Нет
Тип фундамента
Ленточный
Толщина внешних стен
200 мм
Толщина внутренних перегородок
100 мм
Улучшенные шумовые характеристики
Нет
Вентиляция
Естественная
Веранда
Нет
Водоотведение
Не предусмотрено
Водоснабжение
Не предусмотрено
Высота дома
5.6 м
Высота потолков
2.8 м

Планировка

Фасад дома

Александр

Закажите выезд инженера

Александр

Выездной инженер
Закажите выезд инженера для точной диагностики и профессиональной консультации по инженерным системам. Специалист приедет в удобное время, проведёт осмотр, рассчитает стоимость работ и подберёт оптимальные решения для вашего дома.


    Похожие проекты

    Ипотека и
    рассрочка
    Одноэтажный дом БАРН-167
    Стоимость от:
    2 835 855
    Проект от: 22 950
    Этажей 1
    Санузлы 1
    Спальни 1
    Смотреть
    Ипотека и
    рассрочка
    24ЯС08.01 RUF
    Стоимость от:
    2 168 595
    Проект от: 17 550
    Этажей 1
    Санузлы 1
    Спальни 1
    Смотреть
    Ипотека и
    рассрочка
    Одноэтажный дом с террасой 09-23КД.
    Стоимость от:
    6 410 470
    Проект от: 45 450
    Этажей 1
    Санузлы 1
    Спальни 3
    Смотреть
    Ипотека и
    рассрочка
    «Мистолово»
    Стоимость от:
    13 684 000
    Проект от: 90 000
    Этажей 1
    Санузлы 3
    Спальни 4
    Смотреть
    Ипотека и
    рассрочка
    M.BARN 75
    Стоимость от:
    4 448 400
    Проект от: 36 000
    Этажей 1
    Санузлы 1
    Спальни 2
    Смотреть
    Ипотека и
    рассрочка
    Одноэтажный дом с большой кухней-гостинной
    Стоимость от:
    6 537 410
    Проект от: 46 350
    Этажей 1
    Санузлы 2
    Спальни 3
    Смотреть

    Как узнать стоимость дома

    back
    Оставляете заявку
    Вы заполняете форму на сайте или звоните нам. Менеджер Лайвкрафт связывается с вами для уточнения деталей: тип дома, площадь, материалы, участок строительства.
    back
    Консультация и подбор решения
    Наш специалист помогает выбрать оптимальный тип дома и конструкцию с учётом бюджета, сроков и целей — будь то дом для постоянного проживания или дача.
    back
    Расчёт предварительной стоимости
    Инженер делает первичный расчёт стоимости строительства по вашим параметрам: фундамент, коробка, кровля, отделка. Вы получаете смету с разбивкой по этапам.
    back
    Корректировка и утверждение сметы
    При необходимости вносим изменения — например, замену материалов или сокращение этапов. После согласования формируется окончательная фиксированная смета.
    back
    Заключение договора и старт работ
    После утверждения сметы заключаем официальный договор с гарантией. Вы получаете прозрачный график и точную стоимость — без скрытых расходов.

    Заказать конусльтацию по:Дом 82 м2, 1 этаж (4C-82)

    Фото 1 Дом 82 м2, 1 этаж (4C-82)


      Наши
      контакты

      Дмитров
      Опорный проезд 28Б
      (индустриальный парк Ниагара)
      9:00 до 18:00

      Корзина