4.9
Рейтинг на основании 120 отзывов
Дмитров
Опорный проезд 28Б
(индустриальный парк Ниагара)
Бренд "Дмитров-Дело" c 2008 года на рынке строительства в Дмитрове
Звоните 9:00 до 18:00 8 (915) 055-33-61
Бренд "Дмитров-Дело" c 2008 года на рынке строительства в Дмитрове

Дом «Аксель 128» в скандинавском стиле

Стоимость проекта от:
50 400 ₽
БЕСПЛАТНО! ПРИ ЗАКАЗЕ СТРОИТЕЛЬСТВА
Стоимость строительства от:
6 703 200 ₽
Артикул ART-5812
Дата 26.12.2025
Архитектурный стиль Скандинавский
Количество надземных этажей 2
Круглогодичное проживание Да
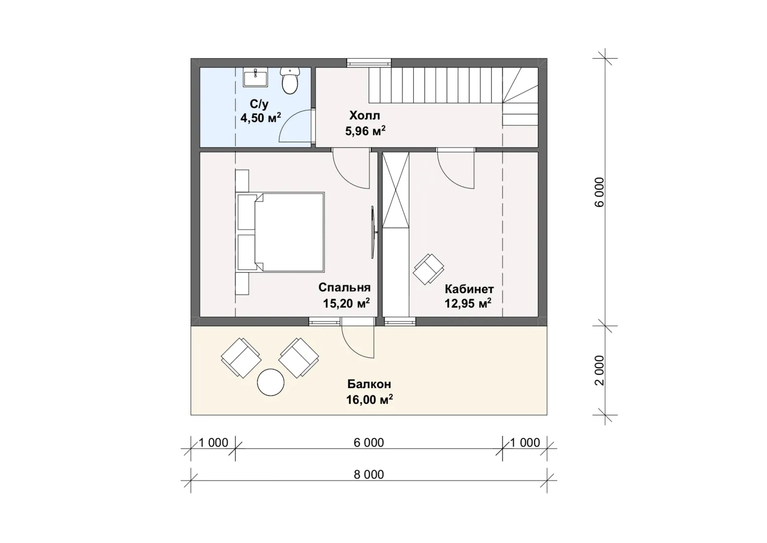
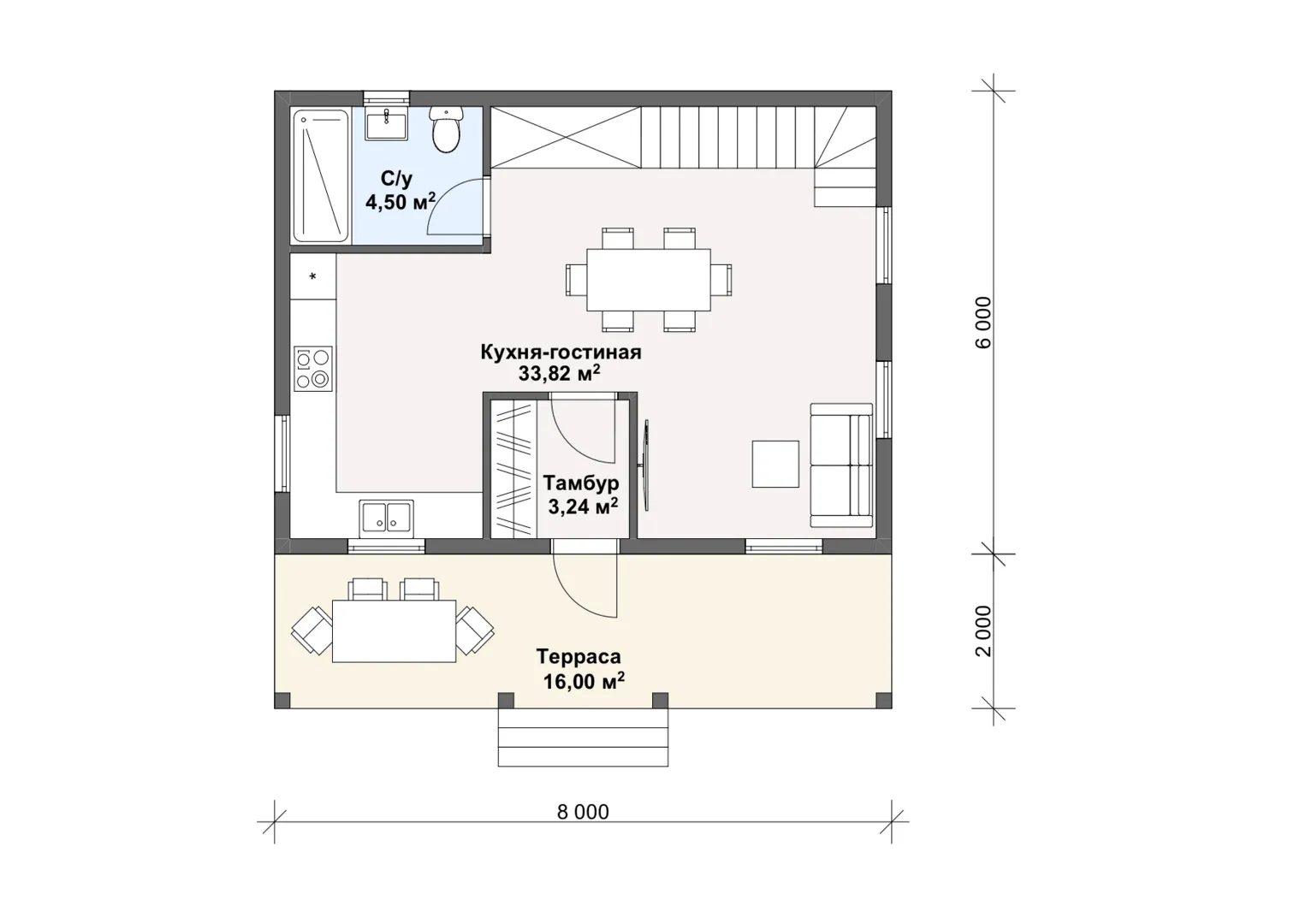
Площадь дома 112 м2
Санузлы 2
Спальни 1

Описание

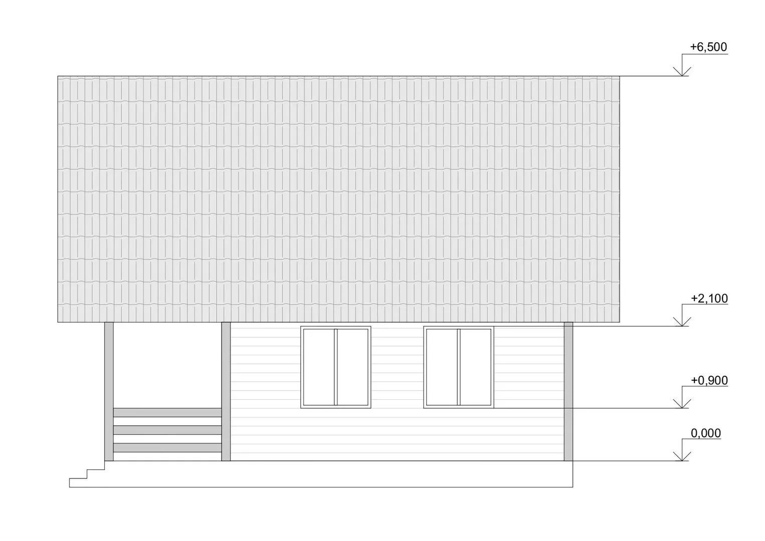
Дом «Аксель 128» – воплощение скандинавской простоты и одновременно уюта, которые вы захотите ощущать каждый день. Его две светлых надземных этажа разделены гармоничной планировкой, создающей ощущение простора даже в небольшом объёме. Каркас из дерева, обрамляющий фасад, не только придаёт дому теплоту и естественность, но и подчёркивает природный стиль архитектуры, характерный для северных стран. Двускатная крыша, покрытая традиционными материалами, плавно вписывается в ландшафт, подчеркивая элегантность и лаконичность внешнего облика. На первом этаже – просторная гостинная и полностью оборудованная кухня, где встречаются современные технологии и натуральный материал – дерево. От больших стеклянных дверей открывается панорамный вид на ухоженный сад и тихие зелёные изгибы троп. На верхнем уровне – уютные спальни, каждая из которых имеет прямой доступ к балкону, где можно насладиться утренним солнечным светом или вечерним тихим пением ветра. Дополняет пространство открытая терраса, где можно разложить плед и наслаждаться природой без лишних барьеров. Несмотря на то, что «Аксель 128» не имеет пригорода гаража или чердака, его планировка оптимально использует доступное пространство, оставляя вам свободу наслаждаться уединённой обстановкой и лёгкой атмосферой летнего отдыха каждое время года. Этот дом призван стать вашим убежищем, где каждое утро начинается с мягкого сияния света и свежести, а каждый вечер завершается спокойствием и гармонией. Приглашаем вас открыть дверь в собственный уголок скандинавского комфорта.

Характеристики дома

Архитектурный стиль
Автоматизированное регулирование параметров теплоносителя
-
Балконы/лоджии
1
Чердачное помещение
Нет
Датчики протечки воды
-
Эксплуатируемая или зеленая кровля
-
Электроснабжение
Центральное
Газоснабжение
Индивидуальное
Изоляция воздушного шума
-
Камин
Нет
Класс энергоэффективности
-
Класс энергосбережения
-
Количество надземных этажей
2
Круглогодичное проживание
Да
Материал кровли
Металлочерепица
Материал перекрытий
Деревянные
Материал внешних стен
Материал внутренних перегородок
Деревянные
Модульное строительство с конструкциями заводского изготовления
Нет
Объем надземной части
832 м3
Основной материал фасадов
Дерево
Отопление
Индивидуальное
Площадь дома
112 м2
Площадь застройки
128 м2
Подвальное помещение
Нет
Показатель компактности здания
-
Приборы учета тепловой энергии
-
Пристроенный гараж/крытая автостоянка
Нет
Противопожарная система
Нет
Санузлы
2
Совмещенная кухня-гостиная
Да
Спальни
1
Терраса
Да
Тип фундамента
Свайно-винтовой
Тип кровли
Толщина внешних стен
150 мм
Толщина внутренних перегородок
100 мм
Улучшенные шумовые характеристики
-
Вентиляция
Естественная
Веранда
Нет
Водоотведение
Локальные очистные сооружения
Водоснабжение
Индивидуальное
Высота дома
6.5 м
Высота потолков
2.7 м

Планировка

Фасад дома

Александр

Закажите выезд инженера

Александр

Выездной инженер
Закажите выезд инженера для точной диагностики и профессиональной консультации по инженерным системам. Специалист приедет в удобное время, проведёт осмотр, рассчитает стоимость работ и подберёт оптимальные решения для вашего дома.


    Похожие проекты

    Ипотека и
    рассрочка
    Одноэтажный дом Д-120 Светлана
    Стоимость от:
    9 165 640
    Проект от: 54 900
    Этажей 1
    Санузлы 1
    Спальни 3
    Смотреть
    Ипотека и
    рассрочка
    Проект дома Ньюпорт
    Стоимость от:
    5 538 960
    Проект от: 37 800
    Этажей 2
    Санузлы 1
    Спальни 2
    Смотреть
    Ипотека и
    рассрочка
    «Загородный дом Алиссум»
    Стоимость от:
    7 062 000
    Проект от: 45 000
    Этажей 1
    Санузлы 2
    Спальни 3
    Смотреть
    Ипотека и
    рассрочка
    ЧЗ-88
    Стоимость от:
    6 614 960
    Проект от: 39 600
    Этажей 1
    Санузлы 1
    Спальни 3
    Смотреть
    Ипотека и
    рассрочка
    ДомPRO 102-3К-Т
    Стоимость от:
    9 230 320
    Проект от: 52 200
    Этажей 1
    Санузлы 2
    Спальни 3
    Смотреть
    Ипотека и
    рассрочка
    Бюджетный двухэтажный дом с балконом, панорамными окнами
    Стоимость от:
    8 538 720
    Проект от: 53 100
    Этажей 2
    Санузлы 2
    Спальни 3
    Смотреть

    Как узнать стоимость дома

    back
    Оставляете заявку
    Вы заполняете форму на сайте или звоните нам. Менеджер Лайвкрафт связывается с вами для уточнения деталей: тип дома, площадь, материалы, участок строительства.
    back
    Консультация и подбор решения
    Наш специалист помогает выбрать оптимальный тип дома и конструкцию с учётом бюджета, сроков и целей — будь то дом для постоянного проживания или дача.
    back
    Расчёт предварительной стоимости
    Инженер делает первичный расчёт стоимости строительства по вашим параметрам: фундамент, коробка, кровля, отделка. Вы получаете смету с разбивкой по этапам.
    back
    Корректировка и утверждение сметы
    При необходимости вносим изменения — например, замену материалов или сокращение этапов. После согласования формируется окончательная фиксированная смета.
    back
    Заключение договора и старт работ
    После утверждения сметы заключаем официальный договор с гарантией. Вы получаете прозрачный график и точную стоимость — без скрытых расходов.

    Заказать конусльтацию по:Дом «Аксель 128» в скандинавском стиле

    Фото 1 Дом «Аксель 128» в скандинавском стиле


      Наши
      контакты

      Дмитров
      Опорный проезд 28Б
      (индустриальный парк Ниагара)
      9:00 до 18:00

      Корзина