4.9
Рейтинг на основании 120 отзывов
Дмитров
Опорный проезд 28Б
(индустриальный парк Ниагара)
Бренд "Дмитров-Дело" c 2008 года на рынке строительства в Дмитрове
Звоните 9:00 до 18:00 8 (915) 055-33-61
Бренд "Дмитров-Дело" c 2008 года на рынке строительства в Дмитрове

Дом из CLT «Ессентуки»

Стоимость проекта от:
202 950 ₽
БЕСПЛАТНО! ПРИ ЗАКАЗЕ СТРОИТЕЛЬСТВА
Стоимость строительства от:
2 139 840 ₽
Артикул ART-2041
Дата 26.12.2025
Архитектурный стиль Классический
Количество надземных этажей 2
Круглогодичное проживание Да
Площадь дома 451 м2
Санузлы 4
Спальни 6

Описание

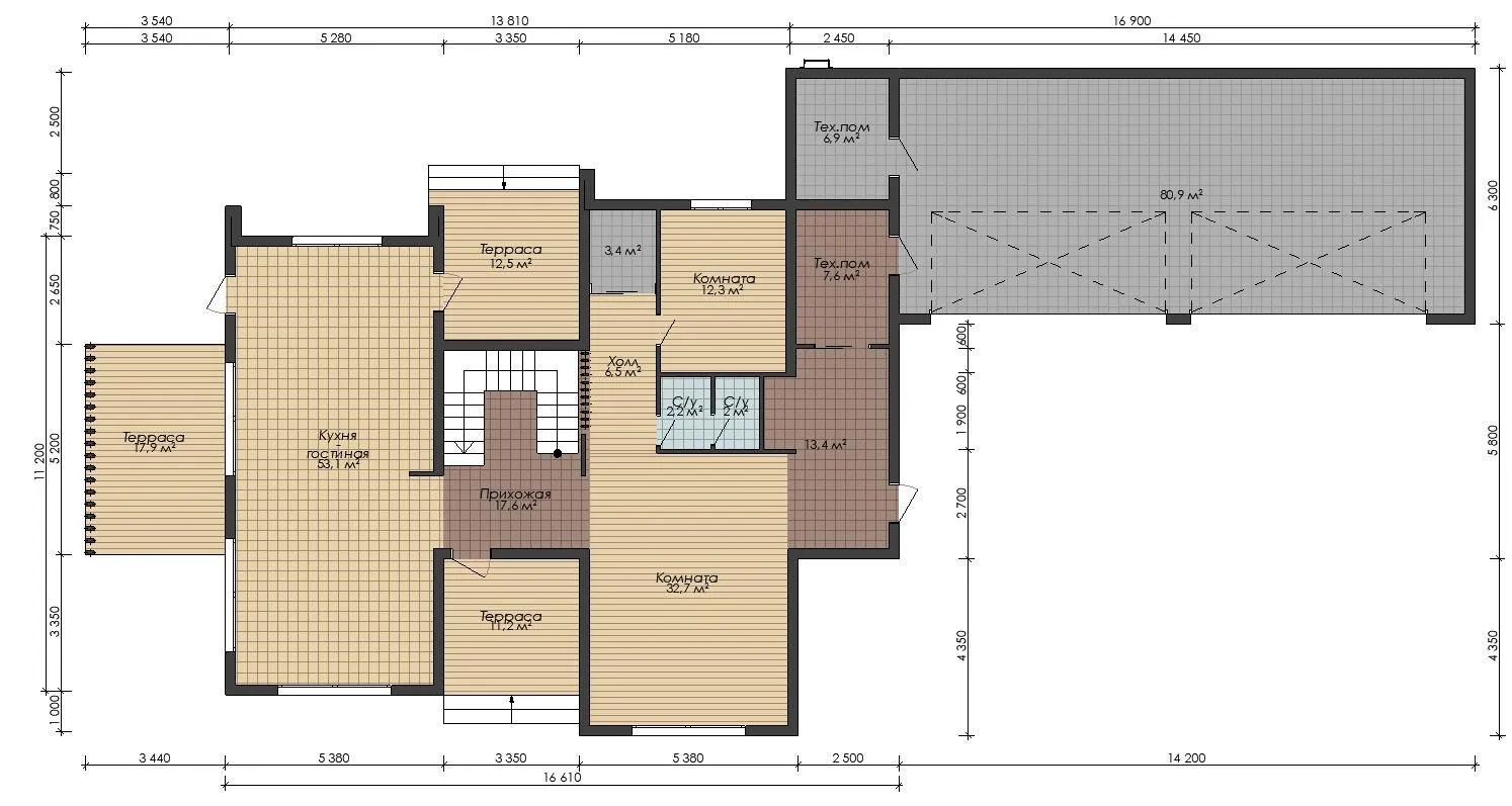
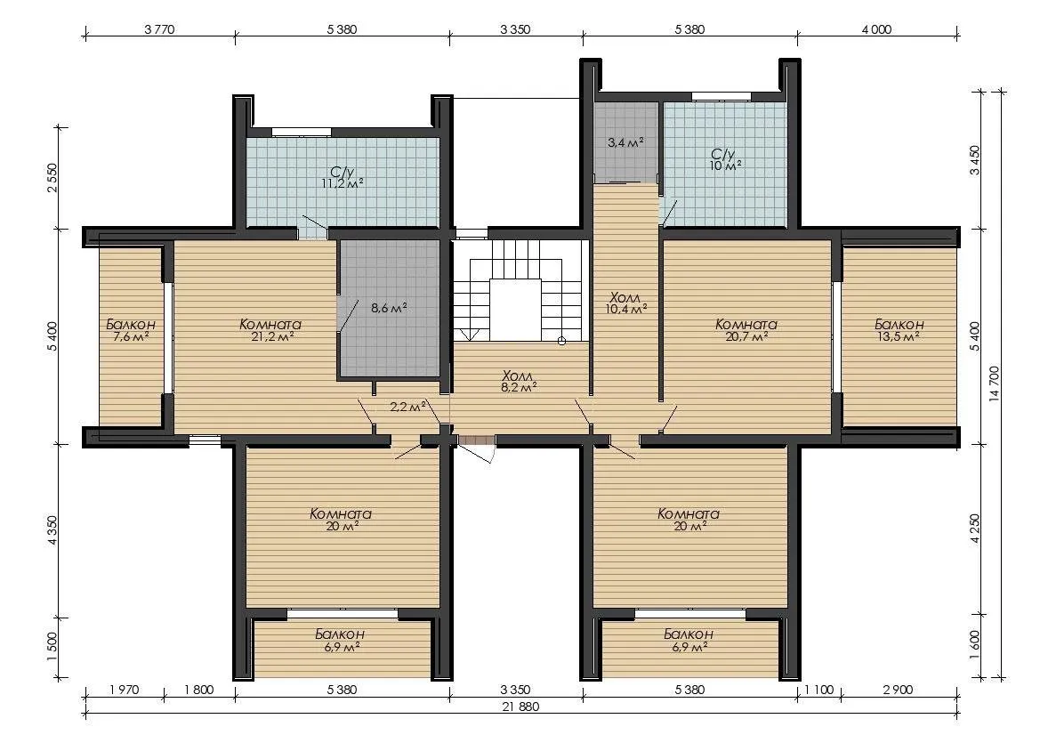
Дом из CLT «Ессентуки» — это идеальное сочетание современной технологии и времени проверенных традиций. Созданный в классическом стиле, он располагает двумя надземными этажами, каждый из которых открывается четырьмя уютными балконами и широкой верандой, откуда открываются живописные виды и притягивает мягкий летний бриз. Внутренние помещения изобилуют естественным светом, а теплоизоляция из CLT‑панелей обеспечивает комфорт круглый год, даже в самые суровые зимние дня. Кровля в двускатном исполнении придаёт дому очаровательный силуэт, а прибрежный чердак отсутствует, позволяя вам использовать пространство без ограничений. Современные удобства не разрывают традиционный уют: прицепленный гараж или крытая автостоянка обеспечивают защиту автомобилей, а отсутствие чердачных помещений гарантирует свободу планировки внутреннего пространства. В доме нет террасы, но просторная веранда и балконы превращают каждый уголок в место для отдыха и общения. Изысканный дизайн, отличная энергоэффективность и доступность CLT‑материалов делают этот дом идеальным выбором для тех, кто ценит красоту, качество и долговечность. Приглашаем вас открыть для себя новый образ жизни в «Ессентуках» – ваш дом, ваш комфорт, ваш стиль.

Характеристики дома

Архитектурный стиль
Автоматизированное регулирование параметров теплоносителя
-
Балконы/лоджии
4
Чердачное помещение
Нет
Датчики протечки воды
-
Эксплуатируемая или зеленая кровля
-
Электроснабжение
2 варианта
Газоснабжение
2 варианта
Изоляция воздушного шума
-
Камин
Нет
Класс энергоэффективности
-
Класс энергосбережения
-
Количество надземных этажей
2
Круглогодичное проживание
Да
Материал кровли
Металлические листовые гофрированные профили
Материал перекрытий
Деревянные
Материал внешних стен
Материал внутренних перегородок
Деревянные
Модульное строительство с конструкциями заводского изготовления
Нет
Объем надземной части
1021 м3
Основной материал фасадов
Планкен
Отопление
2 варианта
Площадь дома
451 м2
Площадь застройки
179 м2
Подвальное помещение
Нет
Показатель компактности здания
-
Приборы учета тепловой энергии
-
Пристроенный гараж/крытая автостоянка
Да
Противопожарная система
Нет
Санузлы
4
Совмещенная кухня-гостиная
Да
Спальни
6
Терраса
Нет
Тип фундамента
Свайный
Тип кровли
Толщина внешних стен
200 мм
Толщина внутренних перегородок
100 мм
Улучшенные шумовые характеристики
-
Вентиляция
2 варианта
Веранда
Да
Водоотведение
2 варианта
Водоснабжение
2 варианта
Высота дома
5.7 м
Высота потолков
2.7 м

Планировка

Фасад дома

Александр

Закажите выезд инженера

Александр

Выездной инженер
Закажите выезд инженера для точной диагностики и профессиональной консультации по инженерным системам. Специалист приедет в удобное время, проведёт осмотр, рассчитает стоимость работ и подберёт оптимальные решения для вашего дома.


    Похожие проекты

    Ипотека и
    рассрочка
    Кача
    Стоимость от:
    12 048 240
    Проект от: 72 450
    Этажей 2
    Санузлы 3
    Спальни 6
    Смотреть
    Ипотека и
    рассрочка
    Проект одноэтажного дома Пилот
    Стоимость от:
    14 191 980
    Проект от: 85 050
    Этажей 1
    Санузлы 3
    Спальни 4
    Смотреть
    Ипотека и
    рассрочка
    ОД- 288
    Стоимость от:
    8 455 260
    Проект от: 62 100
    Этажей 1
    Санузлы 2
    Спальни 3
    Смотреть
    Ипотека и
    рассрочка
    Проект «Балтика топ»
    Стоимость от:
    6 795 120
    Проект от: 46 350
    Этажей 2
    Санузлы 1
    Спальни 2
    Смотреть
    Ипотека и
    рассрочка
    Одноэтажный дом в стиле современного минимализма S3-168 (Zx111)
    Стоимость от:
    14 766 620
    Проект от: 85 950
    Этажей 1
    Санузлы 3
    Спальни 3
    Смотреть
    Ипотека и
    рассрочка
    Загородный дом ROOMY 8*6
    Стоимость от:
    2 389 530
    Проект от: 17 550
    Этажей 1
    Санузлы 1
    Спальни 1
    Смотреть

    Как узнать стоимость дома

    back
    Оставляете заявку
    Вы заполняете форму на сайте или звоните нам. Менеджер Лайвкрафт связывается с вами для уточнения деталей: тип дома, площадь, материалы, участок строительства.
    back
    Консультация и подбор решения
    Наш специалист помогает выбрать оптимальный тип дома и конструкцию с учётом бюджета, сроков и целей — будь то дом для постоянного проживания или дача.
    back
    Расчёт предварительной стоимости
    Инженер делает первичный расчёт стоимости строительства по вашим параметрам: фундамент, коробка, кровля, отделка. Вы получаете смету с разбивкой по этапам.
    back
    Корректировка и утверждение сметы
    При необходимости вносим изменения — например, замену материалов или сокращение этапов. После согласования формируется окончательная фиксированная смета.
    back
    Заключение договора и старт работ
    После утверждения сметы заключаем официальный договор с гарантией. Вы получаете прозрачный график и точную стоимость — без скрытых расходов.

    Заказать конусльтацию по:Дом из CLT «Ессентуки»

    Фото 1 Дом из CLT «Ессентуки»


      Наши
      контакты

      Дмитров
      Опорный проезд 28Б
      (индустриальный парк Ниагара)
      9:00 до 18:00

      Корзина