4.9
Рейтинг на основании 120 отзывов
Дмитров
Опорный проезд 28Б
(индустриальный парк Ниагара)
Бренд "Дмитров-Дело" c 2008 года на рынке строительства в Дмитрове
Звоните 9:00 до 18:00 8 (915) 055-33-61
Бренд "Дмитров-Дело" c 2008 года на рынке строительства в Дмитрове

Дом из клееного бруса Хуппер

Стоимость проекта от:
92 250 ₽
БЕСПЛАТНО! ПРИ ЗАКАЗЕ СТРОИТЕЛЬСТВА
Стоимость строительства от:
14 324 400 ₽
Артикул ART-16798
Дата 26.12.2025
Архитектурный стиль Классический
Количество надземных этажей 2
Круглогодичное проживание Да
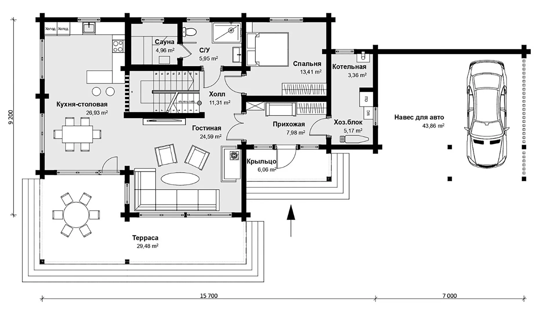
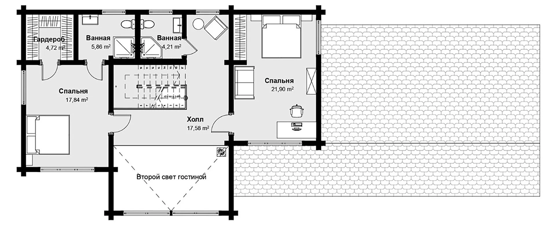
Площадь дома 205 м2
Санузлы 3
Спальни 3

Описание

Познакомьтесь с домом из клееного бруса «Хуппер» — воплощением классического уюта и современных технологий. Это два надземных этажа, рассчитанные на круглогодичную жизнь: тепло, свет и стиль в любой сезон. Лаконичная фасадная облицовка из клееного бруса сохраняет естественный характер дерева, одновременно создавая строгий и элегантный внешний вид. Плоская крыша не только подчёркивает современную простоту, но и обеспечивает эффективную защиту от непогоды, позволяя жильцам почувствовать душевное спокойствие в любое время года. Внутри вас ждёт гармоничное сочетание открытого пространства и уютных уютных уголков. Просторные уровни, продуманная планировка и классические детали интерьера создают атмосферу домашнего комфорта и спокойствия. Каждый элемент, от изысканных дверных проёмов до продуманного светового потока, подчёркивает ощущение благополучия и безграничного пространства. Дом предназначен для тех, кто ценит простоту, но при этом не желает отказываться от современных удобств. Сочетание практичности и эстетики проявляется и в внешней зоне: крытая автостоянка и прилагающийся гараж гарантируют комфорт в перемене сезонов, а просторная терраса даёт возможность наслаждаться природой и проводить время на свежем воздухе. Отсутствие балконов и веранд подчёркивает чистоту линий, а уютное пространство внутри напоминает о тепле домашнего очага. Приглашаем вас ощутить гармонию с природой и классику современного стиля в доме, который станет вашим вторым, но таким же надёжным, домом для жизни и отдыхом.

Характеристики дома

Архитектурный стиль
Автоматизированное регулирование параметров теплоносителя
Нет
Балконы/лоджии
Отсутствуют
Чердачное помещение
Нет
Датчики протечки воды
Нет
Эксплуатируемая или зеленая кровля
Нет
Электроснабжение
Не предусмотрено
Газоснабжение
Не предусмотрено
Изоляция воздушного шума
Нет
Камин
Да
Класс энергоэффективности
-
Класс энергосбережения
-
Количество надземных этажей
2
Круглогодичное проживание
Да
Материал кровли
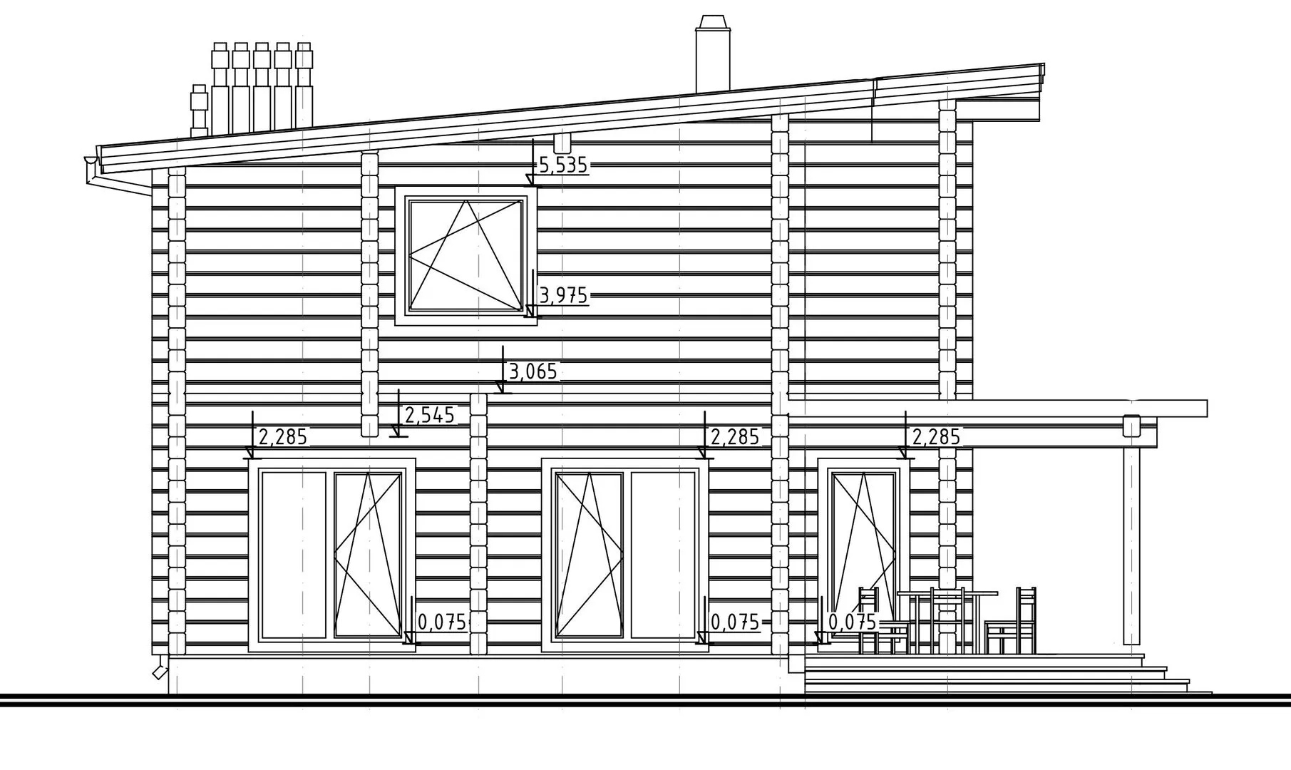
Металлочерепица
Материал перекрытий
Деревянные
Материал внешних стен
Материал внутренних перегородок
Деревянные
Модульное строительство с конструкциями заводского изготовления
Нет
Объем надземной части
-
Основной материал фасадов
Дерево
Отопление
Не предусмотрено
Площадь дома
205 м2
Площадь застройки
200 м2
Подвальное помещение
Нет
Показатель компактности здания
-
Приборы учета тепловой энергии
Нет
Пристроенный гараж/крытая автостоянка
Да
Противопожарная система
Нет
Санузлы
3
Совмещенная кухня-гостиная
Да
Спальни
3
Терраса
Да
Тип фундамента
Плитный
Тип кровли
Толщина внешних стен
202 мм
Толщина внутренних перегородок
160 мм
Улучшенные шумовые характеристики
Нет
Вентиляция
Естественная
Веранда
Нет
Водоотведение
Не предусмотрено
Водоснабжение
Не предусмотрено
Высота дома
7 м
Высота потолков
2.8 м

Планировка

Фасад дома

Александр

Закажите выезд инженера

Александр

Выездной инженер
Закажите выезд инженера для точной диагностики и профессиональной консультации по инженерным системам. Специалист приедет в удобное время, проведёт осмотр, рассчитает стоимость работ и подберёт оптимальные решения для вашего дома.


    Похожие проекты

    Ипотека и
    рассрочка
    Дом из CLT «Пятигорск»
    Стоимость от:
    843 720
    Проект от: 80 100
    Этажей 2
    Санузлы 2
    Спальни 4
    Смотреть
    Ипотека и
    рассрочка
    ДРЕВЕСНЫЙ КОМФОРТ
    Стоимость от:
    3 820 200
    Проект от: 29 250
    Этажей 2
    Санузлы 1
    Спальни 2
    Смотреть
    Ипотека и
    рассрочка
    Одноэтажный загородный дом «РОУЗ»
    Стоимость от:
    4 874 485
    Проект от: 34 650
    Этажей 1
    Санузлы 1
    Спальни 3
    Смотреть
    Ипотека и
    рассрочка
    Одноэтажный дом Сидней
    Стоимость от:
    8 296 640
    Проект от: 50 400
    Этажей 1
    Санузлы 2
    Спальни 3
    Смотреть
    Ипотека и
    рассрочка
    G-BOX-88
    Стоимость от:
    5 345 780
    Проект от: 31 050
    Этажей 1
    Санузлы 1
    Спальни 2
    Смотреть
    Ипотека и
    рассрочка
    КД «Томск»
    Стоимость от:
    7 900 200
    Проект от: 59 400
    Этажей 2
    Санузлы 2
    Спальни 5
    Смотреть

    Как узнать стоимость дома

    back
    Оставляете заявку
    Вы заполняете форму на сайте или звоните нам. Менеджер Лайвкрафт связывается с вами для уточнения деталей: тип дома, площадь, материалы, участок строительства.
    back
    Консультация и подбор решения
    Наш специалист помогает выбрать оптимальный тип дома и конструкцию с учётом бюджета, сроков и целей — будь то дом для постоянного проживания или дача.
    back
    Расчёт предварительной стоимости
    Инженер делает первичный расчёт стоимости строительства по вашим параметрам: фундамент, коробка, кровля, отделка. Вы получаете смету с разбивкой по этапам.
    back
    Корректировка и утверждение сметы
    При необходимости вносим изменения — например, замену материалов или сокращение этапов. После согласования формируется окончательная фиксированная смета.
    back
    Заключение договора и старт работ
    После утверждения сметы заключаем официальный договор с гарантией. Вы получаете прозрачный график и точную стоимость — без скрытых расходов.

    Заказать конусльтацию по:Дом из клееного бруса Хуппер

    Фото 1 Дом из клееного бруса Хуппер


      Наши
      контакты

      Дмитров
      Опорный проезд 28Б
      (индустриальный парк Ниагара)
      9:00 до 18:00

      Корзина