4.9
Рейтинг на основании 120 отзывов
Дмитров
Опорный проезд 28Б
(индустриальный парк Ниагара)
Бренд "Дмитров-Дело" c 2008 года на рынке строительства в Дмитрове
Звоните 9:00 до 18:00 8 (915) 055-33-61
Бренд "Дмитров-Дело" c 2008 года на рынке строительства в Дмитрове

Дом из клееного бруса «Липки»

Стоимость проекта от:
60 750 ₽
БЕСПЛАТНО! ПРИ ЗАКАЗЕ СТРОИТЕЛЬСТВА
Стоимость строительства от:
8 742 000 ₽
Артикул ART-2155
Дата 26.12.2025
Архитектурный стиль Классический
Количество надземных этажей 2
Круглогодичное проживание Да
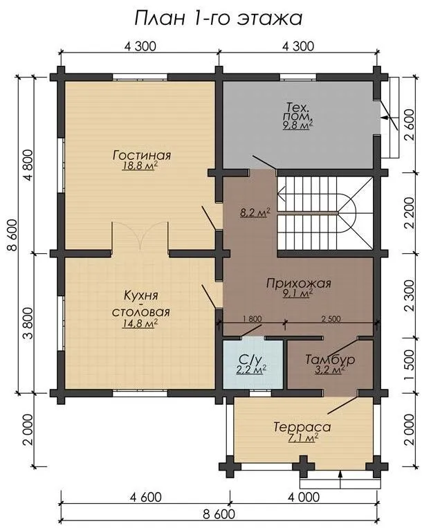
Площадь дома 135 м2
Санузлы 2
Спальни 3

Описание

Величественный дом из клееного бруса «Липки» – воплощение классической элегантности и природной теплоизоляции. Тёплый, душевный интерьер с открытыми окнами и деревянными вставками создаёт неповторимый уют, способный обнять каждого, кто переступит порог. Два надземных этажа размещают уютные спальни и гостиную, где мягкий свет и естественная красота бруса становятся идеальным фоном для семейных воспоминаний. Круглогодичное проживание гарантирует комфорт даже в самые суровые зимы: плотная древесная кладка удерживает тепло, а комбинированная кровля отводит влагу, создавая оптимальные условия внутри. Балкон и веранда – ваши личные уголки для утреннего кофе, вечернего чтения или семейных шашлыков под звёздным небом. Дизайн, вдохновлённый традиционным классическим стилем, подчеркивает изысканность, а простота и функциональность подчёркивают современность строительства из клееного бруса. Приобретая дом «Липки» вы получаете не просто жильё, а целую историю, где каждый элемент, от изящных балконных ставей до благородного внешнего фасада, говорит о вашем выборе качественного и надёжного дома. Это место, где традиции встречаются с комфортом, и каждый день приносит тепло, уют и вдохновение.

Характеристики дома

Архитектурный стиль
Автоматизированное регулирование параметров теплоносителя
-
Балконы/лоджии
1
Чердачное помещение
Нет
Датчики протечки воды
-
Эксплуатируемая или зеленая кровля
-
Электроснабжение
2 варианта
Газоснабжение
2 варианта
Изоляция воздушного шума
-
Камин
Нет
Класс энергоэффективности
-
Класс энергосбережения
-
Количество надземных этажей
2
Круглогодичное проживание
Да
Материал кровли
Металлические листовые гофрированные профили
Материал перекрытий
Деревянные
Материал внешних стен
Материал внутренних перегородок
Деревянные
Модульное строительство с конструкциями заводского изготовления
Нет
Объем надземной части
421 м3
Основной материал фасадов
Дерево
Отопление
2 варианта
Площадь дома
135 м2
Площадь застройки
73 м2
Подвальное помещение
Нет
Показатель компактности здания
-
Приборы учета тепловой энергии
-
Пристроенный гараж/крытая автостоянка
Нет
Противопожарная система
Нет
Санузлы
2
Совмещенная кухня-гостиная
Нет
Спальни
3
Терраса
Нет
Тип фундамента
Свайный
Тип кровли
Толщина внешних стен
200 мм
Толщина внутренних перегородок
160 мм
Улучшенные шумовые характеристики
-
Вентиляция
2 варианта
Веранда
Да
Водоотведение
2 варианта
Водоснабжение
2 варианта
Высота дома
5.7 м
Высота потолков
2.7 м

Планировка

Фасад дома

Александр

Закажите выезд инженера

Александр

Выездной инженер
Закажите выезд инженера для точной диагностики и профессиональной консультации по инженерным системам. Специалист приедет в удобное время, проведёт осмотр, рассчитает стоимость работ и подберёт оптимальные решения для вашего дома.


    Похожие проекты

    Ипотека и
    рассрочка
    Дом 92
    Стоимость от:
    6 915 040
    Проект от: 41 400
    Этажей 1
    Санузлы 1
    Спальни 3
    Смотреть
    Ипотека и
    рассрочка
    Каркасный дом Флоренция 140
    Стоимость от:
    8 379 000
    Проект от: 63 000
    Этажей 2
    Санузлы 2
    Спальни 4
    Смотреть
    Ипотека и
    рассрочка
    208-П
    Стоимость от:
    14 710 300
    Проект от: 96 750
    Этажей 1
    Санузлы 3
    Спальни 4
    Смотреть
    Ипотека и
    рассрочка
    Одноэтажный дом c террасой LV-146
    Стоимость от:
    10 966 120
    Проект от: 65 700
    Этажей 1
    Санузлы 2
    Спальни 3
    Смотреть
    Ипотека и
    рассрочка
    Керимар 76
    Стоимость от:
    5 090 460
    Проект от: 38 250
    Этажей 2
    Санузлы 2
    Спальни 4
    Смотреть
    Ипотека и
    рассрочка
    Одноэтажный дом Fixplans — 0674
    Стоимость от:
    17 372 520
    Проект от: 110 700
    Этажей 1
    Санузлы 2
    Спальни 4
    Смотреть

    Как узнать стоимость дома

    back
    Оставляете заявку
    Вы заполняете форму на сайте или звоните нам. Менеджер Лайвкрафт связывается с вами для уточнения деталей: тип дома, площадь, материалы, участок строительства.
    back
    Консультация и подбор решения
    Наш специалист помогает выбрать оптимальный тип дома и конструкцию с учётом бюджета, сроков и целей — будь то дом для постоянного проживания или дача.
    back
    Расчёт предварительной стоимости
    Инженер делает первичный расчёт стоимости строительства по вашим параметрам: фундамент, коробка, кровля, отделка. Вы получаете смету с разбивкой по этапам.
    back
    Корректировка и утверждение сметы
    При необходимости вносим изменения — например, замену материалов или сокращение этапов. После согласования формируется окончательная фиксированная смета.
    back
    Заключение договора и старт работ
    После утверждения сметы заключаем официальный договор с гарантией. Вы получаете прозрачный график и точную стоимость — без скрытых расходов.

    Заказать конусльтацию по:Дом из клееного бруса «Липки»

    Фото 1 Дом из клееного бруса «Липки»


      Наши
      контакты

      Дмитров
      Опорный проезд 28Б
      (индустриальный парк Ниагара)
      9:00 до 18:00

      Корзина