4.9
Рейтинг на основании 120 отзывов
Дмитров
Опорный проезд 28Б
(индустриальный парк Ниагара)
Бренд "Дмитров-Дело" c 2008 года на рынке строительства в Дмитрове
Звоните 9:00 до 18:00 8 (915) 055-33-61
Бренд "Дмитров-Дело" c 2008 года на рынке строительства в Дмитрове

Дом из клееного бруса по индивидуальному проекту №2

Стоимость проекта от:
45 000 ₽
Стоимость строительства от:
6 347 000 ₽
Артикул ART-14535
Дата 25.12.2025
Архитектурный стиль Скандинавский
Количество надземных этажей 1
Круглогодичное проживание Да
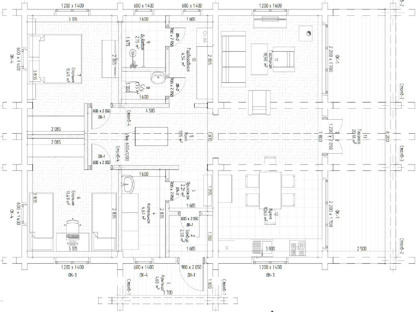
Площадь дома 100 м2
Санузлы 1
Спальни 2

Описание

Погрузитесь в атмосферу уюта и гармонии, которую предлагает наш дом из клееного бруса по индивидуальному проекту № 2. Это уютное одноэтажное жильё, спроектированное с учётом особенностей круглогодичного проживания: большая открытая планировка, обилие естественного света и тепло, создаваемое натуральным материалом. Вдохновлённый скандинавским стилем, дом сочетает строгие линии и функциональность, при этом сохраняет тепло и уют благодаря качественным деревянным стенам и утеплённой кровле с двускатным уклоном. Герой проекта – просторная терраса, которая становится продолжением гостиной и спальни, а также идеальным местом для встреч с друзьями и наслаждения окружающей природой. Внутри ожидают светлые, просторные помещения с мягкими акцентами в виде деревянных панелей, которые подчёркивают естественность и современность дизайна. Благодаря продуманному расположению окон и вентиляции, каждая комната остаётся прохладной летом и тёплой зимой, обеспечивая комфорт без компромиссов. Если вы ищете дом, где каждая деталь продумана до мелочи, а гармония со средой природой превыше всего – наш скандинавский дом из клееного бруса станет идеальным выбором. Откройте для себя новую жизнь, где каждый день начинается с вдохновения и заканчивается уюта. Свяжитесь с нами, чтобы узнать больше и увидеть, как наш проект трансформирует вашу мечту в реальность.

Характеристики дома

Архитектурный стиль
Скандинавский
Автоматизированное регулирование параметров теплоносителя
Нет
Балконы/лоджии
Отсутствуют
Чердачное помещение
Нет
Датчики протечки воды
Нет
Эксплуатируемая или зеленая кровля
Нет
Электроснабжение
Индивидуальное
Газоснабжение
Не предусмотрено
Изоляция воздушного шума
Нет
Камин
Нет
Класс энергоэффективности
-
Класс энергосбережения
-
Количество надземных этажей
1
Круглогодичное проживание
Да
Материал кровли
Металлочерепица
Материал перекрытий
Деревянные
Материал внешних стен
Клеёный брус
Материал внутренних перегородок
Деревянные
Модульное строительство с конструкциями заводского изготовления
Нет
Объем надземной части
480 м3
Основной материал фасадов
Дерево
Отопление
Индивидуальное
Площадь дома
100 м2
Площадь застройки
118 м2
Подвальное помещение
Нет
Показатель компактности здания
-
Приборы учета тепловой энергии
Нет
Пристроенный гараж/крытая автостоянка
Нет
Противопожарная система
Нет
Санузлы
1
Совмещенная кухня-гостиная
Да
Спальни
2
Терраса
Да
Тип фундамента
Свайный
Тип кровли
Двускатная
Толщина внешних стен
200 мм
Толщина внутренних перегородок
130 мм
Улучшенные шумовые характеристики
Нет
Вентиляция
Естественная
Веранда
Нет
Водоотведение
Локальные очистные сооружения
Водоснабжение
Индивидуальное
Высота дома
4.6 м
Высота потолков
2.7 м

Планировка

Фасад дома

Александр

Закажите выезд инженера

Александр

Выездной инженер
Закажите выезд инженера для точной диагностики и профессиональной консультации по инженерным системам. Специалист приедет в удобное время, проведёт осмотр, рассчитает стоимость работ и подберёт оптимальные решения для вашего дома.


    Похожие проекты

    Ипотека и
    рассрочка
    Браун
    Стоимость от:
    6 011 720
    Проект от: 46 800
    Этажей 1
    Санузлы 1
    Спальни 3
    Смотреть
    Ипотека и
    рассрочка
    Загородный дом АС-252
    Стоимость от:
    14 983 980
    Проект от: 98 550
    Этажей 1
    Санузлы 3
    Спальни 3
    Смотреть
    Ипотека и
    рассрочка
    ЕР-1
    Стоимость от:
    10 605 100
    Проект от: 69 750
    Этажей 1
    Санузлы 1
    Спальни 3
    Смотреть
    Ипотека и
    рассрочка
    EFFECT LIGHT 59
    Стоимость от:
    3 605 195
    Проект от: 26 550
    Этажей 1
    Санузлы 1
    Спальни 2
    Смотреть
    Ипотека и
    рассрочка
    Барнхаус 68
    Стоимость от:
    3 792 360
    Проект от: 30 600
    Этажей 1
    Санузлы 1
    Спальни 2
    Смотреть
    Ипотека и
    рассрочка
    Жилой дом DC 77
    Стоимость от:
    5 815 260
    Проект от: 32 850
    Этажей 1
    Санузлы 1
    Спальни 2
    Смотреть

    Как узнать стоимость дома

    back
    Оставляете заявку
    Вы заполняете форму на сайте или звоните нам. Менеджер Лайвкрафт связывается с вами для уточнения деталей: тип дома, площадь, материалы, участок строительства.
    back
    Консультация и подбор решения
    Наш специалист помогает выбрать оптимальный тип дома и конструкцию с учётом бюджета, сроков и целей — будь то дом для постоянного проживания или дача.
    back
    Расчёт предварительной стоимости
    Инженер делает первичный расчёт стоимости строительства по вашим параметрам: фундамент, коробка, кровля, отделка. Вы получаете смету с разбивкой по этапам.
    back
    Корректировка и утверждение сметы
    При необходимости вносим изменения — например, замену материалов или сокращение этапов. После согласования формируется окончательная фиксированная смета.
    back
    Заключение договора и старт работ
    После утверждения сметы заключаем официальный договор с гарантией. Вы получаете прозрачный график и точную стоимость — без скрытых расходов.

    Заказать конусльтацию по:Дом из клееного бруса по индивидуальному проекту №2

    Фото 1 Дом из клееного бруса по индивидуальному проекту №2


      Наши
      контакты

      Дмитров
      Опорный проезд 28Б
      (индустриальный парк Ниагара)
      9:00 до 18:00