4.9
Рейтинг на основании 120 отзывов
Дмитров
Опорный проезд 28Б
(индустриальный парк Ниагара)
Бренд "Дмитров-Дело" c 2008 года на рынке строительства в Дмитрове
Звоните 9:00 до 18:00 8 (915) 055-33-61
Бренд "Дмитров-Дело" c 2008 года на рынке строительства в Дмитрове

Дом из клееного бруса по проекту БД-106

Стоимость проекта от:
46 800 ₽
БЕСПЛАТНО! ПРИ ЗАКАЗЕ СТРОИТЕЛЬСТВА
Стоимость строительства от:
6 600 880 ₽
Артикул ART-18098
Дата 26.12.2025
Архитектурный стиль Скандинавский
Количество надземных этажей 1
Круглогодичное проживание Да
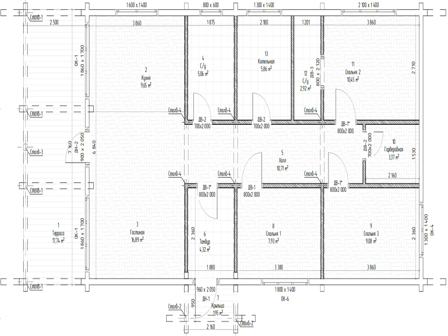
Площадь дома 104 м2
Санузлы 2
Спальни 3

Описание

**Приглашаем вас познакомиться с уникальным домом из клееного бруса — проектом БД‑106, воплощённым в реальность в истинном скандинавском стиле.** Это уютное загородное пространство, где каждый элемент был продуман до мелочей: строгая геометрия крыши с двойным склоном, гармоничный цвет бруса, создающий ощущение тепла и природной простоты. На первом (и единственном) этаже находится все необходимое для комфорта: просторное открытое пространство, достаточное для размещения всей мебели, и, конечно же, атмосфера, где чувствуется забота о деталях и любовь к уюту. Дом рассчитан на **всесезонное проживание**: утеплённый клеённый брус гарантирует тепло зимой и прохладу летом, а прочные, долговечные материалы обеспечивают надёжность и минимальный уход. По проекту предусмотрено **чердачное помещение** — идеальное место для хранения, мастерской или домашнего офиса, а открытая **терраса** приглашает к вечерним беседам, просмотру звездного неба и ароматам свежего воздуха. Это место, где комфорт сочетается с практичностью: отсутствие балконов, веранд и прикрытых стоянок только подчёркивает лаконичность и современность дизайна, а ровные линии крыши подчеркивают элегантность архитектуры. Скандинавский стиль в доме БД‑106 проявляется не только в выборе материалов, но и в тонко подобранных цветовых решениях, которые создают светлую, воздушную атмосферу, и в функциональной простоте, благодаря которой каждый сантиметр пространства используется максимально эффективно. Этот дом — идеальное решение для тех, кто ценит тепло, уют и простоту, но при этом хочет жить в современной, экологичной и надёжной архитектуре. Будьте готовы открыть для себя новый уровень комфорта и эстетики, где каждое утро начинается с вдохновляющего вида на природу и мягкого звучания ветра в сводных стенах.

Характеристики дома

Архитектурный стиль
Автоматизированное регулирование параметров теплоносителя
Нет
Балконы/лоджии
Отсутствуют
Чердачное помещение
Да
Датчики протечки воды
Нет
Эксплуатируемая или зеленая кровля
Нет
Электроснабжение
Центральное
Газоснабжение
Не предусмотрено
Изоляция воздушного шума
Нет
Камин
Нет
Класс энергоэффективности
-
Класс энергосбережения
-
Количество надземных этажей
1
Круглогодичное проживание
Да
Материал кровли
Металлочерепица
Материал перекрытий
Деревянные
Материал внешних стен
Материал внутренних перегородок
Деревянные
Модульное строительство с конструкциями заводского изготовления
Нет
Объем надземной части
468 м3
Основной материал фасадов
Дерево
Отопление
Индивидуальное
Площадь дома
104 м2
Площадь застройки
118 м2
Подвальное помещение
Нет
Показатель компактности здания
-
Приборы учета тепловой энергии
Нет
Пристроенный гараж/крытая автостоянка
Нет
Противопожарная система
Нет
Санузлы
2
Совмещенная кухня-гостиная
Да
Спальни
3
Терраса
Да
Тип фундамента
Свайный
Тип кровли
Толщина внешних стен
160 мм
Толщина внутренних перегородок
130 мм
Улучшенные шумовые характеристики
Нет
Вентиляция
Естественная
Веранда
Нет
Водоотведение
Локальные очистные сооружения
Водоснабжение
Индивидуальное
Высота дома
4.6 м
Высота потолков
2.8 м

Планировка

Фасад дома

Александр

Закажите выезд инженера

Александр

Выездной инженер
Закажите выезд инженера для точной диагностики и профессиональной консультации по инженерным системам. Специалист приедет в удобное время, проведёт осмотр, рассчитает стоимость работ и подберёт оптимальные решения для вашего дома.


    Похожие проекты

    Ипотека и
    рассрочка
    Одноэтажный дом Монс 111
    Стоимость от:
    9 373 540
    Проект от: 61 650
    Этажей 1
    Санузлы 3
    Спальни 3
    Смотреть
    Ипотека и
    рассрочка
    Жилой дом s-75
    Стоимость от:
    6 464 920
    Проект от: 38 700
    Этажей 1
    Санузлы 1
    Спальни 2
    Смотреть
    Ипотека и
    рассрочка
    Одноэтажный дом 94,64 м2
    Стоимость от:
    6 638 280
    Проект от: 42 300
    Этажей 1
    Санузлы 2
    Спальни 3
    Смотреть
    Ипотека и
    рассрочка
    К.1.-85
    Стоимость от:
    6 389 900
    Проект от: 38 250
    Этажей 1
    Санузлы 2
    Спальни 3
    Смотреть
    Ипотека и
    рассрочка
    Дом из клееного бруса «Адыгейск»
    Стоимость от:
    15 992 880
    Проект от: 111 150
    Этажей 2
    Санузлы 4
    Спальни 4
    Смотреть
    Ипотека и
    рассрочка
    БУНГАЛО-128
    Стоимость от:
    10 666 040
    Проект от: 63 900
    Этажей 1
    Санузлы 2
    Спальни 2
    Смотреть

    Как узнать стоимость дома

    back
    Оставляете заявку
    Вы заполняете форму на сайте или звоните нам. Менеджер Лайвкрафт связывается с вами для уточнения деталей: тип дома, площадь, материалы, участок строительства.
    back
    Консультация и подбор решения
    Наш специалист помогает выбрать оптимальный тип дома и конструкцию с учётом бюджета, сроков и целей — будь то дом для постоянного проживания или дача.
    back
    Расчёт предварительной стоимости
    Инженер делает первичный расчёт стоимости строительства по вашим параметрам: фундамент, коробка, кровля, отделка. Вы получаете смету с разбивкой по этапам.
    back
    Корректировка и утверждение сметы
    При необходимости вносим изменения — например, замену материалов или сокращение этапов. После согласования формируется окончательная фиксированная смета.
    back
    Заключение договора и старт работ
    После утверждения сметы заключаем официальный договор с гарантией. Вы получаете прозрачный график и точную стоимость — без скрытых расходов.

    Заказать конусльтацию по:Дом из клееного бруса по проекту БД-106

    Фото 1 Дом из клееного бруса по проекту БД-106


      Наши
      контакты

      Дмитров
      Опорный проезд 28Б
      (индустриальный парк Ниагара)
      9:00 до 18:00

      Корзина