4.9
Рейтинг на основании 120 отзывов
Дмитров
Опорный проезд 28Б
(индустриальный парк Ниагара)
Бренд "Дмитров-Дело" c 2008 года на рынке строительства в Дмитрове
Звоните 9:00 до 18:00 8 (915) 055-33-61
Бренд "Дмитров-Дело" c 2008 года на рынке строительства в Дмитрове

Дом из клееного бруса Подольск-2

Стоимость проекта от:
45 000 ₽
БЕСПЛАТНО! ПРИ ЗАКАЗЕ СТРОИТЕЛЬСТВА
Стоимость строительства от:
6 347 000 ₽
Артикул ART-10065
Дата 25.12.2025
Архитектурный стиль Европейский
Количество надземных этажей 1
Круглогодичное проживание Да
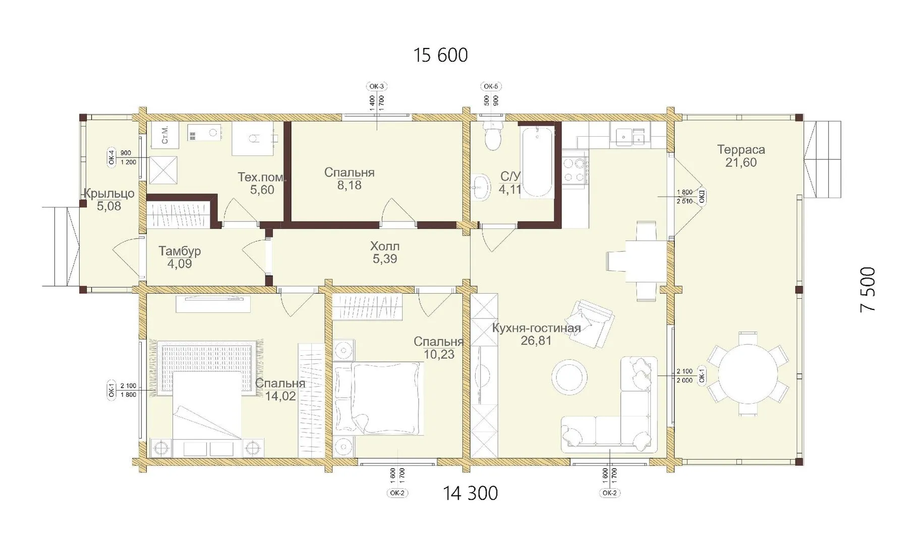
Площадь дома 100 м2
Санузлы 1
Спальни 3

Описание

**Подольск‑2 – ваш уютный уголок в сердце природы** Эта одноэтажная деревянная резиденция – настоящая жемчужина европейского стиля, созданная из клееного бруса и обрамляющая каждый уголок гармонией и теплом. Дом, словно живое дерево, пропитан естественным материалом, обеспечивающим не только эстетику, но и отличную теплоизоляцию. Благодаря обустроенной крыше‑двускатной конструкции и качественным материалам снаружи, ваш дом становится уютным убежищем в любое время года – от солнечных летних дней до холодных зимних вечеров. Терраса, спроектированная как продолжение внутреннего пространства, приглашает к вечерним беседам под звёздным небом, к семейным завтракам на свежем воздухе или просто к моментам уединения с природой. Даже без балконов и веранд вы получите полноценное открытое пространство, где каждый взгляд видит просторы, а каждая стуктура – лёгкость бытия. При наличии современных инженерных систем и продумываемого планирования, жить здесь удобно: от компактного подъёма до экономичного отопления, ваш дом становится настоящим оазисом комфорта. Выбирая Подольск‑2, вы выбираете стиль, качество и комфорт, объединённые в одном целостном, гармоничном пространстве, которое ждёт вас с распростёртыми объятиями. Это не просто жильё – это ваше новое, теплое пристанище, где каждый день начинается и заканчивается благожелательным уютом.

Характеристики дома

Архитектурный стиль
Автоматизированное регулирование параметров теплоносителя
Нет
Балконы/лоджии
Отсутствуют
Чердачное помещение
Нет
Датчики протечки воды
Нет
Эксплуатируемая или зеленая кровля
Нет
Электроснабжение
2 варианта
Газоснабжение
2 варианта
Изоляция воздушного шума
Нет
Камин
Нет
Класс энергоэффективности
-
Класс энергосбережения
-
Количество надземных этажей
1
Круглогодичное проживание
Да
Материал кровли
Металлочерепица
Материал перекрытий
Деревянные
Материал внешних стен
Материал внутренних перегородок
Деревянные
Модульное строительство с конструкциями заводского изготовления
Нет
Объем надземной части
468 м3
Основной материал фасадов
Дерево
Отопление
2 варианта
Площадь дома
100 м2
Площадь застройки
117 м2
Подвальное помещение
Нет
Показатель компактности здания
-
Приборы учета тепловой энергии
Нет
Пристроенный гараж/крытая автостоянка
Нет
Противопожарная система
Нет
Санузлы
1
Совмещенная кухня-гостиная
Да
Спальни
3
Терраса
Да
Тип фундамента
Свайный
Тип кровли
Толщина внешних стен
160 мм
Толщина внутренних перегородок
150 мм
Улучшенные шумовые характеристики
Нет
Вентиляция
Принудительная
Веранда
Нет
Водоотведение
2 варианта
Водоснабжение
2 варианта
Высота дома
4.1 м
Высота потолков
4 м

Планировка

Фасад дома

Александр

Закажите выезд инженера

Александр

Выездной инженер
Закажите выезд инженера для точной диагностики и профессиональной консультации по инженерным системам. Специалист приедет в удобное время, проведёт осмотр, рассчитает стоимость работ и подберёт оптимальные решения для вашего дома.


    Похожие проекты

    Ипотека и
    рассрочка
    Сканди-1(короед)
    Стоимость от:
    8 436 120
    Проект от: 47 700
    Этажей 1
    Санузлы 2
    Спальни 3
    Смотреть
    Ипотека и
    рассрочка
    Проект Толстого
    Стоимость от:
    8 265 400
    Проект от: 49 500
    Этажей 1
    Санузлы 2
    Спальни 3
    Смотреть
    Ипотека и
    рассрочка
    Частный двухэтажный дом с мансардой S3-103 (Z177)
    Стоимость от:
    12 110 880
    Проект от: 72 900
    Этажей 2
    Санузлы 3
    Спальни 4
    Смотреть
    Ипотека и
    рассрочка
    Двухэтажный дом Д-105
    Стоимость от:
    7 868 400
    Проект от: 47 250
    Этажей 2
    Санузлы 2
    Спальни 4
    Смотреть
    Ипотека и
    рассрочка
    Уютный 112
    Стоимость от:
    8 347 240
    Проект от: 54 900
    Этажей 1
    Санузлы 2
    Спальни 3
    Смотреть
    Ипотека и
    рассрочка
    Дом из клееного бруса «Углич»
    Стоимость от:
    14 957 040
    Проект от: 103 950
    Этажей 2
    Санузлы 3
    Спальни 4
    Смотреть

    Как узнать стоимость дома

    back
    Оставляете заявку
    Вы заполняете форму на сайте или звоните нам. Менеджер Лайвкрафт связывается с вами для уточнения деталей: тип дома, площадь, материалы, участок строительства.
    back
    Консультация и подбор решения
    Наш специалист помогает выбрать оптимальный тип дома и конструкцию с учётом бюджета, сроков и целей — будь то дом для постоянного проживания или дача.
    back
    Расчёт предварительной стоимости
    Инженер делает первичный расчёт стоимости строительства по вашим параметрам: фундамент, коробка, кровля, отделка. Вы получаете смету с разбивкой по этапам.
    back
    Корректировка и утверждение сметы
    При необходимости вносим изменения — например, замену материалов или сокращение этапов. После согласования формируется окончательная фиксированная смета.
    back
    Заключение договора и старт работ
    После утверждения сметы заключаем официальный договор с гарантией. Вы получаете прозрачный график и точную стоимость — без скрытых расходов.

    Заказать конусльтацию по:Дом из клееного бруса Подольск-2

    Фото 1 Дом из клееного бруса Подольск-2


      Наши
      контакты

      Дмитров
      Опорный проезд 28Б
      (индустриальный парк Ниагара)
      9:00 до 18:00

      Корзина