4.9
Рейтинг на основании 120 отзывов
Дмитров
Опорный проезд 28Б
(индустриальный парк Ниагара)
Бренд "Дмитров-Дело" c 2008 года на рынке строительства в Дмитрове
Звоните 9:00 до 18:00 8 (915) 055-33-61
Бренд "Дмитров-Дело" c 2008 года на рынке строительства в Дмитрове

Дом из клееного бруса «Сварог»

Стоимость проекта от:
62 550 ₽
БЕСПЛАТНО! ПРИ ЗАКАЗЕ СТРОИТЕЛЬСТВА
Стоимость строительства от:
8 516 530 ₽
Артикул ART-2179
Дата 26.12.2025
Архитектурный стиль Классический
Количество надземных этажей 1
Круглогодичное проживание Да
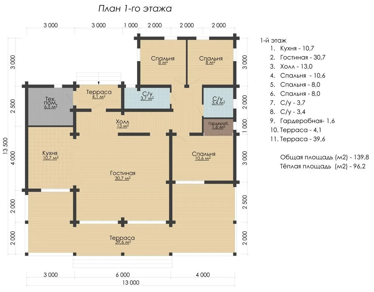
Площадь дома 139 м2
Санузлы 2
Спальни 3

Описание

Погрузитесь в атмосферу уюта и гармонии, которую дарит дом из клееного бруса «Сварог». Уникальный сочетание классического архитектурного стиля и современных строительных технологий создает идеальное место для комфортной жизни в любое время года. Зовут к себе просторную, светлую жилую площадью с двумя балконами и лоджеями, где каждое утро начинается с ароматного кофе, а вечер завершается панорамным видом на уютный двор. Внешние стены, выполненные из прочного клееного бруса, придают дому натуральный и теплый облик, а четырехскатная кровля в традиционной вальмовой форме дополняет эстетику, создавая характерный силуэт в любом рассвете и зареве. Квартира отличается классическим планированием – один надземный жеём, благодаря чему каждый уголок пропитан природной светлой атмосферой. Веранда обеспечивает дополнительное пространство для спокойной беседы с природой, а отсутствие чердака и крытой автостоянки позволяет сконцентрироваться на создании уютного, спокойного пространства без лишних забот. Жизнь в «Свароге» – это выбор, который сочетает в себе благородство классического дизайна, практичность материала, а также тепло и покой, которые дарит дом из бруса. Приезжайте и убедитесь лично: здесь каждый день будет напоминанием о том, как важно жить в гармонии с природой и собственным телом.

Характеристики дома

Архитектурный стиль
Автоматизированное регулирование параметров теплоносителя
-
Балконы/лоджии
2
Чердачное помещение
Нет
Датчики протечки воды
-
Эксплуатируемая или зеленая кровля
-
Электроснабжение
2 варианта
Газоснабжение
2 варианта
Изоляция воздушного шума
-
Камин
Нет
Класс энергоэффективности
-
Класс энергосбережения
-
Количество надземных этажей
1
Круглогодичное проживание
Да
Материал кровли
Металлические листовые гофрированные профили
Материал перекрытий
Деревянные
Материал внешних стен
Материал внутренних перегородок
Деревянные
Модульное строительство с конструкциями заводского изготовления
Нет
Объем надземной части
649 м3
Основной материал фасадов
Дерево
Отопление
2 варианта
Площадь дома
139 м2
Площадь застройки
175 м2
Подвальное помещение
Нет
Показатель компактности здания
-
Приборы учета тепловой энергии
-
Пристроенный гараж/крытая автостоянка
Нет
Противопожарная система
Нет
Санузлы
2
Совмещенная кухня-гостиная
Нет
Спальни
3
Терраса
Нет
Тип фундамента
Свайный
Толщина внешних стен
200 мм
Толщина внутренних перегородок
160 мм
Улучшенные шумовые характеристики
-
Вентиляция
2 варианта
Веранда
Да
Водоотведение
2 варианта
Водоснабжение
2 варианта
Высота дома
3.7 м
Высота потолков
2.7 м

Планировка

Фасад дома

Александр

Закажите выезд инженера

Александр

Выездной инженер
Закажите выезд инженера для точной диагностики и профессиональной консультации по инженерным системам. Специалист приедет в удобное время, проведёт осмотр, рассчитает стоимость работ и подберёт оптимальные решения для вашего дома.


    Похожие проекты

    Ипотека и
    рассрочка
    Проект A020
    Стоимость от:
    4 637 760
    Проект от: 28 800
    Этажей 2
    Санузлы 2
    Спальни 2
    Смотреть
    Ипотека и
    рассрочка
    Провансаль
    Стоимость от:
    12 264 840
    Проект от: 83 700
    Этажей 2
    Санузлы 2
    Спальни 4
    Смотреть
    Ипотека и
    рассрочка
    Элегантный одноэтажный дом для семьи с двумя детьми S3-104-1 (Z369 D)
    Стоимость от:
    10 421 620
    Проект от: 58 950
    Этажей 1
    Санузлы 2
    Спальни 3
    Смотреть
    Ипотека и
    рассрочка
    Динская 167
    Стоимость от:
    12 088 080
    Проект от: 75 150
    Этажей 2
    Санузлы 2
    Спальни 3
    Смотреть
    Ипотека и
    рассрочка
    СД_6159
    Стоимость от:
    6 949 440
    Проект от: 43 200
    Этажей 2
    Санузлы 2
    Спальни 3
    Смотреть
    Ипотека и
    рассрочка
    Гранит 86
    Стоимость от:
    7 132 620
    Проект от: 45 450
    Этажей 1
    Санузлы 1
    Спальни 3
    Смотреть

    Как узнать стоимость дома

    back
    Оставляете заявку
    Вы заполняете форму на сайте или звоните нам. Менеджер Лайвкрафт связывается с вами для уточнения деталей: тип дома, площадь, материалы, участок строительства.
    back
    Консультация и подбор решения
    Наш специалист помогает выбрать оптимальный тип дома и конструкцию с учётом бюджета, сроков и целей — будь то дом для постоянного проживания или дача.
    back
    Расчёт предварительной стоимости
    Инженер делает первичный расчёт стоимости строительства по вашим параметрам: фундамент, коробка, кровля, отделка. Вы получаете смету с разбивкой по этапам.
    back
    Корректировка и утверждение сметы
    При необходимости вносим изменения — например, замену материалов или сокращение этапов. После согласования формируется окончательная фиксированная смета.
    back
    Заключение договора и старт работ
    После утверждения сметы заключаем официальный договор с гарантией. Вы получаете прозрачный график и точную стоимость — без скрытых расходов.

    Заказать конусльтацию по:Дом из клееного бруса «Сварог»

    Фото 1 Дом из клееного бруса «Сварог»


      Наши
      контакты

      Дмитров
      Опорный проезд 28Б
      (индустриальный парк Ниагара)
      9:00 до 18:00

      Корзина