4.9
Рейтинг на основании 120 отзывов
Дмитров
Опорный проезд 28Б
(индустриальный парк Ниагара)
Бренд "Дмитров-Дело" c 2008 года на рынке строительства в Дмитрове
Звоните 9:00 до 18:00 8 (915) 055-33-61
Бренд "Дмитров-Дело" c 2008 года на рынке строительства в Дмитрове

Дом из сборного железобетона FP-3у «Big Boss 2.0»

Стоимость проекта от:
91 800 ₽
БЕСПЛАТНО! ПРИ ЗАКАЗЕ СТРОИТЕЛЬСТВА
Стоимость строительства от:
13 957 680 ₽
Артикул ART-11725
Дата 25.12.2025
Архитектурный стиль Хайтек
Количество надземных этажей 1
Круглогодичное проживание Да
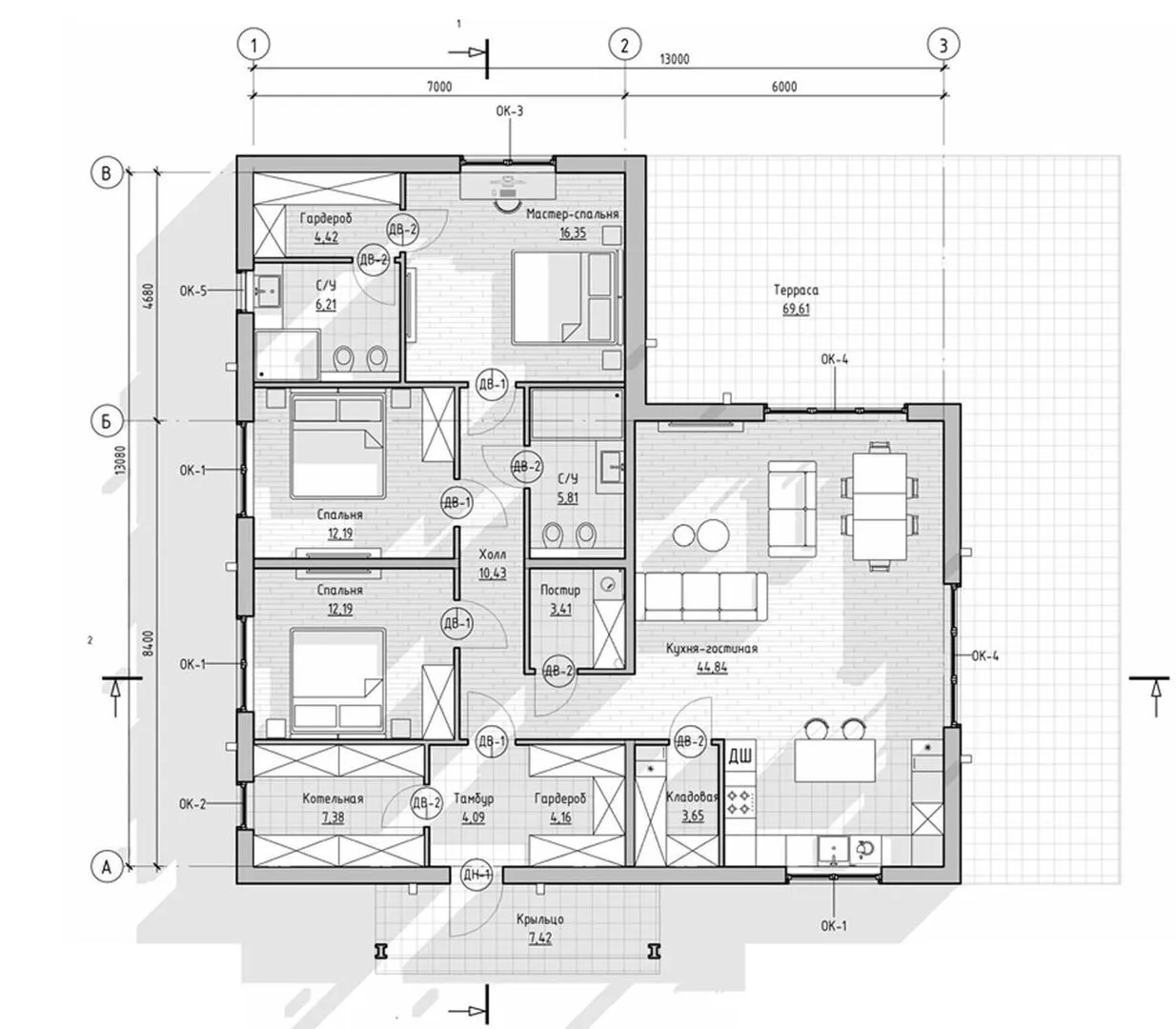
Площадь дома 204 м2
Санузлы 2
Спальни 3

Описание

Встречайте настоящий архитектурный шедевр – дом из сборного железобетона FP‑3у «Big Boss 2.0». Этот монолитный корпус, выполненный в стиле хай‑тек, сразу бросается в глаза своей современной геометрией и чистыми линиями. Несмотря на то, что на фасадах не предусмотрены балконы, лоджии или веранда, открытая терраса станет вашим личным оазисом, где можно наслаждаться прохладой летнего ветра или загаром в тени уютного заката. Интерьер одного уровня организован так, чтобы пространство ощущалось большим и светлым. Стены из высококачественного железобетона гарантируют безопасность и долговечность, а плоская крыша придаёт дому лаконичность и возможность интегрировать солнечные панели, делая «Big Boss 2.0» энергоэффективным и экологичным. Круглогодичное проживание в этом доме – это не просто удобство, а уверенность в том, что ваши вложения будут защищены от холода, влажности и прочих природных воздействий. Этот дом – идеальный выбор для тех, кто ценит сочетание современной эстетики, практичности и экономии на обслуживании. С его стильным фасадом и продуманной планировкой вы получите не только крышу над головой, но и надёжный, уютный дом, в котором каждый день будет открытием самых приятных деталей. Приглашаем вас открыть для себя «Big Boss 2.0» – место, где технологии встречаются с комфортом, а дизайн превращается в ваш комфорт.

Характеристики дома

Архитектурный стиль
Автоматизированное регулирование параметров теплоносителя
Да
Балконы/лоджии
Отсутствуют
Чердачное помещение
Нет
Датчики протечки воды
Нет
Эксплуатируемая или зеленая кровля
Нет
Электроснабжение
Центральное
Газоснабжение
Центральное
Изоляция воздушного шума
Нет
Камин
Нет
Класс энергоэффективности
-
Класс энергосбережения
-
Количество надземных этажей
1
Круглогодичное проживание
Да
Материал кровли
ПВХ мембраны
Материал перекрытий
Сборно-монолитные железобетонные
Материал внешних стен
Материал внутренних перегородок
Блочные
Модульное строительство с конструкциями заводского изготовления
Нет
Объем надземной части
612 м3
Основной материал фасадов
Штукатурка
Отопление
2 варианта
Площадь дома
204 м2
Площадь застройки
212 м2
Подвальное помещение
Нет
Показатель компактности здания
-
Приборы учета тепловой энергии
Да
Пристроенный гараж/крытая автостоянка
Нет
Противопожарная система
Нет
Санузлы
2
Совмещенная кухня-гостиная
Да
Спальни
3
Терраса
Да
Тип фундамента
Плитный
Тип кровли
Толщина внешних стен
350 мм
Толщина внутренних перегородок
100 мм
Улучшенные шумовые характеристики
Нет
Вентиляция
Естественная
Веранда
Нет
Водоотведение
2 варианта
Водоснабжение
2 варианта
Высота дома
4 м
Высота потолков
3 м

Планировка

Фасад дома

Александр

Закажите выезд инженера

Александр

Выездной инженер
Закажите выезд инженера для точной диагностики и профессиональной консультации по инженерным системам. Специалист приедет в удобное время, проведёт осмотр, рассчитает стоимость работ и подберёт оптимальные решения для вашего дома.


    Похожие проекты

    Ипотека и
    рассрочка
    Проект в Рябине
    Стоимость от:
    8 040 340
    Проект от: 48 150
    Этажей 1
    Санузлы 2
    Спальни 3
    Смотреть
    Ипотека и
    рассрочка
    Одноэтажный дом 130
    Стоимость от:
    10 522 380
    Проект от: 67 050
    Этажей 1
    Санузлы 1
    Спальни 3
    Смотреть
    Ипотека и
    рассрочка
    Кирпичный дом GS-80
    Стоимость от:
    6 014 800
    Проект от: 36 000
    Этажей 1
    Санузлы 1
    Спальни 3
    Смотреть
    Ипотека и
    рассрочка
    Проект «Брусника»
    Стоимость от:
    7 679 870
    Проект от: 54 450
    Этажей 1
    Санузлы 2
    Спальни 3
    Смотреть
    Ипотека и
    рассрочка
    Загородный одноэтажный дом с гаражом «Барнхаус С01»
    Стоимость от:
    6 783 810
    Проект от: 54 900
    Этажей 1
    Санузлы 2
    Спальни 2
    Смотреть
    Ипотека и
    рассрочка
    Одноэтажный дом FIXPLANS — 2330
    Стоимость от:
    9 150 900
    Проект от: 51 750
    Этажей 1
    Санузлы 2
    Спальни 3
    Смотреть

    Как узнать стоимость дома

    back
    Оставляете заявку
    Вы заполняете форму на сайте или звоните нам. Менеджер Лайвкрафт связывается с вами для уточнения деталей: тип дома, площадь, материалы, участок строительства.
    back
    Консультация и подбор решения
    Наш специалист помогает выбрать оптимальный тип дома и конструкцию с учётом бюджета, сроков и целей — будь то дом для постоянного проживания или дача.
    back
    Расчёт предварительной стоимости
    Инженер делает первичный расчёт стоимости строительства по вашим параметрам: фундамент, коробка, кровля, отделка. Вы получаете смету с разбивкой по этапам.
    back
    Корректировка и утверждение сметы
    При необходимости вносим изменения — например, замену материалов или сокращение этапов. После согласования формируется окончательная фиксированная смета.
    back
    Заключение договора и старт работ
    После утверждения сметы заключаем официальный договор с гарантией. Вы получаете прозрачный график и точную стоимость — без скрытых расходов.

    Заказать конусльтацию по:Дом из сборного железобетона FP-3у «Big Boss 2.0»

    Фото 1 Дом из сборного железобетона FP-3у «Big Boss 2.0»


      Наши
      контакты

      Дмитров
      Опорный проезд 28Б
      (индустриальный парк Ниагара)
      9:00 до 18:00

      Корзина