4.9
Рейтинг на основании 120 отзывов
Дмитров
Опорный проезд 28Б
(индустриальный парк Ниагара)
Бренд "Дмитров-Дело" c 2008 года на рынке строительства в Дмитрове
Звоните 9:00 до 18:00 8 (915) 055-33-61
Бренд "Дмитров-Дело" c 2008 года на рынке строительства в Дмитрове

Дом ИЖС 100К

Стоимость проекта от:
57 150 ₽
Стоимость строительства от:
8 968 740 ₽
Артикул ART-16363
Дата 26.12.2025
Архитектурный стиль Классический
Количество надземных этажей 1
Круглогодичное проживание Да
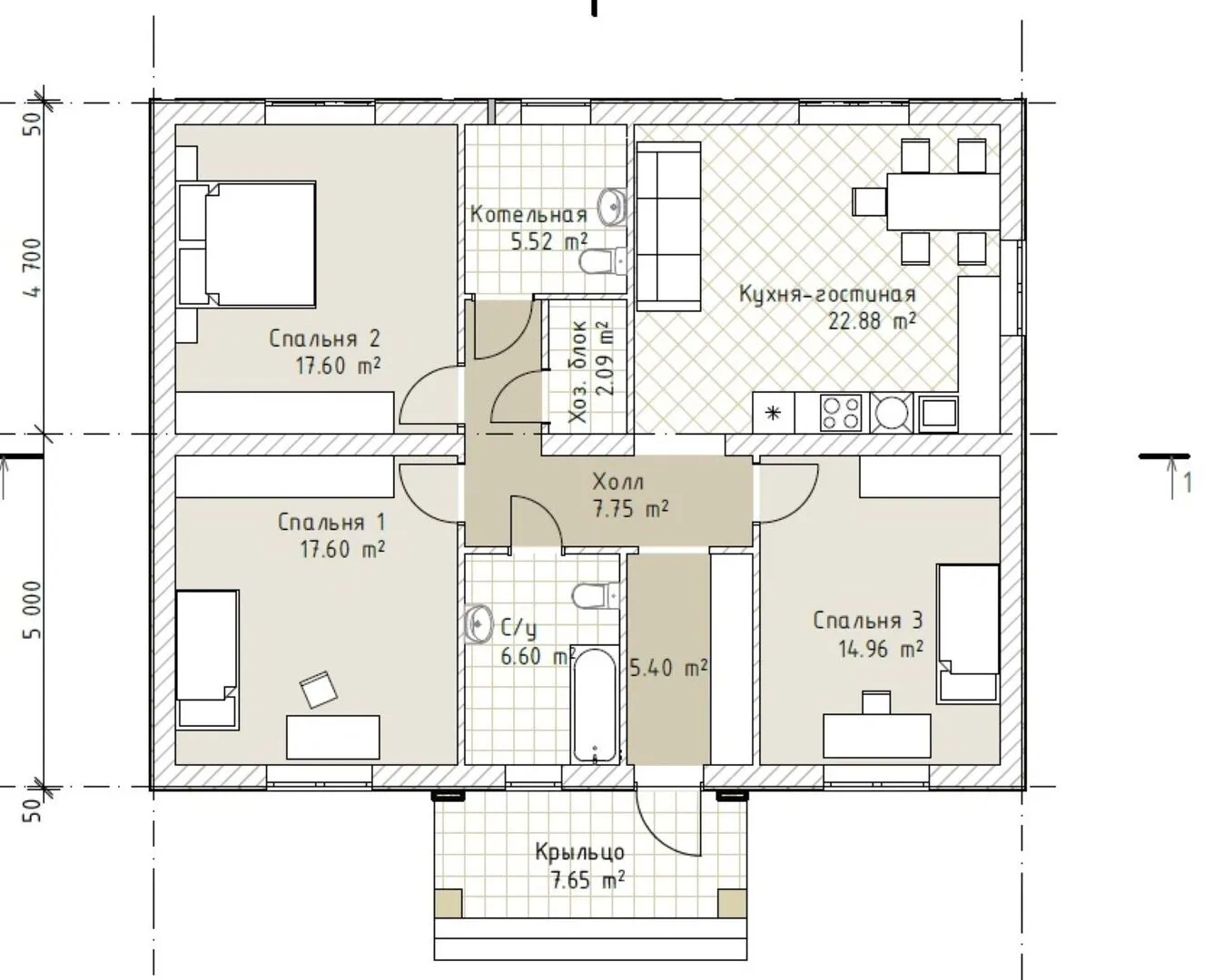
Площадь дома 127 м2
Санузлы 1
Спальни 3

Описание

Откройте для себя уют и элегантность наивного классического стиля в нашем доме, построенном из прочных газобетонных блоков. Здание с одной надземной площадью аккуратно сочетает традиционные черты классики — симметричные фасады, аккуратные фронтоны и изящные оконные рамы — с практичностью, необходимой для комфортной жизни в любое время года. Благодаря использованию четырехскатной (валмовой) кровли, ваш дом отнесёт к минимуму риск протечек и обеспечит надёжную защиту от непогоды, делая его идеальным для круглогодичного обитания. Интерьер отличается простотой и функциональностью: без лишних балконов и веранд, вся площадь сосредоточена внутри, создавая ощущение тесенного сплочённого пространства. Притягательным дополнением станет чердачное помещение, которое можно превратить в уютную мастерскую, кладовую или же небольшую гостиную — пространство для творчества и личных проектов. Отсутствие прицепного гаража обыденно воспринимается как отсутствие лишних шумов и загрязнений, а чистый, открытý внутренний двор позволяет наслаждаться тихим воздухом без лишних хлопот. Этот дом — идеальный выбор для тех, кто ценит традиционный дизайн, но хочет при этом жить комфортно в современном обществе. Он предлагает сочетание надёжности строительства из газобетона, практичности чердака и элегантной классической композиции, которые создают неповторимый уют и гармонию в каждом уголке. Приглашаем вас открыть для себя новое измерение домашнего комфорта, где каждая деталь пропитана вниманием к вашему благополучию.

Характеристики дома

Архитектурный стиль
Классический
Автоматизированное регулирование параметров теплоносителя
Нет
Балконы/лоджии
Отсутствуют
Чердачное помещение
Да
Датчики протечки воды
Нет
Эксплуатируемая или зеленая кровля
Нет
Электроснабжение
2 варианта
Газоснабжение
2 варианта
Изоляция воздушного шума
Нет
Камин
Нет
Класс энергоэффективности
-
Класс энергосбережения
-
Количество надземных этажей
1
Круглогодичное проживание
Да
Материал кровли
Металлочерепица
Материал перекрытий
Деревянные
Материал внешних стен
Газобетонные блоки
Материал внутренних перегородок
Пенобетонные
Модульное строительство с конструкциями заводского изготовления
Нет
Объем надземной части
-
Основной материал фасадов
Штукатурка
Отопление
2 варианта
Площадь дома
127 м2
Площадь застройки
133 м2
Подвальное помещение
Нет
Показатель компактности здания
-
Приборы учета тепловой энергии
Нет
Пристроенный гараж/крытая автостоянка
Нет
Противопожарная система
Нет
Санузлы
1
Совмещенная кухня-гостиная
Да
Спальни
3
Терраса
Нет
Тип фундамента
Плитный
Тип кровли
Четырехскатная (вальмовая)
Толщина внешних стен
300 мм
Толщина внутренних перегородок
100 мм
Улучшенные шумовые характеристики
Нет
Вентиляция
Естественная
Веранда
Нет
Водоотведение
2 варианта
Водоснабжение
2 варианта
Высота дома
5.7 м
Высота потолков
3 м

Планировка

Фасад дома

Александр

Закажите выезд инженера

Александр

Выездной инженер
Закажите выезд инженера для точной диагностики и профессиональной консультации по инженерным системам. Специалист приедет в удобное время, проведёт осмотр, рассчитает стоимость работ и подберёт оптимальные решения для вашего дома.


    Похожие проекты

    Ипотека и
    рассрочка
    Одноэтажный дом с террасой ЦН-117
    Стоимость от:
    7 149 285
    Проект от: 52 650
    Этажей 1
    Санузлы 2
    Спальни 3
    Смотреть
    Ипотека и
    рассрочка
    КД-1-8
    Стоимость от:
    7 006 560
    Проект от: 39 600
    Этажей 1
    Санузлы 1
    Спальни 3
    Смотреть
    Ипотека и
    рассрочка
    Корнфилд 107
    Стоимость от:
    282 480
    Проект от: 48 150
    Этажей 2
    Санузлы 2
    Спальни 4
    Смотреть
    Ипотека и
    рассрочка
    Одноэтажный дом Эрвин
    Стоимость от:
    4 887 190
    Проект от: 34 650
    Этажей 1
    Санузлы 1
    Спальни 3
    Смотреть
    Ипотека и
    рассрочка
    Одноэтажный дом FIXPLANS — 1214
    Стоимость от:
    7 062 000
    Проект от: 45 000
    Этажей 1
    Санузлы 2
    Спальни 3
    Смотреть
    Ипотека и
    рассрочка
    Современный одноэтажный коттедж с встроенным гаражом S3-162-1 (Zx160)
    Стоимость от:
    15 616 040
    Проект от: 90 900
    Этажей 1
    Санузлы 3
    Спальни 3
    Смотреть

    Как узнать стоимость дома

    back
    Оставляете заявку
    Вы заполняете форму на сайте или звоните нам. Менеджер Лайвкрафт связывается с вами для уточнения деталей: тип дома, площадь, материалы, участок строительства.
    back
    Консультация и подбор решения
    Наш специалист помогает выбрать оптимальный тип дома и конструкцию с учётом бюджета, сроков и целей — будь то дом для постоянного проживания или дача.
    back
    Расчёт предварительной стоимости
    Инженер делает первичный расчёт стоимости строительства по вашим параметрам: фундамент, коробка, кровля, отделка. Вы получаете смету с разбивкой по этапам.
    back
    Корректировка и утверждение сметы
    При необходимости вносим изменения — например, замену материалов или сокращение этапов. После согласования формируется окончательная фиксированная смета.
    back
    Заключение договора и старт работ
    После утверждения сметы заключаем официальный договор с гарантией. Вы получаете прозрачный график и точную стоимость — без скрытых расходов.

    Заказать конусльтацию по:Дом ИЖС 100К

    Фото 1 Дом ИЖС 100К


      Наши
      контакты

      Дмитров
      Опорный проезд 28Б
      (индустриальный парк Ниагара)
      9:00 до 18:00