4.9
Рейтинг на основании 120 отзывов
Дмитров
Опорный проезд 28Б
(индустриальный парк Ниагара)
Бренд "Дмитров-Дело" c 2008 года на рынке строительства в Дмитрове
Звоните 9:00 до 18:00 8 (915) 055-33-61
Бренд "Дмитров-Дело" c 2008 года на рынке строительства в Дмитрове

Дом ИЖС 98 КР

Стоимость проекта от:
52 650 ₽
БЕСПЛАТНО! ПРИ ЗАКАЗЕ СТРОИТЕЛЬСТВА
Стоимость строительства от:
8 262 540 ₽
Артикул ART-16317
Дата 26.12.2025
Архитектурный стиль Классический
Количество надземных этажей 1
Круглогодичное проживание Да
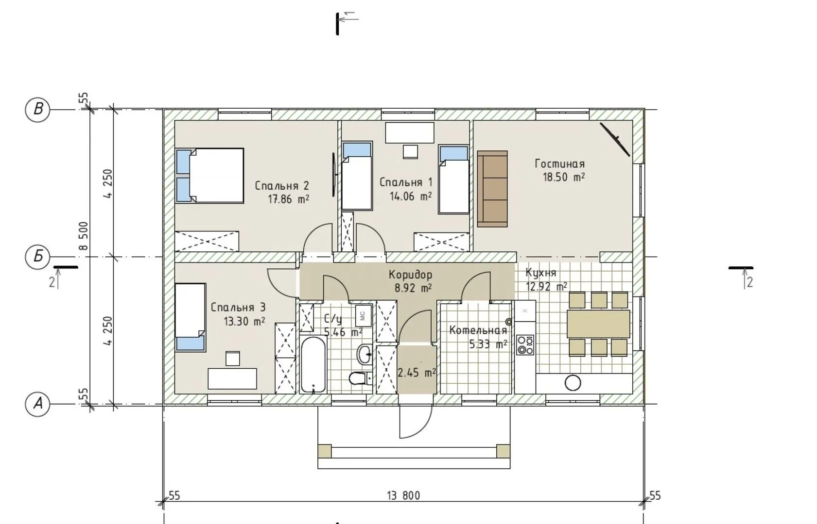
Площадь дома 117 м2
Санузлы 1
Спальни 3

Описание

Небольшой, но уютный загородный дом, построенный в 1998 году, выглядит как настоящий классический уголок спокойствия. Единый надземный этаж, выполненный из газобетонных блоков, сразу же задаёт ощущение прочности и тепла, а четыре‑скатная (вальмовая) крыша придаёт ему облик старинного сельского особняка. Дом предназначен для круглогодичного проживания, и каждый элемент — от изолированного внешнего облига до теплоуплотнённой крыши — рассчитан на комфорт в любой сезон. Внутренняя планировка простая и интуитивно понятная, но при этом изысканная. Лофовое помещение, которое можно превратить в кабинет, детскую комнату или уютный уголок для отдыха, добавляет гибкости в использовании пространства, не утяжеляя при этом интерьер. Отсутствие балконов и веранд делает дом более защищённым от внешних ветров, а также позволяет полностью сосредоточиться на гармоничной внутренней атмосфере. Это идеальный вариант для тех, кто ищет сочетание традиционного стиля, практичности и тепла семейного очага.

Характеристики дома

Архитектурный стиль
Автоматизированное регулирование параметров теплоносителя
Нет
Балконы/лоджии
Отсутствуют
Чердачное помещение
Да
Датчики протечки воды
Нет
Эксплуатируемая или зеленая кровля
Нет
Электроснабжение
2 варианта
Газоснабжение
2 варианта
Изоляция воздушного шума
Нет
Камин
Нет
Класс энергоэффективности
-
Класс энергосбережения
-
Количество надземных этажей
1
Круглогодичное проживание
Да
Материал кровли
Металлочерепица
Материал перекрытий
Деревянные
Материал внешних стен
Материал внутренних перегородок
Пенобетонные
Модульное строительство с конструкциями заводского изготовления
Нет
Объем надземной части
-
Основной материал фасадов
Штукатурка
Отопление
2 варианта
Площадь дома
117 м2
Площадь застройки
128 м2
Подвальное помещение
Нет
Показатель компактности здания
-
Приборы учета тепловой энергии
Нет
Пристроенный гараж/крытая автостоянка
Нет
Противопожарная система
Нет
Санузлы
1
Совмещенная кухня-гостиная
Да
Спальни
3
Терраса
Нет
Тип фундамента
Плитный
Толщина внешних стен
300 мм
Толщина внутренних перегородок
100 мм
Улучшенные шумовые характеристики
Нет
Вентиляция
Естественная
Веранда
Нет
Водоотведение
2 варианта
Водоснабжение
2 варианта
Высота дома
5.7 м
Высота потолков
3 м

Планировка

Фасад дома

Александр

Закажите выезд инженера

Александр

Выездной инженер
Закажите выезд инженера для точной диагностики и профессиональной консультации по инженерным системам. Специалист приедет в удобное время, проведёт осмотр, рассчитает стоимость работ и подберёт оптимальные решения для вашего дома.


    Похожие проекты

    Ипотека и
    рассрочка
    Одноэтажный дом «Майпо»
    Стоимость от:
    3 954 720
    Проект от: 25 200
    Этажей 1
    Санузлы 1
    Спальни 2
    Смотреть
    Ипотека и
    рассрочка
    Проект «Ясенево»
    Стоимость от:
    4 259 040
    Проект от: 31 950
    Этажей 2
    Санузлы 1
    Спальни 3
    Смотреть
    Ипотека и
    рассрочка
    S 2-125
    Стоимость от:
    8 972 160
    Проект от: 55 800
    Этажей 2
    Санузлы 2
    Спальни 4
    Смотреть
    Ипотека и
    рассрочка
    Каркасный дом «Болдино»
    Стоимость от:
    8 151 840
    Проект от: 61 200
    Этажей 2
    Санузлы 2
    Спальни 4
    Смотреть
    Ипотека и
    рассрочка
    Проект дома 40 м.кв 2 спальни НД-2996 каркасный
    Стоимость от:
    3 194 400
    Проект от: 18 000
    Этажей 1
    Санузлы 1
    Спальни 2
    Смотреть
    Ипотека и
    рассрочка
    Проект А 31
    Стоимость от:
    9 958 320
    Проект от: 59 850
    Этажей 2
    Санузлы 2
    Спальни 3
    Смотреть

    Как узнать стоимость дома

    back
    Оставляете заявку
    Вы заполняете форму на сайте или звоните нам. Менеджер Лайвкрафт связывается с вами для уточнения деталей: тип дома, площадь, материалы, участок строительства.
    back
    Консультация и подбор решения
    Наш специалист помогает выбрать оптимальный тип дома и конструкцию с учётом бюджета, сроков и целей — будь то дом для постоянного проживания или дача.
    back
    Расчёт предварительной стоимости
    Инженер делает первичный расчёт стоимости строительства по вашим параметрам: фундамент, коробка, кровля, отделка. Вы получаете смету с разбивкой по этапам.
    back
    Корректировка и утверждение сметы
    При необходимости вносим изменения — например, замену материалов или сокращение этапов. После согласования формируется окончательная фиксированная смета.
    back
    Заключение договора и старт работ
    После утверждения сметы заключаем официальный договор с гарантией. Вы получаете прозрачный график и точную стоимость — без скрытых расходов.

    Заказать конусльтацию по:Дом ИЖС 98 КР

    Фото 1 Дом ИЖС 98 КР


      Наши
      контакты

      Дмитров
      Опорный проезд 28Б
      (индустриальный парк Ниагара)
      9:00 до 18:00

      Корзина