4.9
Рейтинг на основании 120 отзывов
Дмитров
Опорный проезд 28Б
(индустриальный парк Ниагара)
Бренд "Дмитров-Дело" c 2008 года на рынке строительства в Дмитрове
Звоните 9:00 до 18:00 8 (915) 055-33-61
Бренд "Дмитров-Дело" c 2008 года на рынке строительства в Дмитрове

Дом Каролина

Стоимость проекта от:
36 450 ₽
БЕСПЛАТНО! ПРИ ЗАКАЗЕ СТРОИТЕЛЬСТВА
Стоимость строительства от:
4 682 205 ₽
Артикул ART-19172
Дата 26.12.2025
Архитектурный стиль Классический
Количество надземных этажей 1
Круглогодичное проживание Да
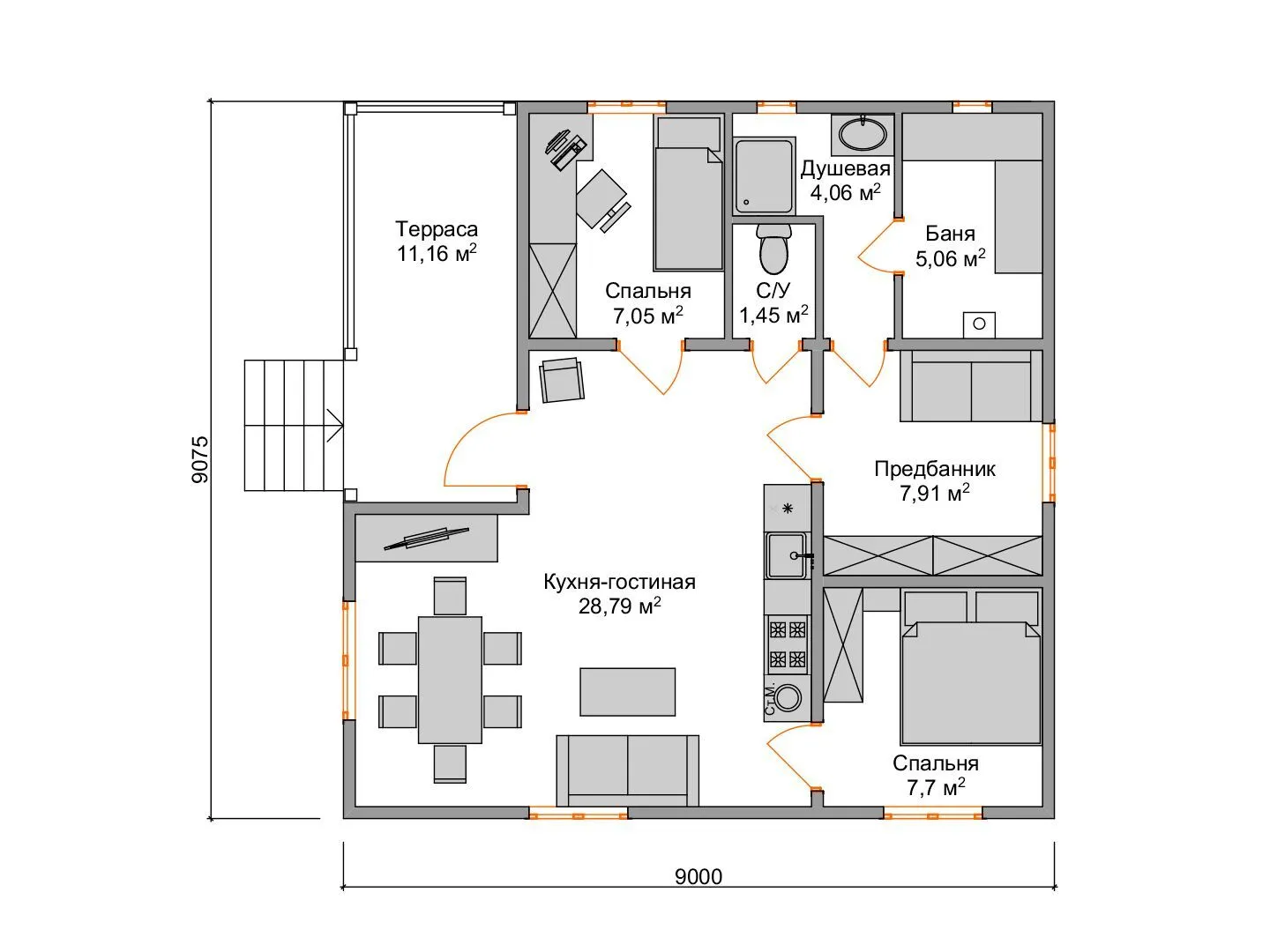
Площадь дома 81 м2
Санузлы 1
Спальни 2

Описание

**Дом Каролина** — это истинное сочетание простоты и благородства, где каждый элемент говорит о внимании к деталям. Первые лучи утра падают в открытые деревянные стены, созданные из прочных каркасных материалов, и мгновенно наполняют пространство согревающим, почти домашним светом. Классический, но без лишних украшений фасад подчеркивает чистую линию и элегантность, в то время как двускатная крыша придает дому благородный, почти монументальный вид. Один уровень жизни, полностью выстроенный для круглогодичного комфорта, позволяет семье ощущать уют в любой климатической ситуации. Внутреннее пространство поражает своим простором и вниманием к функциональности. В отсутствие балконов и веранд открытость интерьера достигается через большие окна, которые открывают панораму наружу и придают ощущение бесконечности. Чердачное помещение превращается в гибкую зону — будь то уютный домашний кинотеатр, тихий уголок для чтения или дополнительная спальня. Вместе со стеновой гардеробной и просторными кухонными зонами, картина простого жизненного ритма и современного удобства складывается в несложную, но глубокую гармонию. Насладитесь прогулкой по просторной террасы, где можно провести выходные за чашкой кофе или устроить семейный барбекю, а тихо шуршащая осада дерева, окаймляющего дом, напоминает о том, что здесь всегда найдется место для уюта и природной красоты. Дом Каролина — не просто здание, это убежище, где каждая деталь призвана дарить спокойствие и радость от простых, но качественных моментов жизни.

Характеристики дома

Архитектурный стиль
Автоматизированное регулирование параметров теплоносителя
Нет
Балконы/лоджии
Отсутствуют
Чердачное помещение
Да
Датчики протечки воды
Нет
Эксплуатируемая или зеленая кровля
Нет
Электроснабжение
Центральное
Газоснабжение
Центральное
Изоляция воздушного шума
Нет
Камин
Нет
Класс энергоэффективности
-
Класс энергосбережения
-
Количество надземных этажей
1
Круглогодичное проживание
Да
Материал кровли
Металлочерепица
Материал перекрытий
Деревянные
Материал внешних стен
Материал внутренних перегородок
Гипсокартонные
Модульное строительство с конструкциями заводского изготовления
Нет
Объем надземной части
457 м3
Основной материал фасадов
Дерево
Отопление
Индивидуальное
Площадь дома
81 м2
Площадь застройки
82 м2
Подвальное помещение
Нет
Показатель компактности здания
-
Приборы учета тепловой энергии
Нет
Пристроенный гараж/крытая автостоянка
Нет
Противопожарная система
Нет
Санузлы
1
Совмещенная кухня-гостиная
Да
Спальни
2
Терраса
Да
Тип фундамента
Свайно-винтовой
Тип кровли
Толщина внешних стен
200 мм
Толщина внутренних перегородок
100 мм
Улучшенные шумовые характеристики
Да
Вентиляция
Принудительная
Веранда
Нет
Водоотведение
Локальные очистные сооружения
Водоснабжение
Индивидуальное
Высота дома
5.6 м
Высота потолков
2.7 м

Планировка

Фасад дома

Александр

Закажите выезд инженера

Александр

Выездной инженер
Закажите выезд инженера для точной диагностики и профессиональной консультации по инженерным системам. Специалист приедет в удобное время, проведёт осмотр, рассчитает стоимость работ и подберёт оптимальные решения для вашего дома.


    Похожие проекты

    Ипотека и
    рассрочка
    Одноэтажный дом со вторым светом — 113
    Стоимость от:
    7 980 060
    Проект от: 50 850
    Этажей 1
    Санузлы 2
    Спальни 3
    Смотреть
    Ипотека и
    рассрочка
    Дом ГД-795
    Стоимость от:
    10 002 190
    Проект от: 71 100
    Этажей 1
    Санузлы 2
    Спальни 3
    Смотреть
    Ипотека и
    рассрочка
    Авторский проект «Грегит»
    Стоимость от:
    6 921 360
    Проект от: 44 550
    Этажей 2
    Санузлы 2
    Спальни 3
    Смотреть
    Ипотека и
    рассрочка
    Загородный дом ВС-101
    Стоимость от:
    19 157 600
    Проект от: 126 000
    Этажей 1
    Санузлы 4
    Спальни 3
    Смотреть
    Ипотека и
    рассрочка
    КД «Калининград №10-22»
    Стоимость от:
    9 639 060
    Проект от: 72 450
    Этажей 2
    Санузлы 2
    Спальни 4
    Смотреть
    Ипотека и
    рассрочка
    Двухуровневый дом для постоянного проживания S3-156-7 (Z215 A)
    Стоимость от:
    10 319 520
    Проект от: 62 100
    Этажей 2
    Санузлы 2
    Спальни 3
    Смотреть

    Как узнать стоимость дома

    back
    Оставляете заявку
    Вы заполняете форму на сайте или звоните нам. Менеджер Лайвкрафт связывается с вами для уточнения деталей: тип дома, площадь, материалы, участок строительства.
    back
    Консультация и подбор решения
    Наш специалист помогает выбрать оптимальный тип дома и конструкцию с учётом бюджета, сроков и целей — будь то дом для постоянного проживания или дача.
    back
    Расчёт предварительной стоимости
    Инженер делает первичный расчёт стоимости строительства по вашим параметрам: фундамент, коробка, кровля, отделка. Вы получаете смету с разбивкой по этапам.
    back
    Корректировка и утверждение сметы
    При необходимости вносим изменения — например, замену материалов или сокращение этапов. После согласования формируется окончательная фиксированная смета.
    back
    Заключение договора и старт работ
    После утверждения сметы заключаем официальный договор с гарантией. Вы получаете прозрачный график и точную стоимость — без скрытых расходов.

    Заказать конусльтацию по:Дом Каролина

    Фото 1 Дом Каролина


      Наши
      контакты

      Дмитров
      Опорный проезд 28Б
      (индустриальный парк Ниагара)
      9:00 до 18:00

      Корзина