4.9
Рейтинг на основании 120 отзывов
Дмитров
Опорный проезд 28Б
(индустриальный парк Ниагара)
Бренд "Дмитров-Дело" c 2008 года на рынке строительства в Дмитрове
Звоните 9:00 до 18:00 8 (915) 055-33-61
Бренд "Дмитров-Дело" c 2008 года на рынке строительства в Дмитрове

Дом хороший на 100 м2

Стоимость проекта от:
38 250 ₽
БЕСПЛАТНО! ПРИ ЗАКАЗЕ СТРОИТЕЛЬСТВА
Стоимость строительства от:
6 389 900 ₽
Артикул ART-11710
Дата 25.12.2025
Архитектурный стиль Европейский
Количество надземных этажей 1
Круглогодичное проживание Да
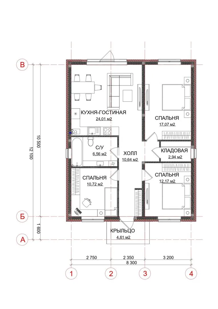
Площадь дома 85 м2
Санузлы 1
Спальни 3

Описание

Величественный одноквартирный дом площадью 100 м², выполненный в элегантном европейском стиле, – идеальное решение для тех, кто ценит уют и практичность. Изящный четырёхскатный (вальмовый) конический крышу подчёркивает чистые линии фасада, выполненного из прочных и теплоизоляционных керамзитобетонных блоков. Такое сочетание гарантирует не только долговечность, но и отличные тепло- и звукоизоляционные свойства, позволяя обитателям наслаждаться комфортом круглый год. Внутреннее пространство продумано до мелочей: просторные комнаты, щедро пропущенные окна и светлые стеновые оттенки создают ощущение воздушности и открытости. Отсутствие балконов и веранд не является слабостью – наоборот, это возможность сделать обхватное пространство полностью защищённым и уютным местом для отдыха, где каждый уголок облит теплом и естественным светом. Подземного гаража и крытой автостоянки тоже нет, что облегчает планировку и обеспечивает легкий доступ к дому. Уютный дом, где каждый элемент подчинён принципу функциональности и эстетики. Здесь вы найдёте идеальный баланс между традицией и современностью – место, где можно спокойно отдыхать после напряжённого дня, вдыхать чистый воздух и чувствовать себя дома, даже если внизу сквозят ветра города. Это идеальное решение для тех, кто хочет жить в гармонии с окружающей средой и при этом не отказываться от комфортных условий жизни.

Характеристики дома

Архитектурный стиль
Автоматизированное регулирование параметров теплоносителя
Нет
Балконы/лоджии
Отсутствуют
Чердачное помещение
Нет
Датчики протечки воды
Нет
Эксплуатируемая или зеленая кровля
Нет
Электроснабжение
2 варианта
Газоснабжение
2 варианта
Изоляция воздушного шума
Нет
Камин
Нет
Класс энергоэффективности
-
Класс энергосбережения
-
Количество надземных этажей
1
Круглогодичное проживание
Да
Материал кровли
Металлочерепица
Материал перекрытий
Деревянные
Материал внешних стен
Материал внутренних перегородок
Блочные
Модульное строительство с конструкциями заводского изготовления
Нет
Объем надземной части
255 м3
Основной материал фасадов
Облицовочный кирпич
Отопление
2 варианта
Площадь дома
85 м2
Площадь застройки
100 м2
Подвальное помещение
Нет
Показатель компактности здания
-
Приборы учета тепловой энергии
Нет
Пристроенный гараж/крытая автостоянка
Нет
Противопожарная система
Нет
Санузлы
1
Совмещенная кухня-гостиная
Да
Спальни
3
Терраса
Нет
Тип фундамента
Свайно-ростверковый
Толщина внешних стен
350 мм
Толщина внутренних перегородок
120 мм
Улучшенные шумовые характеристики
Нет
Вентиляция
2 варианта
Веранда
Нет
Водоотведение
2 варианта
Водоснабжение
2 варианта
Высота дома
5.25 м
Высота потолков
3 м

Планировка

Фасад дома

Александр

Закажите выезд инженера

Александр

Выездной инженер
Закажите выезд инженера для точной диагностики и профессиональной консультации по инженерным системам. Специалист приедет в удобное время, проведёт осмотр, рассчитает стоимость работ и подберёт оптимальные решения для вашего дома.


    Похожие проекты

    Ипотека и
    рассрочка
    Фуксия 2202
    Стоимость от:
    6 202 900
    Проект от: 38 250
    Этажей 1
    Санузлы 1
    Спальни 3
    Смотреть
    Ипотека и
    рассрочка
    Жилой дом № 9
    Стоимость от:
    7 238 400
    Проект от: 45 000
    Этажей 2
    Санузлы 2
    Спальни 5
    Смотреть
    Ипотека и
    рассрочка
    «Стаут»
    Стоимость от:
    8 628 840
    Проект от: 54 900
    Этажей 1
    Санузлы 2
    Спальни 3
    Смотреть
    Ипотека и
    рассрочка
    Дом «Стандарт плюс»
    Стоимость от:
    5 649 600
    Проект от: 36 000
    Этажей 1
    Санузлы 1
    Спальни 2
    Смотреть
    Ипотека и
    рассрочка
    ГБ-091
    Стоимость от:
    6 773 580
    Проект от: 44 550
    Этажей 1
    Санузлы 1
    Спальни 2
    Смотреть
    Ипотека и
    рассрочка
    Одноэтажный дом К-76
    Стоимость от:
    5 199 920
    Проект от: 34 200
    Этажей 1
    Санузлы 1
    Спальни 3
    Смотреть

    Как узнать стоимость дома

    back
    Оставляете заявку
    Вы заполняете форму на сайте или звоните нам. Менеджер Лайвкрафт связывается с вами для уточнения деталей: тип дома, площадь, материалы, участок строительства.
    back
    Консультация и подбор решения
    Наш специалист помогает выбрать оптимальный тип дома и конструкцию с учётом бюджета, сроков и целей — будь то дом для постоянного проживания или дача.
    back
    Расчёт предварительной стоимости
    Инженер делает первичный расчёт стоимости строительства по вашим параметрам: фундамент, коробка, кровля, отделка. Вы получаете смету с разбивкой по этапам.
    back
    Корректировка и утверждение сметы
    При необходимости вносим изменения — например, замену материалов или сокращение этапов. После согласования формируется окончательная фиксированная смета.
    back
    Заключение договора и старт работ
    После утверждения сметы заключаем официальный договор с гарантией. Вы получаете прозрачный график и точную стоимость — без скрытых расходов.

    Заказать конусльтацию по:Дом хороший на 100 м2

    Фото 1 Дом хороший на 100 м2


      Наши
      контакты

      Дмитров
      Опорный проезд 28Б
      (индустриальный парк Ниагара)
      9:00 до 18:00

      Корзина