4.9
Рейтинг на основании 120 отзывов
Дмитров
Опорный проезд 28Б
(индустриальный парк Ниагара)
Бренд "Дмитров-Дело" c 2008 года на рынке строительства в Дмитрове
Звоните 9:00 до 18:00 8 (915) 055-33-61
Бренд "Дмитров-Дело" c 2008 года на рынке строительства в Дмитрове

Дом Лили Лофт

Стоимость проекта от:
26 550 ₽
БЕСПЛАТНО! ПРИ ЗАКАЗЕ СТРОИТЕЛЬСТВА
Стоимость строительства от:
3 534 360 ₽
Артикул ART-19320
Дата 26.12.2025
Архитектурный стиль Классический
Количество надземных этажей 2
Круглогодичное проживание Да
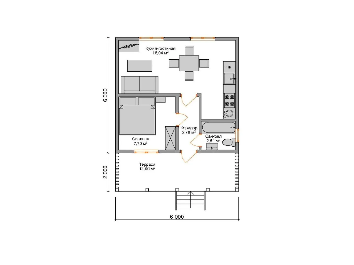
Площадь дома 59 м2
Санузлы 1
Спальни 1

Описание

Дом «Лили‑Лофт» – это воплощение классической элегантности, созданное в гармонии с природой и комфортом современного быта. Два открытых надземных этажа, изящно соединённые деревянным каркасом, дарят ощущение простора и свободы каждой детали. Классический архитектурный стиль с его тонкой симметрией и высокими потолками придаёт дому особую изысканность, а двускатная крыша с аккуратными чертовыми чертами делает его узнаваемым и уютным даже в холодную пору года. Отсутствие веранд и пристроенных гаражей лишь подчёркивает скромный, но благородный облик дома. Однако, широкая терраса, открытая с первого этажа, превращает любое воскресенье в настоящий праздник свежего воздуха: здесь можно обедать на открытом воздухе, выращивать любимые растения и наслаждаться видом на прилегающую зелень. Круглогодичное проживание гарантирует, что уют дома не подорвётся сезонными колебаниями – тепло, свет и комфорт будут в каждом уголке. Выбирая «Лили‑Лофт», вы инвестируете в домашний шедевр, который будет радовать глаз и душу. Элегантные линии, натуральный материал, классический стиль и практичные детали сочетаются здесь с умением создавать атмосферу, где хочется возвращаться домой вновь и вновь. Это место, где каждый день начинается с вдохновения, а вечера заканчиваются чувством полного удовлетворения.

Характеристики дома

Архитектурный стиль
Автоматизированное регулирование параметров теплоносителя
Нет
Балконы/лоджии
Отсутствуют
Чердачное помещение
Нет
Датчики протечки воды
Нет
Эксплуатируемая или зеленая кровля
Нет
Электроснабжение
Центральное
Газоснабжение
Центральное
Изоляция воздушного шума
Нет
Камин
Нет
Класс энергоэффективности
-
Класс энергосбережения
-
Количество надземных этажей
2
Круглогодичное проживание
Да
Материал кровли
Металлочерепица
Материал перекрытий
Деревянные
Материал внешних стен
Материал внутренних перегородок
Гипсокартонные
Модульное строительство с конструкциями заводского изготовления
Нет
Объем надземной части
268 м3
Основной материал фасадов
Дерево
Отопление
Индивидуальное
Площадь дома
59 м2
Площадь застройки
48 м2
Подвальное помещение
Нет
Показатель компактности здания
-
Приборы учета тепловой энергии
Нет
Пристроенный гараж/крытая автостоянка
Нет
Противопожарная система
Нет
Санузлы
1
Совмещенная кухня-гостиная
Да
Спальни
1
Терраса
Да
Тип фундамента
Свайно-винтовой
Тип кровли
Толщина внешних стен
200 мм
Толщина внутренних перегородок
100 мм
Улучшенные шумовые характеристики
Да
Вентиляция
Принудительная
Веранда
Нет
Водоотведение
Локальные очистные сооружения
Водоснабжение
Индивидуальное
Высота дома
5.6 м
Высота потолков
2.3 м

Планировка

Фасад дома

Александр

Закажите выезд инженера

Александр

Выездной инженер
Закажите выезд инженера для точной диагностики и профессиональной консультации по инженерным системам. Специалист приедет в удобное время, проведёт осмотр, рассчитает стоимость работ и подберёт оптимальные решения для вашего дома.


    Похожие проекты

    Ипотека и
    рассрочка
    МС-101
    Стоимость от:
    7 480 080
    Проект от: 48 150
    Этажей 2
    Санузлы 2
    Спальни 3
    Смотреть
    Ипотека и
    рассрочка
    Одноэтажный дом В-205
    Стоимость от:
    8 689 340
    Проект от: 57 150
    Этажей 1
    Санузлы 2
    Спальни 3
    Смотреть
    Ипотека и
    рассрочка
    Университетский 109
    Стоимость от:
    8 820 680
    Проект от: 51 300
    Этажей 1
    Санузлы 2
    Спальни 3
    Смотреть
    Ипотека и
    рассрочка
    CUBA 70 — Модульный дом под ключ
    Стоимость от:
    4 963 530
    Проект от: 40 050
    Этажей 1
    Санузлы 2
    Спальни 3
    Смотреть
    Ипотека и
    рассрочка
    Загородный дом А-90
    Стоимость от:
    5 001 095
    Проект от: 35 550
    Этажей 1
    Санузлы 2
    Спальни 3
    Смотреть
    Ипотека и
    рассрочка
    Каркасный дом «ДК-194»
    Стоимость от:
    5 060 055
    Проект от: 40 950
    Этажей 1
    Санузлы 1
    Спальни 2
    Смотреть

    Как узнать стоимость дома

    back
    Оставляете заявку
    Вы заполняете форму на сайте или звоните нам. Менеджер Лайвкрафт связывается с вами для уточнения деталей: тип дома, площадь, материалы, участок строительства.
    back
    Консультация и подбор решения
    Наш специалист помогает выбрать оптимальный тип дома и конструкцию с учётом бюджета, сроков и целей — будь то дом для постоянного проживания или дача.
    back
    Расчёт предварительной стоимости
    Инженер делает первичный расчёт стоимости строительства по вашим параметрам: фундамент, коробка, кровля, отделка. Вы получаете смету с разбивкой по этапам.
    back
    Корректировка и утверждение сметы
    При необходимости вносим изменения — например, замену материалов или сокращение этапов. После согласования формируется окончательная фиксированная смета.
    back
    Заключение договора и старт работ
    После утверждения сметы заключаем официальный договор с гарантией. Вы получаете прозрачный график и точную стоимость — без скрытых расходов.

    Заказать конусльтацию по:Дом Лили Лофт

    Фото 1 Дом Лили Лофт


      Наши
      контакты

      Дмитров
      Опорный проезд 28Б
      (индустриальный парк Ниагара)
      9:00 до 18:00

      Корзина