4.9
Рейтинг на основании 120 отзывов
Дмитров
Опорный проезд 28Б
(индустриальный парк Ниагара)
Бренд "Дмитров-Дело" c 2008 года на рынке строительства в Дмитрове
Звоните 9:00 до 18:00 8 (915) 055-33-61
Бренд "Дмитров-Дело" c 2008 года на рынке строительства в Дмитрове

Дом MODUS

Стоимость проекта от:
49 950 ₽
Стоимость строительства от:
7 759 440 ₽
Артикул ART-6577
Дата 26.12.2025
Архитектурный стиль Европейский
Количество надземных этажей 2
Круглогодичное проживание Да
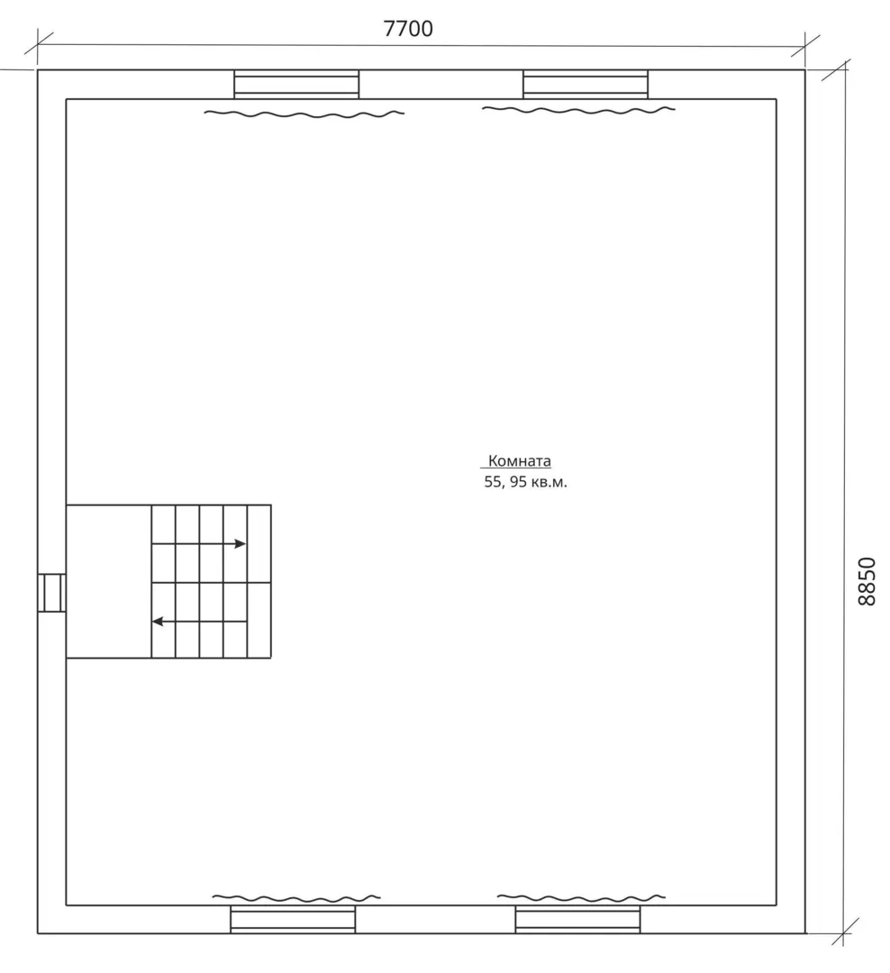
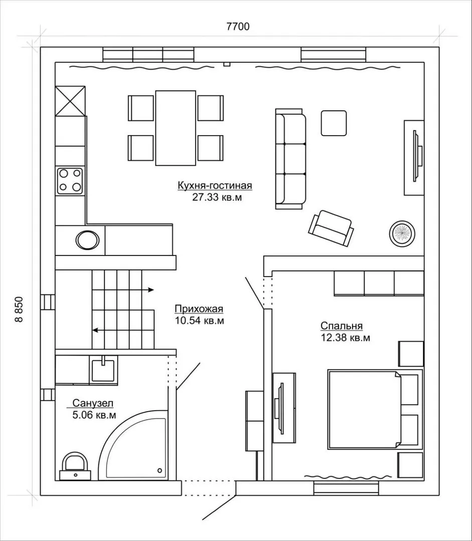
Площадь дома 111 м2
Санузлы 1
Спальни 1

Описание

**Дом MODUS** – это воплощение скромной европейской элегантности, где каждая деталь создана для того, чтобы вы чувствовали себя как дома, даже в самые мрачные дни. Двухэтажный корпус, выполненный из газобетонных блоков, обеспечивает отличную тепло‑изоляцию и устойчивость к климатическим изменениям, что делает проживание здесь комфортным круглый год. Просторные и светлые помещения, открытые планировки и большие окна создают ощущение простора и связи с природой, при этом сохраняя уют и уединение. Поток натурального света проникает в каждый уголок, подчёркивая стильные европейские линии и мягкие текстуры интерьера. Крыша с классическим двускатным профилем придаёт фасаду гармоничные пропорции, а отсутствие лишних наружных элементов (бальконей, веранд, гаражей) позволяет полностью сконцентрировать внимание на внутреннем комфорте и архитектурной гармонии. Дом MODUS – это идеальный выбор для тех, кто ценит простоту, функциональность и эстетику, ищет баланс между традицией и современностью, а также готов обрести своё идеальное пространство без лишних компромиссов.

Характеристики дома

Архитектурный стиль
Европейский
Автоматизированное регулирование параметров теплоносителя
Нет
Балконы/лоджии
Отсутствуют
Чердачное помещение
Нет
Датчики протечки воды
Нет
Эксплуатируемая или зеленая кровля
Нет
Электроснабжение
Центральное
Газоснабжение
Центральное
Изоляция воздушного шума
Нет
Камин
Нет
Класс энергоэффективности
-
Класс энергосбережения
-
Количество надземных этажей
2
Круглогодичное проживание
Да
Материал кровли
Металлочерепица
Материал перекрытий
Деревянные
Материал внешних стен
Газобетонные блоки
Материал внутренних перегородок
Блочные
Модульное строительство с конструкциями заводского изготовления
Нет
Объем надземной части
-
Основной материал фасадов
Штукатурка
Отопление
Индивидуальное
Площадь дома
111 м2
Площадь застройки
72 м2
Подвальное помещение
Нет
Показатель компактности здания
-
Приборы учета тепловой энергии
Нет
Пристроенный гараж/крытая автостоянка
Нет
Противопожарная система
Нет
Санузлы
1
Совмещенная кухня-гостиная
Да
Спальни
1
Терраса
Нет
Тип фундамента
Плитный
Тип кровли
Двускатная
Толщина внешних стен
300 мм
Толщина внутренних перегородок
130 мм
Улучшенные шумовые характеристики
Нет
Вентиляция
Принудительная
Веранда
Нет
Водоотведение
Локальные очистные сооружения
Водоснабжение
Индивидуальное
Высота дома
7.5 м
Высота потолков
2.75 м

Планировка

Фасад дома

Александр

Закажите выезд инженера

Александр

Выездной инженер
Закажите выезд инженера для точной диагностики и профессиональной консультации по инженерным системам. Специалист приедет в удобное время, проведёт осмотр, рассчитает стоимость работ и подберёт оптимальные решения для вашего дома.


    Похожие проекты

    Ипотека и
    рассрочка
    Декоратор 2
    Стоимость от:
    8 865 560
    Проект от: 53 100
    Этажей 1
    Санузлы 2
    Спальни 5
    Смотреть
    Ипотека и
    рассрочка
    Одноэтажный дом FIXPLANS — 1970
    Стоимость от:
    10 536 680
    Проект от: 69 300
    Этажей 1
    Санузлы 3
    Спальни 4
    Смотреть
    Ипотека и
    рассрочка
    Загородный жилой дом №6
    Стоимость от:
    8 940 580
    Проект от: 53 550
    Этажей 1
    Санузлы 3
    Спальни 2
    Смотреть
    Ипотека и
    рассрочка
    Проект одноэтажного дома «Сиэтл»
    Стоимость от:
    5 884 120
    Проект от: 38 700
    Этажей 1
    Санузлы 1
    Спальни 2
    Смотреть
    Ипотека и
    рассрочка
    Левашово 25
    Стоимость от:
    11 391 120
    Проект от: 73 350
    Этажей 2
    Санузлы 3
    Спальни 4
    Смотреть
    Ипотека и
    рассрочка
    Жилой дом 6х6
    Стоимость от:
    4 584 240
    Проект от: 27 450
    Этажей 2
    Санузлы 1
    Спальни 2
    Смотреть

    Как узнать стоимость дома

    back
    Оставляете заявку
    Вы заполняете форму на сайте или звоните нам. Менеджер Лайвкрафт связывается с вами для уточнения деталей: тип дома, площадь, материалы, участок строительства.
    back
    Консультация и подбор решения
    Наш специалист помогает выбрать оптимальный тип дома и конструкцию с учётом бюджета, сроков и целей — будь то дом для постоянного проживания или дача.
    back
    Расчёт предварительной стоимости
    Инженер делает первичный расчёт стоимости строительства по вашим параметрам: фундамент, коробка, кровля, отделка. Вы получаете смету с разбивкой по этапам.
    back
    Корректировка и утверждение сметы
    При необходимости вносим изменения — например, замену материалов или сокращение этапов. После согласования формируется окончательная фиксированная смета.
    back
    Заключение договора и старт работ
    После утверждения сметы заключаем официальный договор с гарантией. Вы получаете прозрачный график и точную стоимость — без скрытых расходов.

    Заказать конусльтацию по:Дом MODUS

    Фото 1 Дом MODUS


      Наши
      контакты

      Дмитров
      Опорный проезд 28Б
      (индустриальный парк Ниагара)
      9:00 до 18:00

      Корзина