4.9
Рейтинг на основании 120 отзывов
Дмитров
Опорный проезд 28Б
(индустриальный парк Ниагара)
Бренд "Дмитров-Дело" c 2008 года на рынке строительства в Дмитрове
Звоните 9:00 до 18:00 8 (915) 055-33-61
Бренд "Дмитров-Дело" c 2008 года на рынке строительства в Дмитрове

Дом с двойным светом

Стоимость проекта от:
59 400 ₽
БЕСПЛАТНО! ПРИ ЗАКАЗЕ СТРОИТЕЛЬСТВА
Стоимость строительства от:
9 915 840 ₽
Артикул ART-15008
Дата 25.12.2025
Архитектурный стиль Европейский
Количество надземных этажей 1
Круглогодичное проживание Да
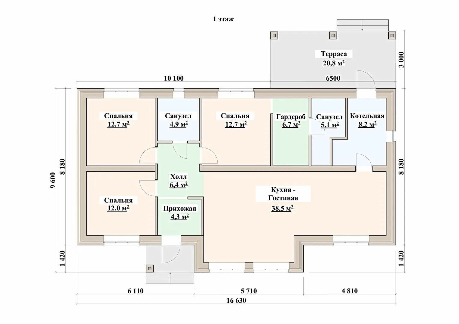
Площадь дома 132 м2
Санузлы 2
Спальни 3

Описание

Небольшой, но уютный уголок, где каждый уголок источает тепло и свет. Этот дом, выполненный в европейском стиле, создаёт атмосферу современного комфорта и классической элегантности. В его светлых стенах, построенных из газобетонных блоков, каждый день будет наполнен солнечным светом, а двойной план помещений позволяет легко распределять пространство по потребностям – от просторной гостиной до уютной спальни. Не требуя отдельного гаража, дом предлагает удобный доступ к дому, а открытый дизайн делает его идеальным для круглогодичного проживания: в летний день – прохладные тени, а зима – тепло и уют в сердце дома. Отсутствие балконов и веранд не мешает чувствовать связь с природой – площадка на открытой террасе приглашает к семейным ужинам, пикнicks или просто к отдыху в тени весенних цветов. Трёхмерный дизайн с двускатной крышей добавляет нотку романтики, создавая тихий, но элегантный силуэт на горизонте. Внутри дома каждый уголок продуман до мелочей: просторные внутренние пространства с хорошей вентиляцией и естественным освещением, а чердачное помещение открывает дополнительные возможности для хранения, мастерства или создания индивидуального уютного уголка. Такой дом – идеальный выбор для тех, кто ценит гармонию между классическим дизайном и современными удобствами. Он предлагает простую, но стильную архитектуру, обеспечивая комфорт в любой погоде. Приуроченный к круглогодичному проживанию, он гарантирует, что каждый момент в нём будет особенным. Добро пожаловать в ваш новый дом, где свет, уют и элегантность встречаются, создавая идеальную обстановку для жизни.

Характеристики дома

Архитектурный стиль
Автоматизированное регулирование параметров теплоносителя
Нет
Балконы/лоджии
Отсутствуют
Чердачное помещение
Да
Датчики протечки воды
Нет
Эксплуатируемая или зеленая кровля
Нет
Электроснабжение
Центральное
Газоснабжение
Центральное
Изоляция воздушного шума
Да
Камин
Нет
Класс энергоэффективности
B
Класс энергосбережения
B
Количество надземных этажей
1
Круглогодичное проживание
Да
Материал кровли
Металлочерепица
Материал перекрытий
Деревянные
Материал внешних стен
Материал внутренних перегородок
Пенобетонные
Модульное строительство с конструкциями заводского изготовления
Нет
Объем надземной части
396 м3
Основной материал фасадов
Облицовочный кирпич
Отопление
Индивидуальное
Площадь дома
132 м2
Площадь застройки
163 м2
Подвальное помещение
Нет
Показатель компактности здания
1.11
Приборы учета тепловой энергии
Нет
Пристроенный гараж/крытая автостоянка
Нет
Противопожарная система
Нет
Санузлы
2
Совмещенная кухня-гостиная
Да
Спальни
3
Терраса
Да
Тип фундамента
Свайно-ростверковый
Тип кровли
Толщина внешних стен
550 мм
Толщина внутренних перегородок
200 мм
Улучшенные шумовые характеристики
Да
Вентиляция
Естественная
Веранда
Нет
Водоотведение
Локальные очистные сооружения
Водоснабжение
Центральное
Высота дома
6 м
Высота потолков
3 м

Планировка

Фасад дома

Александр

Закажите выезд инженера

Александр

Выездной инженер
Закажите выезд инженера для точной диагностики и профессиональной консультации по инженерным системам. Специалист приедет в удобное время, проведёт осмотр, рассчитает стоимость работ и подберёт оптимальные решения для вашего дома.


    Похожие проекты

    Ипотека и
    рассрочка
    Загородный дом
    Стоимость от:
    7 035 360
    Проект от: 42 300
    Этажей 2
    Санузлы 1
    Спальни 3
    Смотреть
    Ипотека и
    рассрочка
    Проект №3 Двухэтажный дом их кирпича
    Стоимость от:
    9 405 600
    Проект от: 58 500
    Этажей 2
    Санузлы 2
    Спальни 2
    Смотреть
    Ипотека и
    рассрочка
    Дом из клееного бруса «Марфино»
    Стоимость от:
    12 496 920
    Проект от: 86 850
    Этажей 2
    Санузлы 2
    Спальни 5
    Смотреть
    Ипотека и
    рассрочка
    Одноэтажный барнхаус на 3 спальни и сауну LATO-100
    Стоимость от:
    5 398 800
    Проект от: 36 000
    Этажей 1
    Санузлы 1
    Спальни 3
    Смотреть
    Ипотека и
    рассрочка
    Одноэтажный дом FIXPLANS — 1097
    Стоимость от:
    7 062 000
    Проект от: 45 000
    Этажей 1
    Санузлы 2
    Спальни 3
    Смотреть
    Ипотека и
    рассрочка
    Загородный дом СД-114
    Стоимость от:
    6 188 270
    Проект от: 45 450
    Этажей 1
    Санузлы 1
    Спальни 2
    Смотреть

    Как узнать стоимость дома

    back
    Оставляете заявку
    Вы заполняете форму на сайте или звоните нам. Менеджер Лайвкрафт связывается с вами для уточнения деталей: тип дома, площадь, материалы, участок строительства.
    back
    Консультация и подбор решения
    Наш специалист помогает выбрать оптимальный тип дома и конструкцию с учётом бюджета, сроков и целей — будь то дом для постоянного проживания или дача.
    back
    Расчёт предварительной стоимости
    Инженер делает первичный расчёт стоимости строительства по вашим параметрам: фундамент, коробка, кровля, отделка. Вы получаете смету с разбивкой по этапам.
    back
    Корректировка и утверждение сметы
    При необходимости вносим изменения — например, замену материалов или сокращение этапов. После согласования формируется окончательная фиксированная смета.
    back
    Заключение договора и старт работ
    После утверждения сметы заключаем официальный договор с гарантией. Вы получаете прозрачный график и точную стоимость — без скрытых расходов.

    Заказать конусльтацию по:Дом с двойным светом

    Фото 1 Дом с двойным светом


      Наши
      контакты

      Дмитров
      Опорный проезд 28Б
      (индустриальный парк Ниагара)
      9:00 до 18:00

      Корзина