4.9
Рейтинг на основании 120 отзывов
Дмитров
Опорный проезд 28Б
(индустриальный парк Ниагара)
Бренд "Дмитров-Дело" c 2008 года на рынке строительства в Дмитрове
Звоните 9:00 до 18:00 8 (915) 055-33-61
Бренд "Дмитров-Дело" c 2008 года на рынке строительства в Дмитрове

Дом с мансардным этажом «Амир»

Стоимость проекта от:
40 500 ₽
БЕСПЛАТНО! ПРИ ЗАКАЗЕ СТРОИТЕЛЬСТВА
Стоимость строительства от:
6 285 600 ₽
Артикул ART-10564
Дата 25.12.2025
Архитектурный стиль Европейский
Количество надземных этажей 2
Круглогодичное проживание Да
Площадь дома 90 м2
Санузлы 2
Спальни 4

Описание

Дом «Амир» – это настоящий шедевр европейской элегантности, спрятанный в уютной окрестности. На два надземных этажа он открывает просторные планировки, где каждый уголок наполнен естественным светом, а мансардный этаж дарит неповторимый ощущение высокой внутренней свободы. Наклонный двускатный покров скручивается, создавая традиционный, но в то же время современный силуэт, подчеркивающий статус вашего нового дома. Собрание из прочных газобетонных блоков делает стенки не только эстетичными, но и энергоэффективными, гарантируя комфортное проживание в любой сезон. Одно уютное балконное пространство приглашает проводить вечера в тени заката, а отсутствие веранд и гаражей говорит о чистоте фасада и сохранении просторов под открытый воздух. Пространство «Амир» — идеальная симбиоз функциональности и стиля: от первоапрельских прогулок до зимних вечеров, здесь каждый момент превращается в настоящий праздник. Готовы стать частью этого неповторимого образа жизни? Позвольте себе роскошь и уют в доме, который вдохновляет и радует каждый день. Позвоните нам – мы покажем вам «Амир» в его полнейшем великолепии и поможем оформить ваш новый дом с лёгкостью и удовольствием.

Характеристики дома

Архитектурный стиль
Автоматизированное регулирование параметров теплоносителя
Нет
Балконы/лоджии
1
Чердачное помещение
Нет
Датчики протечки воды
Нет
Эксплуатируемая или зеленая кровля
Нет
Электроснабжение
Индивидуальное
Газоснабжение
Индивидуальное
Изоляция воздушного шума
Нет
Камин
Нет
Класс энергоэффективности
-
Класс энергосбережения
-
Количество надземных этажей
2
Круглогодичное проживание
Да
Материал кровли
Металлочерепица
Материал перекрытий
Сборные железобетонные многопустотные плиты
Материал внешних стен
Материал внутренних перегородок
Блочные
Модульное строительство с конструкциями заводского изготовления
Нет
Объем надземной части
-
Основной материал фасадов
Штукатурка
Отопление
Индивидуальное
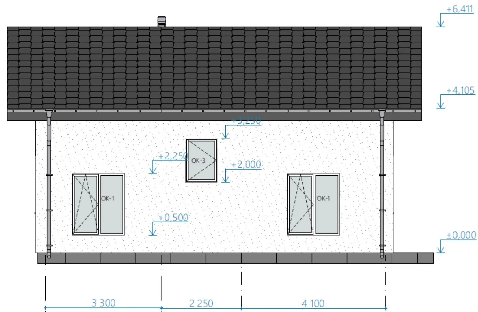
Площадь дома
90 м2
Площадь застройки
128 м2
Подвальное помещение
Нет
Показатель компактности здания
-
Приборы учета тепловой энергии
Нет
Пристроенный гараж/крытая автостоянка
Нет
Противопожарная система
Нет
Санузлы
2
Совмещенная кухня-гостиная
Да
Спальни
4
Терраса
Нет
Тип фундамента
Плитный
Тип кровли
Толщина внешних стен
375 мм
Толщина внутренних перегородок
100 мм
Улучшенные шумовые характеристики
Нет
Вентиляция
Естественная
Веранда
Нет
Водоотведение
Локальные очистные сооружения
Водоснабжение
Индивидуальное
Высота дома
6.41 м
Высота потолков
2.75 м

Планировка

Фасад дома

Александр

Закажите выезд инженера

Александр

Выездной инженер
Закажите выезд инженера для точной диагностики и профессиональной консультации по инженерным системам. Специалист приедет в удобное время, проведёт осмотр, рассчитает стоимость работ и подберёт оптимальные решения для вашего дома.


    Похожие проекты

    Ипотека и
    рассрочка
    Проект дома 200-87
    Стоимость от:
    15 787 200
    Проект от: 103 500
    Этажей 2
    Санузлы 4
    Спальни 5
    Смотреть
    Ипотека и
    рассрочка
    Каркасный дом ДК-74
    Стоимость от:
    4 573 140
    Проект от: 36 900
    Этажей 1
    Санузлы 1
    Спальни 2
    Смотреть
    Ипотека и
    рассрочка
    Белокаменный 50
    Стоимость от:
    3 046 560
    Проект от: 21 600
    Этажей 1
    Санузлы 1
    Спальни 2
    Смотреть
    Ипотека и
    рассрочка
    Дом из бруса с террасой и мансардным этажом
    Стоимость от:
    10 341 660
    Проект от: 70 650
    Этажей 2
    Санузлы 1
    Спальни 3
    Смотреть
    Ипотека и
    рассрочка
    Индивидуальный жилой дом проект 100К
    Стоимость от:
    9 765 800
    Проект от: 58 500
    Этажей 1
    Санузлы 1
    Спальни 3
    Смотреть
    Ипотека и
    рассрочка
    Одноэтажный жилой дом Гея 76 кв.м.
    Стоимость от:
    5 547 520
    Проект от: 34 200
    Этажей 1
    Санузлы 1
    Спальни 2
    Смотреть

    Как узнать стоимость дома

    back
    Оставляете заявку
    Вы заполняете форму на сайте или звоните нам. Менеджер Лайвкрафт связывается с вами для уточнения деталей: тип дома, площадь, материалы, участок строительства.
    back
    Консультация и подбор решения
    Наш специалист помогает выбрать оптимальный тип дома и конструкцию с учётом бюджета, сроков и целей — будь то дом для постоянного проживания или дача.
    back
    Расчёт предварительной стоимости
    Инженер делает первичный расчёт стоимости строительства по вашим параметрам: фундамент, коробка, кровля, отделка. Вы получаете смету с разбивкой по этапам.
    back
    Корректировка и утверждение сметы
    При необходимости вносим изменения — например, замену материалов или сокращение этапов. После согласования формируется окончательная фиксированная смета.
    back
    Заключение договора и старт работ
    После утверждения сметы заключаем официальный договор с гарантией. Вы получаете прозрачный график и точную стоимость — без скрытых расходов.

    Заказать конусльтацию по:Дом с мансардным этажом «Амир»

    Фото 1 Дом с мансардным этажом «Амир»


      Наши
      контакты

      Дмитров
      Опорный проезд 28Б
      (индустриальный парк Ниагара)
      9:00 до 18:00

      Корзина