4.9
Рейтинг на основании 120 отзывов
Дмитров
Опорный проезд 28Б
(индустриальный парк Ниагара)
Бренд "Дмитров-Дело" c 2008 года на рынке строительства в Дмитрове
Звоните 9:00 до 18:00 8 (915) 055-33-61
Бренд "Дмитров-Дело" c 2008 года на рынке строительства в Дмитрове

Дом с мансардным этажом «Невада»

Стоимость проекта от:
50 400 ₽
БЕСПЛАТНО! ПРИ ЗАКАЗЕ СТРОИТЕЛЬСТВА
Стоимость строительства от:
7 822 080 ₽
Артикул ART-16034
Дата 25.12.2025
Архитектурный стиль Европейский
Количество надземных этажей 2
Круглогодичное проживание Да
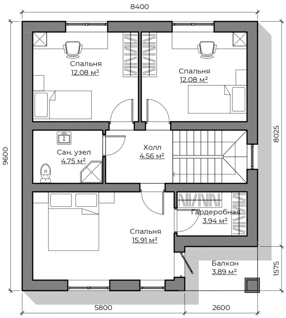
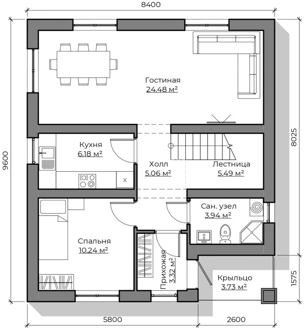
Площадь дома 112 м2
Санузлы 2
Спальни 4

Описание

Утопический уголок в самом сердце живописного города – «Невада» – открывает двери в мир уюта и элегантности. Этот двухэтажный дом в европейском стиле сочетает в себе классику и современность: нежные гармоничные линии, открытые пространства и изысканную отделку создают ощущение истинного комфорта. Круглогодичное проживание гарантирует вам тепло в любое время года, а воздушный, светлый дизайн сделает каждый момент здесь особенным. Особенности, которые делают «Неваду» идеальным выбором: просторный внутренний двор, где можно насладиться летним барбекю, и уютный балкон с панорамным видом, позволяющий погрузиться в атмосферу спокойствия и романтики. Стены из газобетонных блоков не только обеспечивают изоляцию от холода и шума, но и придают зданию прочность и долговечность. Двускатная кровля подчеркивает элегантность экстерьера, создавая ощущение гармонии с природой. В «Неваде» каждый найдет свое место: будь то деловые встречи, семейные праздники или тихие вечера с книгой. Этот дом – не просто жильё, а целый образ жизни. Подарите себе и вашим близким возможность жить в сердце архитектурного шедевра, где каждая деталь пронизана теплом и уютом. Ваш идеальный дом ждет, чтобы стать точкой фокуса вашего яркого и насыщенного будущего.

Характеристики дома

Архитектурный стиль
Автоматизированное регулирование параметров теплоносителя
Нет
Балконы/лоджии
1
Чердачное помещение
Нет
Датчики протечки воды
Нет
Эксплуатируемая или зеленая кровля
Нет
Электроснабжение
Индивидуальное
Газоснабжение
Индивидуальное
Изоляция воздушного шума
Нет
Камин
Нет
Класс энергоэффективности
-
Класс энергосбережения
-
Количество надземных этажей
2
Круглогодичное проживание
Да
Материал кровли
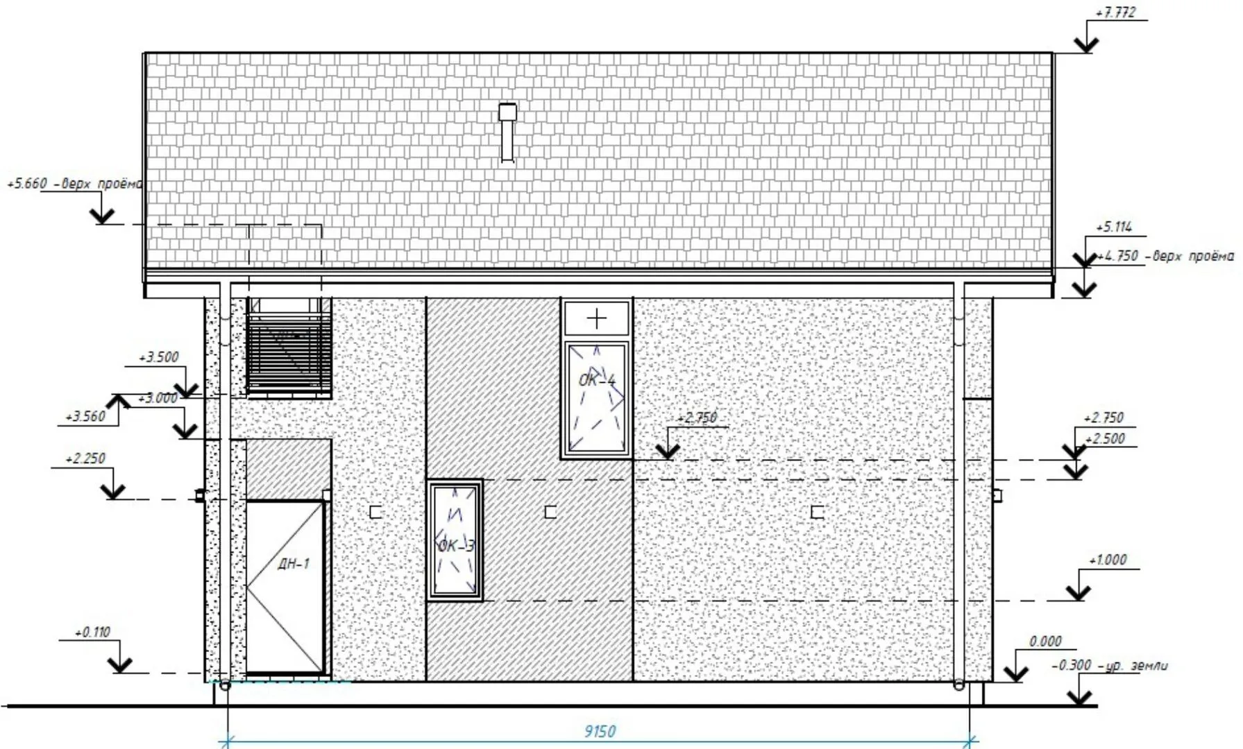
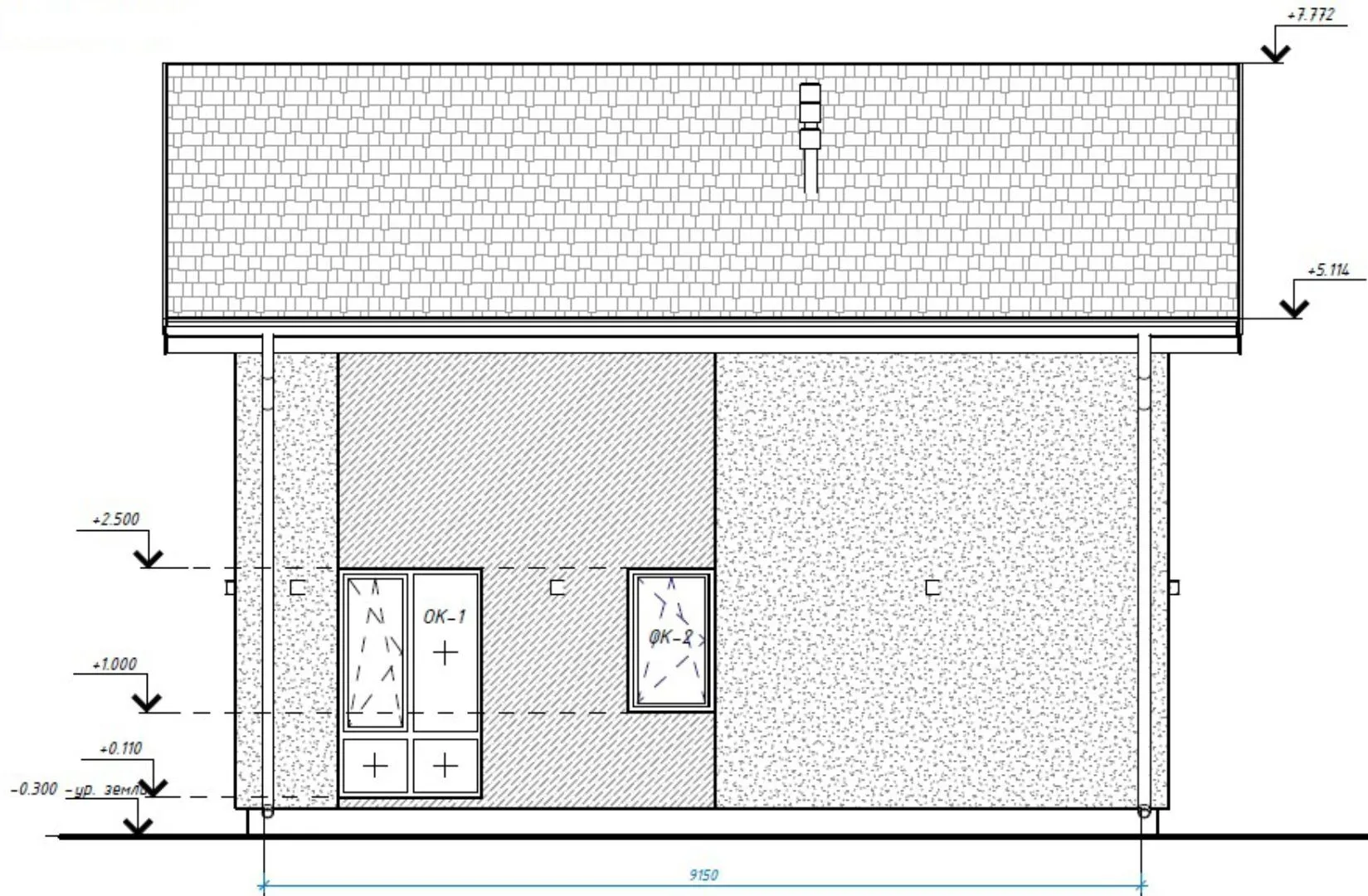
Металлочерепица
Материал перекрытий
Сборные железобетонные многопустотные плиты
Материал внешних стен
Материал внутренних перегородок
Гипсокартонные
Модульное строительство с конструкциями заводского изготовления
Нет
Объем надземной части
-
Основной материал фасадов
Штукатурка
Отопление
Индивидуальное
Площадь дома
112 м2
Площадь застройки
80 м2
Подвальное помещение
Нет
Показатель компактности здания
-
Приборы учета тепловой энергии
Нет
Пристроенный гараж/крытая автостоянка
Нет
Противопожарная система
Нет
Санузлы
2
Совмещенная кухня-гостиная
Нет
Спальни
4
Терраса
Нет
Тип фундамента
Плитный
Тип кровли
Толщина внешних стен
375 мм
Толщина внутренних перегородок
100 мм
Улучшенные шумовые характеристики
Нет
Вентиляция
Естественная
Веранда
Нет
Водоотведение
Локальные очистные сооружения
Водоснабжение
Индивидуальное
Высота дома
7.7 м
Высота потолков
3.28 м

Планировка

Фасад дома

Александр

Закажите выезд инженера

Александр

Выездной инженер
Закажите выезд инженера для точной диагностики и профессиональной консультации по инженерным системам. Специалист приедет в удобное время, проведёт осмотр, рассчитает стоимость работ и подберёт оптимальные решения для вашего дома.


    Похожие проекты

    Ипотека и
    рассрочка
    Индивидуальный жилой дом площадью 107 м2
    Стоимость от:
    8 515 540
    Проект от: 48 150
    Этажей 1
    Санузлы 2
    Спальни 3
    Смотреть
    Ипотека и
    рассрочка
    Дом Люкс 160 м2
    Стоимость от:
    10 975 920
    Проект от: 74 700
    Этажей 2
    Санузлы 2
    Спальни 3
    Смотреть
    Ипотека и
    рассрочка
    Уют 2
    Стоимость от:
    13 120 640
    Проект от: 82 800
    Этажей 3
    Санузлы 2
    Спальни 3
    Смотреть
    Ипотека и
    рассрочка
    Одноэтажный дом «Броуд»
    Стоимость от:
    3 248 520
    Проект от: 20 700
    Этажей 1
    Санузлы 1
    Спальни 1
    Смотреть
    Ипотека и
    рассрочка
    Одноэтажный дом линейки «Эстетика» 1-175
    Стоимость от:
    13 982 760
    Проект от: 89 100
    Этажей 1
    Санузлы 3
    Спальни 3
    Смотреть
    Ипотека и
    рассрочка
    Классика 99,3
    Стоимость от:
    6 348 540
    Проект от: 39 150
    Этажей 1
    Санузлы 1
    Спальни 2
    Смотреть

    Как узнать стоимость дома

    back
    Оставляете заявку
    Вы заполняете форму на сайте или звоните нам. Менеджер Лайвкрафт связывается с вами для уточнения деталей: тип дома, площадь, материалы, участок строительства.
    back
    Консультация и подбор решения
    Наш специалист помогает выбрать оптимальный тип дома и конструкцию с учётом бюджета, сроков и целей — будь то дом для постоянного проживания или дача.
    back
    Расчёт предварительной стоимости
    Инженер делает первичный расчёт стоимости строительства по вашим параметрам: фундамент, коробка, кровля, отделка. Вы получаете смету с разбивкой по этапам.
    back
    Корректировка и утверждение сметы
    При необходимости вносим изменения — например, замену материалов или сокращение этапов. После согласования формируется окончательная фиксированная смета.
    back
    Заключение договора и старт работ
    После утверждения сметы заключаем официальный договор с гарантией. Вы получаете прозрачный график и точную стоимость — без скрытых расходов.

    Заказать конусльтацию по:Дом с мансардным этажом «Невада»

    Фото 1 Дом с мансардным этажом «Невада»


      Наши
      контакты

      Дмитров
      Опорный проезд 28Б
      (индустриальный парк Ниагара)
      9:00 до 18:00

      Корзина