4.9
Рейтинг на основании 120 отзывов
Дмитров
Опорный проезд 28Б
(индустриальный парк Ниагара)
Бренд "Дмитров-Дело" c 2008 года на рынке строительства в Дмитрове
Звоните 9:00 до 18:00 8 (915) 055-33-61
Бренд "Дмитров-Дело" c 2008 года на рынке строительства в Дмитрове

Дом со вторым светом Гафурова — 163

Стоимость проекта от:
75 150 ₽
БЕСПЛАТНО! ПРИ ЗАКАЗЕ СТРОИТЕЛЬСТВА
Стоимость строительства от:
12 496 080 ₽
Артикул ART-12240
Дата 25.12.2025
Архитектурный стиль Классический
Количество надземных этажей 2
Круглогодичное проживание Да
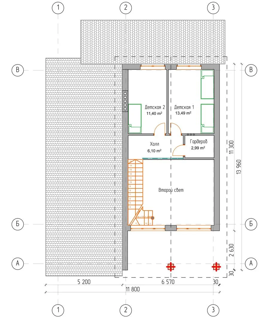
Площадь дома 167 м2
Санузлы 1
Спальни 3

Описание

**Дом со вторым светом «Гафурова – 163» — ваш уютный уголок в мире классического стиля** Всё, что нужно для комфортной жизни в любое время года, у вас уже есть. На свежем, аккуратном фасаде, украшенном керамзитобетонными блоками, возвышается шедевр классического дизайна: строгие линии, симметричные окна и притягательная двускатная крыша, создающая атмосферу уюта и надёжности. Высота дома — два надземных этажа, плавно соединённые между собой без лишних ограждений, которые придают ему элегантность и простоту в использовании. Просторные комнатные планировки, открытые кухни и светлые гостиные, обрамлённые мягкими окнами, позволяют наслаждаться природным светом в любое время дня. На втором этаже вы найдете спальные зоны, обеспечивающие полную приватность. Удобства не забыты: прикованный гараж даёт возможность хранить автомобиль в безопасности и сухости, а просторная терраса приглашает к вечерним шевелюрам и свежим воздухом. Всё, что вам нужно, находится рядом: кухня — в пределах шага, а детальный планировка предусматривает просторные кладовые и бытовые зоны, чтобы ваша жизнь была беззаботной. Если вы ищете дом, где классика встречается с функциональностью и гармонией, «Гафурова – 163» – ответ. Не упустите шанс стать обладателем этой замечательной квартиры, где каждый элемент продуман до мелочей. Свяжитесь с нами, и мы подскажем, как сделать этот дом вашим настоящим домом.

Характеристики дома

Архитектурный стиль
Автоматизированное регулирование параметров теплоносителя
Нет
Балконы/лоджии
Отсутствуют
Чердачное помещение
Нет
Датчики протечки воды
Нет
Эксплуатируемая или зеленая кровля
Нет
Электроснабжение
Центральное
Газоснабжение
Центральное
Изоляция воздушного шума
Нет
Камин
Нет
Класс энергоэффективности
-
Класс энергосбережения
-
Количество надземных этажей
2
Круглогодичное проживание
Да
Материал кровли
Металлочерепица
Материал перекрытий
Сборные железобетонные многопустотные плиты
Материал внешних стен
Материал внутренних перегородок
Кирпичные
Модульное строительство с конструкциями заводского изготовления
Нет
Объем надземной части
646 м3
Основной материал фасадов
Облицовочный кирпич
Отопление
Индивидуальное
Площадь дома
167 м2
Площадь застройки
181 м2
Подвальное помещение
Нет
Показатель компактности здания
-
Приборы учета тепловой энергии
Нет
Пристроенный гараж/крытая автостоянка
Да
Противопожарная система
Нет
Санузлы
1
Совмещенная кухня-гостиная
Да
Спальни
3
Терраса
Да
Тип фундамента
Ленточный
Тип кровли
Толщина внешних стен
400 мм
Толщина внутренних перегородок
150 мм
Улучшенные шумовые характеристики
Нет
Вентиляция
Естественная
Веранда
Нет
Водоотведение
Локальные очистные сооружения
Водоснабжение
Индивидуальное
Высота дома
6.2 м
Высота потолков
2.6 м

Планировка

Фасад дома

Александр

Закажите выезд инженера

Александр

Выездной инженер
Закажите выезд инженера для точной диагностики и профессиональной консультации по инженерным системам. Специалист приедет в удобное время, проведёт осмотр, рассчитает стоимость работ и подберёт оптимальные решения для вашего дома.


    Похожие проекты

    Ипотека и
    рассрочка
    Малина 75
    Стоимость от:
    7 665 240
    Проект от: 45 900
    Этажей 1
    Санузлы 1
    Спальни 2
    Смотреть
    Ипотека и
    рассрочка
    Двухэтажный дом из газобетона 7*9 «БС-160»
    Стоимость от:
    7 277 760
    Проект от: 46 800
    Этажей 2
    Санузлы 2
    Спальни 5
    Смотреть
    Ипотека и
    рассрочка
    Кашима
    Стоимость от:
    7 806 810
    Проект от: 55 350
    Этажей 1
    Санузлы 2
    Спальни 3
    Смотреть
    Ипотека и
    рассрочка
    Семейный 104 с 4 спальнями
    Стоимость от:
    8 136 240
    Проект от: 55 350
    Этажей 2
    Санузлы 2
    Спальни 4
    Смотреть
    Ипотека и
    рассрочка
    Монолитный одноэтажный дом L
    Стоимость от:
    6 020 960
    Проект от: 39 600
    Этажей 1
    Санузлы 2
    Спальни 3
    Смотреть
    Ипотека и
    рассрочка
    СЕРИЯ «БАРНХАУС» ПРОЕКТ КД-20
    Стоимость от:
    2 509 650
    Проект от: 20 250
    Этажей 1
    Санузлы 1
    Спальни 1
    Смотреть

    Как узнать стоимость дома

    back
    Оставляете заявку
    Вы заполняете форму на сайте или звоните нам. Менеджер Лайвкрафт связывается с вами для уточнения деталей: тип дома, площадь, материалы, участок строительства.
    back
    Консультация и подбор решения
    Наш специалист помогает выбрать оптимальный тип дома и конструкцию с учётом бюджета, сроков и целей — будь то дом для постоянного проживания или дача.
    back
    Расчёт предварительной стоимости
    Инженер делает первичный расчёт стоимости строительства по вашим параметрам: фундамент, коробка, кровля, отделка. Вы получаете смету с разбивкой по этапам.
    back
    Корректировка и утверждение сметы
    При необходимости вносим изменения — например, замену материалов или сокращение этапов. После согласования формируется окончательная фиксированная смета.
    back
    Заключение договора и старт работ
    После утверждения сметы заключаем официальный договор с гарантией. Вы получаете прозрачный график и точную стоимость — без скрытых расходов.

    Заказать конусльтацию по:Дом со вторым светом Гафурова — 163

    Фото 1 Дом со вторым светом Гафурова — 163


      Наши
      контакты

      Дмитров
      Опорный проезд 28Б
      (индустриальный парк Ниагара)
      9:00 до 18:00

      Корзина