4.9
Рейтинг на основании 120 отзывов
Дмитров
Опорный проезд 28Б
(индустриальный парк Ниагара)
Бренд "Дмитров-Дело" c 2008 года на рынке строительства в Дмитрове
Звоните 9:00 до 18:00 8 (915) 055-33-61
Бренд "Дмитров-Дело" c 2008 года на рынке строительства в Дмитрове

Дом тип №1 125 м.кв.

Стоимость проекта от:
55 350 ₽
БЕСПЛАТНО! ПРИ ЗАКАЗЕ СТРОИТЕЛЬСТВА
Стоимость строительства от:
8 970 060 ₽
Артикул ART-11995
Дата 25.12.2025
Архитектурный стиль Американский/Канадский
Количество надземных этажей 1
Круглогодичное проживание Да
Площадь дома 123 м2
Санузлы 2
Спальни 3

Описание

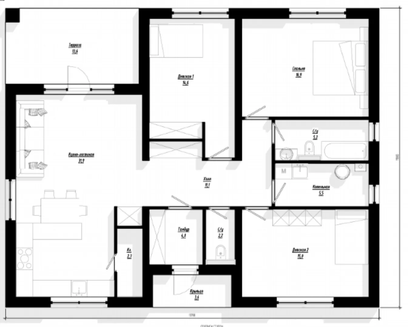
Насладитесь гармонией простоты и уюта в этом живописном доме площадью 125 м², в котором каждый уголок пропитан атмосферой американского и канадского стиля. Одна надземная палата, выполненная из керамического блока, защищает от погоды, а просторные окна наполняют интерьер светом на протяжении всего года – идеальное место для круглогодичного проживания. Четырехскатная (вальмовая) крыша добавляет характер и элегантность, придавая зданию классический профиль. Отсюда открывается приглашение к жизни в тихой и безопасной зоне без подъездных полос и громоздких гаражей. Вместо этого приютом для ваших автомобилей служит уютная закрытая территория, на которую легко добраться пешком. Вместе с гостеприимной террасой вы получаете возможность проводить время на свежем воздухе, наслаждаясь видом вокруг, сохраняя при этом интимность вашего личного пространства. Пристроенное чердачное помещение, которое можно превратить в кладовую, мастерскую или тихий кабинет, открывает дополнительные возможности для персонального развития вашей жизни. Дом сочетает в себе практичность с эстетикой: отсутствие балконов и веранд позволяет сосредоточиться на внутреннем убранстве, а открытая планировка гостиной и кухни создает пространство для семейных ужинов и развлечений. Просторные помещения, выполненные из качественных материалов, придают дому ощущение защищенности и стиля. Это ваш уютный уголок, где каждый день начинается и заканчивается в тепле домашнего очага.

Характеристики дома

Архитектурный стиль
Автоматизированное регулирование параметров теплоносителя
Да
Балконы/лоджии
Отсутствуют
Чердачное помещение
Да
Датчики протечки воды
Нет
Эксплуатируемая или зеленая кровля
Нет
Электроснабжение
2 варианта
Газоснабжение
Центральное
Изоляция воздушного шума
Нет
Камин
Нет
Класс энергоэффективности
A
Класс энергосбережения
A
Количество надземных этажей
1
Круглогодичное проживание
Да
Материал кровли
Битумная черепица
Материал перекрытий
Деревянные
Материал внешних стен
Материал внутренних перегородок
Блочные
Модульное строительство с конструкциями заводского изготовления
Нет
Объем надземной части
895 м3
Основной материал фасадов
Штукатурка
Отопление
Индивидуальное
Площадь дома
123 м2
Площадь застройки
123 м2
Подвальное помещение
Нет
Показатель компактности здания
2
Приборы учета тепловой энергии
Нет
Пристроенный гараж/крытая автостоянка
Нет
Противопожарная система
Нет
Санузлы
2
Совмещенная кухня-гостиная
Да
Спальни
3
Терраса
Да
Тип фундамента
Свайно-ростверковый
Толщина внешних стен
380 мм
Толщина внутренних перегородок
250 мм
Улучшенные шумовые характеристики
Нет
Вентиляция
Естественная
Веранда
Нет
Водоотведение
Центральное
Водоснабжение
2 варианта
Высота дома
5.99 м
Высота потолков
2.85 м

Планировка

Фасад дома

Александр

Закажите выезд инженера

Александр

Выездной инженер
Закажите выезд инженера для точной диагностики и профессиональной консультации по инженерным системам. Специалист приедет в удобное время, проведёт осмотр, рассчитает стоимость работ и подберёт оптимальные решения для вашего дома.


    Похожие проекты

    Ипотека и
    рассрочка
    Проект Алина
    Стоимость от:
    6 890 180
    Проект от: 40 050
    Этажей 1
    Санузлы 2
    Спальни 3
    Смотреть
    Ипотека и
    рассрочка
    Дом в Княжево 96
    Стоимость от:
    4 740 010
    Проект от: 36 900
    Этажей 1
    Санузлы 1
    Спальни 3
    Смотреть
    Ипотека и
    рассрочка
    Дом из клееного бруса «Ангелия»
    Стоимость от:
    6 494 620
    Проект от: 47 700
    Этажей 1
    Санузлы 1
    Спальни 2
    Смотреть
    Ипотека и
    рассрочка
    Валентина 77
    Стоимость от:
    5 437 740
    Проект от: 34 650
    Этажей 1
    Санузлы 1
    Спальни 3
    Смотреть
    Ипотека и
    рассрочка
    СД-98
    Стоимость от:
    11 369 820
    Проект от: 72 450
    Этажей 1
    Санузлы 2
    Спальни 3
    Смотреть
    Ипотека и
    рассрочка
    Одноэтажный кирпичный дом COMFORT — 118 m2 Красный облицовочный кирпич
    Стоимость от:
    7 085 980
    Проект от: 40 050
    Этажей 1
    Санузлы 1
    Спальни 3
    Смотреть

    Как узнать стоимость дома

    back
    Оставляете заявку
    Вы заполняете форму на сайте или звоните нам. Менеджер Лайвкрафт связывается с вами для уточнения деталей: тип дома, площадь, материалы, участок строительства.
    back
    Консультация и подбор решения
    Наш специалист помогает выбрать оптимальный тип дома и конструкцию с учётом бюджета, сроков и целей — будь то дом для постоянного проживания или дача.
    back
    Расчёт предварительной стоимости
    Инженер делает первичный расчёт стоимости строительства по вашим параметрам: фундамент, коробка, кровля, отделка. Вы получаете смету с разбивкой по этапам.
    back
    Корректировка и утверждение сметы
    При необходимости вносим изменения — например, замену материалов или сокращение этапов. После согласования формируется окончательная фиксированная смета.
    back
    Заключение договора и старт работ
    После утверждения сметы заключаем официальный договор с гарантией. Вы получаете прозрачный график и точную стоимость — без скрытых расходов.

    Заказать конусльтацию по:Дом тип №1 125 м.кв.

    Фото 1 Дом тип №1 125 м.кв.


      Наши
      контакты

      Дмитров
      Опорный проезд 28Б
      (индустриальный парк Ниагара)
      9:00 до 18:00

      Корзина