4.9
Рейтинг на основании 120 отзывов
Дмитров
Опорный проезд 28Б
(индустриальный парк Ниагара)
Бренд "Дмитров-Дело" c 2008 года на рынке строительства в Дмитрове
Звоните 9:00 до 18:00 8 (915) 055-33-61
Бренд "Дмитров-Дело" c 2008 года на рынке строительства в Дмитрове

Дом в скандинавском стиле «Вива 172»

Стоимость проекта от:
77 400 ₽
БЕСПЛАТНО! ПРИ ЗАКАЗЕ СТРОИТЕЛЬСТВА
Стоимость строительства от:
10 294 200 ₽
Артикул ART-5899
Дата 26.12.2025
Архитектурный стиль Скандинавский
Количество надземных этажей 2
Круглогодичное проживание Да
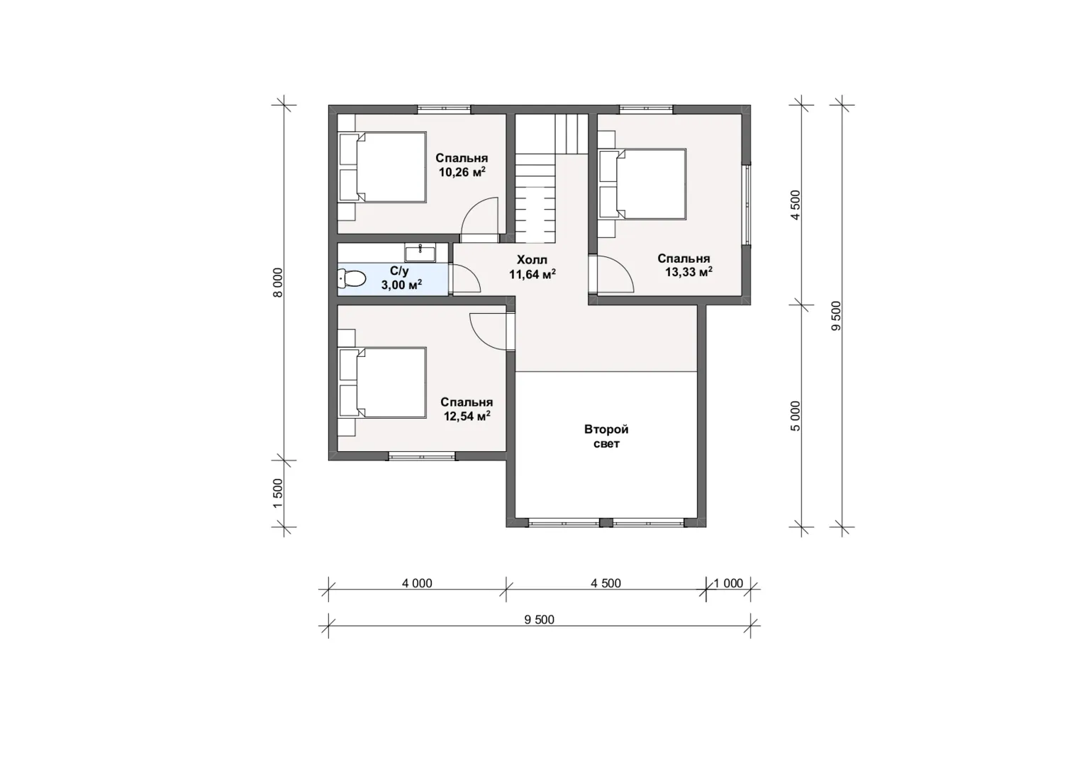
Площадь дома 172 м2
Санузлы 2
Спальни 4

Описание

Дом **«Вива 172»** – это воплощение скандинавского уюта, где простота и функциональность гармонируют с природным очарованием. Его два светлых надземных этажа раскрывают просторные, воздушные интерьеры, пропитанные дневным светом благодаря большим панорамным окнам. Круглогодичное проживание стало возможным благодаря внимательному подбору материалов и продуманной теплоизоляции, а комбинированная кровля обеспечивает надежную защиту от непогоды, сохраняя при этом изящный внешний вид. Внутри вас встретит ощущение легкости и свободы: деревянный каркас, используемый во всех наружных стенах, придаёт дому природную теплоту и открывает пространство как никогда. Скандинавский стиль подчёркивает лаконичность линий и сконцентрированность на качестве материалов: простые элементы декора, естественные цвета и внимание к деталям создают домашнюю атмосферу, где каждый уголок наполнен светом и покоем. Особое внимание стоит уделить просторной террасе, выходящей из дома. Здесь можно наслаждаться природой круглый год: утренние рассветы, летние вечера и зимние вечеринки на свежем воздухе. В «Вива 172» каждый элемент продуман с любовью к комфорту и стилю, создавая идеальное пространство для тех, кто ценит качество, уют и гармонию с природой.

Характеристики дома

Архитектурный стиль
Автоматизированное регулирование параметров теплоносителя
-
Балконы/лоджии
Отсутствуют
Чердачное помещение
Нет
Датчики протечки воды
-
Эксплуатируемая или зеленая кровля
-
Электроснабжение
Центральное
Газоснабжение
Индивидуальное
Изоляция воздушного шума
-
Камин
Нет
Класс энергоэффективности
-
Класс энергосбережения
-
Количество надземных этажей
2
Круглогодичное проживание
Да
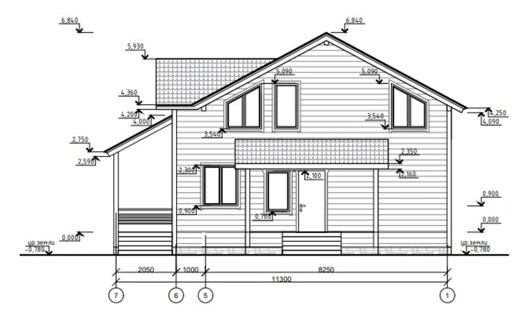
Материал кровли
Металлочерепица
Материал перекрытий
Деревянные
Материал внешних стен
Материал внутренних перегородок
Деревянные
Модульное строительство с конструкциями заводского изготовления
Нет
Объем надземной части
702 м3
Основной материал фасадов
Дерево
Отопление
Индивидуальное
Площадь дома
172 м2
Площадь застройки
172 м2
Подвальное помещение
Нет
Показатель компактности здания
-
Приборы учета тепловой энергии
-
Пристроенный гараж/крытая автостоянка
Нет
Противопожарная система
Нет
Санузлы
2
Совмещенная кухня-гостиная
Да
Спальни
4
Терраса
Да
Тип фундамента
Свайно-винтовой
Тип кровли
Толщина внешних стен
150 мм
Толщина внутренних перегородок
100 мм
Улучшенные шумовые характеристики
-
Вентиляция
Естественная
Веранда
Нет
Водоотведение
Локальные очистные сооружения
Водоснабжение
Индивидуальное
Высота дома
5.4 м
Высота потолков
2.7 м

Планировка

Фасад дома

Александр

Закажите выезд инженера

Александр

Выездной инженер
Закажите выезд инженера для точной диагностики и профессиональной консультации по инженерным системам. Специалист приедет в удобное время, проведёт осмотр, рассчитает стоимость работ и подберёт оптимальные решения для вашего дома.


    Похожие проекты

    Ипотека и
    рассрочка
    Одноэтажный дом с мансардой и эркером в гостиной S-186
    Стоимость от:
    14 947 200
    Проект от: 90 000
    Этажей 2
    Санузлы 2
    Спальни 2
    Смотреть
    Ипотека и
    рассрочка
    Одноэтажный ОД-2
    Стоимость от:
    13 816 880
    Проект от: 82 800
    Этажей 1
    Санузлы 2
    Спальни 3
    Смотреть
    Ипотека и
    рассрочка
    Двухэтажный каркасный дом Лаванда
    Стоимость от:
    8 031 960
    Проект от: 60 300
    Этажей 2
    Санузлы 2
    Спальни 5
    Смотреть
    Ипотека и
    рассрочка
    Барн 166 от Строй и Живи
    Стоимость от:
    7 304 220
    Проект от: 56 700
    Этажей 1
    Санузлы 4
    Спальни 4
    Смотреть
    Ипотека и
    рассрочка
    Проект дома КС-1
    Стоимость от:
    6 371 200
    Проект от: 36 000
    Этажей 1
    Санузлы 1
    Спальни 3
    Смотреть
    Ипотека и
    рассрочка
    Загородный дом «Статус» площадью застройки 126м2
    Стоимость от:
    7 590 220
    Проект от: 45 450
    Этажей 1
    Санузлы 1
    Спальни 3
    Смотреть

    Как узнать стоимость дома

    back
    Оставляете заявку
    Вы заполняете форму на сайте или звоните нам. Менеджер Лайвкрафт связывается с вами для уточнения деталей: тип дома, площадь, материалы, участок строительства.
    back
    Консультация и подбор решения
    Наш специалист помогает выбрать оптимальный тип дома и конструкцию с учётом бюджета, сроков и целей — будь то дом для постоянного проживания или дача.
    back
    Расчёт предварительной стоимости
    Инженер делает первичный расчёт стоимости строительства по вашим параметрам: фундамент, коробка, кровля, отделка. Вы получаете смету с разбивкой по этапам.
    back
    Корректировка и утверждение сметы
    При необходимости вносим изменения — например, замену материалов или сокращение этапов. После согласования формируется окончательная фиксированная смета.
    back
    Заключение договора и старт работ
    После утверждения сметы заключаем официальный договор с гарантией. Вы получаете прозрачный график и точную стоимость — без скрытых расходов.

    Заказать конусльтацию по:Дом в скандинавском стиле «Вива 172»

    Фото 1 Дом в скандинавском стиле «Вива 172»


      Наши
      контакты

      Дмитров
      Опорный проезд 28Б
      (индустриальный парк Ниагара)
      9:00 до 18:00

      Корзина