4.9
Рейтинг на основании 120 отзывов
Дмитров
Опорный проезд 28Б
(индустриальный парк Ниагара)
Бренд "Дмитров-Дело" c 2008 года на рынке строительства в Дмитрове
Звоните 9:00 до 18:00 8 (915) 055-33-61
Бренд "Дмитров-Дело" c 2008 года на рынке строительства в Дмитрове

Дом в стиле Барнхаус ДГ-11

Стоимость проекта от:
88 650 ₽
БЕСПЛАТНО! ПРИ ЗАКАЗЕ СТРОИТЕЛЬСТВА
Стоимость строительства от:
14 497 680 ₽
Артикул ART-3016
Дата 26.12.2025
Архитектурный стиль Барнхаус
Количество надземных этажей 2
Круглогодичное проживание Да
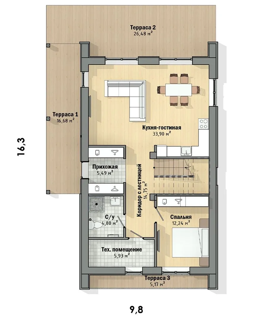
Площадь дома 197 м2
Санузлы 3
Спальни 4

Описание

Встречайте настоящий кусок уюта и современности – дом в стиле Барнхаус ДГ‑11, где каждая деталь продумана так, чтобы создавать ощущение простора и гармонии. Удобной двухэтажной конфигурации хватает, чтобы комфортно разместиться всей семьей, а круглогодичная проходимость придаёт этому проекту уникальную универсальность – уют в любое время года. Застройка в стиле барнхауса обогревает атмосферу, сочетая в себе открытые линейные элементы и природный материал, который создаёт неповторимый, слегка винтажный характер. Потенциальным владельцам хочется подчеркнуть отсутствие типичных лишних элементов: балконов, веранды и прикладного гаража. Вместо этого дом приглашает к более «живому» взаимодействию с пространством – через просторный чердачный отсек, который можно превратить в идеальное место для творчества, работы офиса под стеклом или уютной комнатной для отдыха, а также через просторную террасу, где каждый вечер будет ощущаться как маленькое празднество. Внешние стены выполнены из газобетонных блоков, что обеспечивает энергоэффективность и лёгкую теплоизоляцию, а крыша типичной двухскатной конструкции придаёт архитектуре узнаваемый силуэт и защиту от непогоды. Этот дом – настоящий баланс между современной функциональностью и эстетическим стилем, созданный для тех, кто ценит качество, комфорт и уникальность своего пространства.

Характеристики дома

Архитектурный стиль
Автоматизированное регулирование параметров теплоносителя
Нет
Балконы/лоджии
Отсутствуют
Чердачное помещение
Да
Датчики протечки воды
Нет
Эксплуатируемая или зеленая кровля
Нет
Электроснабжение
Центральное
Газоснабжение
Центральное
Изоляция воздушного шума
Нет
Камин
Нет
Класс энергоэффективности
-
Класс энергосбережения
-
Количество надземных этажей
2
Круглогодичное проживание
Да
Материал кровли
Фальцевая кровля кровля из оцинкованных стальных листов
Материал перекрытий
Монолитные железобетонные
Материал внешних стен
Материал внутренних перегородок
Кирпичные
Модульное строительство с конструкциями заводского изготовления
Нет
Объем надземной части
1095 м3
Основной материал фасадов
Сайдинг
Отопление
Индивидуальное
Площадь дома
197 м2
Площадь застройки
146 м2
Подвальное помещение
Нет
Показатель компактности здания
-
Приборы учета тепловой энергии
Нет
Пристроенный гараж/крытая автостоянка
Нет
Противопожарная система
Нет
Санузлы
3
Совмещенная кухня-гостиная
Да
Спальни
4
Терраса
Да
Тип фундамента
Ленточный
Тип кровли
Толщина внешних стен
400 мм
Толщина внутренних перегородок
120 мм
Улучшенные шумовые характеристики
Нет
Вентиляция
3 варианта
Веранда
Нет
Водоотведение
2 варианта
Водоснабжение
Центральное
Высота дома
7.44 м
Высота потолков
2.85 м

Планировка

Фасад дома

Александр

Закажите выезд инженера

Александр

Выездной инженер
Закажите выезд инженера для точной диагностики и профессиональной консультации по инженерным системам. Специалист приедет в удобное время, проведёт осмотр, рассчитает стоимость работ и подберёт оптимальные решения для вашего дома.


    Похожие проекты

    Ипотека и
    рассрочка
    Дом Лили Лофт
    Стоимость от:
    3 534 360
    Проект от: 26 550
    Этажей 2
    Санузлы 1
    Спальни 1
    Смотреть
    Ипотека и
    рассрочка
    Проект Соломко 2
    Стоимость от:
    7 721 340
    Проект от: 43 650
    Этажей 1
    Санузлы 2
    Спальни 3
    Смотреть
    Ипотека и
    рассрочка
    Дом из CLT «Озерки»
    Стоимость от:
    1 028 280
    Проект от: 73 800
    Этажей 1
    Санузлы 3
    Спальни 3
    Смотреть
    Ипотека и
    рассрочка
    Загородный дом РУНА 207
    Стоимость от:
    11 034 720
    Проект от: 71 100
    Этажей 2
    Санузлы 2
    Спальни 4
    Смотреть
    Ипотека и
    рассрочка
    Д-40
    Стоимость от:
    6 355 800
    Проект от: 40 500
    Этажей 1
    Санузлы 1
    Спальни 2
    Смотреть
    Ипотека и
    рассрочка
    Двухэтажный дом 222 (238) м2 SHOLOH
    Стоимость от:
    17 497 920
    Проект от: 107 100
    Этажей 2
    Санузлы 4
    Спальни 6
    Смотреть

    Как узнать стоимость дома

    back
    Оставляете заявку
    Вы заполняете форму на сайте или звоните нам. Менеджер Лайвкрафт связывается с вами для уточнения деталей: тип дома, площадь, материалы, участок строительства.
    back
    Консультация и подбор решения
    Наш специалист помогает выбрать оптимальный тип дома и конструкцию с учётом бюджета, сроков и целей — будь то дом для постоянного проживания или дача.
    back
    Расчёт предварительной стоимости
    Инженер делает первичный расчёт стоимости строительства по вашим параметрам: фундамент, коробка, кровля, отделка. Вы получаете смету с разбивкой по этапам.
    back
    Корректировка и утверждение сметы
    При необходимости вносим изменения — например, замену материалов или сокращение этапов. После согласования формируется окончательная фиксированная смета.
    back
    Заключение договора и старт работ
    После утверждения сметы заключаем официальный договор с гарантией. Вы получаете прозрачный график и точную стоимость — без скрытых расходов.

    Заказать конусльтацию по:Дом в стиле Барнхаус ДГ-11

    Фото 1 Дом в стиле Барнхаус ДГ-11


      Наши
      контакты

      Дмитров
      Опорный проезд 28Б
      (индустриальный парк Ниагара)
      9:00 до 18:00

      Корзина