4.9
Рейтинг на основании 120 отзывов
Дмитров
Опорный проезд 28Б
(индустриальный парк Ниагара)
Бренд "Дмитров-Дело" c 2008 года на рынке строительства в Дмитрове
Звоните 9:00 до 18:00 8 (915) 055-33-61
Бренд "Дмитров-Дело" c 2008 года на рынке строительства в Дмитрове

Дом в стиле “Plain ”с террасой

Стоимость проекта от:
47 700 ₽
БЕСПЛАТНО! ПРИ ЗАКАЗЕ СТРОИТЕЛЬСТВА
Стоимость строительства от:
7 965 320 ₽
Артикул ART-13120
Дата 25.12.2025
Архитектурный стиль Классический
Количество надземных этажей 1
Круглогодичное проживание Да
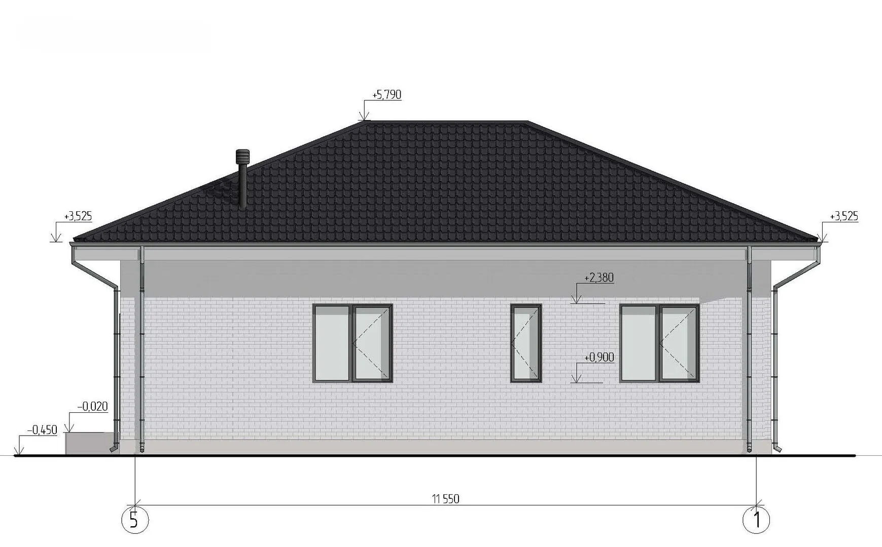
Площадь дома 106 м2
Санузлы 1
Спальни 3

Описание

Незаметная в городе, но ярко выделяющаяся простотой и гармонией — этот одноквартирный классический дом приглашает вас ощутить спокойствие и уют, которые доступны круглогодично. Удобство одного надземного этажа делает его идеальным решением для семей, желающих сочетать приватность с просторным интерьером. Вдали от городского шума, эта маленькая жемчужина сохраняет ощущение домашнего уюта, а в сочетании с современным стилем делает проживание здесь по-настоящему желанным. Экстерьер, выполненный из керамического блока, придает зданию элегантный, но скромный вид, сочетающий в себе традиционную прочность и современную эстетику. Четырехскатная (валмовая) крыша добавляет нотку величия и защиты от непогоды, а наличие чердачного помещения открывает перспективы для дополнительного хранения или создания уютного уголка творчества. Величественная архитектура в классическом стиле делает дом заметным и в то же время непременно гармоничным в любых окрестностях. Выходя наружу, вы попадаете на просторную террасу — идеальное место для семейных барбекю, уединённого чтения любимой книги под открытым небом или спокойного наблюдения за закатами в ваших собственных террасных оазисах. Отсутствие балконов, веранд и прицепного гаража делает это жильё лаконичным, но одновременно чистым и современным, позволяя сосредоточиться на настоящих ценностях: тепле семьи, уединении и простоте жизни. Приглашаем вас открыть для себя все это и увидеть, насколько просто, но элегантно может быть жить в доме, где каждый элемент продуман до мелочей, а уют живёт в каждой детали.

Характеристики дома

Архитектурный стиль
Автоматизированное регулирование параметров теплоносителя
Да
Балконы/лоджии
Отсутствуют
Чердачное помещение
Да
Датчики протечки воды
Да
Эксплуатируемая или зеленая кровля
Нет
Электроснабжение
Центральное
Газоснабжение
Центральное
Изоляция воздушного шума
Да
Камин
Нет
Класс энергоэффективности
-
Класс энергосбережения
-
Количество надземных этажей
1
Круглогодичное проживание
Да
Материал кровли
Металлочерепица
Материал перекрытий
Деревянные по металлическим балкам
Материал внешних стен
Материал внутренних перегородок
Блочные
Модульное строительство с конструкциями заводского изготовления
Нет
Объем надземной части
734 м3
Основной материал фасадов
Облицовочный кирпич
Отопление
Индивидуальное
Площадь дома
106 м2
Площадь застройки
146 м2
Подвальное помещение
Нет
Показатель компактности здания
-
Приборы учета тепловой энергии
Да
Пристроенный гараж/крытая автостоянка
Нет
Противопожарная система
Да
Санузлы
1
Совмещенная кухня-гостиная
Да
Спальни
3
Терраса
Да
Тип фундамента
Свайно-ростверковый
Толщина внешних стен
380 мм
Толщина внутренних перегородок
250 мм
Улучшенные шумовые характеристики
Да
Вентиляция
Естественная
Веранда
Нет
Водоотведение
Локальные очистные сооружения
Водоснабжение
Индивидуальное
Высота дома
5.79 м
Высота потолков
3.5 м

Планировка

Фасад дома

Александр

Закажите выезд инженера

Александр

Выездной инженер
Закажите выезд инженера для точной диагностики и профессиональной консультации по инженерным системам. Специалист приедет в удобное время, проведёт осмотр, рассчитает стоимость работ и подберёт оптимальные решения для вашего дома.


    Похожие проекты

    Ипотека и
    рассрочка
    D138-2
    Стоимость от:
    432 960
    Проект от: 73 800
    Этажей 2
    Санузлы 3
    Спальни 4
    Смотреть
    Ипотека и
    рассрочка
    Одноэтажный жилой дом СВ-130
    Стоимость от:
    6 910 420
    Проект от: 45 450
    Этажей 1
    Санузлы 1
    Спальни 3
    Смотреть
    Ипотека и
    рассрочка
    Двухэтажный дом в стиле Хайтек №1с гаражом
    Стоимость от:
    20 900 160
    Проект от: 132 300
    Этажей 2
    Санузлы 3
    Спальни 5
    Смотреть
    Ипотека и
    рассрочка
    Дом ГД-742
    Стоимость от:
    5 950 670
    Проект от: 42 300
    Этажей 1
    Санузлы 1
    Спальни 2
    Смотреть
    Ипотека и
    рассрочка
    Проект Двухэтажный дом с навесом БРАИТ-32Г
    Стоимость от:
    10 916 640
    Проект от: 65 700
    Этажей 2
    Санузлы 2
    Спальни 4
    Смотреть
    Ипотека и
    рассрочка
    Проект «Авангард»
    Стоимость от:
    13 011 350
    Проект от: 92 250
    Этажей 1
    Санузлы 2
    Спальни 3
    Смотреть

    Как узнать стоимость дома

    back
    Оставляете заявку
    Вы заполняете форму на сайте или звоните нам. Менеджер Лайвкрафт связывается с вами для уточнения деталей: тип дома, площадь, материалы, участок строительства.
    back
    Консультация и подбор решения
    Наш специалист помогает выбрать оптимальный тип дома и конструкцию с учётом бюджета, сроков и целей — будь то дом для постоянного проживания или дача.
    back
    Расчёт предварительной стоимости
    Инженер делает первичный расчёт стоимости строительства по вашим параметрам: фундамент, коробка, кровля, отделка. Вы получаете смету с разбивкой по этапам.
    back
    Корректировка и утверждение сметы
    При необходимости вносим изменения — например, замену материалов или сокращение этапов. После согласования формируется окончательная фиксированная смета.
    back
    Заключение договора и старт работ
    После утверждения сметы заключаем официальный договор с гарантией. Вы получаете прозрачный график и точную стоимость — без скрытых расходов.

    Заказать конусльтацию по:Дом в стиле “Plain ”с террасой

    Фото 1 Дом в стиле “Plain ”с террасой


      Наши
      контакты

      Дмитров
      Опорный проезд 28Б
      (индустриальный парк Ниагара)
      9:00 до 18:00

      Корзина