4.9
Рейтинг на основании 120 отзывов
Дмитров
Опорный проезд 28Б
(индустриальный парк Ниагара)
Бренд "Дмитров-Дело" c 2008 года на рынке строительства в Дмитрове
Звоните 9:00 до 18:00 8 (915) 055-33-61
Бренд "Дмитров-Дело" c 2008 года на рынке строительства в Дмитрове

Дом в стиле Шале 8х10 с антресолью

Стоимость проекта от:
60 750 ₽
БЕСПЛАТНО! ПРИ ЗАКАЗЕ СТРОИТЕЛЬСТВА
Стоимость строительства от:
8 905 200 ₽
Артикул ART-4534
Дата 26.12.2025
Архитектурный стиль Шале
Количество надземных этажей 2
Круглогодичное проживание Да
Площадь дома 135 м2
Санузлы 2
Спальни 4

Описание

Сердце этого швейцарского шедевра – уютный, двухэтажный дом в стиле шале, выполненный из каркасно‑панельной технологии. Каждое помещение дышит теплом и натуральной красотой дерева, а сквозь большие окна льётся приглушённый свет, который в сочетании с традиционной глиняной плитой и скандинавской простотой создаёт атмосферу настоящего уединённого убежища. Внутреннее пространство, где удобно раздвинуться и отдохнуть после долгого дня, дополнено антресолью, открывающей доступ к дополнительному жилому пространству, идеальному для гостиной комнаты, офиса или детской библиотеки. Дом предназначен для круглогодичного проживания – холодные зимние ветры укрывает плотная изоляция, при этом летом свежий воздух будет приятно циркулировать в каждом зале. Небольшая терраса, обрамлённая живыми растениями и мягким освещением, служит прекрасным местом для завтраков на рассвете или уютных вечеров с книгой. Отсутствие больших балконов, веранд и прицепного гаража не ограничивает функциональность – каждое решение принято во благо эстетики и удобства. Это идеальная шале‑реальность для тех, кто ценит сочетание традиционной рустикальности с современными технологиями комфорта.

Характеристики дома

Архитектурный стиль
Автоматизированное регулирование параметров теплоносителя
-
Балконы/лоджии
Отсутствуют
Чердачное помещение
Нет
Датчики протечки воды
-
Эксплуатируемая или зеленая кровля
-
Электроснабжение
2 варианта
Газоснабжение
Не предусмотрено
Изоляция воздушного шума
-
Камин
Нет
Класс энергоэффективности
-
Класс энергосбережения
-
Количество надземных этажей
2
Круглогодичное проживание
Да
Материал кровли
Металлочерепица
Материал перекрытий
Деревянные
Материал внешних стен
Материал внутренних перегородок
Деревянные
Модульное строительство с конструкциями заводского изготовления
Нет
Объем надземной части
561 м3
Основной материал фасадов
Дерево
Отопление
Индивидуальное
Площадь дома
135 м2
Площадь застройки
104 м2
Подвальное помещение
Нет
Показатель компактности здания
-
Приборы учета тепловой энергии
-
Пристроенный гараж/крытая автостоянка
Нет
Противопожарная система
Нет
Санузлы
2
Совмещенная кухня-гостиная
Да
Спальни
4
Терраса
Да
Тип фундамента
Свайный
Тип кровли
Толщина внешних стен
150 мм
Толщина внутренних перегородок
125 мм
Улучшенные шумовые характеристики
-
Вентиляция
2 варианта
Веранда
Нет
Водоотведение
Локальные очистные сооружения
Водоснабжение
2 варианта
Высота дома
6 м
Высота потолков
4 м

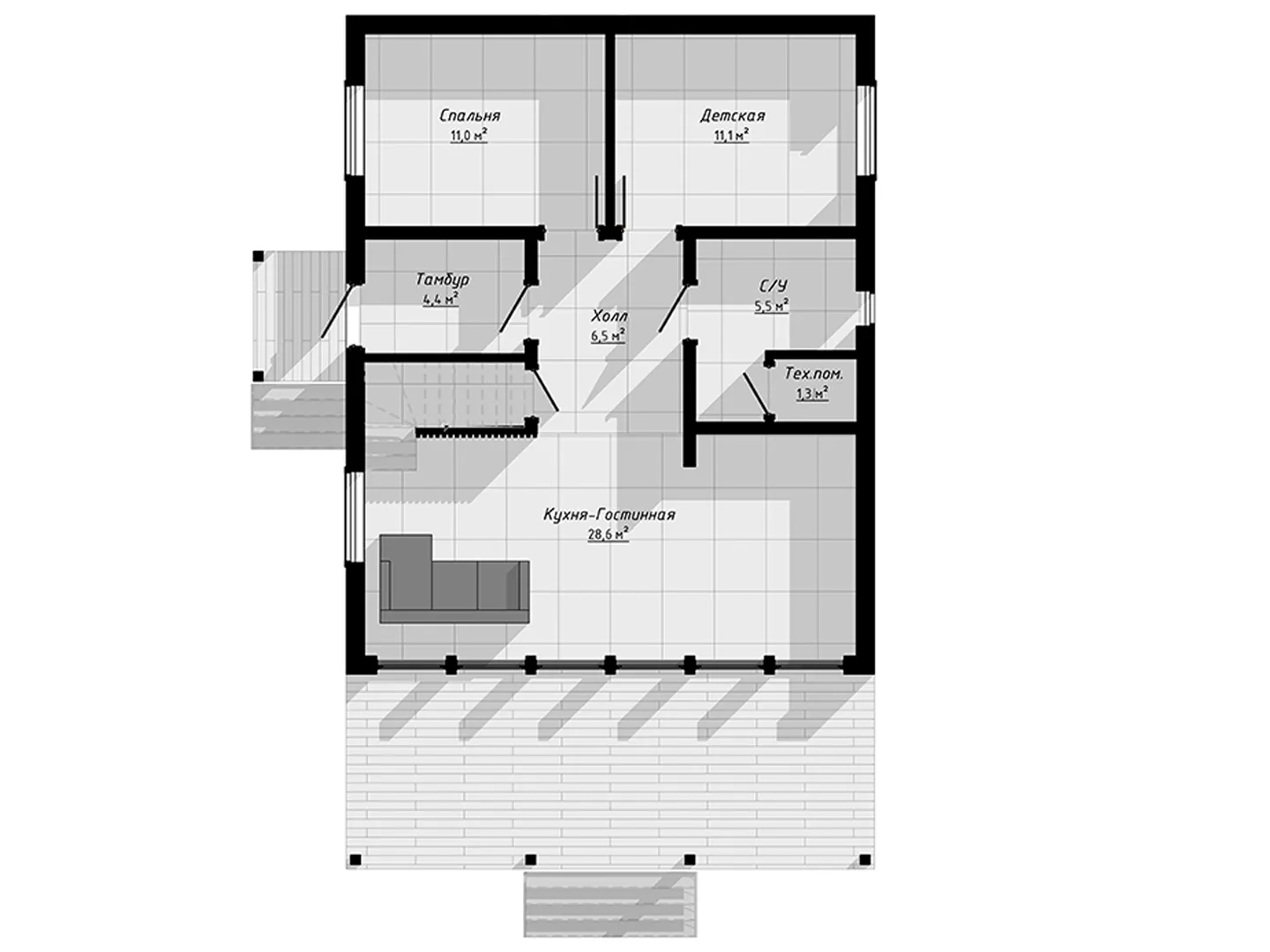
Планировка

Фасад дома

Александр

Закажите выезд инженера

Александр

Выездной инженер
Закажите выезд инженера для точной диагностики и профессиональной консультации по инженерным системам. Специалист приедет в удобное время, проведёт осмотр, рассчитает стоимость работ и подберёт оптимальные решения для вашего дома.


    Похожие проекты

    Ипотека и
    рассрочка
    Проект двухэтажного дома «Алексей Дмитриевич»
    Стоимость от:
    13 763 280
    Проект от: 84 150
    Этажей 2
    Санузлы 3
    Спальни 4
    Смотреть
    Ипотека и
    рассрочка
    Одноэтажный дом: Проект Сказка
    Стоимость от:
    7 065 080
    Проект от: 42 300
    Этажей 1
    Санузлы 1
    Спальни 2
    Смотреть
    Ипотека и
    рассрочка
    Одноэтажный коттедж Жуковка
    Стоимость от:
    14 335 860
    Проект от: 91 350
    Этажей 1
    Санузлы 2
    Спальни 3
    Смотреть
    Ипотека и
    рассрочка
    Загородный дом Барн 80 кв.м
    Стоимость от:
    3 872 935
    Проект от: 30 150
    Этажей 1
    Санузлы 1
    Спальни 2
    Смотреть
    Ипотека и
    рассрочка
    Загородный дом Фрея
    Стоимость от:
    7 544 640
    Проект от: 47 700
    Этажей 2
    Санузлы 2
    Спальни 3
    Смотреть
    Ипотека и
    рассрочка
    Авторский проект «Фрэни»
    Стоимость от:
    8 827 500
    Проект от: 56 250
    Этажей 1
    Санузлы 2
    Спальни 3
    Смотреть

    Как узнать стоимость дома

    back
    Оставляете заявку
    Вы заполняете форму на сайте или звоните нам. Менеджер Лайвкрафт связывается с вами для уточнения деталей: тип дома, площадь, материалы, участок строительства.
    back
    Консультация и подбор решения
    Наш специалист помогает выбрать оптимальный тип дома и конструкцию с учётом бюджета, сроков и целей — будь то дом для постоянного проживания или дача.
    back
    Расчёт предварительной стоимости
    Инженер делает первичный расчёт стоимости строительства по вашим параметрам: фундамент, коробка, кровля, отделка. Вы получаете смету с разбивкой по этапам.
    back
    Корректировка и утверждение сметы
    При необходимости вносим изменения — например, замену материалов или сокращение этапов. После согласования формируется окончательная фиксированная смета.
    back
    Заключение договора и старт работ
    После утверждения сметы заключаем официальный договор с гарантией. Вы получаете прозрачный график и точную стоимость — без скрытых расходов.

    Заказать конусльтацию по:Дом в стиле Шале 8х10 с антресолью

    Фото 1 Дом в стиле Шале 8х10 с антресолью


      Наши
      контакты

      Дмитров
      Опорный проезд 28Б
      (индустриальный парк Ниагара)
      9:00 до 18:00

      Корзина