4.9
Рейтинг на основании 120 отзывов
Дмитров
Опорный проезд 28Б
(индустриальный парк Ниагара)
Бренд "Дмитров-Дело" c 2008 года на рынке строительства в Дмитрове
Звоните 9:00 до 18:00 8 (915) 055-33-61
Бренд "Дмитров-Дело" c 2008 года на рынке строительства в Дмитрове

Дома Марианна

Стоимость проекта от:
25 650 ₽
БЕСПЛАТНО! ПРИ ЗАКАЗЕ СТРОИТЕЛЬСТВА
Стоимость строительства от:
3 294 885 ₽
Артикул ART-19444
Дата 26.12.2025
Архитектурный стиль Классический
Количество надземных этажей 1
Круглогодичное проживание Да
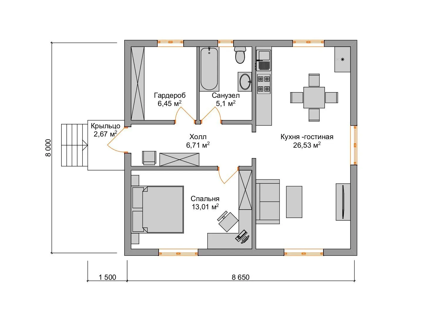
Площадь дома 57 м2
Санузлы 1
Спальни 1

Описание

Дом «Марианна» — это уютное убежище в стиле классики, где каждый уголок пронизан гармонией и теплотой. Его одноэтажное пространство идеально подходит для круглогодичного проживания: просторная гостиная открывается широкими окнами, наполняя интерьеры естественным светом, а деревянный каркас и двускатная крыша создают тепло и уединение даже в самые прохладные дни. Отсутствие балконов и веранд не делает его менее живым – напротив, уютные потайные коридоры, тихий двор и обширные окны подчеркивают чувство приватности и соединяют внутреннее пространство с природой за пределами фасада. Внутри выделяется практичное чердачное помещение, которое можно превратить в мастерскую, детскую игровую комнату или уютный офис – ведь «Марианна» всегда готова принять ваши новые идеи. Этот дом – символ спокойствия и надёжности. Он приглашает к созданию семейных воспоминаний, в которых комфорт сочетается с традицией, а каждый камень напоминает о том, что настоящее уют начинается с качественных материалов и продуманного дизайна. Приходите, и вы убедитесь, как легко создать свой маленький уголок счастья в доме «Марианна»!

Характеристики дома

Архитектурный стиль
Автоматизированное регулирование параметров теплоносителя
Нет
Балконы/лоджии
Отсутствуют
Чердачное помещение
Да
Датчики протечки воды
Нет
Эксплуатируемая или зеленая кровля
Нет
Электроснабжение
Центральное
Газоснабжение
Центральное
Изоляция воздушного шума
Нет
Камин
Нет
Класс энергоэффективности
-
Класс энергосбережения
-
Количество надземных этажей
1
Круглогодичное проживание
Да
Материал кровли
Металлочерепица
Материал перекрытий
Деревянные
Материал внешних стен
Материал внутренних перегородок
Гипсокартонные
Модульное строительство с конструкциями заводского изготовления
Нет
Объем надземной части
385 м3
Основной материал фасадов
Дерево
Отопление
Индивидуальное
Площадь дома
57 м2
Площадь застройки
70 м2
Подвальное помещение
Нет
Показатель компактности здания
-
Приборы учета тепловой энергии
Нет
Пристроенный гараж/крытая автостоянка
Нет
Противопожарная система
Нет
Санузлы
1
Совмещенная кухня-гостиная
Да
Спальни
1
Терраса
Нет
Тип фундамента
Свайно-винтовой
Тип кровли
Толщина внешних стен
200 мм
Толщина внутренних перегородок
100 мм
Улучшенные шумовые характеристики
Да
Вентиляция
Принудительная
Веранда
Нет
Водоотведение
Локальные очистные сооружения
Водоснабжение
Индивидуальное
Высота дома
5.6 м
Высота потолков
2.5 м

Планировка

Фасад дома

Александр

Закажите выезд инженера

Александр

Выездной инженер
Закажите выезд инженера для точной диагностики и профессиональной консультации по инженерным системам. Специалист приедет в удобное время, проведёт осмотр, рассчитает стоимость работ и подберёт оптимальные решения для вашего дома.


    Похожие проекты

    Ипотека и
    рассрочка
    Быстровозводимый дом «EFFECT LIGHT 44»
    Стоимость от:
    2 695 880
    Проект от: 19 800
    Этажей 1
    Санузлы 1
    Спальни 1
    Смотреть
    Ипотека и
    рассрочка
    Villa Maria
    Стоимость от:
    11 744 400
    Проект от: 74 250
    Этажей 2
    Санузлы 2
    Спальни 4
    Смотреть
    Ипотека и
    рассрочка
    Одноэтажный дом «Нарвик»
    Стоимость от:
    7 880 180
    Проект от: 44 550
    Этажей 1
    Санузлы 2
    Спальни 2
    Смотреть
    Ипотека и
    рассрочка
    ДСМ-Сосновый бор-159
    Стоимость от:
    11 111 760
    Проект от: 71 550
    Этажей 2
    Санузлы 2
    Спальни 4
    Смотреть
    Ипотека и
    рассрочка
    Эри
    Стоимость от:
    258 940
    Проект от: 48 150
    Этажей 1
    Санузлы 1
    Спальни 3
    Смотреть
    Ипотека и
    рассрочка
    Одноэтажный дом из арболита с террасой
    Стоимость от:
    9 042 880
    Проект от: 55 800
    Этажей 1
    Санузлы 1
    Спальни 3
    Смотреть

    Как узнать стоимость дома

    back
    Оставляете заявку
    Вы заполняете форму на сайте или звоните нам. Менеджер Лайвкрафт связывается с вами для уточнения деталей: тип дома, площадь, материалы, участок строительства.
    back
    Консультация и подбор решения
    Наш специалист помогает выбрать оптимальный тип дома и конструкцию с учётом бюджета, сроков и целей — будь то дом для постоянного проживания или дача.
    back
    Расчёт предварительной стоимости
    Инженер делает первичный расчёт стоимости строительства по вашим параметрам: фундамент, коробка, кровля, отделка. Вы получаете смету с разбивкой по этапам.
    back
    Корректировка и утверждение сметы
    При необходимости вносим изменения — например, замену материалов или сокращение этапов. После согласования формируется окончательная фиксированная смета.
    back
    Заключение договора и старт работ
    После утверждения сметы заключаем официальный договор с гарантией. Вы получаете прозрачный график и точную стоимость — без скрытых расходов.

    Заказать конусльтацию по:Дома Марианна

    Фото 1 Дома Марианна


      Наши
      контакты

      Дмитров
      Опорный проезд 28Б
      (индустриальный парк Ниагара)
      9:00 до 18:00

      Корзина