4.9
Рейтинг на основании 120 отзывов
Дмитров
Опорный проезд 28Б
(индустриальный парк Ниагара)
Бренд "Дмитров-Дело" c 2008 года на рынке строительства в Дмитрове
Звоните 9:00 до 18:00 8 (915) 055-33-61
Бренд "Дмитров-Дело" c 2008 года на рынке строительства в Дмитрове

Двухэтажное шале 128м2

Стоимость проекта от:
49 500 ₽
БЕСПЛАТНО! ПРИ ЗАКАЗЕ СТРОИТЕЛЬСТВА
Стоимость строительства от:
6 890 400 ₽
Артикул ART-4244
Дата 26.12.2025
Архитектурный стиль Шале
Количество надземных этажей 2
Круглогодичное проживание Да
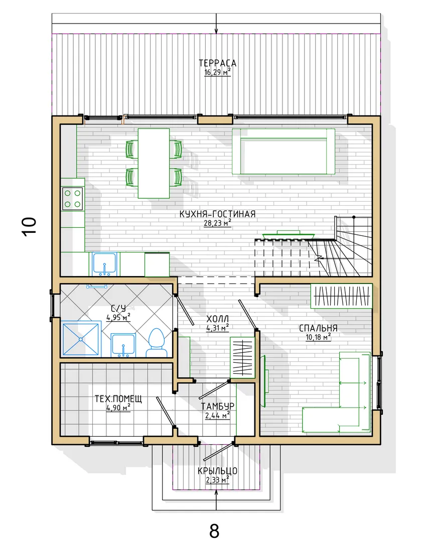
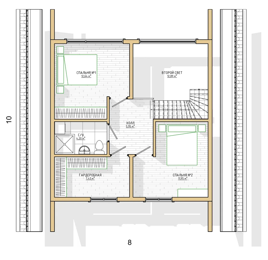
Площадь дома 110 м2
Санузлы 2
Спальни 3

Описание

Добро пожаловать в уютный двухэтажный шале площадью 128 м², где каждое утро начинается с нежного звучания ветра в крутящихся шишках деревьев, а вечер приносит тепло традиционного камина после долгого дня. Этот дом, построенный в классическом шале‑стиле, сочетает в себе элегантный внешний вид и функциональность: деревянный каркасный стеночный корпус дарит естественную прочность и тепло, а два надземных этажа создают пространство для семейных встреч, креативных уголков и комфортного отдыха. Круглогодичное проживание обеспечивает изоляцию от атмосферных изменений – здесь каждый дом наполнен уютом и теплом, независимо от того, какая погода за окном. Построенный с любовью к природному окружению, шале без балконов и веранды раскрывает в интерьере легкость и простоту, а отсутствие прикасага к автосборке оставляет место для тех, кто ценит свободный доступ к собственному кристаллическому пространству, где можно устроить маленькую домашнюю лабораторию творчества. Отдельно стоит отметить двухскатную крышу, которая элегантно подчеркивает характерность шале и отводит осадки в нужном направлении, создавая при этом идеальное сводное пространство для душевных бесед. Если вы мечтаете о доме, который будет вашим убежищем, вашим источником вдохновения и местом, где каждая стена говорит о теплом гостеприимстве, то 128‑м² шале – это ваш идеальный выбор. Погрузитесь в атмосферу простоты, где каждая деталь пронизана уважением к природным материалам, а ваш дом становится воплощением уюта и стиля.

Характеристики дома

Архитектурный стиль
Автоматизированное регулирование параметров теплоносителя
-
Балконы/лоджии
Отсутствуют
Чердачное помещение
Нет
Датчики протечки воды
-
Эксплуатируемая или зеленая кровля
-
Электроснабжение
Центральное
Газоснабжение
Не предусмотрено
Изоляция воздушного шума
-
Камин
Нет
Класс энергоэффективности
-
Класс энергосбережения
-
Количество надземных этажей
2
Круглогодичное проживание
Да
Материал кровли
Битумная черепица
Материал перекрытий
Деревянные
Материал внешних стен
Материал внутренних перегородок
Гипсокартонные
Модульное строительство с конструкциями заводского изготовления
Нет
Объем надземной части
-
Основной материал фасадов
Планкен
Отопление
Индивидуальное
Площадь дома
110 м2
Площадь застройки
94 м2
Подвальное помещение
Нет
Показатель компактности здания
-
Приборы учета тепловой энергии
-
Пристроенный гараж/крытая автостоянка
Нет
Противопожарная система
Нет
Санузлы
2
Совмещенная кухня-гостиная
Да
Спальни
3
Терраса
Нет
Тип фундамента
Плитный
Тип кровли
Толщина внешних стен
200 мм
Толщина внутренних перегородок
100 мм
Улучшенные шумовые характеристики
-
Вентиляция
Естественная
Веранда
Нет
Водоотведение
Не предусмотрено
Водоснабжение
Центральное
Высота дома
6 м
Высота потолков
3 м

Планировка

Фасад дома

Александр

Закажите выезд инженера

Александр

Выездной инженер
Закажите выезд инженера для точной диагностики и профессиональной консультации по инженерным системам. Специалист приедет в удобное время, проведёт осмотр, рассчитает стоимость работ и подберёт оптимальные решения для вашего дома.


    Похожие проекты

    Ипотека и
    рассрочка
    Загородный дом АС-102
    Стоимость от:
    16 901 280
    Проект от: 108 900
    Этажей 2
    Санузлы 3
    Спальни 5
    Смотреть
    Ипотека и
    рассрочка
    Дом из CLT «Болгар»
    Стоимость от:
    1 021 200
    Проект от: 96 750
    Этажей 2
    Санузлы 2
    Спальни 4
    Смотреть
    Ипотека и
    рассрочка
    Миловановой
    Стоимость от:
    5 489 660
    Проект от: 32 850
    Этажей 1
    Санузлы 1
    Спальни 2
    Смотреть
    Ипотека и
    рассрочка
    Загородный дом «КостаРика»
    Стоимость от:
    9 236 700
    Проект от: 60 750
    Этажей 1
    Санузлы 3
    Спальни 3
    Смотреть
    Ипотека и
    рассрочка
    Л-107 Comfort
    Стоимость от:
    8 005 140
    Проект от: 52 650
    Этажей 1
    Санузлы 2
    Спальни 3
    Смотреть
    Ипотека и
    рассрочка
    РП-85,7/24
    Стоимость от:
    6 371 200
    Проект от: 36 000
    Этажей 1
    Санузлы 1
    Спальни 3
    Смотреть

    Как узнать стоимость дома

    back
    Оставляете заявку
    Вы заполняете форму на сайте или звоните нам. Менеджер Лайвкрафт связывается с вами для уточнения деталей: тип дома, площадь, материалы, участок строительства.
    back
    Консультация и подбор решения
    Наш специалист помогает выбрать оптимальный тип дома и конструкцию с учётом бюджета, сроков и целей — будь то дом для постоянного проживания или дача.
    back
    Расчёт предварительной стоимости
    Инженер делает первичный расчёт стоимости строительства по вашим параметрам: фундамент, коробка, кровля, отделка. Вы получаете смету с разбивкой по этапам.
    back
    Корректировка и утверждение сметы
    При необходимости вносим изменения — например, замену материалов или сокращение этапов. После согласования формируется окончательная фиксированная смета.
    back
    Заключение договора и старт работ
    После утверждения сметы заключаем официальный договор с гарантией. Вы получаете прозрачный график и точную стоимость — без скрытых расходов.

    Заказать конусльтацию по:Двухэтажное шале 128м2

    Фото 1 Двухэтажное шале 128м2


      Наши
      контакты

      Дмитров
      Опорный проезд 28Б
      (индустриальный парк Ниагара)
      9:00 до 18:00

      Корзина