4.9
Рейтинг на основании 120 отзывов
Дмитров
Опорный проезд 28Б
(индустриальный парк Ниагара)
Бренд "Дмитров-Дело" c 2008 года на рынке строительства в Дмитрове
Звоните 9:00 до 18:00 8 (915) 055-33-61
Бренд "Дмитров-Дело" c 2008 года на рынке строительства в Дмитрове

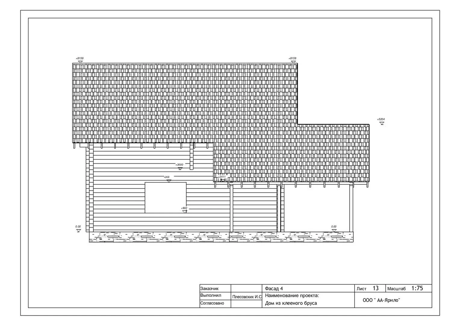
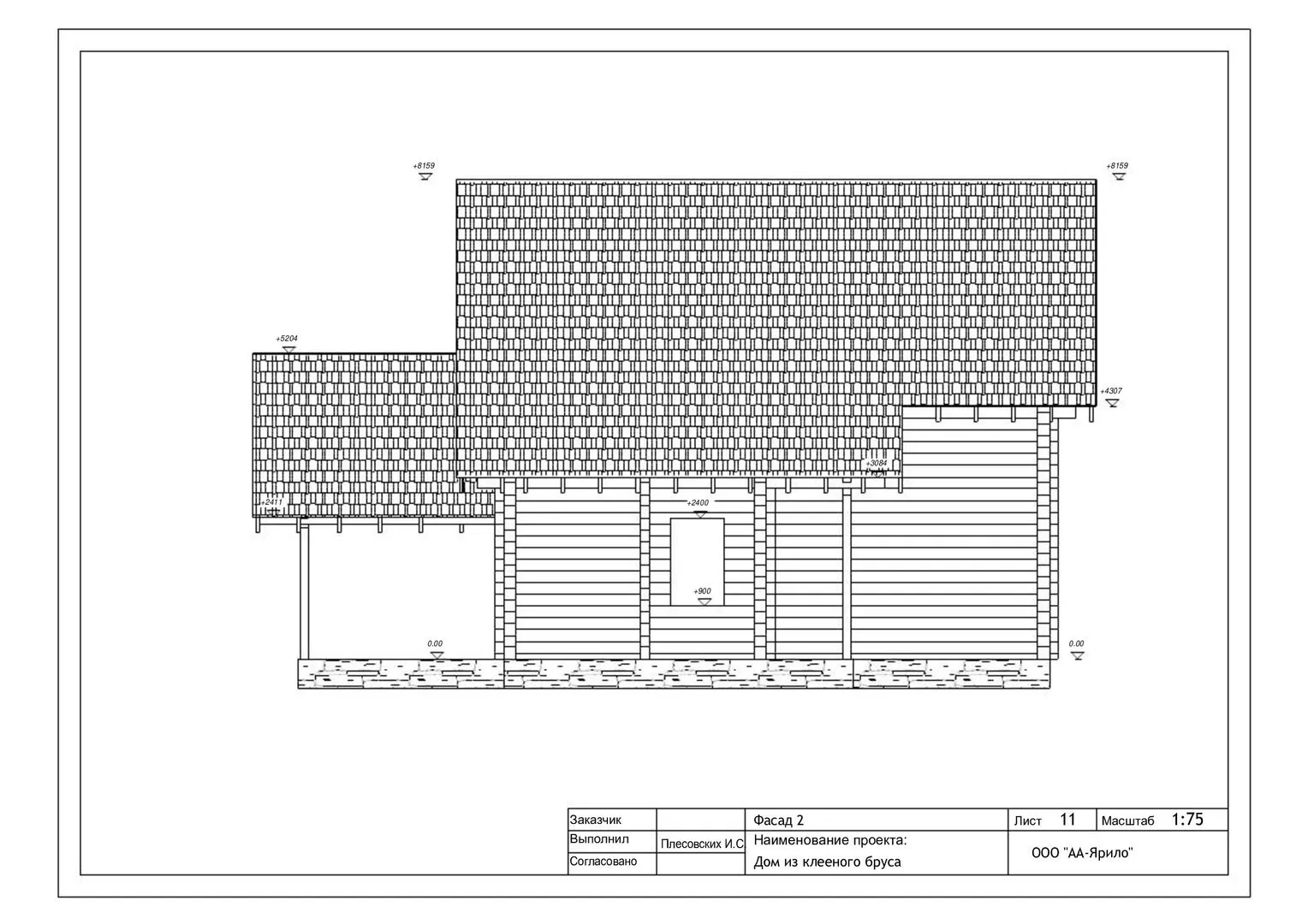
Двухэтажное шале КЦ4-3

Стоимость проекта от:
78 300 ₽
БЕСПЛАТНО! ПРИ ЗАКАЗЕ СТРОИТЕЛЬСТВА
Стоимость строительства от:
12 584 160 ₽
Артикул ART-1761
Дата 26.12.2025
Архитектурный стиль Европейский
Количество надземных этажей 2
Круглогодичное проживание Да
Площадь дома 174 м2
Санузлы 3
Спальни 4

Описание

Погрузитесь в атмосферу спокойствия и уюта, которую дарит наш двухэтажный шале KЦ4‑3. Вдохновленный традиционным европейским стилем дом сочетает в себе простоту и элегантность: массивные клеённые брусья, имитирующие старинный деревянный фасад, и классический двускатный покров, придающий ему нотки старой европейской манорной виллы. Благодаря круглогодичной пригодности к проживанию вы сможете наслаждаться комфортом в любой сезон – от мягкой роскоши летних вечеров до уютного объятия зимнего огня. Уникальность шале проявляется в его нежном деталях: просторная веранда, где можно отдохнуть, насладиться ароматом свежего воздуха и рассмотреть живописные виды; а чердачное помещение предоставляет дополнительные варианты для хранения или уютной рабочей зоны. Дом полностью оснащён всеми современными удобствами, не забывая при этом сохранять аутентичность природы: от стеклянных панелей, пропускающих мягкий дневной свет, до качественных деревянных полов, создающих ощущение тепла и гармонии. Вместе с этим, дизайн предусматривает наличие чердака и просторных внутренних помещений, позволяющих адаптировать пространство под любые потребности: будь то тихий кабинет, детская игровая зона или полноценный гостевой зал. Без лишних балконов и лоджий наш шале сохраняет чистоту линий и фокусирует внимание на его главным достоинствах – теплоте дерева, уютной верандной зоне и величественной архитектуре. Это идеальное сочетание, где каждая деталь продумана, а каждый уголок приглашает к отдыху и вдохновению.

Характеристики дома

Архитектурный стиль
Автоматизированное регулирование параметров теплоносителя
-
Балконы/лоджии
Отсутствуют
Чердачное помещение
Да
Датчики протечки воды
-
Эксплуатируемая или зеленая кровля
-
Электроснабжение
Центральное
Газоснабжение
Не предусмотрено
Изоляция воздушного шума
-
Камин
Нет
Класс энергоэффективности
-
Класс энергосбережения
-
Количество надземных этажей
2
Круглогодичное проживание
Да
Материал кровли
Металлочерепица
Материал перекрытий
Деревянные
Материал внешних стен
Материал внутренних перегородок
Деревянные
Модульное строительство с конструкциями заводского изготовления
Да
Объем надземной части
510 м3
Основной материал фасадов
Дерево
Отопление
Индивидуальное
Площадь дома
174 м2
Площадь застройки
110 м2
Подвальное помещение
Нет
Показатель компактности здания
-
Приборы учета тепловой энергии
-
Пристроенный гараж/крытая автостоянка
Нет
Противопожарная система
Нет
Санузлы
3
Совмещенная кухня-гостиная
Да
Спальни
4
Терраса
Нет
Тип фундамента
Свайно-ростверковый
Тип кровли
Толщина внешних стен
200 мм
Толщина внутренних перегородок
150 мм
Улучшенные шумовые характеристики
-
Вентиляция
Естественная
Веранда
Да
Водоотведение
Локальные очистные сооружения
Водоснабжение
Индивидуальное
Высота дома
8.2 м
Высота потолков
2.73 м

Планировка

Фасад дома

Александр

Закажите выезд инженера

Александр

Выездной инженер
Закажите выезд инженера для точной диагностики и профессиональной консультации по инженерным системам. Специалист приедет в удобное время, проведёт осмотр, рассчитает стоимость работ и подберёт оптимальные решения для вашего дома.


    Похожие проекты

    Ипотека и
    рассрочка
    Загородный одноэтажный дом «Вилладж с гаражом»
    Стоимость от:
    11 416 240
    Проект от: 68 400
    Этажей 1
    Санузлы 2
    Спальни 3
    Смотреть
    Ипотека и
    рассрочка
    Проект АО10
    Стоимость от:
    6 886 800
    Проект от: 42 750
    Этажей 2
    Санузлы 2
    Спальни 3
    Смотреть
    Ипотека и
    рассрочка
    Дом из клееного бруса «ХВОЙНЫЙ»
    Стоимость от:
    8 387 500
    Проект от: 51 750
    Этажей 1
    Санузлы 2
    Спальни 3
    Смотреть
    Ипотека и
    рассрочка
    679
    Стоимость от:
    3 744 730
    Проект от: 26 550
    Этажей 1
    Санузлы 1
    Спальни 2
    Смотреть
    Ипотека и
    рассрочка
    Иркут
    Стоимость от:
    7 203 240
    Проект от: 45 900
    Этажей 1
    Санузлы 2
    Спальни 3
    Смотреть
    Ипотека и
    рассрочка
    Жилой дом БАРН-83
    Стоимость от:
    5 521 890
    Проект от: 39 150
    Этажей 1
    Санузлы 1
    Спальни 2
    Смотреть

    Как узнать стоимость дома

    back
    Оставляете заявку
    Вы заполняете форму на сайте или звоните нам. Менеджер Лайвкрафт связывается с вами для уточнения деталей: тип дома, площадь, материалы, участок строительства.
    back
    Консультация и подбор решения
    Наш специалист помогает выбрать оптимальный тип дома и конструкцию с учётом бюджета, сроков и целей — будь то дом для постоянного проживания или дача.
    back
    Расчёт предварительной стоимости
    Инженер делает первичный расчёт стоимости строительства по вашим параметрам: фундамент, коробка, кровля, отделка. Вы получаете смету с разбивкой по этапам.
    back
    Корректировка и утверждение сметы
    При необходимости вносим изменения — например, замену материалов или сокращение этапов. После согласования формируется окончательная фиксированная смета.
    back
    Заключение договора и старт работ
    После утверждения сметы заключаем официальный договор с гарантией. Вы получаете прозрачный график и точную стоимость — без скрытых расходов.

    Заказать конусльтацию по:Двухэтажное шале КЦ4-3

    Фото 1 Двухэтажное шале КЦ4-3


      Наши
      контакты

      Дмитров
      Опорный проезд 28Б
      (индустриальный парк Ниагара)
      9:00 до 18:00

      Корзина