4.9
Рейтинг на основании 120 отзывов
Дмитров
Опорный проезд 28Б
(индустриальный парк Ниагара)
Бренд "Дмитров-Дело" c 2008 года на рынке строительства в Дмитрове
Звоните 9:00 до 18:00 8 (915) 055-33-61
Бренд "Дмитров-Дело" c 2008 года на рынке строительства в Дмитрове

Двухэтажный 116

Стоимость проекта от:
46 800 ₽
Стоимость строительства от:
7 402 560 ₽
Артикул ART-10401
Дата 25.12.2025
Архитектурный стиль Классический
Количество надземных этажей 2
Круглогодичное проживание Да
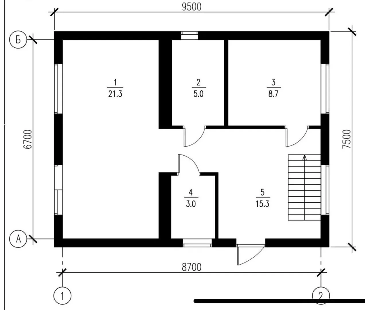
Площадь дома 104 м2
Санузлы 2
Спальни 5

Описание

Уютный двухэтажный дом площадью 116 м², выполненный в строгом классическом стиле, приглашает к круглогодичному проживанию с комфортом и тепло. Внутренние помещения обустроены так, чтобы каждый момент, проведённый здесь, напоминал маленьким уютным мгновением: светлые окна, просторные коридоры, естественное освещение, которое легко превращается в мягкий вечерний свет. В квартире открывшееся пространство располагает к свободному планированию интерьера, позволяя создать как романтичное семейное гнездо, так и современное место для работы и отдыха. Главными особенностями этого дома являются изолированные керамзитобетонные блоки наружных стен, которые обеспечивают надёжную тепло- и звукоизоляцию, а двускатная крыша добавляет дому элегантности и защищенности от атмосферных нагрузок. С отсутствие балконов и веранд, а также дополнительных парковочных помещений, квартира становится идеальной для тех, кто ценит спокойствие и простоту. Это ваш шанс обустроить пространство, где каждый уголок будет работать на ваше уютное будущее.

Характеристики дома

Архитектурный стиль
Классический
Автоматизированное регулирование параметров теплоносителя
-
Балконы/лоджии
Отсутствуют
Чердачное помещение
Нет
Датчики протечки воды
-
Эксплуатируемая или зеленая кровля
-
Электроснабжение
Центральное
Газоснабжение
Центральное
Изоляция воздушного шума
-
Камин
Нет
Класс энергоэффективности
-
Класс энергосбережения
-
Количество надземных этажей
2
Круглогодичное проживание
Да
Материал кровли
Металлические листовые гофрированные профили
Материал перекрытий
Деревянные
Материал внешних стен
Керамзитобетонные блоки
Материал внутренних перегородок
Кирпичные
Модульное строительство с конструкциями заводского изготовления
Нет
Объем надземной части
498 м3
Основной материал фасадов
Штукатурка
Отопление
Индивидуальное
Площадь дома
104 м2
Площадь застройки
71 м2
Подвальное помещение
Нет
Показатель компактности здания
-
Приборы учета тепловой энергии
-
Пристроенный гараж/крытая автостоянка
Нет
Противопожарная система
Да
Санузлы
2
Совмещенная кухня-гостиная
Да
Спальни
5
Терраса
Нет
Тип фундамента
Свайно-ростверковый
Тип кровли
Двускатная
Толщина внешних стен
450 мм
Толщина внутренних перегородок
110 мм
Улучшенные шумовые характеристики
-
Вентиляция
Естественная
Веранда
Нет
Водоотведение
Локальные очистные сооружения
Водоснабжение
Индивидуальное
Высота дома
8 м
Высота потолков
2.7 м

Планировка

Фасад дома

Александр

Закажите выезд инженера

Александр

Выездной инженер
Закажите выезд инженера для точной диагностики и профессиональной консультации по инженерным системам. Специалист приедет в удобное время, проведёт осмотр, рассчитает стоимость работ и подберёт оптимальные решения для вашего дома.


    Похожие проекты

    Ипотека и
    рассрочка
    S.Dom-70-1
    Стоимость от:
    5 024 140
    Проект от: 36 900
    Этажей 1
    Санузлы 1
    Спальни 2
    Смотреть
    Ипотека и
    рассрочка
    Одноэтажный жилой дом «Уровень -127»
    Стоимость от:
    10 103 940
    Проект от: 57 150
    Этажей 1
    Санузлы 2
    Спальни 3
    Смотреть
    Ипотека и
    рассрочка
    Дом из CLT «Снежинск»
    Стоимость от:
    946 770
    Проект от: 67 950
    Этажей 1
    Санузлы 2
    Спальни 4
    Смотреть
    Ипотека и
    рассрочка
    Загородный дом «Сканди-3»
    Стоимость от:
    7 228 320
    Проект от: 49 950
    Этажей 1
    Санузлы 1
    Спальни 3
    Смотреть
    Ипотека и
    рассрочка
    Next-94
    Стоимость от:
    7 276 280
    Проект от: 42 300
    Этажей 1
    Санузлы 2
    Спальни 3
    Смотреть
    Ипотека и
    рассрочка
    Хай-тек 71
    Стоимость от:
    2 557 830
    Проект от: 20 700
    Этажей 1
    Санузлы 1
    Спальни 1
    Смотреть

    Как узнать стоимость дома

    back
    Оставляете заявку
    Вы заполняете форму на сайте или звоните нам. Менеджер Лайвкрафт связывается с вами для уточнения деталей: тип дома, площадь, материалы, участок строительства.
    back
    Консультация и подбор решения
    Наш специалист помогает выбрать оптимальный тип дома и конструкцию с учётом бюджета, сроков и целей — будь то дом для постоянного проживания или дача.
    back
    Расчёт предварительной стоимости
    Инженер делает первичный расчёт стоимости строительства по вашим параметрам: фундамент, коробка, кровля, отделка. Вы получаете смету с разбивкой по этапам.
    back
    Корректировка и утверждение сметы
    При необходимости вносим изменения — например, замену материалов или сокращение этапов. После согласования формируется окончательная фиксированная смета.
    back
    Заключение договора и старт работ
    После утверждения сметы заключаем официальный договор с гарантией. Вы получаете прозрачный график и точную стоимость — без скрытых расходов.

    Заказать конусльтацию по:Двухэтажный 116

    Фото 1 Двухэтажный 116


      Наши
      контакты

      Дмитров
      Опорный проезд 28Б
      (индустриальный парк Ниагара)
      9:00 до 18:00

      Корзина