4.9
Рейтинг на основании 120 отзывов
Дмитров
Опорный проезд 28Б
(индустриальный парк Ниагара)
Бренд "Дмитров-Дело" c 2008 года на рынке строительства в Дмитрове
Звоните 9:00 до 18:00 8 (915) 055-33-61
Бренд "Дмитров-Дело" c 2008 года на рынке строительства в Дмитрове

Двухэтажный барнхаус Лаг-ОМ — 180

Стоимость проекта от:
67 050 ₽
БЕСПЛАТНО! ПРИ ЗАКАЗЕ СТРОИТЕЛЬСТВА
Стоимость строительства от:
8 754 360 ₽
Артикул ART-16450
Дата 26.12.2025
Архитектурный стиль Барнхаус
Количество надземных этажей 2
Круглогодичное проживание Да
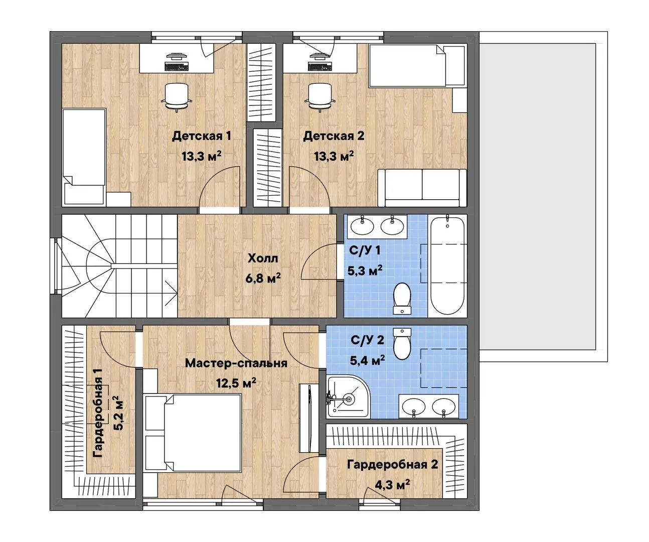
Площадь дома 149 м2
Санузлы 4
Спальни 4

Описание

Совершенство в простоте! Двухэтажный барнхаус «Лаг‑ОМ» площадью 180 м² раскрывает особую атмосферу уюта и гармонии. Его деревянный каркас, обрамленный изящным двускатным крышим, создаёт ощущение крепкого, но открытого дома, где гармонично сочетаются традиции фермерского стиля и современные удобства. Внутри пространство продумано до мелочей: просторные гостиная и кухня плавно переходят в уютные спальни, а большое окно в верхнем этаже пропускает живую, солнечную атмосферу, наполняя дом теплом и светом. Всё, чтобы жить на любимой земле: веранда и открытая терраса служат идеальными уголками для романтических вечеров, семейных ужинов или просто отдыха с чашкой кофе. Недостаток балконов компенсируется широкими открытыми площадками, где можно выращивать домашний огород, садить цветы или просто наслаждаться свежим воздухом. Четко продуманное круглогодичное проживание подтверждает, что в этом доме вам не придётся жертвовать комфортом даже в самые холодные и влажные месяцы. И, конечно, всё оформлено с заботой о структуре: деревянные стены, без чердака, но с уютной верандой – это сочетание легкости и практичности, которое не оставит равнодушными ценителей традиционной эстетики, придавая дому особый шарм. «Лаг‑ОМ» – это ваш новый уголок счастья, где каждая деталь создана с душой и любовью к дому.

Характеристики дома

Архитектурный стиль
Автоматизированное регулирование параметров теплоносителя
Нет
Балконы/лоджии
Отсутствуют
Чердачное помещение
Нет
Датчики протечки воды
Нет
Эксплуатируемая или зеленая кровля
Нет
Электроснабжение
Индивидуальное
Газоснабжение
Индивидуальное
Изоляция воздушного шума
Нет
Камин
Нет
Класс энергоэффективности
-
Класс энергосбережения
-
Количество надземных этажей
2
Круглогодичное проживание
Да
Материал кровли
Фальцевая кровля Кликфальц
Материал перекрытий
Деревянные
Материал внешних стен
Материал внутренних перегородок
Деревянные
Модульное строительство с конструкциями заводского изготовления
Нет
Объем надземной части
820 м3
Основной материал фасадов
Фасадная плитка
Отопление
Индивидуальное
Площадь дома
149 м2
Площадь застройки
105 м2
Подвальное помещение
Нет
Показатель компактности здания
-
Приборы учета тепловой энергии
Нет
Пристроенный гараж/крытая автостоянка
Нет
Противопожарная система
Нет
Санузлы
4
Совмещенная кухня-гостиная
Да
Спальни
4
Терраса
Да
Тип фундамента
Свайный
Тип кровли
Толщина внешних стен
150 мм
Толщина внутренних перегородок
100 мм
Улучшенные шумовые характеристики
Нет
Вентиляция
Естественная
Веранда
Да
Водоотведение
Локальные очистные сооружения
Водоснабжение
Индивидуальное
Высота дома
7.8 м
Высота потолков
2.7 м

Планировка

Фасад дома

Александр

Закажите выезд инженера

Александр

Выездной инженер
Закажите выезд инженера для точной диагностики и профессиональной консультации по инженерным системам. Специалист приедет в удобное время, проведёт осмотр, рассчитает стоимость работ и подберёт оптимальные решения для вашего дома.


    Похожие проекты

    Ипотека и
    рассрочка
    D 281
    Стоимость от:
    6 014 800
    Проект от: 36 000
    Этажей 1
    Санузлы 2
    Спальни 3
    Смотреть
    Ипотека и
    рассрочка
    Каркасный дом «Оззи»
    Стоимость от:
    6 297 000
    Проект от: 47 250
    Этажей 2
    Санузлы 1
    Спальни 3
    Смотреть
    Ипотека и
    рассрочка
    Одноэтажный кирпичный дом ТП-119
    Стоимость от:
    8 565 480
    Проект от: 51 300
    Этажей 1
    Санузлы 2
    Спальни 3
    Смотреть
    Ипотека и
    рассрочка
    Проект дома КС-26
    Стоимость от:
    8 992 060
    Проект от: 50 850
    Этажей 1
    Санузлы 2
    Спальни 4
    Смотреть
    Ипотека и
    рассрочка
    Индивидуальный проект — Проводник
    Стоимость от:
    12 645 380
    Проект от: 71 550
    Этажей 1
    Санузлы 3
    Спальни 4
    Смотреть
    Ипотека и
    рассрочка
    Одноэтажный Premium 110
    Стоимость от:
    8 050 680
    Проект от: 51 300
    Этажей 1
    Санузлы 2
    Спальни 3
    Смотреть

    Как узнать стоимость дома

    back
    Оставляете заявку
    Вы заполняете форму на сайте или звоните нам. Менеджер Лайвкрафт связывается с вами для уточнения деталей: тип дома, площадь, материалы, участок строительства.
    back
    Консультация и подбор решения
    Наш специалист помогает выбрать оптимальный тип дома и конструкцию с учётом бюджета, сроков и целей — будь то дом для постоянного проживания или дача.
    back
    Расчёт предварительной стоимости
    Инженер делает первичный расчёт стоимости строительства по вашим параметрам: фундамент, коробка, кровля, отделка. Вы получаете смету с разбивкой по этапам.
    back
    Корректировка и утверждение сметы
    При необходимости вносим изменения — например, замену материалов или сокращение этапов. После согласования формируется окончательная фиксированная смета.
    back
    Заключение договора и старт работ
    После утверждения сметы заключаем официальный договор с гарантией. Вы получаете прозрачный график и точную стоимость — без скрытых расходов.

    Заказать конусльтацию по:Двухэтажный барнхаус Лаг-ОМ — 180

    Фото 1 Двухэтажный барнхаус Лаг-ОМ — 180


      Наши
      контакты

      Дмитров
      Опорный проезд 28Б
      (индустриальный парк Ниагара)
      9:00 до 18:00

      Корзина