4.9
Рейтинг на основании 120 отзывов
Дмитров
Опорный проезд 28Б
(индустриальный парк Ниагара)
Бренд "Дмитров-Дело" c 2008 года на рынке строительства в Дмитрове
Звоните 9:00 до 18:00 8 (915) 055-33-61
Бренд "Дмитров-Дело" c 2008 года на рынке строительства в Дмитрове

Двухэтажный деревянный дом «Д-6»

Стоимость проекта от:
54 900 ₽
БЕСПЛАТНО! ПРИ ЗАКАЗЕ СТРОИТЕЛЬСТВА
Стоимость строительства от:
8 374 080 ₽
Артикул ART-3731
Дата 26.12.2025
Архитектурный стиль Американский/Канадский
Количество надземных этажей 2
Круглогодичное проживание Да
Площадь дома 122 м2
Санузлы 1
Спальни 2

Описание

Добро пожаловать в «Д‑6» — двухэтажный деревянный дом, который станет вашим уютным уголком на любой сезон. Сочетание классического американского и канадского стилистики придаёт ему неповторимый колорит: большие окна пропускают естественный свет, а мягкая резьба на деревянных каркасах создаёт ощущение тепла и гостеприимства. Внутри пространства плавно переходят друг в друга, а просторные комнаты создают атмосферу открытости и комфорта, идеально подходящую как для семейной жизни, так и для романтических уединённых вечеров. «Д‑6» радует своими практичными особенностями. Без версера и внешних балконов, но с большой террасой, которая позволяет наслаждаться восходами и закатами прямо из окон или во дворе. Двускатная крыша и срубовые стены — это гарантия прочности, долговечности и классического внешнего вида, а также естественной теплоизоляции, позволяющей комфортно жить круглый год. Отсутствие пристроенного гаража или чердачного пространства лишь подчёркивает чистую, лаконичную эстетику дома, оставляя простор для творчества и индивидуального подхода к обустройству. Выбирая «Д‑6», вы инвестируете в не просто дом, а настоящий оазис уюта и гармонии. Его естественная древесная материализация, лаконичные линии и продуманные детали делают каждый день уютным и вдохновляющим. Позвольте себе откровенно наслаждаться простотой и красотой этого деревянного дома, который будет служить вам и вашим близким долгие годы, создавая воспоминания, наполненные тёплыми семейными моментами и спокойной, безмятежной жизнью.

Характеристики дома

Архитектурный стиль
Автоматизированное регулирование параметров теплоносителя
-
Балконы/лоджии
Отсутствуют
Чердачное помещение
Нет
Датчики протечки воды
-
Эксплуатируемая или зеленая кровля
-
Электроснабжение
2 варианта
Газоснабжение
Индивидуальное
Изоляция воздушного шума
-
Камин
Нет
Класс энергоэффективности
-
Класс энергосбережения
-
Количество надземных этажей
2
Круглогодичное проживание
Да
Материал кровли
Битумная черепица
Материал перекрытий
Деревянные
Материал внешних стен
Материал внутренних перегородок
Деревянные
Модульное строительство с конструкциями заводского изготовления
Нет
Объем надземной части
600 м3
Основной материал фасадов
Дерево
Отопление
Индивидуальное
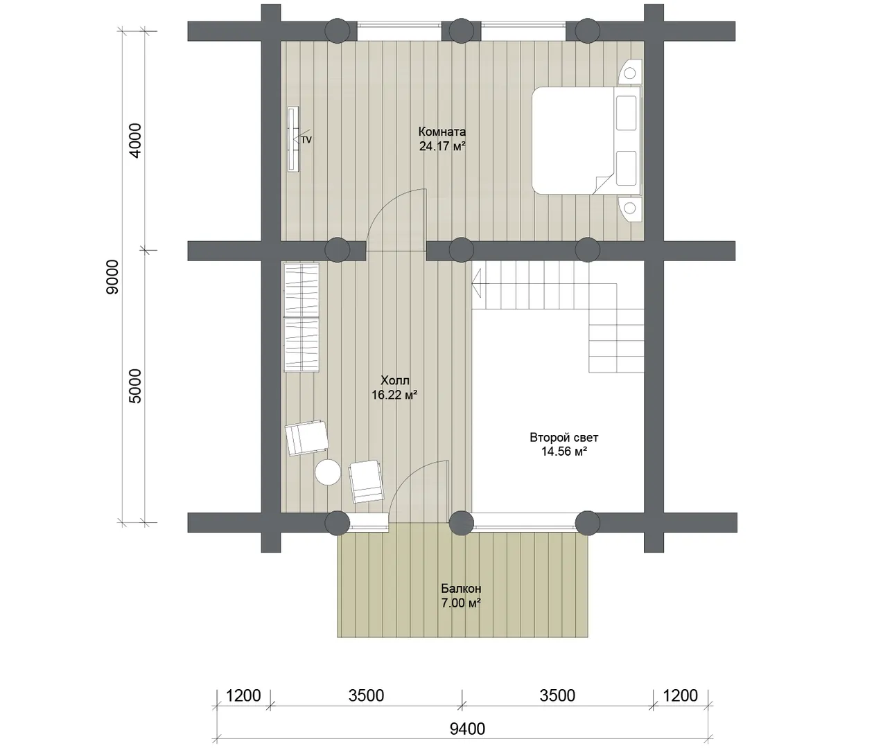
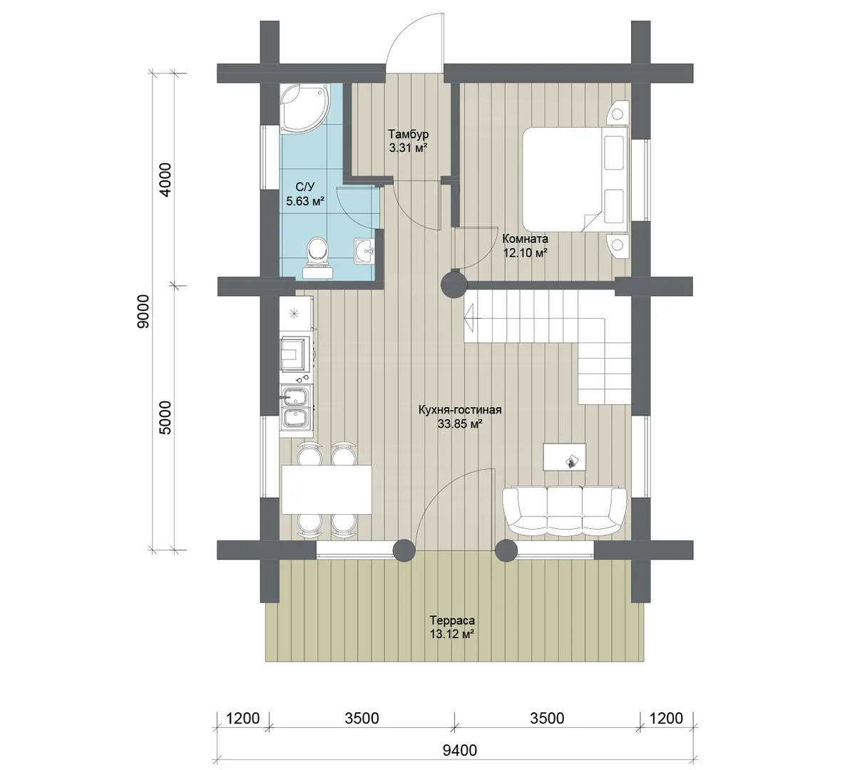
Площадь дома
122 м2
Площадь застройки
80 м2
Подвальное помещение
Нет
Показатель компактности здания
-
Приборы учета тепловой энергии
-
Пристроенный гараж/крытая автостоянка
Нет
Противопожарная система
Нет
Санузлы
1
Совмещенная кухня-гостиная
Да
Спальни
2
Терраса
Да
Тип фундамента
Плитный
Тип кровли
Толщина внешних стен
360 мм
Толщина внутренних перегородок
200 мм
Улучшенные шумовые характеристики
-
Вентиляция
2 варианта
Веранда
Нет
Водоотведение
Локальные очистные сооружения
Водоснабжение
Индивидуальное
Высота дома
7.5 м
Высота потолков
2.8 м

Планировка

Фасад дома

Александр

Закажите выезд инженера

Александр

Выездной инженер
Закажите выезд инженера для точной диагностики и профессиональной консультации по инженерным системам. Специалист приедет в удобное время, проведёт осмотр, рассчитает стоимость работ и подберёт оптимальные решения для вашего дома.


    Похожие проекты

    Ипотека и
    рассрочка
    Двухэтажный дом хайтек С-1
    Стоимость от:
    10 982 400
    Проект от: 72 000
    Этажей 2
    Санузлы 3
    Спальни 3
    Смотреть
    Ипотека и
    рассрочка
    Проект ГБ-216
    Стоимость от:
    14 826 240
    Проект от: 97 200
    Этажей 2
    Санузлы 2
    Спальни 3
    Смотреть
    Ипотека и
    рассрочка
    Авторский проект «Ането»
    Стоимость от:
    3 813 480
    Проект от: 24 300
    Этажей 1
    Санузлы 1
    Спальни 2
    Смотреть
    Ипотека и
    рассрочка
    Дом из клееного бруса «Евпатория»
    Стоимость от:
    14 760 720
    Проект от: 102 600
    Этажей 2
    Санузлы 2
    Спальни 5
    Смотреть
    Ипотека и
    рассрочка
    Одноэтажный дом_60м
    Стоимость от:
    4 782 800
    Проект от: 27 000
    Этажей 1
    Санузлы 1
    Спальни 2
    Смотреть
    Ипотека и
    рассрочка
    S.Dom-113-1
    Стоимость от:
    7 965 100
    Проект от: 58 500
    Этажей 1
    Санузлы 2
    Спальни 3
    Смотреть

    Как узнать стоимость дома

    back
    Оставляете заявку
    Вы заполняете форму на сайте или звоните нам. Менеджер Лайвкрафт связывается с вами для уточнения деталей: тип дома, площадь, материалы, участок строительства.
    back
    Консультация и подбор решения
    Наш специалист помогает выбрать оптимальный тип дома и конструкцию с учётом бюджета, сроков и целей — будь то дом для постоянного проживания или дача.
    back
    Расчёт предварительной стоимости
    Инженер делает первичный расчёт стоимости строительства по вашим параметрам: фундамент, коробка, кровля, отделка. Вы получаете смету с разбивкой по этапам.
    back
    Корректировка и утверждение сметы
    При необходимости вносим изменения — например, замену материалов или сокращение этапов. После согласования формируется окончательная фиксированная смета.
    back
    Заключение договора и старт работ
    После утверждения сметы заключаем официальный договор с гарантией. Вы получаете прозрачный график и точную стоимость — без скрытых расходов.

    Заказать конусльтацию по:Двухэтажный деревянный дом «Д-6»

    Фото 1 Двухэтажный деревянный дом «Д-6»


      Наши
      контакты

      Дмитров
      Опорный проезд 28Б
      (индустриальный парк Ниагара)
      9:00 до 18:00

      Корзина