Двухэтажный дом 167,1 (180,5) м2 ROVA
Описание
Характеристики дома
Архитектурный стиль
Автоматизированное регулирование параметров теплоносителя
-
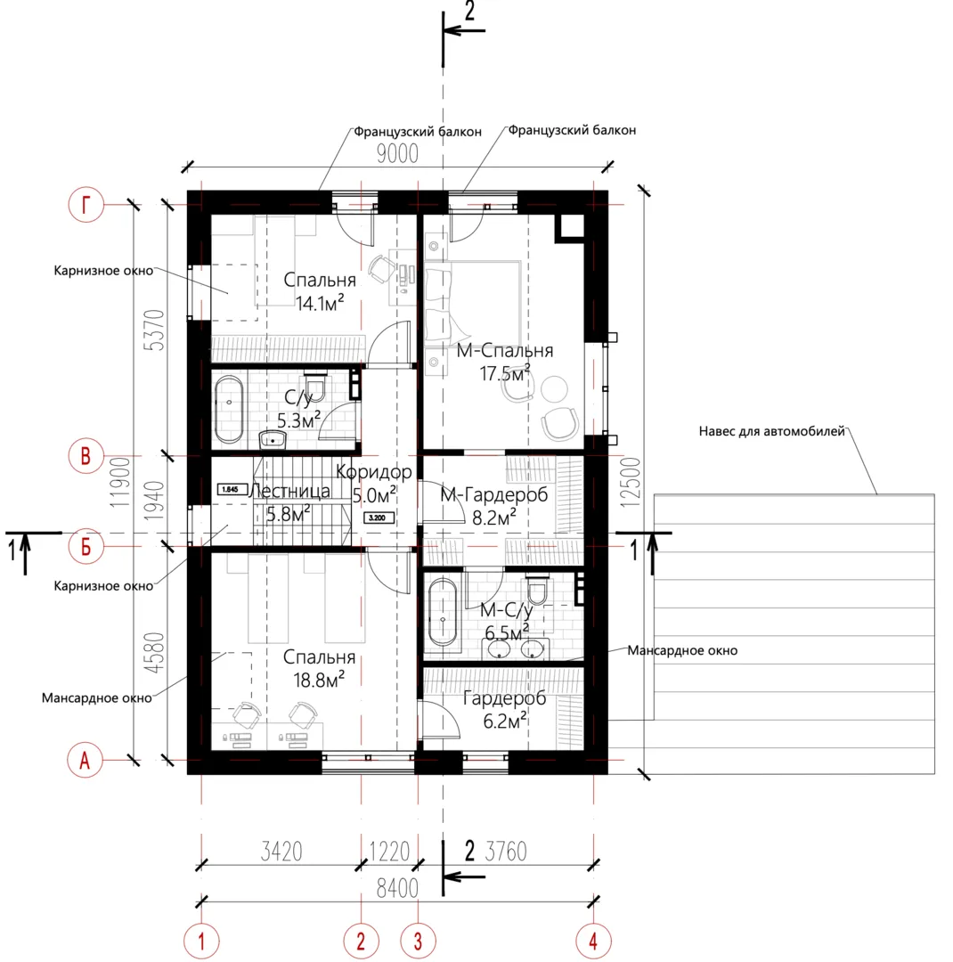
Балконы/лоджии
2
Чердачное помещение
Да
Датчики протечки воды
-
Эксплуатируемая или зеленая кровля
-
Электроснабжение
Центральное
Газоснабжение
2 варианта
Изоляция воздушного шума
-
Камин
Нет
Класс энергоэффективности
-
Класс энергосбережения
-
Количество надземных этажей
2
Круглогодичное проживание
Да
Материал кровли
Фальцевая кровля Кликфальц
Материал перекрытий
Монолитные железобетонные
Материал внешних стен
Материал внутренних перегородок
Блочные
Модульное строительство с конструкциями заводского изготовления
Нет
Объем надземной части
750 м3
Основной материал фасадов
Штукатурка
Отопление
2 варианта
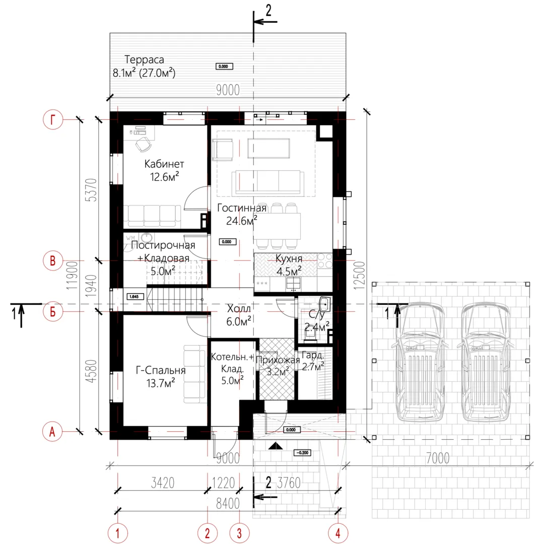
Площадь дома
180 м2
Площадь застройки
113 м2
Подвальное помещение
Нет
Показатель компактности здания
-
Приборы учета тепловой энергии
-
Пристроенный гараж/крытая автостоянка
Нет
Противопожарная система
Нет
Санузлы
3
Совмещенная кухня-гостиная
Да
Спальни
5
Терраса
Нет
Тип фундамента
Ленточный
Тип кровли
Толщина внешних стен
380 мм
Толщина внутренних перегородок
100 мм
Улучшенные шумовые характеристики
-
Вентиляция
Естественная
Веранда
Нет
Водоотведение
2 варианта
Водоснабжение
2 варианта
Высота дома
9.7 м
Высота потолков
2.9 м
Категории проекта
Строительство двухэтажных домовСтроительство домовСтроительство домов без гаражаСтроительство домов без террасыСтроительство домов в Европейском стилеСтроительство домов для круглогодичного проживанияСтроительство домов из керамических блоковСтроительство домов с балконом или лоджиейСтроительство домов с верандойСтроительство домов с двускатной крышейСтроительство домов с чердаком
Закажите выезд инженера
Александр
Выездной инженер
Закажите выезд инженера для точной диагностики и профессиональной консультации по инженерным
системам. Специалист приедет в удобное время, проведёт осмотр, рассчитает стоимость работ и подберёт
оптимальные решения для вашего дома.
Как узнать стоимость дома
Заказать конусльтацию по:Двухэтажный дом 167,1 (180,5) м2 ROVA
Наши
контакты
Дмитров
Опорный проезд 28Б
(индустриальный парк Ниагара)
Опорный проезд 28Б
(индустриальный парк Ниагара)
9:00 до 18:00