4.9
Рейтинг на основании 120 отзывов
Дмитров
Опорный проезд 28Б
(индустриальный парк Ниагара)
Бренд "Дмитров-Дело" c 2008 года на рынке строительства в Дмитрове
Звоните 9:00 до 18:00 8 (915) 055-33-61
Бренд "Дмитров-Дело" c 2008 года на рынке строительства в Дмитрове

Двухэтажный дом 195,7 (210,2) м2 ROVEN

Стоимость проекта от:
94 500 ₽
БЕСПЛАТНО! ПРИ ЗАКАЗЕ СТРОИТЕЛЬСТВА
Стоимость строительства от:
15 441 600 ₽
Артикул ART-5549
Дата 26.12.2025
Архитектурный стиль Европейский
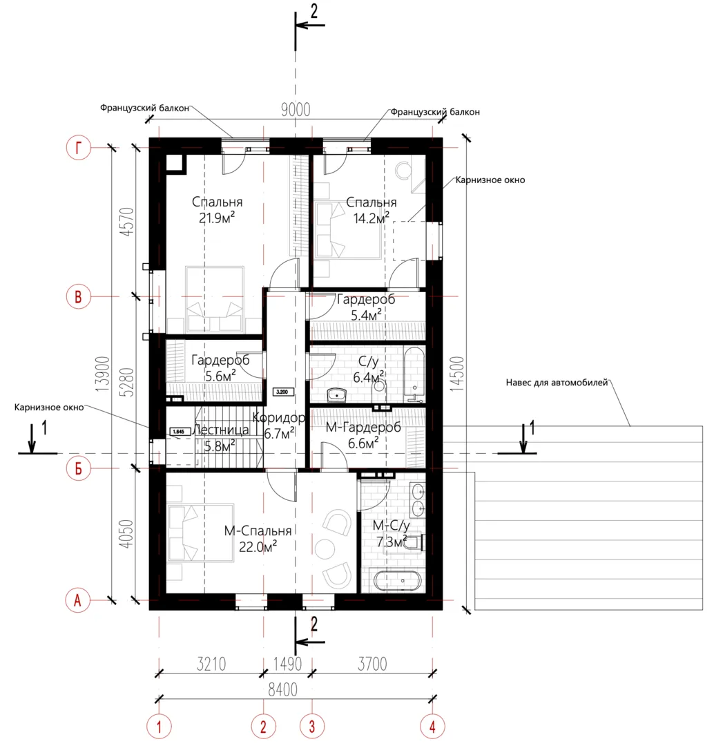
Количество надземных этажей 2
Круглогодичное проживание Да
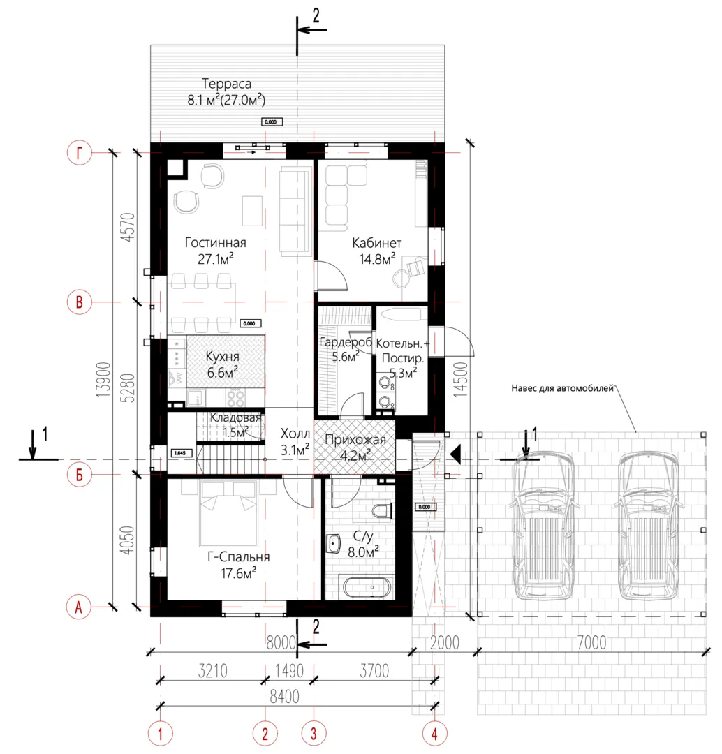
Площадь дома 210 м2
Санузлы 3
Спальни 5

Описание

Городской уют и европейская элегантность в одном неповторимом доме. На протяжении двух этажей площадью 195,7 м² (с общим объёмом 210,2 м²) каждый угол пропитан светом и теплом, а просторные балконы‑лоджии предлагают виды на городские проспекты, где можно насладиться утренним кофе или вечерним закатом. Зонтичный двускатный металл‑керамический кобелет, покрытый высококлассной кровлей, защищает жильё от непогоды, одновременно создавая впечатление чистоты и простора. Внутри – планировка без компромиссов: уютные зоны для семьи, современная кухня, обеденный зал и несколько светлых спален, каждая из которых соединена с балконом, где пахнет свежим воздухом. Собственный чердачный клад — дополнительное пространство для хранения, хобби или дополнительной гостиной. Внешняя отделка керамическими блоками обеспечивает теплоизоляцию и долговечность, а отсутствие веранды и террасы позволяет сосредоточиться на внутреннем комфорте, а также в более жаркую погоду можно воспользоваться защищённым от ветра и погодных условий двором. Наличие двух балконов делает этот дом идеальным для круглогодичного проживания, способным подарить уют в любой климатической ситуации, а европейский стиль архитектуры дарит нотки классики и гармонии, привлекая взгляд и создавая атмосферу настоящего дома. Если вы ищете место, где можно почувствовать себя дома, без компромиссов и с гарантией комфорта, этот двухэтажный дом станет вашим идеальным выбором.

Характеристики дома

Архитектурный стиль
Автоматизированное регулирование параметров теплоносителя
-
Балконы/лоджии
2
Чердачное помещение
Да
Датчики протечки воды
-
Эксплуатируемая или зеленая кровля
-
Электроснабжение
Центральное
Газоснабжение
2 варианта
Изоляция воздушного шума
-
Камин
Нет
Класс энергоэффективности
-
Класс энергосбережения
-
Количество надземных этажей
2
Круглогодичное проживание
Да
Материал кровли
Фальцевая кровля Кликфальц
Материал перекрытий
Монолитные железобетонные
Материал внешних стен
Материал внутренних перегородок
Блочные
Модульное строительство с конструкциями заводского изготовления
Нет
Объем надземной части
820 м3
Основной материал фасадов
Штукатурка
Отопление
2 варианта
Площадь дома
210 м2
Площадь застройки
130 м2
Подвальное помещение
Нет
Показатель компактности здания
-
Приборы учета тепловой энергии
-
Пристроенный гараж/крытая автостоянка
Нет
Противопожарная система
Нет
Санузлы
3
Совмещенная кухня-гостиная
Да
Спальни
5
Терраса
Нет
Тип фундамента
Ленточный
Тип кровли
Толщина внешних стен
380 мм
Толщина внутренних перегородок
100 мм
Улучшенные шумовые характеристики
-
Вентиляция
Естественная
Веранда
Нет
Водоотведение
2 варианта
Водоснабжение
2 варианта
Высота дома
9.8 м
Высота потолков
2.8 м

Планировка

Фасад дома

Александр

Закажите выезд инженера

Александр

Выездной инженер
Закажите выезд инженера для точной диагностики и профессиональной консультации по инженерным системам. Специалист приедет в удобное время, проведёт осмотр, рассчитает стоимость работ и подберёт оптимальные решения для вашего дома.


    Похожие проекты

    Ипотека и
    рассрочка
    Двухэтажный дом Новый Город 144 Барнхаус
    Стоимость от:
    6 696 360
    Проект от: 51 300
    Этажей 2
    Санузлы 3
    Спальни 4
    Смотреть
    Ипотека и
    рассрочка
    Одноэтажный дом FK-136 Пятидворка
    Стоимость от:
    10 215 920
    Проект от: 61 200
    Этажей 1
    Санузлы 1
    Спальни 3
    Смотреть
    Ипотека и
    рассрочка
    WOODY-12
    Стоимость от:
    6 214 560
    Проект от: 39 600
    Этажей 1
    Санузлы 1
    Спальни 3
    Смотреть
    Ипотека и
    рассрочка
    Одноэтажный дом «Мечты»
    Стоимость от:
    11 341 220
    Проект от: 67 950
    Этажей 1
    Санузлы 2
    Спальни 3
    Смотреть
    Ипотека и
    рассрочка
    Одноэтажный дом Я7
    Стоимость от:
    6 464 920
    Проект от: 38 700
    Этажей 1
    Санузлы 1
    Спальни 3
    Смотреть
    Ипотека и
    рассрочка
    «Загородный дом Виталий»
    Стоимость от:
    13 534 080
    Проект от: 95 400
    Этажей 2
    Санузлы 2
    Спальни 2
    Смотреть

    Как узнать стоимость дома

    back
    Оставляете заявку
    Вы заполняете форму на сайте или звоните нам. Менеджер Лайвкрафт связывается с вами для уточнения деталей: тип дома, площадь, материалы, участок строительства.
    back
    Консультация и подбор решения
    Наш специалист помогает выбрать оптимальный тип дома и конструкцию с учётом бюджета, сроков и целей — будь то дом для постоянного проживания или дача.
    back
    Расчёт предварительной стоимости
    Инженер делает первичный расчёт стоимости строительства по вашим параметрам: фундамент, коробка, кровля, отделка. Вы получаете смету с разбивкой по этапам.
    back
    Корректировка и утверждение сметы
    При необходимости вносим изменения — например, замену материалов или сокращение этапов. После согласования формируется окончательная фиксированная смета.
    back
    Заключение договора и старт работ
    После утверждения сметы заключаем официальный договор с гарантией. Вы получаете прозрачный график и точную стоимость — без скрытых расходов.

    Заказать конусльтацию по:Двухэтажный дом 195,7 (210,2) м2 ROVEN

    Фото 1 Двухэтажный дом 195,7 (210,2) м2 ROVEN


      Наши
      контакты

      Дмитров
      Опорный проезд 28Б
      (индустриальный парк Ниагара)
      9:00 до 18:00

      Корзина