4.9
Рейтинг на основании 120 отзывов
Дмитров
Опорный проезд 28Б
(индустриальный парк Ниагара)
Бренд "Дмитров-Дело" c 2008 года на рынке строительства в Дмитрове
Звоните 9:00 до 18:00 8 (915) 055-33-61
Бренд "Дмитров-Дело" c 2008 года на рынке строительства в Дмитрове

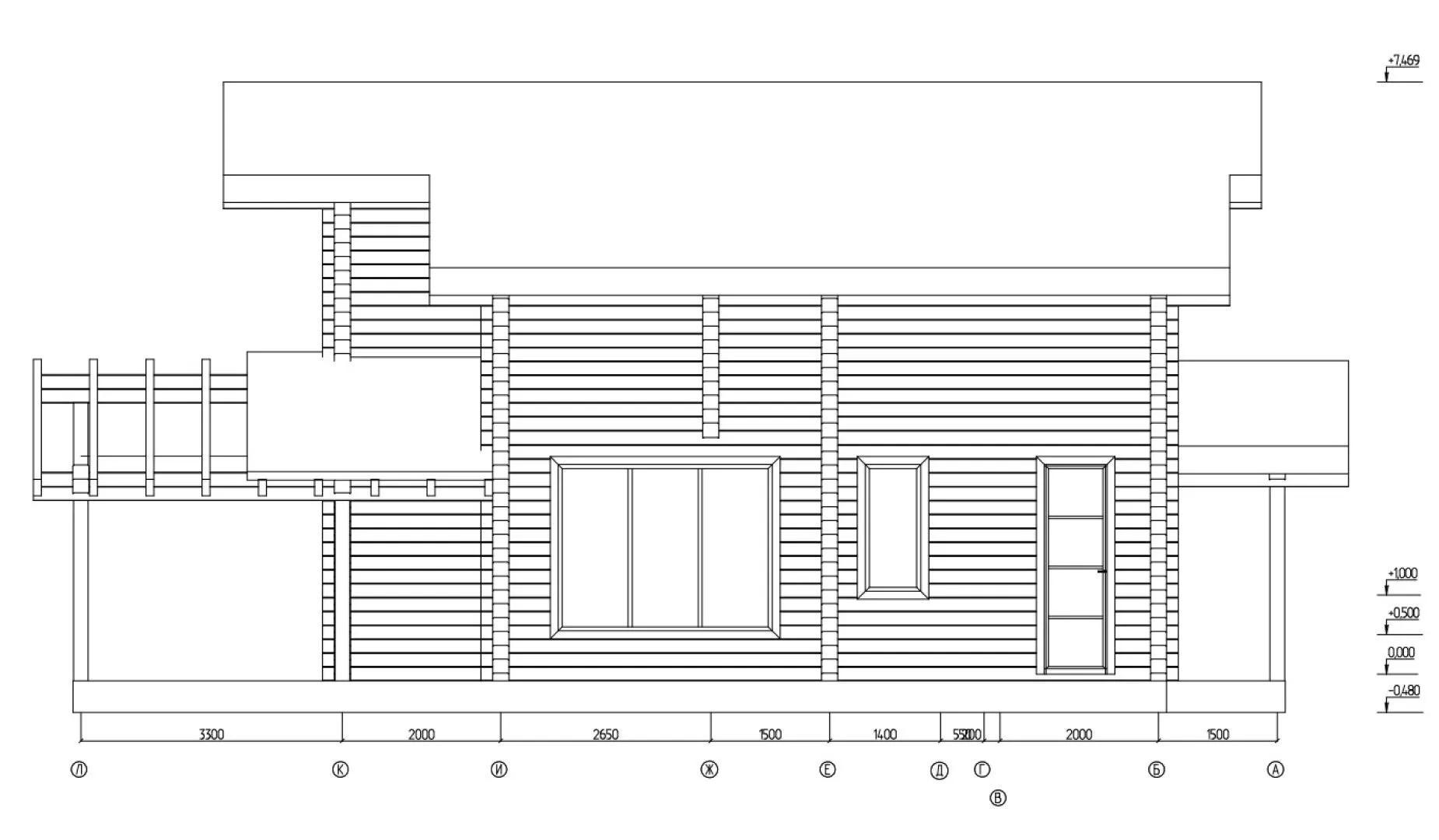
Двухэтажный дом 212м2

Стоимость проекта от:
95 400 ₽
БЕСПЛАТНО! ПРИ ЗАКАЗЕ СТРОИТЕЛЬСТВА
Стоимость строительства от:
14 551 680 ₽
Артикул ART-5664
Дата 26.12.2025
Архитектурный стиль Шале
Количество надземных этажей 2
Круглогодичное проживание Да
Площадь дома 212 м2
Санузлы 3
Спальни 5

Описание

Погрузитесь в атмосферу уюта и спокойствия, где каждый уголок дома словно приглашает к отдыху. Наш двухэтажный шале площадью 212 м², выполненный в традиционном стиле шале, сочетает в себе элегантность и функциональность. Клеёный брус, обрамляющий фасад, дарит не только тепло и естественность, но и придаёт дому характерный, почти сказочный вид. Двускатная крыша, завершённая каменной облицовкой, отбрасывает тёплые тени над балконом и террасой, где можно прославить рассветы и закаты. Уникальное сочетание материалов и продуманного проектирования позволяет обеспечить комфорт круглогодичного проживания: от зимних морозов до тёплых летних вечеров. Жилая часть располагается на двух уровнях: уютная гостиная с открытым камином, где стены приветствуют гостей своей естественной красотой, и светло-открытую спальню с видом на живописный ландшафт. Утилитарные зоны, как кухня и столовая, оформлены в едином стиле, создавая ощущение домашнего уюта. Небольшой, но качественный балкон добавляет дополнительный пространственный элемент, а просторная терраса — идеальное место для вечерних посиделок на свежем воздухе. В этом доме каждая деталь говорит о тепле и душевном гостеприимстве: просторные окна пропускают обилие естественного света, а деревянные конструкции обеспечивают непревзойденную акустику и теплопроводность. Он словно приглашает к жизни с утра, когда солнце только начинает расти над горизонтом, и к отдыху после долгого дня, когда на крыше обрушивается звёздный покров. Это – идеальный выбор для тех, кто ценит красоту, комфорт и гармонию с природой.

Характеристики дома

Архитектурный стиль
Автоматизированное регулирование параметров теплоносителя
-
Балконы/лоджии
1
Чердачное помещение
Нет
Датчики протечки воды
-
Эксплуатируемая или зеленая кровля
-
Электроснабжение
Центральное
Газоснабжение
Центральное
Изоляция воздушного шума
-
Камин
Да
Класс энергоэффективности
-
Класс энергосбережения
-
Количество надземных этажей
2
Круглогодичное проживание
Да
Материал кровли
Битумная черепица
Материал перекрытий
Деревянные
Материал внешних стен
Материал внутренних перегородок
Деревянные
Модульное строительство с конструкциями заводского изготовления
Нет
Объем надземной части
-
Основной материал фасадов
Дерево
Отопление
Индивидуальное
Площадь дома
212 м2
Площадь застройки
212 м2
Подвальное помещение
Нет
Показатель компактности здания
-
Приборы учета тепловой энергии
-
Пристроенный гараж/крытая автостоянка
Нет
Противопожарная система
Нет
Санузлы
3
Совмещенная кухня-гостиная
Да
Спальни
5
Терраса
Да
Тип фундамента
Плитный
Тип кровли
Толщина внешних стен
204 мм
Толщина внутренних перегородок
160 мм
Улучшенные шумовые характеристики
-
Вентиляция
3 варианта
Веранда
Нет
Водоотведение
Локальные очистные сооружения
Водоснабжение
Индивидуальное
Высота дома
7.5 м
Высота потолков
3 м

Планировка

Фасад дома

Александр

Закажите выезд инженера

Александр

Выездной инженер
Закажите выезд инженера для точной диагностики и профессиональной консультации по инженерным системам. Специалист приедет в удобное время, проведёт осмотр, рассчитает стоимость работ и подберёт оптимальные решения для вашего дома.


    Похожие проекты

    Ипотека и
    рассрочка
    Двухэтажный коттедж С95
    Стоимость от:
    9 062 640
    Проект от: 54 450
    Этажей 2
    Санузлы 2
    Спальни 3
    Смотреть
    Ипотека и
    рассрочка
    КСТ Д-18
    Стоимость от:
    10 440 980
    Проект от: 62 550
    Этажей 1
    Санузлы 2
    Спальни 3
    Смотреть
    Ипотека и
    рассрочка
    FK-60 Столбище
    Стоимость от:
    4 309 580
    Проект от: 26 550
    Этажей 1
    Санузлы 1
    Спальни 1
    Смотреть
    Ипотека и
    рассрочка
    Одноэтажный проект GRADE-1 без террасы
    Стоимость от:
    8 340 420
    Проект от: 49 950
    Этажей 1
    Санузлы 1
    Спальни 3
    Смотреть
    Ипотека и
    рассрочка
    Загородный дом из газобетона «S»
    Стоимость от:
    8 923 200
    Проект от: 58 500
    Этажей 2
    Санузлы 2
    Спальни 3
    Смотреть
    Ипотека и
    рассрочка
    Одноэтажный дом Fixplans-7820
    Стоимость от:
    9 463 080
    Проект от: 60 300
    Этажей 1
    Санузлы 3
    Спальни 3
    Смотреть

    Как узнать стоимость дома

    back
    Оставляете заявку
    Вы заполняете форму на сайте или звоните нам. Менеджер Лайвкрафт связывается с вами для уточнения деталей: тип дома, площадь, материалы, участок строительства.
    back
    Консультация и подбор решения
    Наш специалист помогает выбрать оптимальный тип дома и конструкцию с учётом бюджета, сроков и целей — будь то дом для постоянного проживания или дача.
    back
    Расчёт предварительной стоимости
    Инженер делает первичный расчёт стоимости строительства по вашим параметрам: фундамент, коробка, кровля, отделка. Вы получаете смету с разбивкой по этапам.
    back
    Корректировка и утверждение сметы
    При необходимости вносим изменения — например, замену материалов или сокращение этапов. После согласования формируется окончательная фиксированная смета.
    back
    Заключение договора и старт работ
    После утверждения сметы заключаем официальный договор с гарантией. Вы получаете прозрачный график и точную стоимость — без скрытых расходов.

    Заказать конусльтацию по:Двухэтажный дом 212м2

    Фото 1 Двухэтажный дом 212м2


      Наши
      контакты

      Дмитров
      Опорный проезд 28Б
      (индустриальный парк Ниагара)
      9:00 до 18:00

      Корзина